-
Köpa
Köpa -
Sälja
Sälja - Hitta bostad
- Skapa bevakning
- Hitta mäklare
Välplanerat enplanshus i attraktivt hörnläge i Ekängen!
Ekängen, Linköping
*Areauppgifter enligt taxeringsinformationen
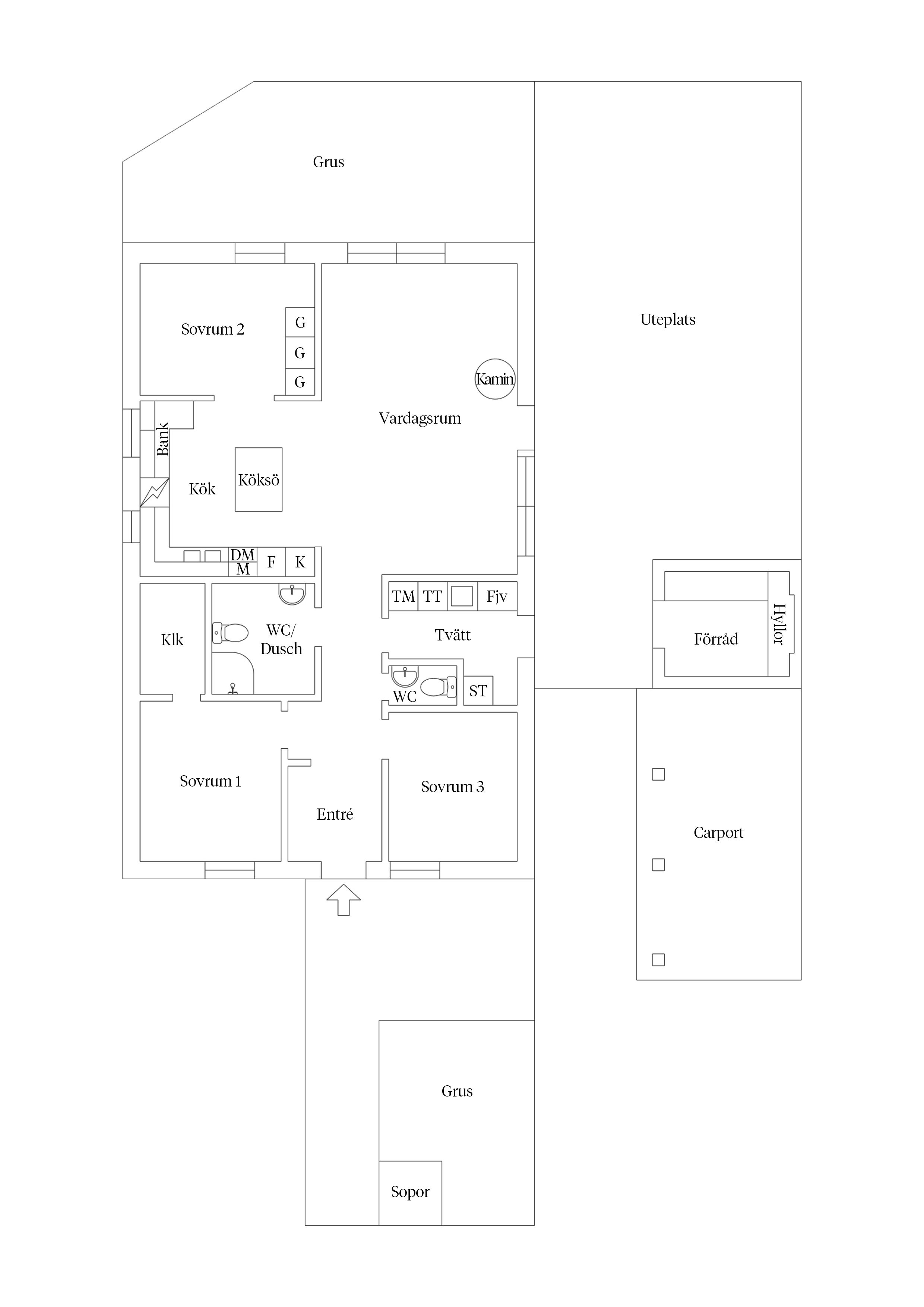
Välkommen till ett charmigt och välplanerat enplanshus i populära Ekängen – ett hem där funktion, trivsel och stil samspelar på bästa sätt. Med sina 100 väl disponerade kvadratmeter erbjuds ett bekvämt boende med genomtänkt planlösning och fina sociala ytor, perfekt för såväl barnfamiljen som paret som söker ett lättskött boende. Det attraktiva hörnläget ger tomten en luftig känsla och skapar extra ljusinsläpp till bostaden, inte minst i köket.
Bostadens sovrum präglas av ljusa ytskikt och vackra parkettgolv som skapar en lugn och harmonisk känsla. Här finns plats för både familj, gäster eller hemmakontor efter behov. I huvudsovrummet finns dessutom en praktisk klädkammare som bidrar med uppskattad förvaring och extra komfort i vardagen.
Köket utgör hemmets naturliga samlingspunkt och är smakfullt utformat med praktisk köksö, rostfria vitvaror samt sittbänk med smart förvaring. Tack vare husets hörnläge och fina fönstersättning erbjuds ett härligt ljusflöde som gör köket till en extra trivsam plats att vistas i. En inbjudande miljö där matlagning och umgänge enkelt förenas.
Det rymliga vardagsrummet bjuder på härlig rymd och ett fint ljusinsläpp tack vare stora fönsterpartier. Den mysiga kaminen skapar både karaktär och värme under årets kallare månader. Härifrån nås altanen och den insynsskyddade trädgården – en inbjudande utemiljö med flera naturliga platser för umgänge, avkoppling och måltider under bar himmel. Tack vare tomtens utformning och flera uteplatser kan du enkelt följa solen under dagen eller slå dig ner i svalkande skugga när så önskas. Här samsas öppna ytor med pergola, generös gräsmatta för lek och aktivitet samt odlingslotter och grönska som tillsammans skapar en rogivande oas att njuta av från vår till höst.
Badrummet är stilrent helkaklat och utrustat med wc och dusch i modern utformning. Därutöver finns en separat gäst-wc som bidrar till extra komfort i vardagen.
Groventrén erbjuder praktiska lösningar med tvättavdelning, torkmöjligheter, god förvaring, städskåp samt plats för teknik såsom fjärrvärmeväxlare och ventilation – allt för en smidig och välfungerande vardag.
På tomten finns även carport samt angränsande förråd med goda förvaringsmöjligheter genom praktiska hyllplan – perfekt för trädgårdsredskap, cyklar, fritidsutrustning och säsongsförvaring. Här finns även möjlighet för framtida installation av elbilsladdare vid carporten.
Hallen välkomnar med bra förvaringsmöjligheter och skapar ett ordnat första intryck.
Här bor du i attraktiva Ekängen med närhet till natur, service, skolor och goda kommunikationer till centrala Linköping. Ett område som uppskattas för sitt lugna läge och sin familjevänliga miljö.
Ett hem att trivas i från första stund – varmt välkommen på visning!



Bärstadskogen 1:104
*Areauppgifter enligt taxeringsinformationen
Hyllor i förrådet (2015)
Installation av kamin (Contura) (2015)
Nytt staket (2016)
Utbyggd altan (på plint och med grus på markduk) (2016)
Behandlat altan med Nitor träskydd (kisel) för lång hållbarhet, fin grå färg samt minimalt behov av underhåll (2017 samt 2018)
Byggt extra sovrum med dubbla skjutdörrar och inbyggda garderober (2017) (byte skjutdörrar 2023)
Lagt plattor för cykelparkering (2017)
Sittbänk i köket (2018)
Byggt in hyllsystem i hall samt avskiljningsvägg (2019)
Gruslagt baksidan (med kraftig markduk) (2023)
Slipat och oljat köksö och ekskiva vid spis (2024)
Målat väggarna inne, 2024.
Installerat Pax-garderober i klädkammaren 2024.
Byggt extra hyllor i förrådet, 2025.
Målat fasaden 2025.
Anlagt rabatt till huvudentrén 2025.
Kommunalt vatten och avlopp.
Uppfart med plats för ett par bilar.
Carport med plats för en bil.
Detaljplan (2010-02-17)
Gemensamhetsanläggning: Linköping bärstadskogen ga:11 ändamål: Vägar
Gemensamhetsanläggning: Linköping bärstadskogen ga:8 ändamål: Vattenförsörjning
Gemensamhetsanläggning: Linköping bärstadskogen ga:9 ändamål: Vägar
Gemensamhetsanläggning: Linköping stensätter ga:15 ändamål: Avloppsanläggning
TV: Fiber via Utsikt för tv och bredband
Det finns 4 st pantbrev uttagna om sammanlagt 3 100 000 kr
Vill du köpa, sälja eller värdera bostad i Ekängen, Linköping? Kontakta Bjurfors mäklare i Linköping! Passa också på att anmäla dig till vår kostnadsfria söktjänst Boagenten som hjälper dig att hitta ditt drömboende.
Kontakta mäklaren om du behöver hjälp att ta fram en boendekalkyl.
När du köper din bostad genom Bjurfors kan du ansöka om bolån till en förmånlig ränta hos våra banksamarbetspartners Söderberg & Partners och SEB.
| Bud | Budgivare | Datum | Tid |
|---|---|---|---|
| 4 425 000 kr | Budgivare 2 | 2026-05-14 | 18:23 |
| 4 420 000 kr | Budgivare 1 | 2026-05-14 | 17:09 |
| 4 410 000 kr | Budgivare 2 | 2026-05-14 | 17:08 |
| 4 400 000 kr | Budgivare 1 | 2026-05-14 | 17:06 |
| 4 380 000 kr | Budgivare 2 | 2026-05-14 | 17:02 |
| 4 370 000 kr | Budgivare 1 | 2026-05-14 | 16:58 |
| 4 360 000 kr | Budgivare 2 | 2026-05-14 | 12:06 |
| 4 350 000 kr | Budgivare 1 | 2026-05-14 | 11:44 |