-
Köpa
Köpa -
Sälja
Sälja - Hitta bostad
- Skapa bevakning
- Hitta mäklare
Smakfullt renoverad enplansvilla med nära till allt!
Båstad - Centralt, Båstad
*Areauppgifter enligt taxeringsinformationen
Välkommen till denna smakfulla och mysiga villa på populära Drivan – här är man perfekt placerad mellan hamnen, havet och åsen och har verkligen nära till allt!
Villan har genomgått en total renovering de senaste åren och har genomgående sobra färgval och fina material, god smak och harmoni genomsyrar allt.
Huset erbjuder tre rymliga sovrum, ett stort och socialt kök med plats för både matlagning och umgänge samt ett rymligt vardagsrum med mycket ljusinsläpp. Tack var förbättrat uppvärmningssystem har man låg elförbrukning, den aktuella energideklarationen är utförd innan dessa förbättringar. För den som behöver mer plats finns även möjlighet att inreda vinden till ytterligare ett våningsplan.
Trädgården är estetiskt anlagd med vacker gatsten och fin växtlighet och ett fantastisk trädäck i söderläge som inbjuder till såväl lata dagar i solen som middagar med vänner och familj!
Grönskan från Hallandsåsen ligger som en kuliss i bakgrunden och man når snabbt naturen genom vackra promenadstigar som leder dig antingen upp mot åsen eller ner mot havet, och med en tennisanläggning som granne är den aktiva livsstilen given!
Båstads hamn ligger på promenadavstånd med sina restauranger, butiker och folkvimmel. Att bara strosa runt, eller titta på världstennis, shoppa i en av alla butiker, spela padel eller äta glass med benen dinglandes från piren – här finns något för alla! Och med livsmedelsaffär, apotek, bibliotek, buss etc samt förskola och skola F-9 ett par minuter bort blir livet enkelt.
Välkomna till den här pärlan - kontakta mäklaren för att boka visning!
Det ljust beige huset känns välkomnade och hemtrevligt redan vid första anblick, vi kliver in i huset och möts av en stor vacker öppen spis med kassett som ger rummet en härlig karaktär samt värmer hela huset med det inbyggda fläktsystemet.
På golvet ligger ett vackert slipbart trägolv med fin struktur, samma i alla rum.
Det rymliga köket och matsalen är i öppen planlösning, allt smakfullt renoverat i ljusa, sobra färger och de stora fönstren ger ett fint ljusinsläpp.
Köket från Marbodal har vita luckor, kyl och frys i fullhöjd är rostfria från Electrolux. En generös köksö med både förvaring, vinkyl samt sittyta rymmer många vänner och gör matlagningen härligt social. Vitt kakel på väggen och bänkskiva i vit stenkomposit med grå ådring, spots i taket. Här finns också plats för stort matbord där många ryms utan att trängas, det här är verkligen ett kök man vill vistas i!
Vardagsrummet är härligt ljust, stora fönster med spröjs längs hela väggen samt utgång till det underbara trädäcket som sträcker sig längs husets södersida. Här ryms både solsängar och loungemöbler, samt en stor pergola att ta skugga under de varmaste dagarna.
Tillbaka in i huset har vi tre sovrum, det största med vilsamma mörkt gröna väggar och egen utgång till trädäcket.
Det andra rummet har smakfulla barntapeter med skogsmotiv, en dröm för ett barn att somna i.
Det sista sovrummet används idag som kontor och walk in closet, men kan återställas till sovrum vid behov, samtliga sovrum rymmer en dubbelsäng.
Badrum med dusch bakom glasvägg, ljust målade väggar och plastmatta på golvet. Stor kommod med lådor i vitt samt bidé.
I anslutning till vardagsrummet finns en gästwc med vacker mönstrad tapet samt vitt oktogonformat kakel och kommod i vitt, elburen golvvärma.
Bakom köket hittar vi en tvättstuga och groventré, tvättmaskin och torktumlare från Husqvarna 2022.



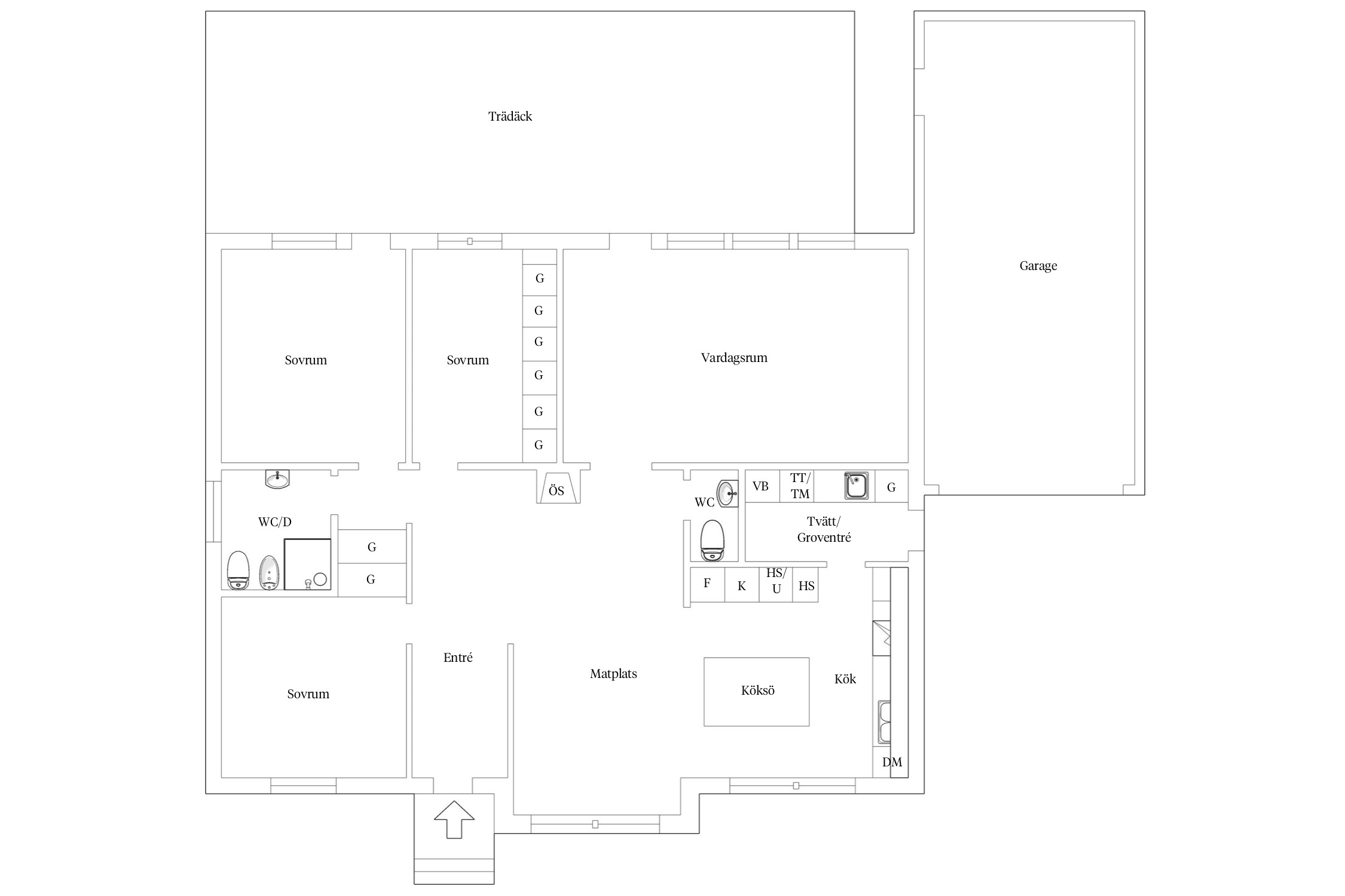
Planskiss
Rosen 11
*Areauppgifter enligt taxeringsinformationen
Huset har en vind med ståhöjd som kan inredas till ytterligare en våning. Larm. Elbilsladdare.
Se separat lista.
Isolerat garage samt förråd
Stensatt uteplats på husets framsida.
På baksidan har vi ett stort ljuvligt trädäck med pergola över ena delen, här är vi i rakt söderläge och här tillbringar man gärna mycket tid och bara njuter av stillheten!
Kommunalt vatten, Kommunalt avlopp.
Mysig uppvuxen trädgård omgärdad av en låg mur samt häckar av spirea och måbär. Fina buskar och vackra gångar med gatsten. På baksidan hittar vi lite odlingar samt ett förråd. Grind som hägnar in baksidan, perfekt för hunden med spring i benen!
Stor stensatt uppfart med plats för flera bilar samt garage.
Stadsplan (1978-04-18) Vattenskyddsområde (1974-10-17)
Fiber
Elbilsladdare. Försäkring tillkommer med 6 903 kr/år.
Det finns 7 st pantbrev uttagna om sammanlagt 5 350 000 kr
Säkerligen är detta en av Sveriges mest omtalade sommarorter. Belägen på vackra Bjärehalvön bjuder Båstad på en kombination av bad och nöjesliv, men ger samtidigt sken av en stilla småstad med fantastisk natur där böljande fält, härliga stränder och karga klippor spelar in. Det är inte för inte som över en miljon turister väljer att årligen besöka denna plats.
Kommunen har en oerhört tilldragande miljö för både boende och friluftsliv. Mycket tack vare sin direkta närhet till havet, men även det vackra och omväxlande landskapet med kala klippor, långgrunda sandstränder och omsorgsfullt brukad jord gör att många väljer att besöka Båstad. Många av de ursprungliga sommarstugorna finns kvar från den tiden då det endast bodde sjömän och bönder här, och även om de flesta kåkar nu såklart moderniserats så blänker den historiska charmen igenom. Då kommunen är en växande region är efterfrågan på nya bostäder stor.
Båstad är en nöjesmetropol där främst de berömda, kändistäta Tennisveckorna står i fokus. Förutom den klassiska tennisturneringen, Swedish Open lockar även det heta nöjeslivet då ortens alla uteställen, nattklubbar och barer öppnar sina portar och bjuder på ordentlig fest, nätterna igenom.
Under de ljumna sommarkvällarna kan man vandra runt i den charmiga hamnen och titta på båtar, äta glass eller dricka paraplydrinkar. När sommaren är över njuter du istället av friska promenader och uppfriskande vinterbad i den krispiga havskylan. Vill du slippa sommarstressen och istället njuta av lugnet kan du bege dig till den lilla pittoreska byn Kattvik, där du harmonifylld kan njuta av att plocka äpplen på Kattviks fruktodling.
Tågstationen i Båstad erbjuder bra pendlingsmöjligheter med både tåg och buss och det är enkelt att ta sig vidare till närliggande Malmö, Helsingborg, Halmstad men också till Köpenhamn. Närmaste flygplats ligger i Ängelholm och härifrån tar du dig till Stockholm på ca en timme. För dig som väljer bilen kommer du snabbt ut till E6an där Malmö ligger ungefär en timmes bilfärd bort.
Idrottsutbudet är stort med bland annat tennis, golf, friidrott, fotboll och segling. Barnfamiljer som väljer att slå sig ner i Båstad har ett stort urval på barnomsorg med fyra F-6-skolor, en F-9-skola och en 7–9-skola. I Båstad finns även totalt nio kommunala förskolor, två öppna förskolor och fyra fristående förskolor utspridda på hela vackra Bjärehalvön. Även två gymnasieskolor finns att välja mellan, en kommunal och en fristående.
Köpa, sälja eller värdera bostad i Båstad Centrum? Kontakta våra mäklare i Båstad! Passa också på att anmäla dig till vår kostnadsfria söktjänst Boagenten som hjälper dig att hitta ditt drömboende.
Kontakta mäklaren om du behöver hjälp att ta fram en boendekalkyl.
När du köper din bostad genom Bjurfors kan du ansöka om bolån till en förmånlig ränta hos vår samarbetspartner SEB.
Ansvarig mäklare