-
Köpa
Köpa -
Sälja
Sälja - Hitta bostad
- Skapa bevakning
- Hitta mäklare
Smakfull poolvilla på underbara Riviera!
Riviera, Båstad
*Areauppgifter enligt taxeringsinformationen
Bokad visning.
Välkommen till en plats där drömmar blir verklighet!
Denna smakfullt renoverade villa på eftertraktade Riviera i Båstad erbjuder en livsstil utöver det vanliga.
Här bor du med havet och naturen nära inpå, salta morgondopp blir en del av vardagen liksom eftermiddagspromenader längs vindlande stigar i den vackra tallskogen. Samtidigt når du Båstads hamn med sitt stora utbud av restauranger, butiker och nöjen på några minuter med cykel längs havet, och känns det för långt ligger Hotel Riviera nästan runt hörnet med stort utbud på mat och dryck!
För den aktiva finns mängder med förströelser i närområdet; löparslingor, utegym, padelbanor, tennisbanor etc och vill du lämna vackra Båstad för en dag så ligger tågstationen bara 5 minuter bort.
Villan i 1½ plan är renoverad med kärlek och omsorg, materialen är av hög kvalité och allt är påkostat och väldigt smakfullt. Här möts man av en varm, välkomnande och samtidigt avslappad känsla - ett hem att älska och trivas i!
Vi finner bl a ett härligt toppmodernt kök med stora ytor, öppen spis och dubbeldörrar som leder ut till trädgården i två väderstreck. Vardagsrum och matsal i vinkel med utsikt mot poolen och två utgångar till trädgården. Fyra sovrum och två badrum, samt ett tillbyggt gästhus med separat ingång som även det rymmer sovrum samt eget badrum. Vattenburen golvvärme installerad i hela huset som säkerställer optimal komfort året runt.
Utemiljön är något utöver det vanliga och måste upplevas! Här hittar vi ett underbart poolområde, helt insynsskyddad och med ett enormt trädäck som är alldeles nylagt. Poolen ligger som ett glittrande smycke omgivet av flera olika sittgrupper vilket gör det idealiskt för både sociala sammankomster och lugna stunder. Oavsett om du vill sola, läsa en bok eller umgås med vänner och familj, finns det en plats för varje tillfälle. Här finns även ett härligt utespa där du kan koppla av och låta dagens stress rinna av dig.
I den vackert arkitektritade trädgården frodas grönskan, här finns sittplatser i alla väderstreck att njuta av och där man alltid kan hitta sol eller skugga. Här är en riktig oas och en plats där man vill stanna tiden!
Detta är inte bara ett hus, utan ett hem fyllt med möjligheter och minnen som väntar på att skapas. Missa inte chansen att förvärva detta unika boende, kontakta mäklaren för visning och mer information!
Välkommen in i det här ljuvliga huset, här är allt smakfullt och noga utvalt. Ljuset flödar in genom alla fönster och huset andas sommar och semester!
Vi kommer in i en hall med smakfulla rustika klinkers tonade i brons vid entrén, i resten av hallen liksom i hela övriga huset ligger en vacker vitpigmenterad parkett. Väggarna är målade i vitt och den svängda trappan till ovanvåningen ger en fin karaktär till rummet.
I hallen finns en mindre gästwc med samma klinkers som i hallen på golvet, vitt kakel på väggarna och kommod i beige.
Vi väljer att gå rakt fram och kommer in i ett härligt vardagsrum i vinkel där ena delen används som vardagsrum och den andra som matsal. Samma vackra golv som i övriga huset och väggarna i vitt, fönsterbrädor i beige sten. En altandörr leder ut till ett mindre trädäck på husets framsida i rakt söderläge, och en andra altandörr leder ut till det gigantiska trädäcket på husets västra sida där ägarna har skapat ett fantastiskt poolområde! Trädäcket på hela 220 kvm är helt nylagt och fritt från insyn, här ryms en stor pool, ett utespa, en rejält kalkad avlastningsyta för grillkvällarna, och flera olika sittplatser.
Vi sliter oss från den fantastiska utemiljön och går in till köket, och vilket kök! Stort, ljust och välkomnande, här möts vi av en enorm köksö med en skiva i grå/beige stenkomposit, och på ena gaveln är ett rustikt slaktarblock monterat. Köket från Ballingslöv går i både matt svart och vitt och harmoniserar på ett smakfullt sätt, vitt kakel på väggen bakom arbetsytan som är i samma sten som köksön. Spishäll från Bora med nedsänkt fläkt. Alla vitvaror är rostfria från Husqvarna, kyl och frys i fullhöjd med is samt bubbelvatten, ångugn, samt inbyggd kaffemaskin. Alla vitvaror från 2012-1013. I taket sitter läckra svarta spots på skenor.
En vacker öppen spis med infällda detaljer i skiffer och mörka träbalkar blir en härlig kontrast till det moderna köket, och vilken känsla att laga frukost när brasan knastrar i bakgrunden!
I bortre delen av köket är en matplats som idag används som lounge, på bägge sidor är dubbeldörrar i glas med spröjs som leder ut dels till husets framsida samt till husets baksida där vi har en stor stensatt uteplats under ett pergolatak. Här binds även den skifferplattorna ihop med trädäcket från poolområdet.
Huset rymmer fyra sovrum, varav ett på nedre plan med badrum en suite med dusch och egen utgång till poolområdet. Här är helkaklat i vitt och samma bronsfärgade plattor som i hallen. Sovrummet har målade väggar i vitt och vackra detaljer i gjutjärn från murstocken.
Bakom köket har vi tvättstugan, klinker i svart och vitt, skåpsinredning i vitt. Svart kakel på väggen. Tvättmaskin och torktumlare från Husqvarna. Utgång till trädgårdens baksida där man ostört kan låta tvätten torka i solen.
Vi tar den vitmålade trappan till ovanvåningen, här möts vi av ett stort allrum med stora fönster i takkupan. Åt ena hållet har vi två sovrum, båda med snedtak samt plats för dubbelsäng. I andra änden har vi ett större sovrum, också det med snedtak och utgång till en överbyggd balkong i sydöstläge med utsikt mot skogen. Klädkammare.
Här finns ytterligare ett badrum med snedtak och takfönster ger ett härligt ljus. Helkaklat med beige klinker och vitt kakel, badkar från Nordurit samt dusch bakom glasvägg med svarta profiler. Svart inredning som matchar övriga detaljer. Golvvärme.
Tillbyggt till huset finns en gästavdelning med egen ingång, här finner vi ett stort sovrum med öppet upp i nock, vita väggar och spots i taket. Även här är vattenburen golvvärme. Här ryms en dubbelsäng samt en eller ett par barnsängar. På golvet ligger beige klinker vid entrén, i övriga rummet samma vackra parkett som i resten av huset. Dubbeldörrar i glas med spröjs leder ut till en uteplats med skifferplattor.
Eget badrum, helkaklat i vitt och beige och med ångdusch. Snyggt vaskskåp i mörkt grått med kalkstensplatta.



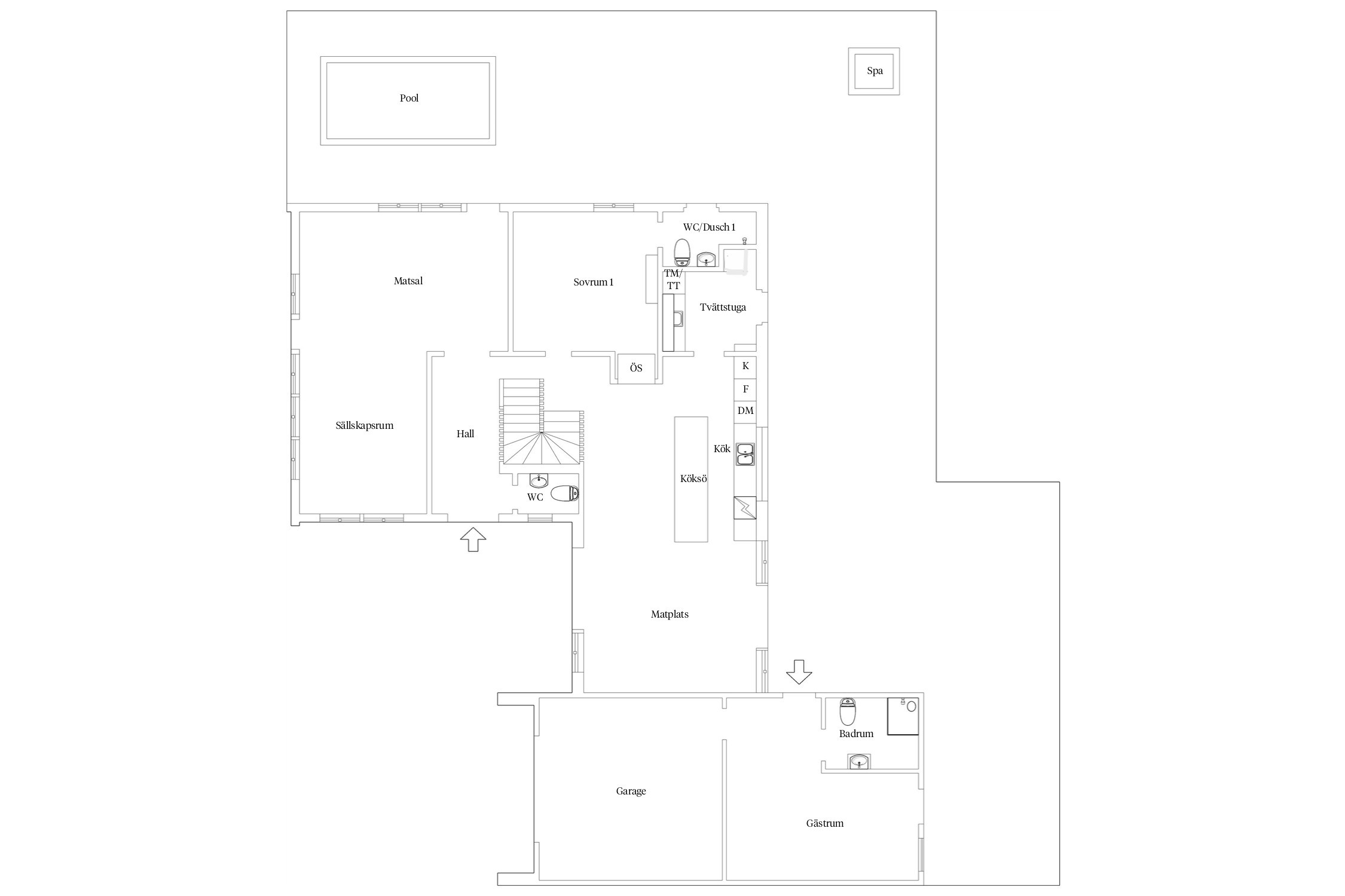
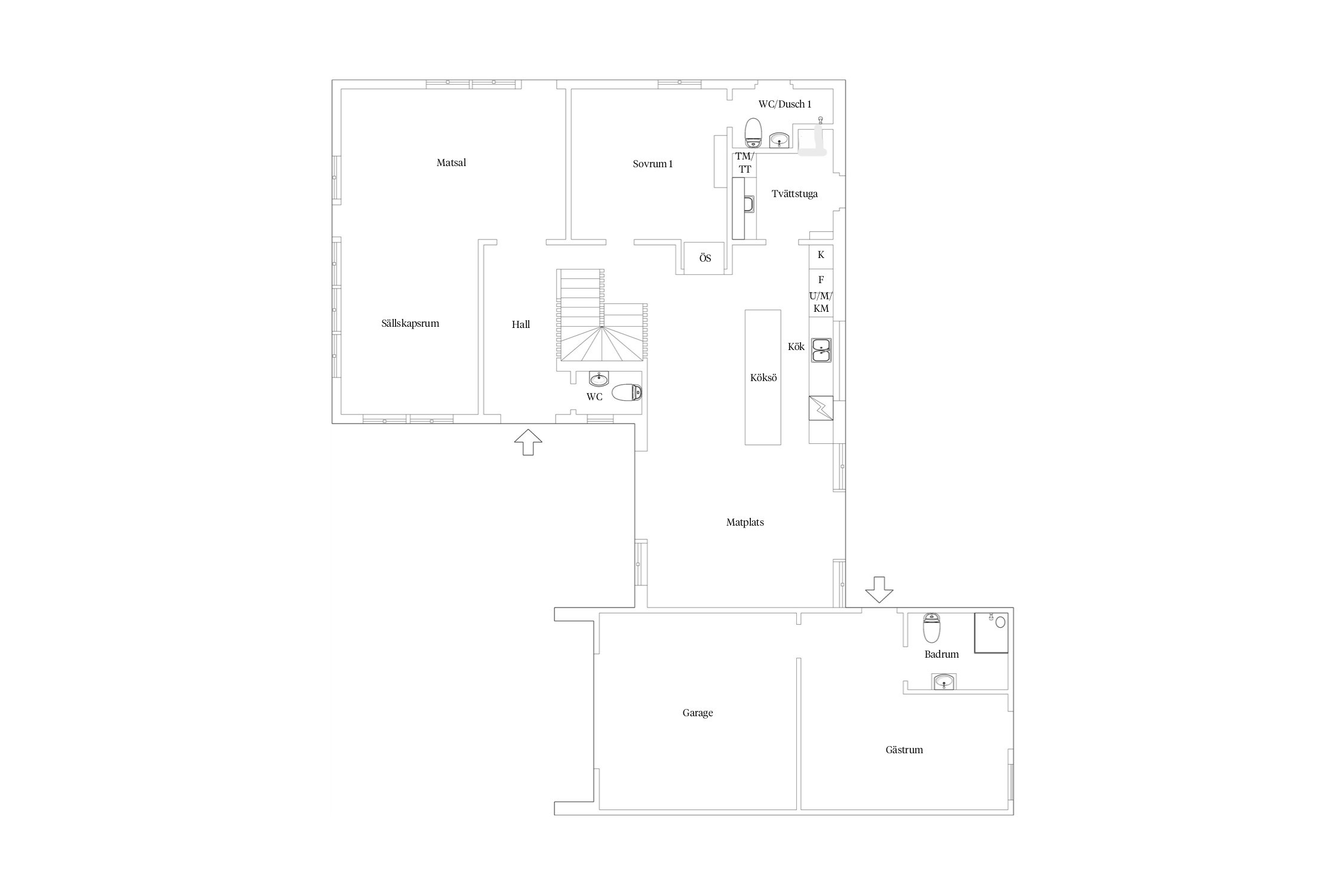
Planskiss ovanvåning
Planskiss entréplan
Planskiss entréplan med uteplatser
Hemmeslöv 44:200
*Areauppgifter enligt taxeringsinformationen
*Tillbyggt 2020
Huset har genomgått en grundlig renovering där bla vattenburen golvvärme har installerats, ventilationen har bytts till FTX, nytt tak, nytt elsystem, vattenrör, samtliga ytskikt mm. Se separat lista för samtliga åtgärder.
Gästhus samt isolerat garage ihopbyggt med boningshuset
På husets västra sida finns ett enormt nylagt trädäck som rymmer saltvattenpool, utespa, flera olika sittplatser etc , helt fritt från insyn. Här har ägarna skapat en riktig oas som måste upplevas på plats!
På södra sidan har vi ett mindre trädäck i skydd under balkongen, här njuter man årets första strålar.
På norra sidan ligger skifferplattor under ett pergolatak, här ryms både att stort matbord samt en uteplats till gästavdelningen.
Kommunalt vatten, Kommunalt avlopp.
Tomten är rejält tilltagen och vackert arkitektritad med frodig grönska. Här finns flera olika plats att njuta av, vilken blir din favorit?
Isolerat garage med elport samt två parkeringsplatser som rymmer två bilar var.
Detaljplan (1991-11-27)
Gemensamhetsanläggning: Båstad hemmeslöv ga:21 ändamål: Vägar, Grönområden
Fiber
Driftkostnader och elförbrukning är inhämtade från säljaren och bör endast ses som en uppskattning. Kostnaden kan variera och baseras på förbrukning och avtal.
Det finns 5 st pantbrev uttagna om sammanlagt 2 343 000 kr
Säkerligen är detta en av Sveriges mest omtalade sommarorter. Belägen på vackra Bjärehalvön bjuder Båstad på en kombination av bad och nöjesliv, men ger samtidigt sken av en stilla småstad med fantastisk natur där böljande fält, härliga stränder och karga klippor spelar in. Det är inte för inte som över en miljon turister väljer att årligen besöka denna plats.
Kommunen har en oerhört tilldragande miljö för både boende och friluftsliv. Mycket tack vare sin direkta närhet till havet, men även det vackra och omväxlande landskapet med kala klippor, långgrunda sandstränder och omsorgsfullt brukad jord gör att många väljer att besöka Båstad. Många av de ursprungliga sommarstugorna finns kvar från den tiden då det endast bodde sjömän och bönder här, och även om de flesta kåkar nu såklart moderniserats så blänker den historiska charmen igenom. Då kommunen är en växande region är efterfrågan på nya bostäder stor.
Båstad är en nöjesmetropol där främst de berömda, kändistäta Tennisveckorna står i fokus. Förutom den klassiska tennisturneringen, Swedish Open lockar även det heta nöjeslivet då ortens alla uteställen, nattklubbar och barer öppnar sina portar och bjuder på ordentlig fest, nätterna igenom.
Under de ljumna sommarkvällarna kan man vandra runt i den charmiga hamnen och titta på båtar, äta glass eller dricka paraplydrinkar. När sommaren är över njuter du istället av friska promenader och uppfriskande vinterbad i den krispiga havskylan. Vill du slippa sommarstressen och istället njuta av lugnet kan du bege dig till den lilla pittoreska byn Kattvik, där du harmonifylld kan njuta av att plocka äpplen på Kattviks fruktodling.
Tågstationen i Båstad erbjuder bra pendlingsmöjligheter med både tåg och buss och det är enkelt att ta sig vidare till närliggande Malmö, Helsingborg, Halmstad men också till Köpenhamn. Närmaste flygplats ligger i Ängelholm och härifrån tar du dig till Stockholm på ca en timme. För dig som väljer bilen kommer du snabbt ut till E6an där Malmö ligger ungefär en timmes bilfärd bort.
Idrottsutbudet är stort med bland annat tennis, golf, friidrott, fotboll och segling. Barnfamiljer som väljer att slå sig ner i Båstad har ett stort urval på barnomsorg med fyra F-6-skolor, en F-9-skola och en 7–9-skola. I Båstad finns även totalt nio kommunala förskolor, två öppna förskolor och fyra fristående förskolor utspridda på hela vackra Bjärehalvön. Även två gymnasieskolor finns att välja mellan, en kommunal och en fristående.
Köpa, sälja eller värdera bostad i Riviera? Kontakta våra mäklare i Båstad! Passa också på att anmäla dig till vår kostnadsfria söktjänst Boagenten som hjälper dig att hitta ditt drömboende.
Kontakta mäklaren om du behöver hjälp att ta fram en boendekalkyl.
När du köper din bostad genom Bjurfors kan du ansöka om bolån till en förmånlig ränta hos våra banksamarbetspartners Söderberg & Partners och SEB.
Bokad visning.
Ansvarig mäklare