-
Köpa
Köpa -
Sälja
Sälja - Hitta bostad
- Skapa bevakning
- Hitta mäklare
Rymlig familjevilla med pool
Åkarp, Burlöv
*taxeringsinformation
Bokad visning.
Kontakta mäklaren för mer information gällande budgivningen.
Stilrent hus om 200 kvm med pool, öppen planlösning, braskamin och stort allrum. 5 sovrum på lugn gata nära skola och pendling.
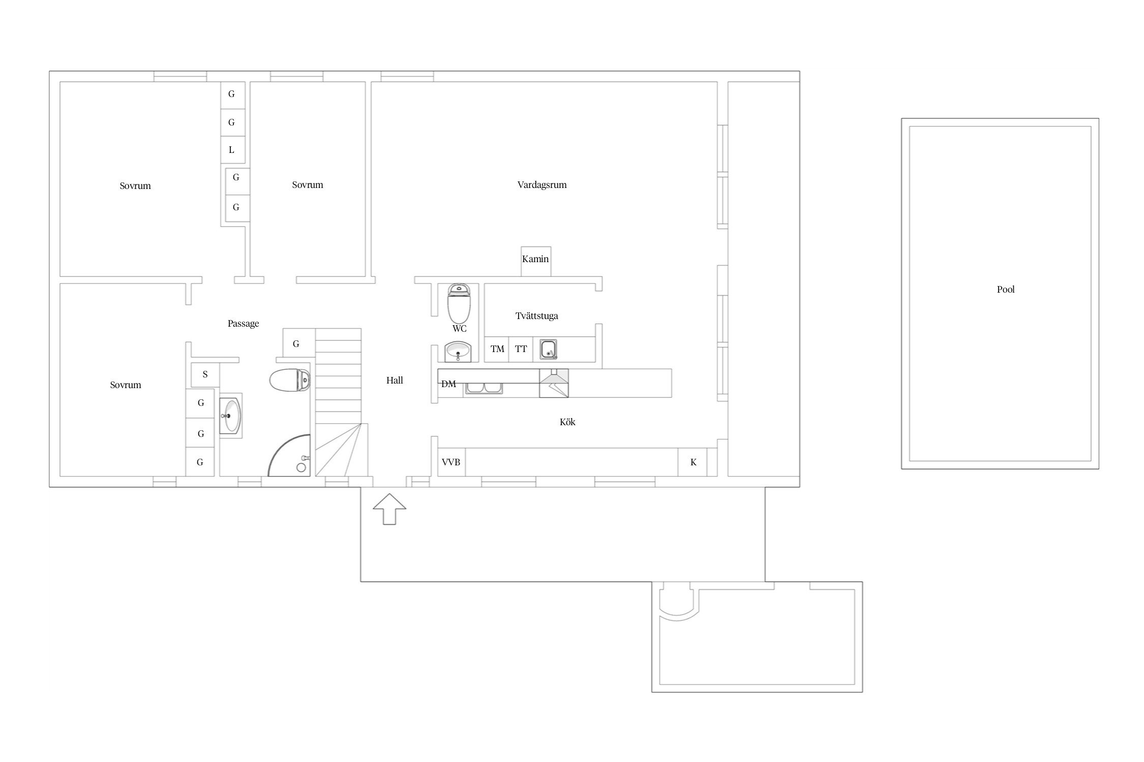
Välkommen till Baravägen 13 – ett generöst och välplanerat 1½-planshus om 200 kvm, beläget på lugn återvändsgata med närhet till både skola och utmärkta pendlingsmöjligheter mot Malmö och Lund.
Här möts vi av en trivsam och social öppen planlösning, där vardagsrum, matplats och ett stilrent kök samspelar på bästa sätt. I vardagsrummet skapar braskaminen både värme och atmosfär. Huset erbjuder hela fem sovrum, vilket gör det perfekt för den större familjen eller för dig med behov av flexibla rum. På ovanvåningen väntar ett stort och luftigt allrum med öppet upp till nock, en härlig plats för samvaro och avkoppling.Utemiljön är en av hemmets stora höjdpunkter. Här finns en pool, ett generöst trädäck och ett härligt västerläge som bjuder på både eftermiddags- och kvällssol, optimalt för sommarens umgänge.
Ett boende som kombinerar ytor, funktion och trivsel på ett sätt som sällan erbjuds i området. Varmt välkommen på visning!
När vi kliver in genom entrédörren möts vi av en välkomnande hall med goda avhängningsmöjligheter och en inbjudande känsla av rymd. Direkt från hallen leds vi vidare in i det stora och luftiga vardagsrummet, en självklar samlingspunkt för både vardag och fest. Här flödar ljuset generöst och rummet ligger i harmonisk, öppen kontakt med både matplatsen och det välplanerade köket. En braskamin pryder rummet och skapar både värme och trivsam stämning under årets kallare månader. Från vardagsrummet och matplatsen når vi dessutom enkelt bostadens härliga utemiljö.
Det moderna köket erbjuder gott om skåp och lådor för praktisk förvaring och har generösa arbetsytor. De vita köksluckorna skapar ett stilrent intryck och den klassiska bänkskivan i Virrvarr-mönster adderar tidlös karaktär. I direkt anslutning till köket ligger den praktiska tvättstugan, perfekt placerad för en effektiv vardag.
Från de sociala ytorna kliver vi rakt ut till en inbjudande utemiljö runt poolen. Här breder ett stort trädäck ut sig med gott om plats för loungedel, matgrupp och solstolar. En stor markis kan enkelt rullas ut när skugga önskas. Läget mot väster ger härlig eftermiddags- och kvällssol, vilket gör detta till en optimal plats för sommarens alla stunder.
I entréplanet finns dessutom ett rymligt badrum med dusch samt tillgång till 3 sovrum placerade för flexibilitet, väl lämpade för både barn, gäster, tonåringar eller som hemmakontor. Ett av dessa sovrum används idag som walk in closet.
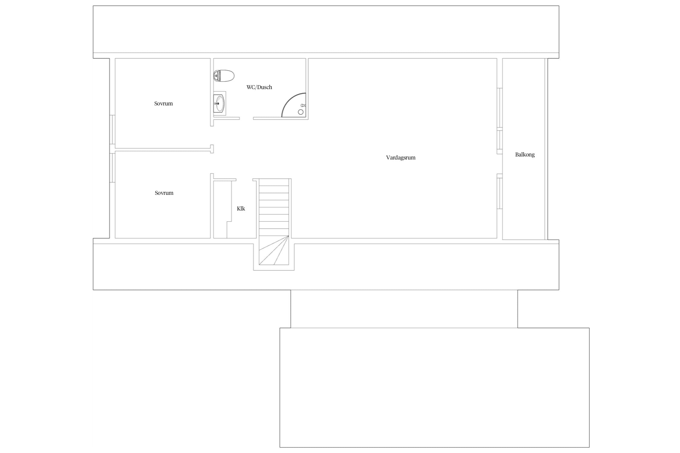
När vi rör oss upp till ovanvåningen möts vi av en ljus hall som knyter samman det övre planet. Här finns ytterligare två sovrum samt en klädkammare för god förvaring.
På ovanvåningen finner vi också ett generöst allrum, perfekt som tv-rum, lekrum eller en lugnare vardagsdel. Allrummet har öppet upp till nock, vilket skapar en fantastisk rymd och en luftig atmosfär. Härifrån når vi dessutom den trevliga balkongen, där man gärna njuter av dagens första eller sista solstrålar.
Kök. Golv: parkett. Köksfabrikat: IKEA. Köksluckor: vita. Utrustning: induktionshäll (Electrolux), ugn (Electrolux), fläkt (Electrolux), kyl-fullhöjd (Husqvarna) och diskmaskin (Husqvarna). Frysen finns i förrådet i anslutning till garaget.
Badrum. Golv: klinkers. Väggar: kakel. Tak: spotlights. Utrustning: toalett, dusch och tvättställ.
Gästtoalett. Golv: klinkers. Väggar: kakel. Utrustning: toalett och tvättställ.
Tvättstuga. Golv: klinkers. Väggar: målade. Utrustning: tvättho, tvättmaskin och torktumlare.
Badrum ovanvåning. Golv: klinkers. Väggar: kakel. Utrustning: toalett, dusch och tvättställ.



Karstorp 4:34
*taxeringsinformation
2007 Markis.
2007 Kök.
2007 Badrum nedervåning.
2007 Gäst-WC.
2012 Badrum ovanvåning.
2013 Kamin.
2015 Pool.
2019 Byte samtliga fönster.
2019 Byte trä fasad fram och baksida.
2023 Ny värmepump till poolen.
2026 Nytt papptak på garage.
Pool
Stort trädäck med pool, läge väster.
Balkong, läge väster.
Kommunalt vatten året om. Kommunalt avlopp
Garage med plats för 1 bil.
Uppställningsplats med plats för 1 bil.
Stadsplan (1971-12-17)
Gemensamhetsanläggning: Burlöv karstorp ga:1 ändamål: Radio- TV och/eller tele
Internet: via fiber
Notera att under posten "Uppvärmning" är även hushållselen inkluderad. Utöver de 64 000 kr/år tillkommer ca 8 100 kr för uppvärmningen av poolen och ca 7 900 kr för laddning av el-bil. Under posten "VA" är även renhållning inkluderad.
Det finns 3 st pantbrev uttagna om sammanlagt 2 596 000 kr
Åkarp är byn precis utanför staden. Här bor du bekvämt och lugnt, nära till skolor, mataffär och fritidsaktiviter för dig och barnen. Malmö och Lund ligger på bekvämt pendlingsavstånd och till Köpenhamn tar man sig smidigt med tåg eller bil.
Alnarp med lantbruksuniversitet ligger väster om Åkarp. Förutom Lantbruksuniversitetet erbjuder Alnarp en botanisk trädgård, Alnarpsparken. I parken ligger Alnarps slott från 1862. Slottet används idag av universitetet och här finns Sveriges lantbruksuniversitets trädgårdscentrum, och landets största trädgårdsbibliotek.
Besök av Carl von Linné hade Åkarp 1749. Då valde Carl von Linné att stanna till i Åkarp för att samla in anteckningar om den skånska dialekten, som på den tiden var en blandning av danska och svenska. Bland annat ska det finnas anteckningar om ordet ”kelen” som han på svenska översatte som klemig.
På Möllegården finner du Charlotte Weibulls Folklivscenter. Möllegården fick i donation Charlotte Weibulls unika samling av folkdräkter, dräktsilver och vävnader. I den unika samlingen av dockor finns 2 000 olika dräktmodeller som berättar om dräktskick från nästan varje socken och härad i hela Sverige.
Från Åkarp kommer det även mer nutida kändisar. Regissören Lukas Moodysson växte upp här tillsammans med sin mamma. Senare flyttade han till Stockholm för att bland annat göra filmerna Lilja 4-ever och Fucking Åmål. Även komikern och TV-profilen Robin Paulsson har sina rötter i Åkarp.
Köpa, sälja eller värdera bostad i Åkarp? Kontakta våra mäklare i Öresundsregionen! Passa också på att anmäla dig till vår kostnadsfria söktjänst Boagenten som hjälper dig att hitta ditt drömboende.
Kontakta mäklaren om du behöver hjälp att ta fram en boendekalkyl.
När du köper din bostad genom Bjurfors kan du ansöka om bolån till en förmånlig ränta hos våra banksamarbetspartners Söderberg & Partners och SEB.
Bokad visning.
Kontakta mäklaren för mer information gällande budgivningen.
Kontakta mäklareAnsvarig mäklare