-
Köpa
Köpa -
Sälja
Sälja - Hitta bostad
- Skapa bevakning
- Hitta mäklare
Välskött 1½-plansvilla 166 kvm på hörntomt
Åkarp, Burlöv
*Areauppgifter enligt taxeringsinformationen
Bokad visning.
Bokad visning.
Välskött 1½-plansvilla 166 kvm på hörntomt. Renoverat kök, två badrum och bastu, solpaneler och barnvänligt läge i lugnt område
Välkommen till Harjagersvägen 2 och denna välskötta 1½-plansvilla i bra skick om 166 kvm på stor hörntomt. Tre sovrum med flexibel planlösning att kunna anpassas efter egna behov och önskemål. Renoverat kök i modern stil och två badrum, ett på varje våningsplan var av ett med bastu. Generösa ytor med både vardagsrum och ljust allrum öppet upp till nock på ovanvåningen. Stenlagd uteplats i angränsning till uppvuxen trädgård utan insyn. Solpaneler på taket som bidrar till låga driftskostnader. Bra läge i barnvänligt område på lugn återvändsgata nära förskola, skola, mataffär och tågstation. Välkomna på visning!
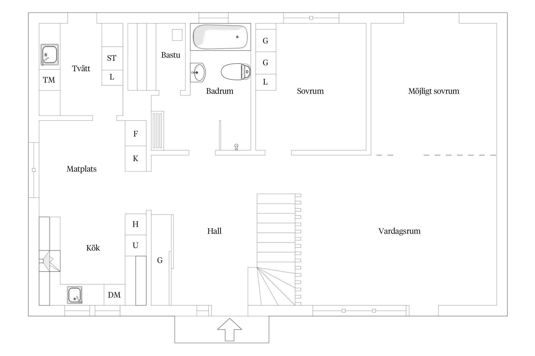
Vi välkomnas in i en ljus och inbjudande hall som ger ett trevligt första intryck av bostaden. Här finns goda avhängningsmöjligheter i form av en stor skjutgarderob samt en naturlig fördelning mot husets sociala ytor.
Köket är smakfullt renoverat i en modern och tilltalande stil med stilrena materialval och generösa arbetsytor. Här erbjuds utmärkta förvaringslösningar samt plats för matbord för sex personer, vilket gör köket till en naturlig samlingspunkt för både vardag och fest. I direkt anslutning till köket finns tvättstugan med bra ytor för klädvård och extra förvaring.
Vardagsrummet är generöst tilltaget och disponerat i vinkel, med fint ljusinsläpp och gott om plats för både soffgrupp och matsalsmöblemang. Rummet bjuder på en trivsam atmosfär och har direkt kontakt med uteplats och trädgård, vilket suddar ut gränsen mellan inne och ute under årets varmare månader. För den som önskar finns möjlighet att på ett naturligt sätt dela av en del av rummet för att skapa ytterligare ett sovrum.
På bottenvåningen finns bostadens master bedroom, ett rogivande sovrum i bra storlek med plats för dubbelsäng och tillhörande möblemang, ett praktiskt och uppskattat upplägg för den som önskar allt på ett plan. Här finns också ett helkaklat och fräscht badrum med en anslutande bastu, en uppskattad detalj som ger en extra känsla av vardagslyx.
En trappa upp från hallen tar oss vidare till ovanvåningen, där vi möts av en mer privat del av bostaden. Här finns två rogivande sovrum i bra storlek, båda med goda förvaringsmöjligheter och plats för både säng och arbetsyta. Det övre planet kompletteras av ett allrum eller tv-rum som med fördel kan användas som lekyta, hemmakontor eller extra sällskapsrum, perfekt för familjens olika behov. Rummet har en härlig karaktär med öppet upp till nock samt ett stort gavelfönster som ger ett fint ljusinsläpp. Vi har även ett helkaklad wc med dusch som på ett praktiskt sätt servar våningsplanet och bidrar till en smidig vardag.



Planlösning
Planlösning
Karstorp 4:211
*Areauppgifter enligt taxeringsinformationen
2023 Installerat solceller.
2016 Renoverat köket.
2014 Renoverat badrum ovanvåning.
2000 Renoverat badrum bottenvåning.
1981 Garage byggt-
Stenlagd uteplats, läge söder.
Stenlagd uteplats, läge norr.
Kommunalt vatten, Kommunalt avlopp.
Uppvuxen trädgård med gräsmatta, planteringar, häckar mm.
Garage med plats för 1 bil.
Uppställningsplats för 2 bilar.
Stadsplan (1974-12-05)
Gemensamhetsanläggning: Burlöv karstorp ga:1 ändamål: Radio- TV och/eller tele
via fiber
Under posten "El" ingår även uppvärmningen.
2026-07-01 eller efter överenskommelse
Det finns 5 st pantbrev uttagna om sammanlagt 675 000 kr
Åkarp är byn precis utanför staden. Här bor du bekvämt och lugnt, nära till skolor, mataffär och fritidsaktiviter för dig och barnen. Malmö och Lund ligger på bekvämt pendlingsavstånd och till Köpenhamn tar man sig smidigt med tåg eller bil.
Alnarp med lantbruksuniversitet ligger väster om Åkarp. Förutom Lantbruksuniversitetet erbjuder Alnarp en botanisk trädgård, Alnarpsparken. I parken ligger Alnarps slott från 1862. Slottet används idag av universitetet och här finns Sveriges lantbruksuniversitets trädgårdscentrum, och landets största trädgårdsbibliotek.
Besök av Carl von Linné hade Åkarp 1749. Då valde Carl von Linné att stanna till i Åkarp för att samla in anteckningar om den skånska dialekten, som på den tiden var en blandning av danska och svenska. Bland annat ska det finnas anteckningar om ordet ”kelen” som han på svenska översatte som klemig.
På Möllegården finner du Charlotte Weibulls Folklivscenter. Möllegården fick i donation Charlotte Weibulls unika samling av folkdräkter, dräktsilver och vävnader. I den unika samlingen av dockor finns 2 000 olika dräktmodeller som berättar om dräktskick från nästan varje socken och härad i hela Sverige.
Från Åkarp kommer det även mer nutida kändisar. Regissören Lukas Moodysson växte upp här tillsammans med sin mamma. Senare flyttade han till Stockholm för att bland annat göra filmerna Lilja 4-ever och Fucking Åmål. Även komikern och TV-profilen Robin Paulsson har sina rötter i Åkarp.
Köpa, sälja eller värdera bostad i Åkarp? Kontakta våra mäklare i Öresundsregionen! Passa också på att anmäla dig till vår kostnadsfria söktjänst Boagenten som hjälper dig att hitta ditt drömboende.
Kontakta mäklaren om du behöver hjälp att ta fram en boendekalkyl.
När du köper din bostad genom Bjurfors kan du ansöka om bolån till en förmånlig ränta hos vår samarbetspartner SEB.
Bokad visning.
Bokad visning.
Ansvarig mäklare