-
Köpa
Köpa -
Sälja
Sälja - Hitta bostad
- Skapa bevakning
- Hitta mäklare
Lättskött 3:a om 81 kvm med härlig villakänsla i Åkarp
Åkarp, Burlöv
*Kallhyra. Renhållning ingår i avgiften. Det tillkommer två obligatoriska tillägg om totalt 342 kr/mån för vatten/avlopp. För vatten och avlopp debiteras en schablon varje månad och avläsning sker 2 gånger om året, 30 juni och 30 december.
**Areakälla enligt bostadsrättsföreningens mäklarbild/utdrag ur lägenhetsregister.
Bokad visning.
Bokad visning.
Lättskött 3:a med villakänsla, två uteplatser och egen uppfart. Modernt kök, fräscht badrum och ett hem perfekt för paret eller den lilla familjen.
Välkommen till Vallgårdsvägen 27! Ett charmigt och välplanerat bostadsrättsradhus om 3 rum och kök, fördelat på trivsamma 81 kvm. Här får vi allt det bästa av två världar, ett smidigt och bekvämt boende i bostadsrättsform, kombinerat med den efterlängtade villakänslan med egen entré, egen uppfart och två härliga uteplatser. Redan vid ankomst möts vi av den privata parkeringsplatsen precis intill huset, en stor fördel i vardagen och något som verkligen förstärker känslan av att bo i ett eget hus. På framsidan väntar en stenlagd uteplats där vi gärna njuter av dagens första kaffekopp eller kvällssolen efter jobbet. Invändigt möts vi av en genomtänkt och mycket bra planlösning där varje kvadratmeter används på rätt sätt. Köket är modernt och stilrent med gott om arbetsyta och förvaring, samtidigt som det ligger i social anslutning till vardagsrummet. Tillsammans bildar de en ljus och trevlig helhet som bjuder in till både vardagsliv och umgänge. Badrummet är fräscht och kombinerad med tvätt. De två sovrummen erbjuder fina ytor och flexibilitet. Det större sovrummet är rofyllt och har utmärkt förvaring, medan det andra passar lika bra som barnrum, gästrum eller hemmakontor. Från vardagsrummet kliver vi ut på bostadens andra uteplats, en insynsskyddad baksida med trädäck och plats för både matgrupp och lounge.
Helheten gör Vallgårdsvägen 27 till ett hem som verkligen tilltalar både den mindre familjen och paret som önskar lämna villan för ett mer lättskött och bekvämt boende utan att ge avkall på känslan av att bo i ett eget hus. Välkomna på visning!
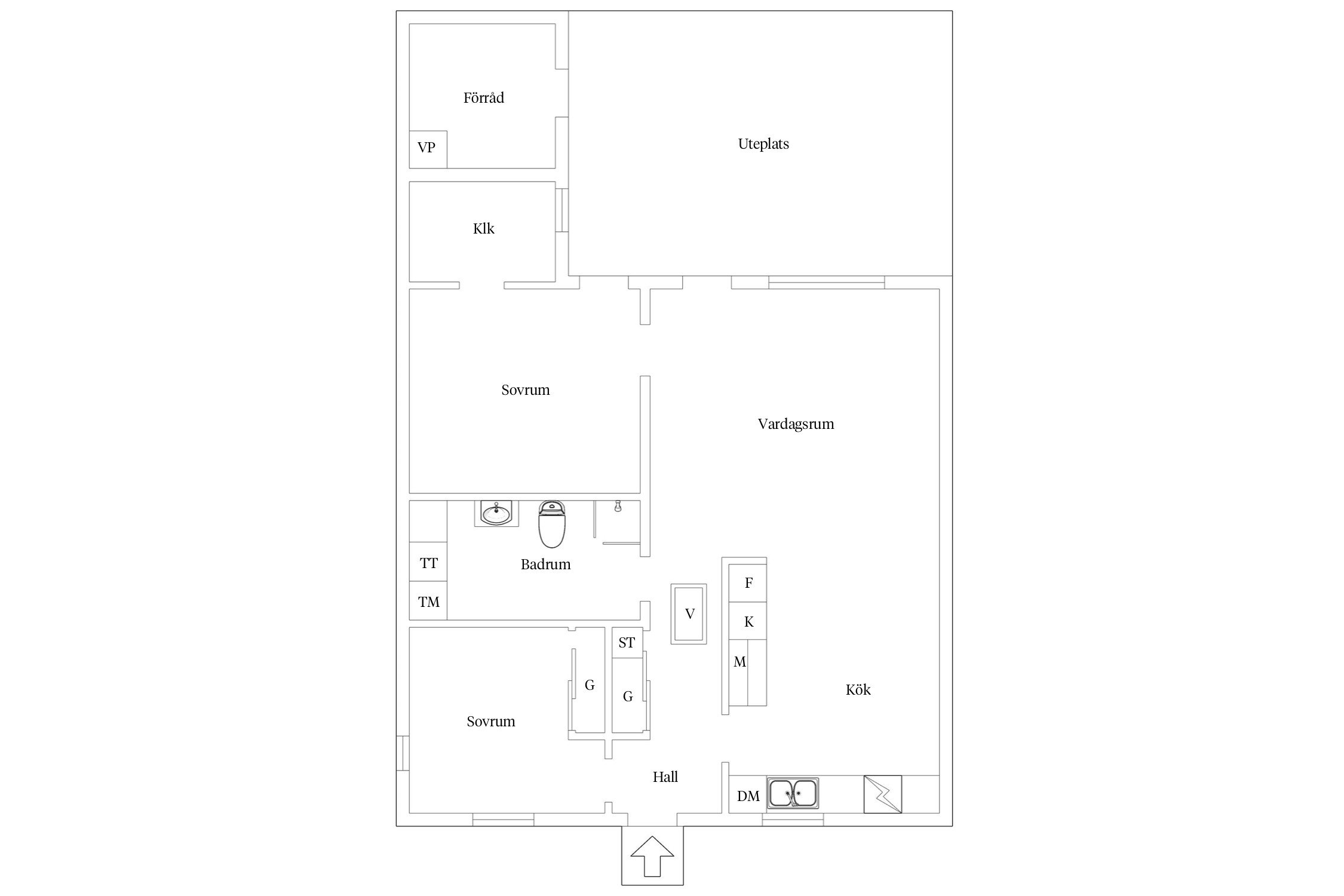
När vi kliver in genom entrédörren möts vi av en inbjudande hall med gott om plats för avhängning av ytterkläder och skor. Direkt till vänster har vi bostadens första sovrum, ett flexibelt rum som lämpar sig väl som masterbedroom, kontor eller gästrum. Här finns goda förvaringsmöjligheter tack vare garderober placerade längs väggen.
Från hallen rör vi oss vidare in mot husets mitt, där det rymliga badrummet är strategiskt placerat mellan de två sovrummen. Badrummet är utrustat med wc, dusch och en separat tvättdel med tvättmaskin, torktumlare och överskåp til praktisk förvaring samt bra yta för klädvård. allt för en smidig och funktionell vardag. På andra sidan badrummet når vi det större av de två sovrummen. Här får vi gott om plats för dubbelsäng och kompletterande möbler, och intill ligger en generös klädkammare som erbjuder utmärkt förvaring.
När vi fortsätter vidare öppnar vardagsrummet upp sig, en ljus och social yta med naturligt ljusinsläpp från baksidans fönster och altandörr. Här ryms både soffgrupp och matplats, och rummet binds fint samman med köket.
Köket ligger på husets högra sida när vi kommer in mot framsidan. Här får vi en funktionell arbetsdel, bra förvaring och moderna vitvaror. Fönstret vetter ut mot uteplatsen och gräsmattan på framsidan, vilket ger en trevlig kontakt mellan inne och ute.
Från vardagsrummet tar vi oss ut till trädgården på baksidan, en insynsskyddad och trivsam plats med trädäck och gott om utrymme för loungemöbler eller matplats. Längst bak i trädgården finner vi förrådet.
På framsidan har vi en generös stenlagd uteplats som fångar solen under stora delar av dagen, samt en gräsyta som ramar in entrén på ett fint sätt. Precis intill finns även den egna parkeringsplatsen, bekvämt och praktiskt.
Kök. Golv: parkett. Köksluckor: Vita. Bänkskiva: Grå laminatbänkskiva. Utrustning: Induktionshäll (2017), fläkt (2017), kyl-fullhöjd /2017), frys-fullhöjd (2017), diskmaskin (2017) och mikrougn (2017).
Badrum/tvätt. Golv: klinkers. Väggar: kakel. Utrustning: toalett, dusch, tvättställ, tvättmaskin (2017) och torktumlare (2017).



Planlösning
Åkarp 23:15
*Areakälla enligt bostadsrättsföreningens mäklarbild/utdrag ur lägenhetsregister.
Kallhyra. Renhållning ingår i avgiften. Det tillkommer två obligatoriska tillägg om totalt 342 kr/mån för vatten/avlopp.
För vatten och avlopp debiteras en schablon varje månad och avläsning sker 2 gånger om året, 30 juni och 30 december.
Stenlagd uteplats, läge söder.
Trädäck, läge norr.
Uppställningsplats för 1 bil.
Bostadsrättens indirekta nettoskuldsättning baseras på föreningens skulder/lån minus föreningens räntebärande tillgångar och likvida medel. Beräkningen är gjord och baseras på senaste tillgängliga årsredovisningen. För mer information kontakta ansvarig fastighetsmäklare.
*Betalas av köpare
Bostadsrättsföreningen Vallhusen äger fastigheten Åkarp 23:11-23:26 och består av 29 hus upplåtna med bostadsrätt varav 15 är radhus och 14 är parhus . Husen stod klara för inflyttning i slutet av juni 2017. Adresserna är Vallgårdsvägen 1-29.
Uteplatsen/trädgården är upplåten mark. Uppvärmningen består av en Frånluftsvärmepump i varje bostad, vattenburen golvvärme.
Föreningen tillåter inte Airbnb och liknande kommersiell uthyrning.
Ekonomiska förvaltningen sköts av Bredablick.
Föreningen höjde avgiften med 2 % 2026-04-01.
(Kontrollerat 2026-04-01)
Föreningens fastighet är försäkrad hos Dina Försäkringar Sydost. I försäkringen ingår ansvarsförsäkring för styrelsen samt kollektivt bostadsrättstillägg för medlemmar.
Utförda renoveringar:
2023 Föreningen har installerat solpaneler på 25 bostäder. De övriga 4, hus nr 3, 11, 25 & 26, har beställt och installerat i egen regi.
Planerade renoveringar:
Föreningen har beslutat införa IMD-el (gemensam el). Kommer förhoppningsvis bli infört under 2026.
Målning av gemensamma ytor.
(Kontrollerat 2026-03-18)
Varje hus har en egen biluppställningsplats.
Föreningen har 15 extra parkeringsplatser. 5 av dem är för besökande, 10 platser kan de boende hyra för 300 kr/mån. I dagsläget är det ingen kö.
(Kontrollerat 2026-03-18)
Tv och bredband via Burlövs öppna stadsnät.
Husens placering bildar en naturlig gård med gemensamma grönytor, parkeringsplatser och lekplats.
Varje hus har ett förråd i direktanslutning till bostaden.
Besök gärna föreningens hemsida http://vallhusen.se/.
Information som berör föreningen är inhämtad via årsredovisning, stadgar och kontakt med föreningen. Avvikelser kan förekomma och som köpare uppmanas du att själv kontrollera samtliga uppgifter, framförallt om något är av extra stor betydelse för dig som köpare.
Efter överenskommelse
Åkarp är byn precis utanför staden. Här bor du bekvämt och lugnt, nära till skolor, mataffär och fritidsaktiviter för dig och barnen. Malmö och Lund ligger på bekvämt pendlingsavstånd och till Köpenhamn tar man sig smidigt med tåg eller bil.
Alnarp med lantbruksuniversitet ligger väster om Åkarp. Förutom Lantbruksuniversitetet erbjuder Alnarp en botanisk trädgård, Alnarpsparken. I parken ligger Alnarps slott från 1862. Slottet används idag av universitetet och här finns Sveriges lantbruksuniversitets trädgårdscentrum, och landets största trädgårdsbibliotek.
Besök av Carl von Linné hade Åkarp 1749. Då valde Carl von Linné att stanna till i Åkarp för att samla in anteckningar om den skånska dialekten, som på den tiden var en blandning av danska och svenska. Bland annat ska det finnas anteckningar om ordet ”kelen” som han på svenska översatte som klemig.
På Möllegården finner du Charlotte Weibulls Folklivscenter. Möllegården fick i donation Charlotte Weibulls unika samling av folkdräkter, dräktsilver och vävnader. I den unika samlingen av dockor finns 2 000 olika dräktmodeller som berättar om dräktskick från nästan varje socken och härad i hela Sverige.
Från Åkarp kommer det även mer nutida kändisar. Regissören Lukas Moodysson växte upp här tillsammans med sin mamma. Senare flyttade han till Stockholm för att bland annat göra filmerna Lilja 4-ever och Fucking Åmål. Även komikern och TV-profilen Robin Paulsson har sina rötter i Åkarp.
Köpa, sälja eller värdera bostad i Åkarp? Kontakta våra mäklare i Öresundsregionen! Passa också på att anmäla dig till vår kostnadsfria söktjänst Boagenten som hjälper dig att hitta ditt drömboende.
Kontakta mäklaren om du behöver hjälp att ta fram en boendekalkyl.
När du köper din bostad genom Bjurfors kan du ansöka om bolån till en förmånlig ränta hos våra banksamarbetspartners Söderberg & Partners och SEB.
Bokad visning.
Bokad visning.
Ansvarig mäklare