-
Köpa
Köpa -
Sälja
Sälja - Hitta bostad
- Skapa bevakning
- Hitta mäklare
Modern och ljus tvåa med attraktivt läge och stor balkong
Eslöv - Centralt, Eslöv
*Vatten, Värme och standard utbud för tv kanaler ingår i månadsavgiften.
**Enligt bostadsföreningen
Bokad visning.
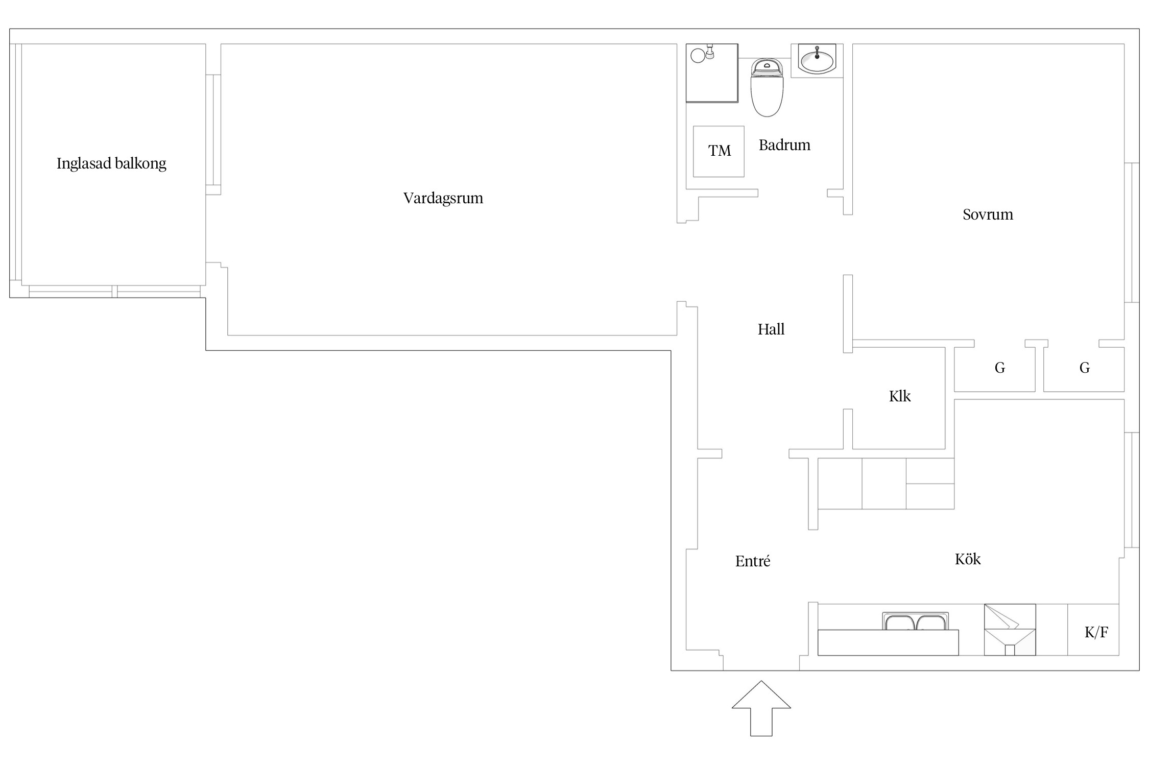
Här har du möjlighet att förvärva en modern och välplanerad tvåa med stor inglasad balkong i söderläge. Lägenheten präglas av ett fantastiskt ljusinsläpp från de stora fönsterpartierna, tillsammans med en fräsch standard som kombinerar både funktionalitet och komfort, i badrummet finns bland annat tvättmaskin vilket underlättar vardagen.
Det rymliga vardagsrummet är hemmets centrala punkt och bjuder på ett härligt ljusinsläpp. Här finns gott om plats för både soffgrupp och annan möblering. Från vardagsrummet har du direkt tillgång till den oslagbara inglasade balkongen som rymmer en större grupp utemöbler och är perfekt för sociala tillställningar.
Köket är ljust och inbjudande med gott om förvaringsutrymme och arbetsyta, här finns även plats för att möblera en generös matplats med plats för fyra sittplatser. Lägenheten erbjuder dessutom ett helkaklat badrum med badkar samt ett rymligt sovrum med plats för en större säng och extra förvaring.
På populära Stallgatan bor man med gångavstånd till tågstationen, centrum och stadens breda utbud av affärer, nöjen och restauranger. Här finns utmärkta kommunikationsmöjligheter till Lund, Malmö och Helsingborg för den som pendlar.



*Enligt bostadsföreningen
Vatten, Värme och standard utbud för tv kanaler ingår i månadsavgiften.
Föreningen har 51 parkeringsplatser och 29 garageplatser.
Avgiften för en parkeringsplats är 200 kr per månad.
Avgiften för ett garage, är 450 kr per månad.
Tillämpas kösystem, vänligen kontakta HSB för att ställa sig i kölistan.
Bostadsrättens indirekta nettoskuldsättning baseras på föreningens skulder/lån minus föreningens räntebärande tillgångar och likvida medel. Beräkningen är gjord och baseras enbart på den senaste tillgängliga årsredovisningen. För mer information kontakta ansvarig fastighetsmäklare.
*Betalas av säljare
Föreningen äger och förvaltar byggnaderna på fastigheterna Lammet 9 respektive Lammet 10.
Gatorna är Vångavägen och Stallgatan i Eslöv.
Föreningens lägenheter fördelas på 38 st 1 rok, 89 st 2 rok samt 3 st 3 rok.
Bostadsrättsföreningen kräver ett individuellt medlemskap i HSB Skåne.
Föreningen höjde avgiften med 5,5% från januari 2026 (Kontrollerat 2026-02-02).
Föreningen är fullvärdesförsäkrad hos Länsförsäkringar med bostadsrättstillägg.
Föreningen följer en underhållningsplan.
Vänligen se årsredovisning för specifika åtgärder.
Föreningen har 51 parkeringsplatser och 29 garageplatser.
Avgiften för en parkeringsplats är 170 kr per månad.
Avgiften för ett garageplats är 450 kr per månad.
Det tillämpas kösystem, vänligen kontakta HSB för att ställa sig i kölistan. I dagsläget finns det lediga platser (kontrollerat 2026-02-02).
I månadsavgiften ingår Tele2 standardutbud. Bredband levereras av Telenor och de boende får teckna eget abonnemang.
Det finns grillar samt lekplats.
I varje hus finns en tvättstuga samt ett cykelförråd. Bastun finns i källaren på adress Stallgatan 4. Dusch och ombyteslokal finns. För avfallshantering finns särskilda miljöhus på gården.
Föreningens hemsida: https://www.hsb.se/skane/brf/nordvast/
Den centrala stadskärnan i Eslöv ligger omringad av flera vackra parker och grönskande områden. Här finner du ett stort utbud av butiker och restauranger samt ett gediget serviceutbud med allt du kan tänkas behöva. På fritiden kan du ägna dig åt golf, simning, padel eller promenera på några av de fina motionsslingorna i området. Eslöv erbjuder dessutom utmärkta kommunikationsmöjligheter med buss och tåg som gör att du smidigt kan ta dig till de kringliggande städerna.
Det finns gott om smultronställen att upptäcka i den här orten som ligger på slätten mitt i Skåne. Allt från natursköna strövområden till platser med stort kulturhistoriskt värde. Eslövs kommun har cirka 30 000 invånare, där de flesta bor i tätorten. Eslöv siktar dessutom på att vara Skånes bästa kommun att bo i 2025, just därför expanderar orten boendemöjligheterna med flera spännande nybyggnadsprojekt. På gatorna i centrumområdet runt trevliga Stora Torg ligger flera äldre fastigheter som hyser kontor och bostäder. Sedan 2010 är torget bilfritt och torget börjar återta sin plats som marknads och mötesplats. Torghandel är som livligast lördags- och onsdagsförmiddagar. Detta är Eslövs kommersiella kärna som har ett stort utbud av mindre butiker, mataffärer och restauranger, där ett flertal av dessa även har uteservering under sommarmånaderna. I centrum finns även så biograf och hotell Stenson med nattklubb och konferens. År 2019 öppnades också köpcentret Flygstaden.
Järnvägsstationen från 1914 och flera andra bebyggelser i centrum sätter prägel på staden med sitt karaktäristiska röda tegel. I de kringliggande områdena finns tidstypiska fristående enfamiljshus uppförda i mitten och senare delen av 1900-talet. Senare med åren har flera områden byggts upp runtomkring och lett till att staden har expanderat och omringats av lugna familjekvarter med bland annat radhus och fristående enfamiljshus i lummiga trädgårdar. Trollsjön är ett av dessa trevliga boendeområde med fristående enfamiljshus i lugnt läge invid ett grönområde väster om centrum. En uppskattad plats med stora aktivitetsytor där vitsipporna klär gräsmattorna framåt vårkanten. I Trollsjöområdet anordnas flera event och du kan exempelvis ägna dig åt frisbeegolf, picknick, grillning eller låta barnen leka på den fina lekplatsen med fantasitema.
Den aktive kan bland annat spela golf på Eslövs GK, träna på gym, spela padel eller motionera på på något av motions- och promenadslingorna i området. Slingorna är öppna för alla och ligger lättillgängligt. En av dessa är Hälsans stig, en sex kilometer lång promenadslinga genom Eslöv som också är handikappanpassad. Karlsrobadet har inomhusbassäng, äventyrsbad, bowlinghall och ett sommaröppet utomhusbad. Kvarngatans skatepark är också en populär fritidssyssla för flera av de barn och ungdomar som bor i Eslöv. För barnfamiljerna i Eslöv finns det stor tillgång till allt ifrån flera förskolor, skolor till gymnasieskola och vuxenutbildning. Eslöv har mycket goda kommunikationsförbindelser med både tåg och buss. För den som pendlar är det värt att känna till att Öresundståget tar dig till Lund på omkring 10 minuter och till Malmö på omkring 30 minuter. Med Pågatåget kan du dessutom ta dig till Helsingborg på omkring 40 minuter, Hässleholm på ca 30 minuter, samt till Kristianstad och Köpenhamn med direkttåg på cirka en timme.
Köpa, sälja eller värdera bostad i centrala Eslöv? Kontakta Bjurfors mäklare i Eslöv! Passa också på att anmäla dig till vår kostnadsfria söktjänst Boagenten som hjälper dig att hitta ditt drömboende.
Kontakta mäklaren om du behöver hjälp att ta fram en boendekalkyl.
När du köper din bostad genom Bjurfors kan du ansöka om bolån till en förmånlig ränta hos vår samarbetspartner SEB.
Bokad visning.