-
Köpa
Köpa -
Sälja
Sälja - Hitta bostad
- Skapa bevakning
- Hitta mäklare
Unik fastighet med uthyrningsmöjligheter och karaktär
Örtofta, Eslöv
*Areauppgifter enligt uppmätning (utförd 2025-09-05)
Bokad visning. Kontakta mäklaren för anmälan. Varmt välkomna!
Bokad visning. Anmäl dig på Bjurfors.se. Varmt välkomna!
På Förhand ligger bostäder som av olika anledningar inte är ute till försäljning just nu men som kan komma att säljas om förutsättningarna är rätt.
Välkommen till en unik fastighet med karaktär, historia och fantastiska möjligheter. Huset uppfördes i kommersiellt syfte och har tidigare huserat både byns postkontor, skoaffär och skomakeri. Under 1980-talet byggdes lokalerna om till privatbostad men flera vackra och charmiga detaljer från tidigare verksamheter lever kvar. Däribland det gamla kassarummet, marmorgolv i entrén och en generös takhöjd på 2,65 meter. Boytan om 269 kvm erbjuder idag både ett trivsamt boende på entréplan samt två separata lägenheter på ovanvåningen vilket skapar perfekta förutsättningar för uthyrning, generationsboende eller gäster. Båda lägenheterna har egen ingång, charmiga 50-talskök, vacker fiskbensparkett och balkonger med soligt sydvästläge. De har haft god beläggning genom åren och ger möjlighet till en stabil extrainkomst.
I bostadsdelen på första våningen blandas funktion och personlighet, där det stora vardagsrummet ramas in av en exklusiv och ovanlig braskamin vid namn "Copper King", ett riktigt smycke för hemmet. Huset är väl underhållet och har genomgått flera viktiga uppdateringar, däribland nytt tak, utbytta fönster, installerad fjärrvärme, fiberanslutning och laddbox för elbil. Allt är förberett för ett bekvämt och hållbart boende. Läget är perfekt för pendlare, på bara tre minuter från huset promenerar du till Örtofta station där tåget tar dig till Lund på 8 minuter, Malmö på 25, Eslöv på 3 och Kastrup på cirka 45 minuter. Just nu anläggs dessutom en ny pendlarparkering vid stationen vilket kommer att göra läget ännu mer attraktivt. Med bil når man E22an väldigt snabbt och har endast mellan 6-13 km till Lund beroende på vägval.
Området erbjuder dessutom flera möjligheter till en aktiv livsstil med utegym, fotbollsplaner, cykel- och joggingstråk samt vackra promenadvägar i närheten. Denna fastighet passar dig som söker något utöver det vanliga och vill ha ett hem med själ, historia och potential. Välkommen att uppleva det på plats.
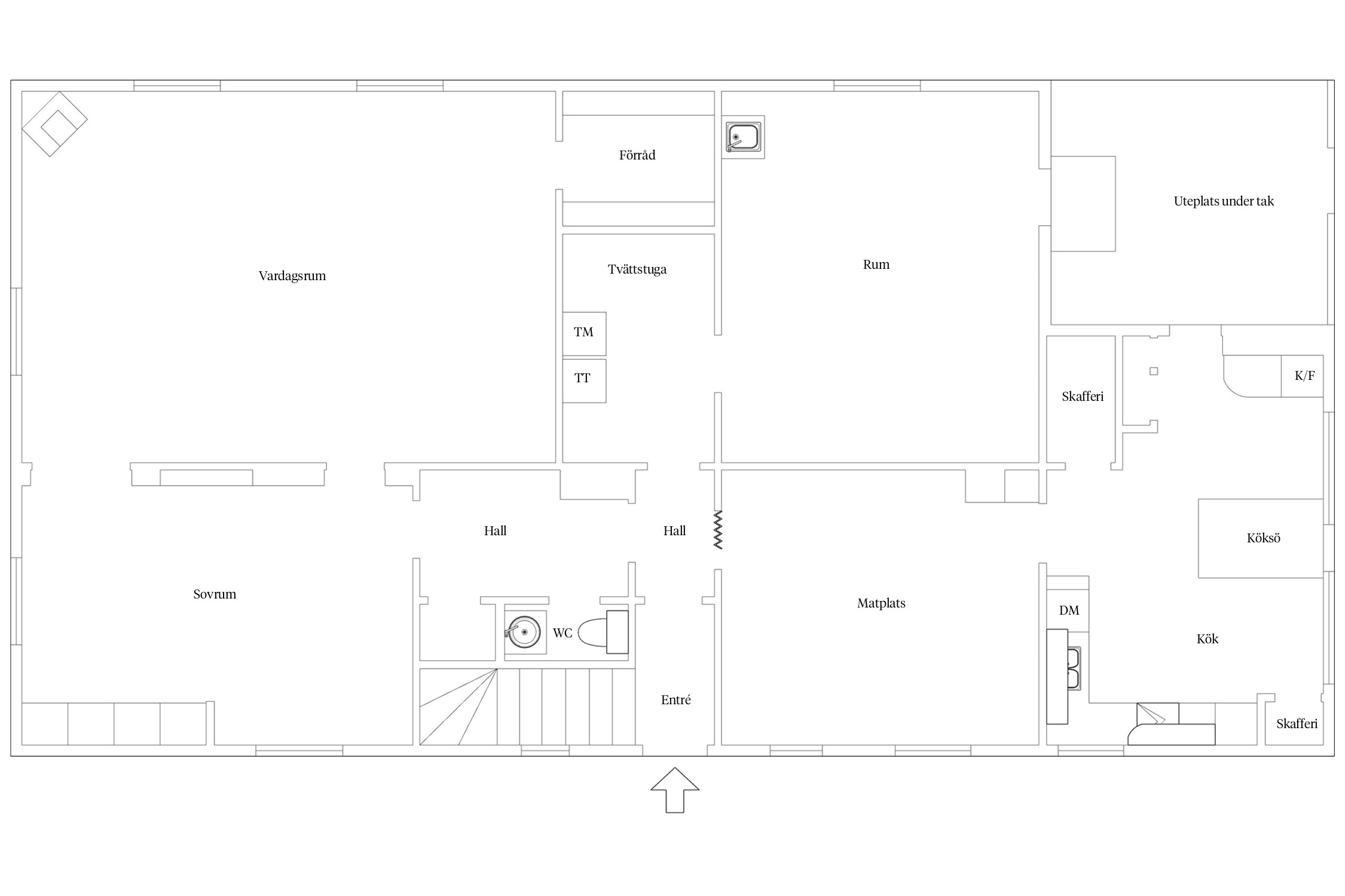
Entréplan
Hall
Genom huvudentrén når man först en hall där stentrappa upp till ovanvåningen finns, därefter finns ytterligare en låsbar dörr som leder in till hall för huvudbostaden. Här finns möjlighet att inreda med garderober eller avhängning mm.
Kök
Massivt kök från Marbodal med omlackerade luckor i sober grön färg. Ugn och induktionshäll (2019), diskmaskin och kyl & frys (Electrolux 2024). Gott om plats för matplats för 6-8 personer. Stora fönsterpartier och rikligt ljusinsläpp. Här finns även en altandörr ut till uteplatsen och trädgården.
Tvättstuga/grovkök
Gamla pannrummet som idag huserar tvättstuga och grovkök och som leder vidare till ett större rum som i dagsläget används för förvaring men som öppnar upp för möjligheter att inreda badrum då det för tillfället finns både avlopp och vatten. Tvättmaskin och torktumlare (2024).
Vardagsrum
Luftigt och ljust rum med ljusinsläpp från tre väderstreck. Marmorgolv och vacker braskamin "Copper King". Här finns även ett bevarat kassarum.
Sovrum
Det som i dagsläget nyttjas som sovrum ligger i anslutning till vardagsrummet. Här finns möjlighet att avgränsa om man skulle önska det. På golvet ligger marmorgolv och parkett. Här finns även gott om förvaring i inbyggda garderober.
Badrum
Toalett och duschrum ligger vid hallen, duschrummet är separat från toaletten.
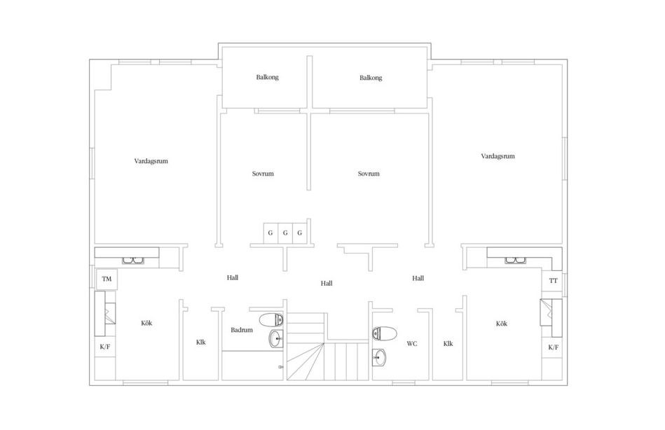
Ovanvåning
Lägenhet 1
Kök
Utrustad med kökfläkt, spishäll, ugn och mikrovågsugn. Vitvaror utbytta för cirka 10 år sedan. Här finns även kombinerad tvättmaskin.
Badrum
Ljust och fräscht badrum, renoverat med våtrumsmatta 2014.
Vardagsrum
På golvet ligger vacker fiskbensparkett. Stora fönsterpartier ut mot trädgården. Utgång till generös balkong.
Sovrum
Sovrum
Gott om förvaring, finns plats för dubbelsäng.
Lägenhet 2
Kök
Utrustad med kökfläkt, spishäll, ugn och mikrovågsugn. Vitvaror cirka 10 år gamla. Här finns även tvättmaskin.
Badrum
I orginalutförande.
Vardagsrum
På golvet ligger vacker fiskbensparkett. Stora fönsterpartier ut mot trädgården. Utgång till generös balkong.
Sovrum
Gott om förvaring, finns plats för dubbelsäng.



Örtofta 15:38
*Areauppgifter enligt uppmätning (utförd 2025-09-05)
2008 - Fjärrvärme.
2010 - Samtliga vattenledningar utbytta.
2011 - Anslutning till kommunalt vatten.
2012 - Samtliga inkommande rör utbytta.
2014 - Renovering av badrum på ovanvåning.
2016 - Fiber indraget.
2017 - Staket mot parkering.
2019 - Lackering av köksluckor.
2020 - Staket mot garage.
2021 - Takbyte samt plåtarbete (nya stuprör & stege till skorsten).
2022 - Installation laddbox.
2022 - 14st nya fönster monterade.
2023 - Relining huvudstam.
2023 - Tak över altanen bytt.
2024 - Ny fontän i damm.
2024 - Renovering av växthus.
2025 - Ommålning av staket och snickerier på fasad.
Kommunalt vatten och avlopp
Byggnadsplan (1976-07-23)
Gemensamhetsanläggning: Eslöv örtofta ga:2 ändamål: Vägar
Fiber
I hushållsel ingår även elbilsladdning.
Det finns 6 st pantbrev uttagna om sammanlagt 2 594 000 kr
De mindre tätorterna Örtofta och Väggarp ligger vackert i det öppna slättlandskapet söder respektive väster om centralorten Eslöv och bidrar till att skapa en levande landsbygd. Med mycket goda pendlingsmöjligheter till Lund och övriga regionen och stort serviceutbud på nära avstånd är ett boende här utmärkt för den som söker lummigt lantligt lugn. De många slingrande åarna ger ett rikt djurliv och i trakten finns golfbana, vandringsleder och kulturella utflyktsmål.
Örtofta ligger i hjärtat av Skåne och den intilliggande pågatågstationen ger utmärkta pendlingsmöjligheter till jobb och skolor. Kommunens centralort Eslöv nås på 8 minuter, Lund likaså. Malmö är endast en 20 minuters resa bort och till Köpenhamn och kontinenten tar man sig på 45 minuter. E22:an är ett annat alternativ då sträckan på 1,8 mil till Lund tar 19 minuter. Bebyggelsen varierar främst mellan mindre gårdar, friliggande enfamiljshus och fritidshus. Många är äldre uppförda i klassiskt tegel men här har skett en del nybyggnation under 2000-talet. Mittskåne kallas ibland för Slottens rike. Ett av dessa är Örtofta Slott som är en vacker borg från medeltiden. Idag är slottet ett populärt hotell och lokal för bröllop och konferenser. Det är ett trevligt inslag att se gästerna promenera från Örtofta pågatågstation genom parken på väg till festligheter. Slottet sägs vara hem för ett äkta spöke, en grå skepnad som söker en gömd skatt.
I mitten av Örtorfta by ligger slott och kyrka samt fristående förskolan Slottsparkens förskola men i utkanterna, där pågatågstationen placerats, finns också ett större sockerbruk samt en restaurang. Området Väggarp ligger nära sammanlänkat med Örtofta nära stationen. Ca 5 kilometer från Örtofta, på vägen mot Eslöv, ligger Eslövs GK, en av Skånes populäraste golfanläggningar. Här finns 18hålsbana samt pay & playbana och restaurang. Golfbanan, som etablerades redan 1966, är uppförd på Ellinge Slotts marker. Det skinande vita slottet, som byggdes på 1100-talet är idag ett populärt hotell- och konferenscenter.
Köpa, sälja eller värdera bostad i Örtofta? Kontakta Bjurfors mäklare i Eslöv! Passa också på att anmäla dig till vår kostnadsfria söktjänst Boagenten som hjälper dig att hitta ditt drömboende.
Kontakta mäklaren om du behöver hjälp att ta fram en boendekalkyl.
När du köper din bostad genom Bjurfors kan du ansöka om bolån till en förmånlig ränta hos vår samarbetspartner SEB.
Bokad visning. Kontakta mäklaren för anmälan. Varmt välkomna!
Bokad visning. Anmäl dig på Bjurfors.se. Varmt välkomna!
Ansvarig mäklare