-
Köpa
Köpa -
Sälja
Sälja - Hitta bostad
- Skapa bevakning
- Hitta mäklare
Perfekt familjevilla på uppskattat läge bredvid Äselunden och Trollsjön
Eslöv - väster, Eslöv
*Areauppgifter enligt taxeringsinformationen
Välkommen på förhandsvisning. Anmäl dig på Bjurfors.se.
På Förhand ligger bostäder som av olika anledningar inte är ute till försäljning just nu men som kan komma att säljas om förutsättningarna är rätt.
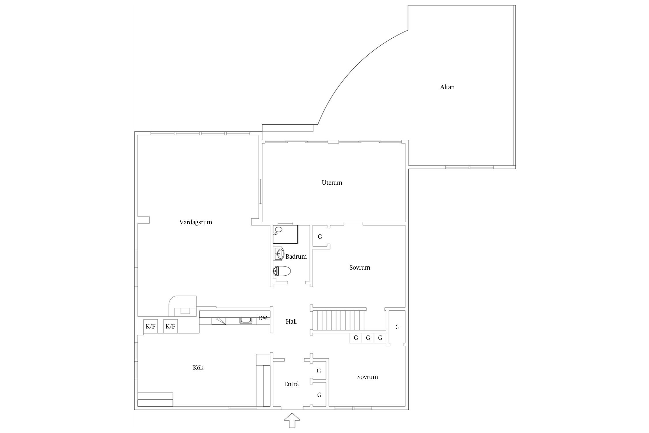
Välkommen till denna trivsamma villa med attraktivt läge i Eslöv precis intill natursköna Äselunden och endast några minuters promenad från Trollsjön. Här bor du i ett lugnt och omtyckt område med närhet till både grönområden samtidigt som stadens service finns inom bekvämt räckhåll. Huset uppfördes 1956 och erbjuder 106 kvadratmeter boarea samt 121 kvadratmeter biarea med gott om plats för den växande familjen. Bostaden rymmer totalt sju rum varav tre till fyra sovrum vilket skapar flexibla möjligheter för både barnfamilj eller kanske hemmakontor.
År 1971 gjordes en tillbyggnad som tillförde ett rymligt och ljust vardagsrum med generösa fönsterpartier som släpper in rikligt med dagsljus. Härifrån nås uterummet som förlänger säsongen och skapar en naturlig plats för umgänge. I vardagsrummet finns även en vacker tegelsatt öppen spis som ger både värme och en ombonad känsla. Köket renoverades 2006 och erbjuder goda arbetsytor samt plats för matgrupp. År 1974 installerades en takkupa och delar av vinden inreddes, vilket skapade ytterligare ett sovrum eller ett extra allrum. Detta utrymme passar perfekt för tonåringen som önskar en egen del av huset eller som ett avskilt arbetsrum. I källaren finns en mysig gillestuga som bjuder in till filmkvällar, lek eller avkoppling. Här finns dessutom generösa förvaringsutrymmen och praktisk tvättstuga.
Fastigheten är väl omhändertagen med flera viktiga uppdateringar genom åren. Taket byttes 2010 och så sent som 2024 installerades en ny värmepump. Huset värms upp med energieffektiv jordvärme som ger låga driftkostnader och ett behagligt inomhusklimat året om.
Detta är ett hem med charm, funktion och stora möjligheter i ett av Eslövs mest uppskattade lägen. Här får du ett boende med närhet till naturen, gott om utrymme och en varm och trivsam atmosfär att trivas i under många år framöver. Läget erbjuder även mycket goda kommunikationsmöjligheter. Från Eslövs station når du smidigt Malmö, Lund, Helsingborg och Köpenhamn med täta tågförbindelser vilket gör pendlingen enkel oavsett om du arbetar i regionen eller på andra sidan sundet.



Entréplan
Ovanplan
Källarplan
Åbon 4
*Areauppgifter enligt taxeringsinformationen
1971 - Tillbyggnad
1972 - Byggt garage
1974 - Byggt takkupa och inrett övre plan
2002 - Renoverat duschrum på entréplan
2004 - Installation av jordvärme
2006 - Köksrenovering
2008 - Byggt uterum
2010 - Takbyte
2014 - Bytt större delar av fönster på övre plan samt entréplan
2024 - Ny panna
Kommunalt vatten och avlopp.
Stadsplan (1956-02-13) Tomtindelning (1954-01-26)
Fiber
Det finns 7 st pantbrev uttagna om sammanlagt 1 290 000 kr
Med målet att år 2025 vara Skånes bästa kommun att bo och verka i spänner centralorten Eslöv bågen och expanderar boendemöjligheterna. Utbudet av butiker och restauranger samt servicegraden är god i Eslövs tätort, det är smidigt att pendla inom regionen och på fritiden kan man bowla, golfa, simma -eller bara ta det lugnt i den trevliga småstaden på slätten mitt i Skåne.
Eslövs kommun har runt 30 000 invånare, varav majoriteten bor i tätorten. På gatorna i centrumområdet runt trevliga Stora Torg ligger flera äldre fastigheter som hyser kontor och bostäder. Detta är Eslövs kommersiella kärna som har flera mindre butiker och restauranger, biograf och hotell Stenson med nattklubb och konferens. Järnvägsstationen, uppförd 1914, är en vacker byggnad och visar upp det som sätter färg på många andra fastigheter i Eslöv – det röda teglet. Pendlingsmöjligheterna är mycket goda då både stambanan, Marieholmsbanan och pågatågstrafik går via Eslöv.
Den äldre bebyggelsen av större och mindre gårdar och myndighetsbyggnader har fått sällskap av områden med fristående enfamiljshus uppförda i mitten och senare delen av 1900-talet. Utanför dessa kommer så områden med nyare bebyggelse. De äldsta husen daterar till tidigt 1800-tal men det var först när järnvägen anlades i mitten av 1800-talet som byn började ta form. Idag expanderar Eslövs tätort främst västerut.
Trollsjön är ett trevligt boendeområde med fristående enfamiljshus i lugnt läge invid ett grönområde väster om centrum. Förr gick det att bada i Trollsjön, nu är det en uppskattad aktivitetsyta med en mycket fin lekplats och en frisbeegolfbana. På boendeområdet Väster ligger Ekevalla fotbollsplan, flera förskolor, grundskola f-åk6 samt separat skola för åk 7-9. I de lugna kvarteren på de omgivande gatorna ligger större friliggande enfamiljshus varav flera är uppförda runt sekelskiftet. I Västerdala, ligger kvarter med fristående enfamiljshus i lummiga trädgårdar och radhus. Området Bäckdala i utkanten av tätorten är expansivt, här planeras för nya friliggande enfamiljshus.
I området Öster, som följer på andra sidan järnvägen i Centrum, är bebyggelsen blandad. Här finns äldre byggnader, inredningsbutiker och mindre industriverksamheter. Här finns Eslövs Leksaksmuseum och Kvarngatans skatepark, populärt bland barnfamiljer. Nordöst om järnvägen framför det öppna landskapet ligger området Berga med flerfamiljshus och kvarter med friliggande enfamiljshus av nyare datum med intilliggande förskola.
Smålandsvägen, som löper från centrala tätorten delar upp norra Eslöv; Norrevång, Norr och Rönneberga. Karlsros lugna kvarter med enfamiljshus och förskola ligger på ett fint läge invid gröna Husarängens löparslingor. Karlsrobadet har inomhusbassäng, äventyrsbad, bowlinghall och ett sommaröppet utomhusbad. Nordväst ligger området Solkullen omfamnat av ett öppet landskap.
Sallerup är ett större område i sydvästra Eslöv, bebyggelsen är främst lägre flerfamiljshus och radhus. Västra Sallerup och området kring kyrkbyn har en lantlig känsla, här ligger flera mindre gårdar på de böljande öppna fälten. Söder om Eslöv ligger Ellinge slott, omtyckt ställe för bröllop och konferenser. På markerna ligger en 18-håls golfbana, en pay&playbana under Eslövs GK.
Köpa, sälja eller värdera bostad i västra Eslöv? Kontakta Bjurfors mäklare i Eslöv! Passa också på att anmäla dig till vår kostnadsfria söktjänst Boagenten som hjälper dig att hitta ditt drömboende.
Kontakta mäklaren om du behöver hjälp att ta fram en boendekalkyl.
När du köper din bostad genom Bjurfors kan du ansöka om bolån till en förmånlig ränta hos vår samarbetspartner SEB.
Välkommen på förhandsvisning. Anmäl dig på Bjurfors.se.