-
Köpa
Köpa -
Sälja
Sälja - Hitta bostad
- Skapa bevakning
- Hitta mäklare
Trivsamt friköpt radhus i lugnt kvarter i omtyckta Ramlösa. Attraktiv planlösning och garage.
Ramlösa, Helsingborg
*Areauppgifter enligt taxeringsinformationen
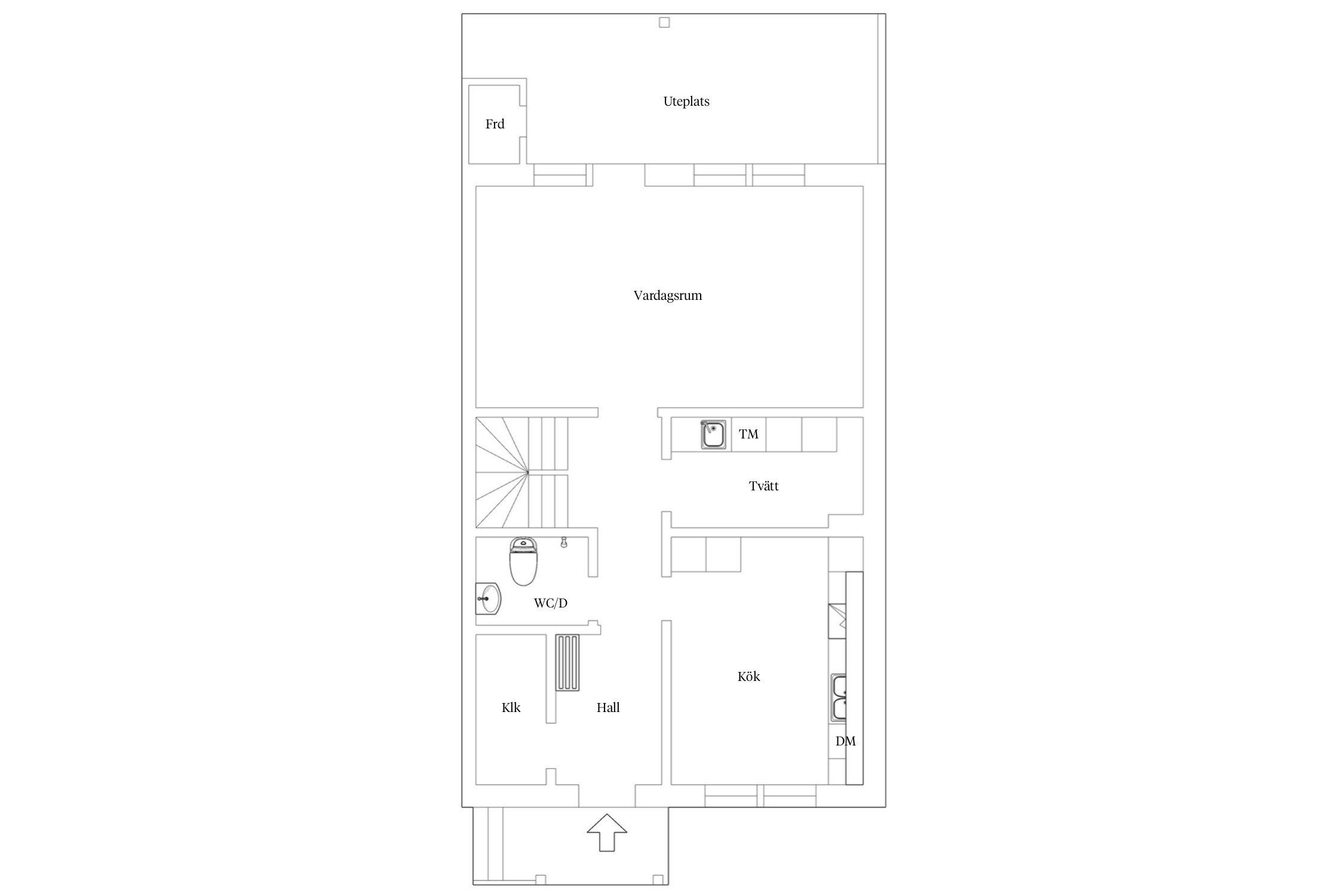
Familjevänligt friköpt radhus i populära Ramlösa. 133 kvm fördelat på två plan, fyra sovrum och lättskött trädgård.
Bland lugna och barnvänliga omgivningar har vi nu nöjet att presentera detta friköpta radhus på Kummelgatan 108B i populära Ramlösa. Här erbjuds ett trivsamt och lättskött boende – perfekt för familjen som söker ett bekvämt hem med generösa ytor och en välplanerad planlösning.
Boytan om 133 kvm är fördelad över två plan. På entréplanet möts du av ett funktionellt kök, en praktisk tvättstuga samt ett helkaklat badrum med dusch. Här finns även ett rymligt och socialt vardagsrum med gott om plats för både matgrupp och soffgrupp, en naturlig samlingspunkt för både vardag och umgänge.
På övre plan väntar den mer privata delen av bostaden med fyra rogivande sovrum samt ett badrum utrustat med badkar.
Trädgården är lättskött och belägen i ett solsäkert läge, en härlig plats för avkoppling, lek eller trevliga stunder utomhus under årets varmare månader.
Nuvarande ägare har genom åren gjort flera förbättringar, däribland fönsterbyte för cirka 10 år sedan samt installation av nya markiser.
De friköpta radhusen i området är mycket eftertraktade tack vare sin attraktiva planlösning, det lugna läget samt närheten till både grönområden och goda kommunikationer. Endast några meter från bostaden finns dessutom ett garage utrustat med laddstolpe.
I barnvänliga Ramlösa bor ni i ett grönskande och tryggt område med cykelavstånd till Helsingborgs Centrum. Här har ni närhet till service som uppskattade skolor och förskolor, vårdcentral, mataffär och busshållplats. Runt knuten finner ni även fantastiska Ramlösa Brunnspark med sina historiska inslag.
Varmt välkommen att kontakta mäklare Bob Kjellsson för visning.



Källvattnet 132
*Areauppgifter enligt taxeringsinformationen
Ny takfläkt 2023.
Samtliga fönster och altandörr är från 2013.
Dusch/toalett på markplan renoverades 2011.
Kommunalt vatten, Kommunalt avlopp.
Ändring av detaljplan (2017-09-20) Stadsplan (1977-02-01)
Gemensamhetsanläggning: Helsingborg källvattnet ga:3 ändamål: Vägar, Garage och/eller parkering, Kvartersanläggning
Gemensamhetsanläggning: Helsingborg källvattnet ga:4 ändamål: Vägar, Vattenförsörjning, Avloppsanläggning, Radio- TV och/eller tele, Elledning och/eller belysning, Grönområden
Fiber
I uppvärmningskostnaden är elförbrukningen inkluderad. Övrigt är kostnad för investering av laddboxar i garage.
Det finns 6 st pantbrev uttagna om sammanlagt 731 800 kr
Ramlösa är känt för sin vackra, grönskande miljö men de allra flesta förknippar nog namnet med mineralvattnet som kommer härifrån. Den flera hundra år gamla hälsobrunnen och omgivningarna är väl bevarade och påminner om dess långa historia som kurort.
Ramlösa är ett lugnt, barnvänligt och tryggt område att bo i. Det ligger inte i centrala Helsingborg, men är tillräckligt centralt för att vara på gångavstånd och med goda kommunala förbindelser. Orten består till största del av villor och radhus. Ramlösa Brunnspark är en dalgång mitt i stadsdelen med öppna gröna ytor, porlande bäckar och lövträdskog. Parken är skyddad som byggnadsminne och uppdelad i två delar - en med fritt växande skog och en kulturparksdel där villorna ligger. Här ligger även Ramlösa Hälsobrunn.
Rykten om att järnkällan i Ramlösa skulle ha botande effekter förekom redan i slutet av 1600-talet, när Karl XII:s soldater ska ha druckit av vattnet för att samla kraft under skånska kriget. I slutet av 1800-talet upptäcktes av en slump ytterligare en källa med alkaliskt vatten. Vattnet visade sig vara rikt på mineraler och salter. Kolsyra tillsattes och vi fick Ramlösa mineralvatten, som dricks än idag. I dag sker all produktion i Ättekulla. Vattenpaviljongen byggdes 1919–1921 och här firas bland annat Brunnsdagen varje sommar, liksom många andra lokala evenemang. Ramlösa växer så det knakar. I Östra Ramlösa planeras en egen stadsdel med flera bostäder av blandad karaktär, förskola, skola, sporthall, centrum och ett flertal grönområden. Här bor man med naturen som granne. Ramlösagården är ett nytt område som består av ett flertal danskt arkitektritade radhus, omgivna av vatten och grönområden.
Elineberg är en stadsdel med flera grönområden, som är uppdelad i två delar av Ramlösavägen. Gamla Elineberg kallas området i norr, som främst består av flerbostadshus från 1950-talet. En del av villorna vetter mot Jordbodalen, som är ett naturområde med ett rikt djurliv, dramatiska branter och vattenfall.
Köpa, sälja eller värdera bostad i Ramlösa? Välkommen att kontakta Bjurfors mäklare i Helsingborg City. Passa också på att anmäla dig till vår kostnadsfria söktjänst Boagenten som hjälper dig att hitta ditt drömboende.
Kontakta mäklaren om du behöver hjälp att ta fram en boendekalkyl.
När du köper din bostad genom Bjurfors kan du ansöka om bolån till en förmånlig ränta hos våra banksamarbetspartners Söderberg & Partners och SEB.
Ansvarig mäklare