-
Köpa
Köpa -
Sälja
Sälja - Hitta bostad
- Skapa bevakning
- Hitta mäklare
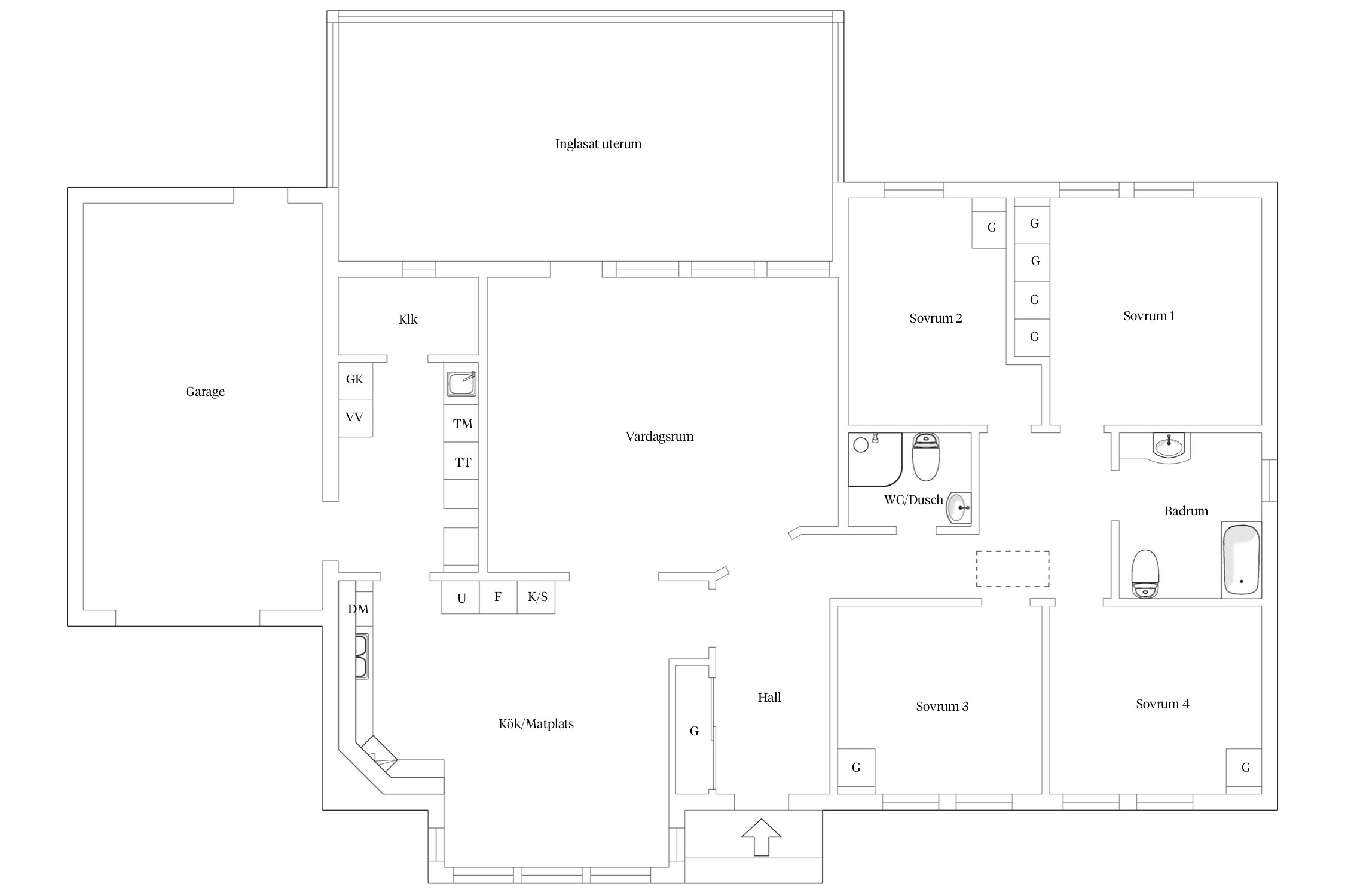
I Fjärestad presenteras nu detta trivsamma enplanshus med inglasat uterum, garage och trädgård.
Vallåkra, Helsingborg
*Areauppgifter enligt taxeringsinformationen
I biarean är garage (26,9 kvm + inglasat uterum 30,4 kvm inkluderat, Uppgifter enligt säljare.
Bokad visning.
Enplanshus med garage, uterum och ljuvlig trädgård i lugna Fjärestad. Nära Gantofta med skola, ICA och smidiga pendlingsmöjligheter till Helsingborg.
Välkommen till ett fantastiskt enplanshus i naturnära Fjärestad – ett hem som erbjuder både funktion, komfort och livskvalitet i perfekt kombination. Här bor du i ett trivsamt och välskött område med bekvämt och enkelt avstånd till både Gantofta och Helsingborg, samtidigt som den lugna lantliga känslan ständigt gör sig påmind. Huset uppfördes 2007 och är mycket välplanerat och erbjuder hela 139 kvm boarea som passar perfekt för familjen som söker ett hem att trivas i länge.
Den generösa tomten omgärdas av grönska och öppnar upp mot vacker utsikt över åkermark och natursköna vyer. Den ljuvliga trädgården ligger i ett solsäkert läge och bjuder på gott om utrymme för både lek, avkoppling och odling.
Här finns dessutom ett stort, vidbyggt garage med direktaccess till huset – en detalj som gör vardagen extra smidig oavsett väder och årstid. Garagedörren öppnas enkelt med en fjärrkontroll som du har i bilen, så du kan köra rakt in utan att kliva ur – perfekt under regniga höstdagar eller kalla vintermorgnar.
Husets hjärta är det smakfulla köket från Ballingslöv, där genomtänkt design möter kvalitet. Med sina välplanerade arbetsytor, exklusiv bänkskiva i granit och goda förvaringsmöjligheter blir det en naturlig samlingspunkt för både vardagsliv och middagsbjudningar. I anslutning till köket ligger en rymlig tvättstuga med egen groventré, där du även har direkt ingång till garaget – praktiskt och väl genomtänkt.
Det ljusa och luftiga vardagsrummet bjuder in till umgänge och avkoppling, med plats för både stor soffgrupp och tv-möblemang. Härifrån når du det stora, inglasade uterummet – en riktig höjdpunkt som förlänger säsongen och skapar en naturlig förlängning av både vardagsrum och trädgård. Uterummet är generöst tilltaget och rymmer med lätthet både soffgrupp och matbord, vilket gör det till en perfekt plats för både lugna morgnar och middagar i goda vänners lag.
Planlösningen erbjuder dessutom fyra rogivande sovrum, där hela familjen får sin egen plats att dra sig tillbaka. Två stilfullt helkaklade badrum – det ena med dusch och det andra med badkar ger gott om utrymme och bekvämlighet även för den större familjen eller när gäster är på besök.
Läget i Fjärestad erbjuder det bästa av två världar – lugnet från landsbygden och den smidiga tillgängligheten till omgivande service och kommunikationer. På bara några minuter med bil tar du dig till Gantofta, där både Gantofta station och ICA Möllan finns – med generösa öppettider för vardagens alla behov. Från stationen går tåget enkelt till Helsingborg C på endast 8 minuter eller söderut mot Malmö. I Gantofta finns dessutom förskola och grundskola upp till årskurs 9, vilket gör området extra attraktivt för barnfamiljer. För den som hellre åker buss finns hållplats inom kort gångavstånd från huset.
Här bor du även med naturen runt hörnet. Råådalen, ett av Nordvästra Skånes mest älskade naturområden, ligger inom räckhåll och erbjuder fantastiska promenadstråk, rikt växt- och djurliv samt rogivande vyer året om.
Det här är ett hem för dig som söker det lilla extra – ett modernt, genomtänkt och välskött hus i ett tryggt och naturskönt område, med smidig tillgång till service, skola, pendling och friluftsliv. Ett boende att växa i och njuta av – varje dag, året runt. Varmt välkommen att uppleva det på plats!



Fjärestad 21:19
*Areauppgifter enligt taxeringsinformationen
I biarean är garage (26,9 kvm + inglasat uterum 30,4 kvm inkluderat, Uppgifter enligt säljare.
Garage och inglasat uterum,
Kommunalt vatten, Kommunalt avlopp.
Detaljplan (2002-10-23)
Gemensamhetsanläggning: Helsingborg fjärestad ga:4 ändamål: Vägar, Elledning och/eller belysning, Grönområden
Gemensamhetsanläggning: Helsingborg fjärestad ga:5 ändamål: Avloppsanläggning
Fiber
I samfällighetsavgiften ingår det vägunderhåll samt belysning. I uppvärmningskostnaden är elförbrukningen inkluderad.
Det finns 1 st pantbrev uttaget om sammanlagt 1 384 000 kr
Helsingborg är en av Nordens äldsta städer. Redan i slutet av 900-talet har det troligtvis funnits en mindre befästning uppe på landborgen. Staden tillhör Öresundsregionen och är Skånes andra största stad. Här befinner du dig endast 4 km från Helsingör i Danmark. Fram till mitten 1800-talet betecknades Helsingborg som småstad men antal invånare ökade explosionsartat i samband med att industrialismen i staden tog fart. Helsingborg växer fortfarande och efterfrågan på nya bostäder blir allt större.
Helsingborg är förutom den breda kustremsan omgivet av parker, grönområden och skog för ett aktivt liv. Här finns naturreservat, vandringsleder, lekplatser, badplatser och cykelleder i varierande miljöer. Helsingborgs centrum ligger alldeles intill havet och är den äldsta delen av staden. Här sjuder det av liv året om. Restauranger, caféer och barer ligger tätt både inne bland husen och nere vid Öresundskusten.
På sommaren solar och badar du mitt i centrum. Här finns det ett flertal badplatser att välja på utifrån väder och humör. Gröningen är en populär plats för folk i alla åldrar med stora gräsytor, lekplats, promenadstråk, trädäck och badbrygga. Fria bad är en bred sandstrand med tre badbryggor och en trevlig fiskrestaurang som vetter mot havet.
Köpa, sälja eller värdera bostad i Helsingborg? Välkommen att kontakta Bjurfors mäklare i Helsingborg City eller Bjurfors mäklare i Helsingborg Norr. Passa också på att anmäla dig till vår kostnadsfria söktjänst Boagenten som hjälper dig att hitta ditt drömboende.
Kontakta mäklaren om du behöver hjälp att ta fram en boendekalkyl.
När du köper din bostad genom Bjurfors kan du ansöka om bolån till en förmånlig ränta hos våra banksamarbetspartners Söderberg & Partners och SEB.
Bokad visning.
Ansvarig mäklare