-
Köpa
Köpa -
Sälja
Sälja - Hitta bostad
- Skapa bevakning
- Hitta mäklare
Townhouse uppfört 2023
Bjärred - Centralt, Lomma
*I avgiften ingår bostadsrättstillägg. Ej kostnaden för vatten (varmt/kallt), uppvärmning, hushållsel, TV/bredband och telefoni samt parkeringsplats.
**Enligt bostadsrättsföreningens mäklarbild/utdrag ur lägenhetsregister
Bokad visning.
Townhouse uppfört 2023 med en unik arkitektur med franska balkonger, takterrass, trädgård och egen parkering.
Detta drömlika boende med hög trivsel på alla plan är perfekt för familjen som önskar ett stadsradhus med en bykänsla. Paradhusen har unik arkitektur med franska balkonger, takterrasser, trädgård och egen parkering. Det är modernt, lättskött och smart med fokus på ljuset och en egen täppa.
Brf Paradhusen består av två huskroppar med totalt 16 radhus på cirka 144 kvm fördelade på tre plan. Bottenvåningen är social med en takhöjd på 2,8 m för att skapa luft, rymd och ljus. Andra våningen har sovrum med fransk balkong och en generös takterrass på översta våningen. Mysig stenlagd uteplats och gräsmatta.
Det är en genomtänkt planlösning med målade väggar, vitpigmenterat ekgolv och fönsterbänkar i natursten som ger en neutral fond för inredningsdetaljer. Hallen är inbjudande och rymlig med skjutdörrsgarderob. Köket från Vedum har bänkskiva i sten, rymlig matplats och fönster hela vägen ner till golvet som suddar ut gränsen mellan ute och inne. Badrummet är stilfullt inrett med eleganta detaljer, golvvärme, spotlights i taket samt tvätt och torktumlare.
Sovrummen är rymliga har gott om förvaringsmöjligheter och master bedroom har en praktisk klädkammare samt franska balkonger. Badrummet är stilfullt inrett och erbjuder ett avkopplande bad efter en lång arbetsdag.
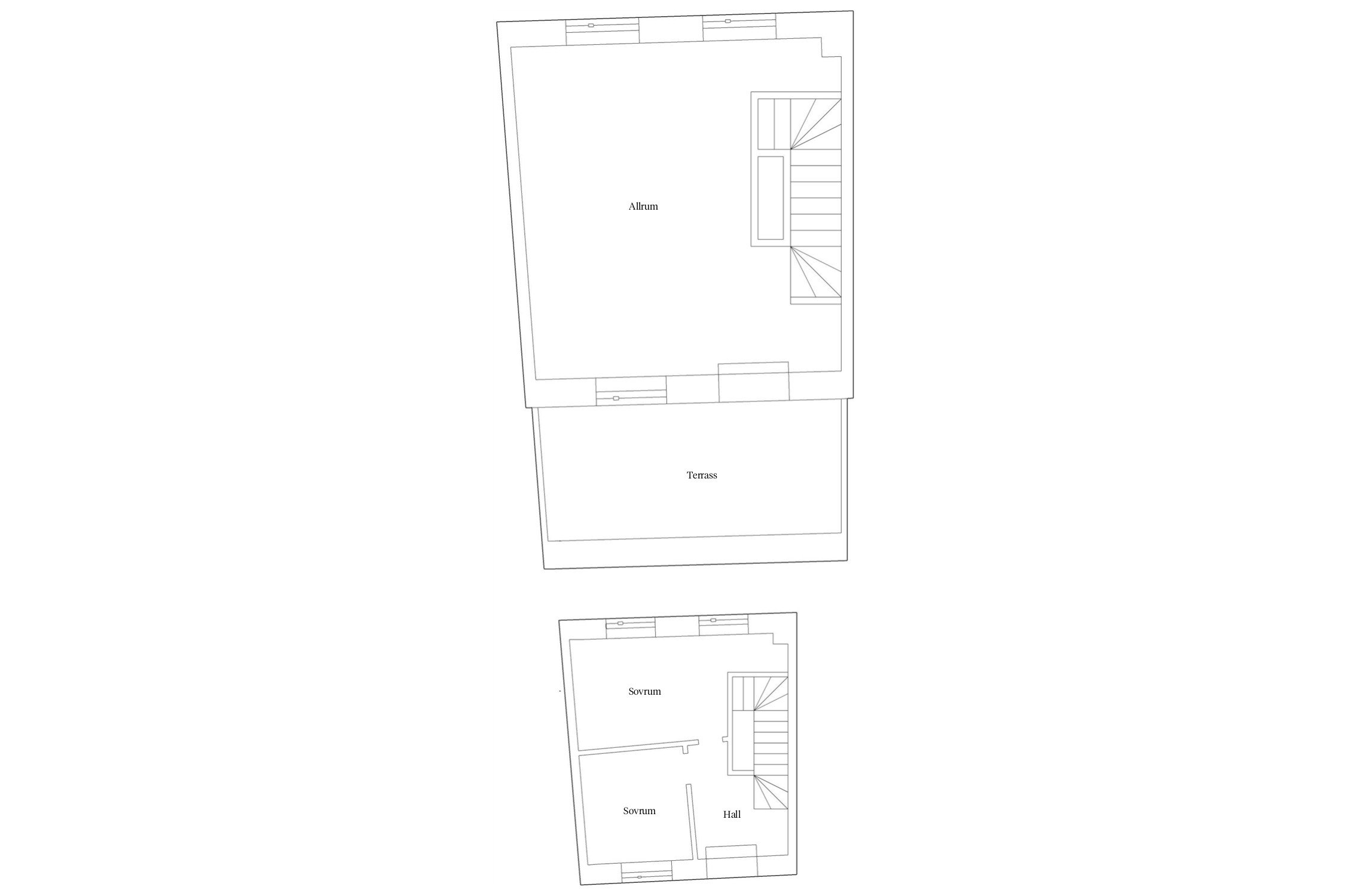
Översta våningen har ett stort allrum som kan göras om till ytterligare sovrum om man önskar. Takterrassen är den perfekta platsen för festligheter under soliga dagar.
ENTRÉPLAN:
Hall:
Klinkergolv, vitmålade väggar och en garderob med skjutdörrar.
Kök: Grå inredning från Vedum med bänkskiva i ljus komposit sten. Utrustningen består av induktionshäll, fläkt, varmluftsugn, mikrovågsugn, diskmaskin, kyl, frys, stor köksö och infällda spotlights. Alla maskiner är av märket Siemens.
Vardagsrum:
Trevligt vardagsrum med stora fönster och altandörr ut mot trädgård och uteplats. I vardagsrummet finns den vackra trappan med eksteg till plan 2.
Badrum entréplan:
Helkaklat badrum som har wc, handfat med vit kommod, badrumsskåp, dusch med glasdörrar, handdukstork, tvättmaskin, torktumlare och infällda spotlights.
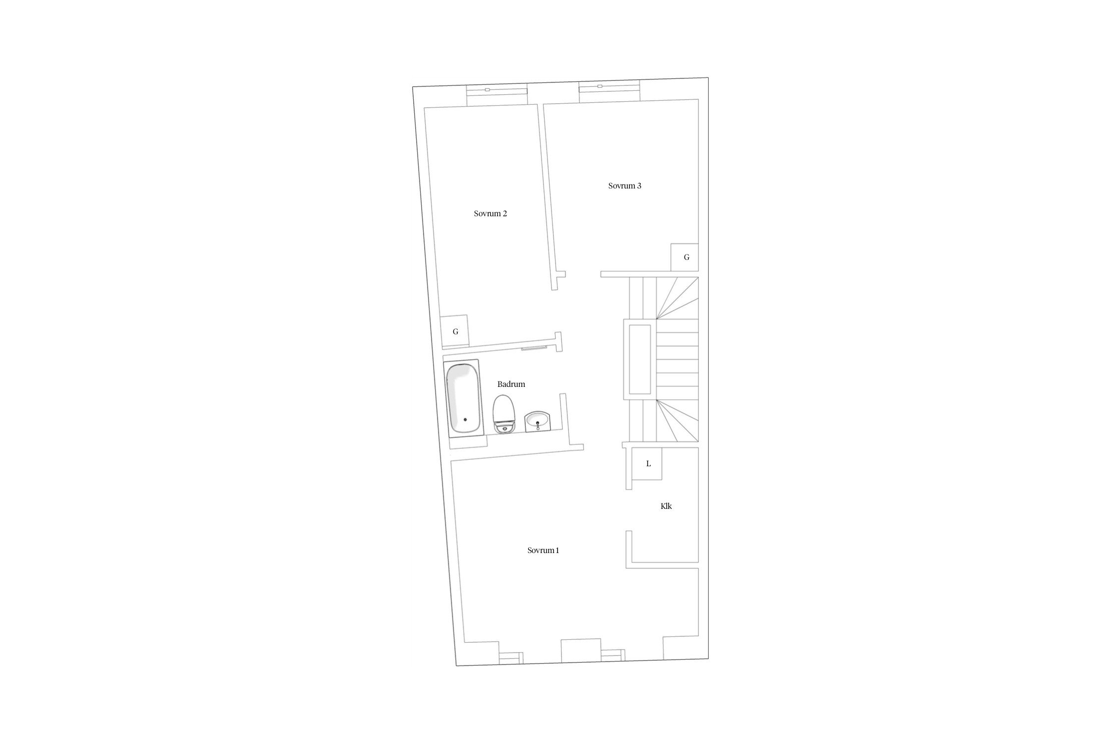
PLAN 2:
På detta våningsplan finns tre sovrum och ett badrum. Det största sovrummet har en klädkammare samt två franska balkonger. I hallen finns trappan till plan 3.
Badrum:
Helkaklat badrum som har wc, handfat med vit kommod, badrumsskåp, badkar, handdukstork samt infällda spotlights.
PLAN 3:
Översta våningen har ett stort allrum som kan göras om till ytterligare totalt tre sovrum om man önskar. Takterrassen är den perfekta platsen för festligheter under soliga dagar.
Hela huset har vattenburen golvvärme och ekparkett i samtliga vistelserum.



*Enligt bostadsrättsföreningens mäklarbild/utdrag ur lägenhetsregister
I avgiften ingår bostadsrättstillägg. Ej kostnaden för vatten (varmt/kallt), uppvärmning, hushållsel, TV/bredband och telefoni samt parkeringsplats.
Bostadsrättens indirekta nettoskuldsättning baseras på föreningens skulder/lån minus föreningens räntebärande tillgångar och likvida medel. Beräkningen är gjord och baseras på senaste tillgängliga årsredovisningen. För mer information kontakta ansvarig fastighetsmäklare.
*Betalas av köpare
Föreningen Brf Paradhusen är en äkta förening och består av 16 st bostadsrättsradhus.
Fjärrvärme med växlare inom respektive bostad. Värmen distribueras via golvvärme.
Mekaniskt till- och frånluftssystem genom lägenhetsaggregat med värmeåtervinning.
Nabo sköter den ekonomiska förvaltningen.
Elcentral i lägenhet med automatsäkringar och jordfelsbrytare. Gemensamt fastighetsabonnemang med individuell mätning och debitering för respektive bostad.
Gemensamt fastighetsabonnemang med individuell mätning av kall- och varmvatten och debitering av vattenförbrukning för respektive bostad.
Föreningen höjde månadsavgiften med 12% 2026-01-01.
(Kontrollerat 2026-01-16)
Fastigheten är försäkrad hos Söderbergs & Partners. I försäkringen ingår kollektivt bostadsrättstillägg för medlemmarna samt ansvarsförsäkring för styrelsen.
Inga planerade renoveringar. 2 års besiktningen utfördes i maj 2025 och Granitor håller på att åtgärda de fel som uppdagats. (Kontrollerat 2026-01-16)
Markparkering finns att hyra i anslutning till bostaden. Alla bostadsköpare fick möjlighet att teckna sig för minst en p-plats för 400 kr/mån. Dess platser är försedda med laddningsmöjligheter. Tanken är dock att dessa platser ska knytas till respektive hus framöver.
Ytterligare fem p-platser finns för möjlig uthyrning till andra bil i mån av plats för 600 kr/mån. Det finns två lediga platser idag. Kostnad för parkering ingår ej i månadsavgiften utan debiteras separat.
I dagsläget har varje hus tecknat sig på den parkeringsplats som är närmast respektive hus. (Kontrollerat 2026-01-16)
Bredband, tele, tv: Fastigheten är ansluten med fiber. Respektive bostadsinnehavare tecknar individuella abonnemang hos operatörer tillhandahållna genom ViaEuropa.
Gemensamt grönområde med lekutrustning och sittbänk.
Cykelparkering inom egen trädgård/förråd eller i gemensamt cykelförråd.
Förråd finns inom respektive bostadsträdgård.
Postlådor placerade utanför bostadsentré.
Gemensamt förråd med trädgårdsredskap och miljöhus för källsortering.
All information om föreningen har inhämtats genom årsredovisningen och föreningens styrelse. Slutgiltig köpare uppmanas att kontakta representant från föreningen för att stämma av föreningsinformationen.
Bjärred är en tätort i Lomma kommun drygt en mil väster om Lund. Bjärred delas in i tre områden; den norra delen Löddenäs, Centrum och den södra delen som kallas Gamla Bjärred.
Längs stranden i Löddenäs finns ett naturreservat med det så kallade Gyllins ängar. I detta ängsområde finns bland annat ett fågeltorn samt den natursköna Trollsjöparken. Parken är ett mycket populärt ställe för rekreation och omtyckt lekområde för barn från skolor och förskolor i närheten. Området söder om parkallén är bebyggt med villor, medan den norra delen har förblivit en naturpark. Här finns planteringar kvar från den ursprungliga parken, främst bok som nu utgör ett ståtligt bestånd. Vissa av träden är över hundra år gamla.
Bjärred var från början en badort som hörde till Lund. Under slutet av 1800-talet byggdes här restaurang och hotell. I Bjärred finns också en av Sveriges längsta badbryggor med ett fint kallbadhus. I badhuset kan man förutom att bada eller svettas i bastun även besöka den fina restaurangen och vissa dagar också få musikunderhållning under måltiden.
I Borgeby finns Borgeby slott som har sitt ursprung i en av vikingakungen Harald Blåtands så kallade trelleborgar. Under medeltiden var Borgeby en av ärkebiskopen av Lunds borgar men vid reformationen kom det i privat ägo. I dag ägs slottet av en stiftelse och här finns ett museum över de förra ägarna Hanna Larsdotter och hennes make, konstnären och författaren Ernst Norlind. Strax söder om slottet ligger Borgeby kyrka.
Berga kyrka ligger mitt inne i Bjärred. Kyrkan invigdes i mitten av 1970-talet och den är skapad av Bengt och Kristina Hellborg i ren stram arkitektur. Den är byggd helt i naturmaterial och räknas till en av de förnämsta i nutid. I kyrkans inredning finns ett flertal mycket fina detaljer, bland annat ett krucifix från 1400-talet.
Vill du köpa, sälja eller värdera bostad i centrala Bjärred? Kontakta Bjurfors mäklare i Bjärred! Passa också på att anmäla dig till vår kostnadsfria söktjänst Boagenten som hjälper dig att hitta ditt drömboende.
Kontakta mäklaren om du behöver hjälp att ta fram en boendekalkyl.
När du köper din bostad genom Bjurfors kan du ansöka om bolån till en förmånlig ränta hos vår samarbetspartner SEB.
Bokad visning.