-
Köpa
Köpa -
Sälja
Sälja - Hitta bostad
- Skapa bevakning
- Hitta mäklare
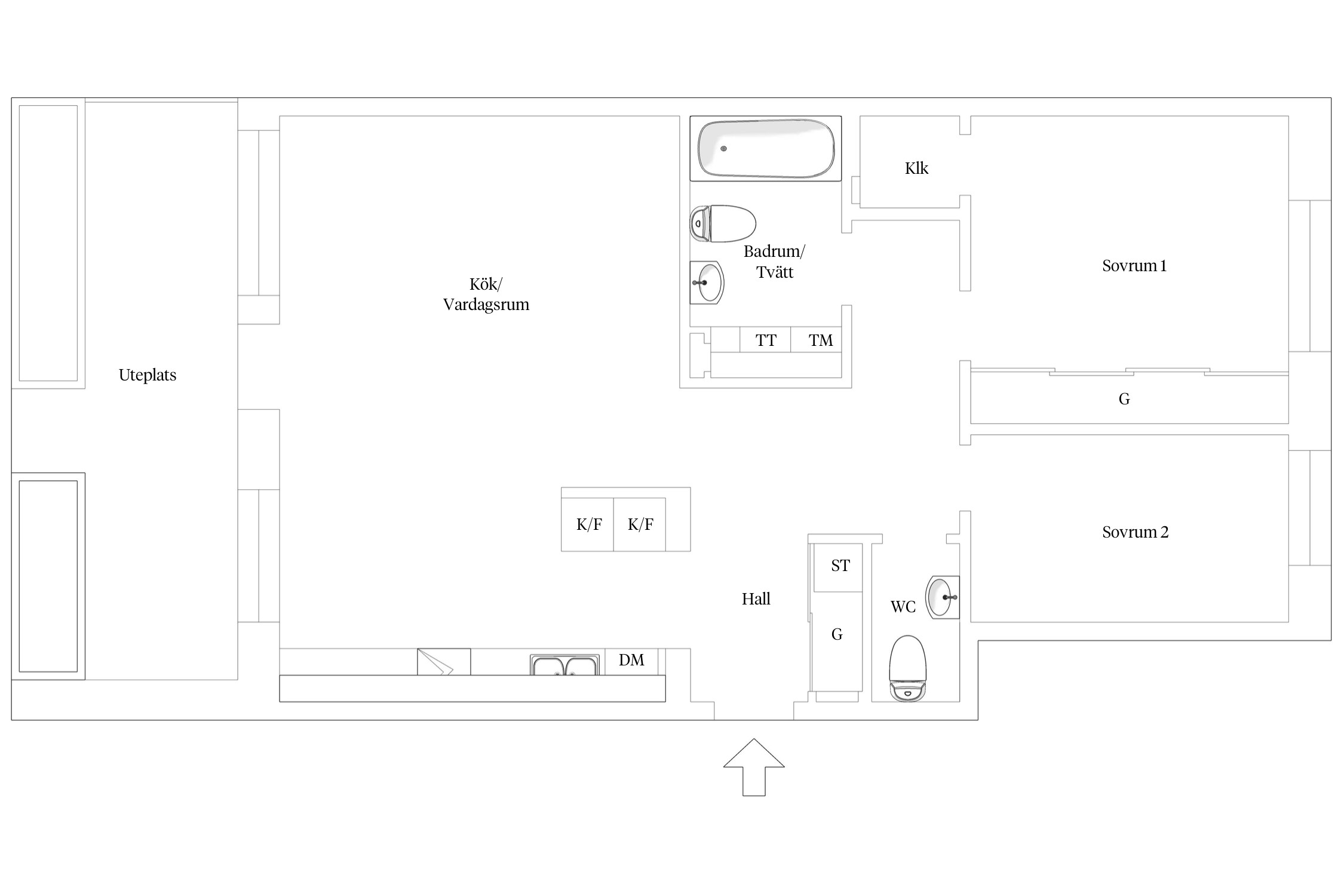
Insynsskyddad uteplats mot väster
Lomma - Strandstaden, Lomma
*I avgiften ingår kallvatten och värme. Det tillkommer en obligatorisk kostnad om 220 kr/mån för Telia Triple Play. Mätare för individuell varmvattenmätning till varje lägenhet. Gemensamt el-abonnemang med undermätning av hushållsel för varje lägenhet. (Grundavgift 6416 kr, räknat ihop avgift plus tillägg för likviden.)
**Areakälla enligt bostadsrättsföreningens mäklarbild/utdrag ur lägenhetsregister.
Fyll i formuläret nedan så hjälper vi dig!



Lomma är en tätort i Lomma kommun. Eftersom Lomma ligger vid mynningen till Höje å blev det redan under 1600-talet en naturlig plats för tull, omlastning och handel. Lomma är en blomstrande sommarort som speciellt under semestermånaderna drar mycket folk från de kringliggande kommunerna.
Varje sommar hålls en uppskattad folkfest i centrala Lomma med marknad, uppträdanden, tivoli, långlördag, utställningar, veteran- och sportbilsutställning, hantverksmässa, ponnyridning, konserter och mycket mer. För den som vill bada finns fina sandstränder och välskötta badplatser.
I Lomma centrum finns restauranger, fiskbod, bibliotek samt annan service som banker, apotek, vårdcentral, mataffärer och gym. Med en kort bil- eller bussresa kan du ta dig till större shoppingcenter som Burlövs Center och Nova Lund.
Landskapet i Lomma kommun är övervägande flackt och naturen präglas av det öppna landskapet och havet. Vacker natur finns framförallt i anslutning till stranden som till exempel området kring mynningen vid Lödde å och Alnarps ängar. Det kommunala naturreservatet Slättängsdammarna anses ha ett stort biologiskt och kulturhistoriskt värde. Tallplanteringarna Habo fure och Kyrkfuret bildar tillsammans ett större rekreationsområde med skogskänsla.
Alnarp är en mindre ort i Lomma kommun som också är säte för Sveriges lantbruksuniversitet, SLU. Här finns även den fantastiskt vackra botaniska trädgården i Alnarpsparken samt Alnarps slott som byggdes 1862. Området ligger som en grön oas mitt i det skånska landskapet. Strax intill ligger Alnarpsgården med lantbruksmuseum och undervisningslokaler. Nära byn ligger Alnarps restaurang, som förutom lunch och á la carte även erbjuder en mängd trevliga och uppskattade events som ostprovningar, temaveckor och studentfirande. Från Lomma går flera olika busslinjer och tåg, så att du lätt kan pendla till både Malmö och Lund.
Vill du köpa, sälja eller värdera bostad i Lomma - Strandstaden? Välkommen att kontakta Bjurfors mäklare i Lomma. Passa också på att anmäla dig till vår kostnadsfria söktjänst Boagenten som hjälper dig att hitta ditt drömboende.
Ansvarig mäklare