-
Köpa
Köpa -
Sälja
Sälja - Hitta bostad
- Skapa bevakning
- Hitta mäklare
55+ boende med uteplats och kanalutsikt.
Lomma - Strandstaden, Lomma
*I avgiften ingår värme och vatten. Det tillkommer ett obligatoriskt tillägg om 271 kr/mån för Telia Triple Play.
**Areakälla enligt bostadsrättsföreningens mäklarbild/utdrag ur lägenhetsregister.
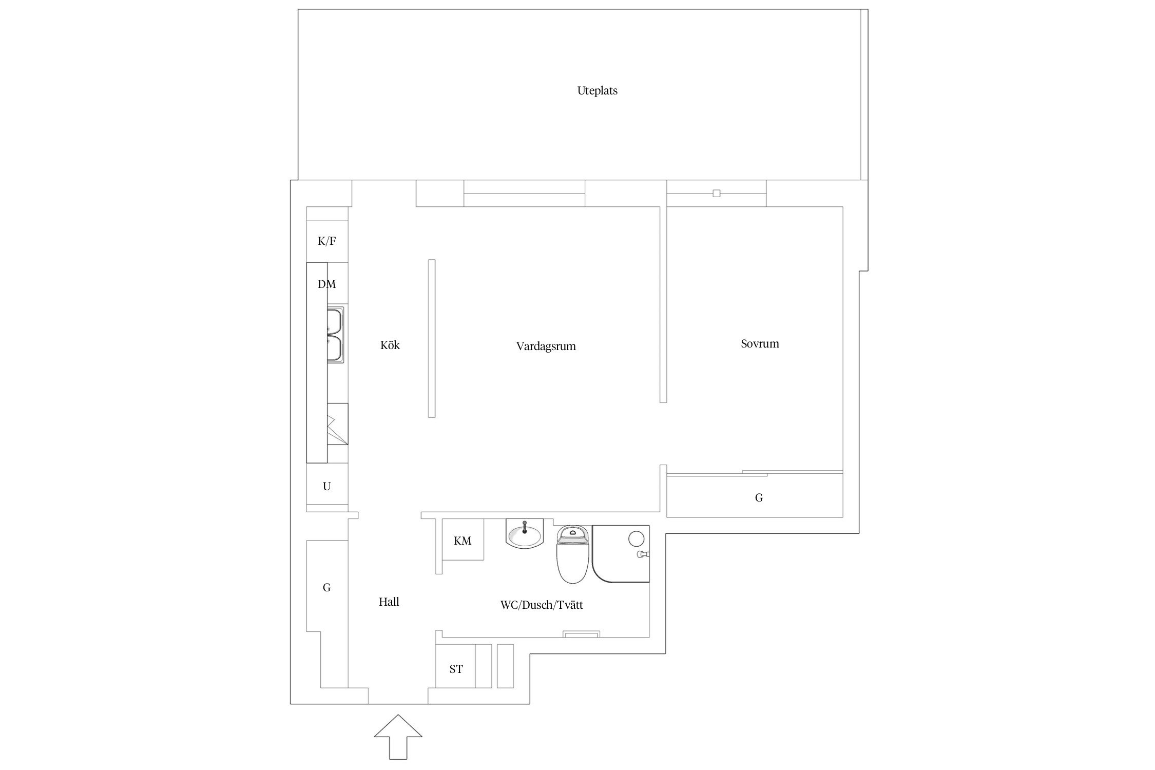
Välkommen till detta fina 55+ boende mitt emellan centrum och Strandstaden. Fin 2:a om 50 kvm med generös uteplats mot Höjeå i bästa västerläge.
Nu finns det ett sällsynt läge att köpa en av de populära lägenheterna som har en generös uteplats med härlig utsikt mot Höjeå. Välkommen till denna välplanerade 2:a om 50 kvm med egen uteplats. Rymlig uteplats om hela 22,5 kvm i soligt västerläge och med underbar utsikt över Höjeå som går strax utanför. Trevligt planerad lägenhet med modernt kök från HTH i öppen planlösning med vardagsrummet, stort sovrum med rymlig skjutdörrsgarderob samt helkaklat badrum som är kombinerad med tvätt. Ett bekvämt 55+ boende mitt emellan centrum och Strandstaden med behändigt avstånd till allt som Lomma har att erbjuda i form av restauranger, matbutik, allmänservice, havet och stranden. Välskött förening med bland annat gemensam festlokal, övernattningslägenhet samt gym. Välkomna på visning!



Planskiss
Lomma 29:22
*Areakälla enligt bostadsrättsföreningens mäklarbild/utdrag ur lägenhetsregister.
I avgiften ingår värme och vatten. Det tillkommer ett obligatoriskt tillägg om 271 kr/mån för Telia Triple Play.
Nettoskuld enligt föreningens förvaltare Nabo.
*Betalas av köpare
Brf Oscarshus, som är ett 55 + boende (kravet att minst en i hushållet är minst 55 år), består av 34 lägenheter och 2 lokaler samt gemensamma ytor, garage och miljöhus. Föreningens 34 lägenheter fördelar sig enligt följande: 7 st 2 rok, 21 st 3 rok och 6 st 4 rok. Föreningens gatuadresser är: Hamntorget 6, 10 och Naxosgatan 5 och 7. Samtliga lägenheter är upplåtna med bostadsrätt och de 2 lokalerna är upplåtna med hyresrätt.
Föreningen anordnar trevliga julfester och midsommarfester och det ordnas även andra fester under året.
I samband med en försäljning vill styrelsen träffa köpare och säljare tillsammans i lägenheten för bland annat en genomgång av vad som minimum skall finnas i lägenheten, att alla nycklar finns och att vissa grundläggande funktioner/utrustning finns. Också stämma av att säljaren, i detta fall mot förmodan, inte vidtaget åtgärder som kräver styrelsens godkännande.
Hela styrelsen vill träffa köparen inför godkännandet av medlemsansökan.
Nabo sköter föreningens ekonomiska förvaltning.
Avgiften höjdes inte inför 2025 eftersom räntorna har gått ner. Inför 2026 kommer sannolikt avgifterna att höjas i storleksordningen 2-5%, svarande till de allmänna kostnadsökningarna. Fjärrvärmen är för tillfället den enskilt största kostnaden för föreningen.
(Kontrollerat 2025-10-08)
Fastigheten är fullvärdesförsäkrad vi Länsförsäkringar och det ingår bostadsrättstillägg för föreningens medlemmar samt ansvarsförsäkring för styrelsen.
Utförda
2023 Ny golvbeläggning i miljörum restaurang, uppgradering nödtelefon och byte styrplattor hissar, rengöring fasader och ytskikt taklägenheter
2019 Fasader
2019 Hissar
2019 Takfläktar
Planerade
2025-2028 Huvudrevision UH-plan. Omläggning takpapp på Naxosgatan, omfogning mjukfog tak. Nya blomlådor. Översyn av ventilationssystem, garagefläkt + värmesystem - fläktbyte, cirkulationspumpbyte, styrventiler. Översyn justering fönster. Ommålning fasad Naxosgatan.
Se årsredovisning för mer information. Föreningen följer en underhållsplan som sträcker sig 30-50 år framåt. (Kontrollerat 2025-10-08)
Det finns 19 garageplatser som går att hyra för 700 kr/mån. I dagsläget finns lediga platser.
Det finns 10 carportplatser som går att hyra för 600 kr/mån. I dagsläget finns det lediga platser.
From 1 april kommer kostnaden belastas med 25% moms enligt nytt besked gällande alla Brf:er från Skatteverket. Månadskostnaden är föremål för eventuell justering i samband med budget-processerna.
Det finns laddplatser till samtliga garage- och carportplatser. Priset ändras löpande baserat på el-priset. Ingen månadsavgift. 100 kr i engångsbelopp för en tagg att aktivera laddning.
Det finns 4 parkeringsplatser i anslutning till garageinfarten varav 2 är under carport. Inga lediga platser i dagsläget. (Kontrollerat 2025-10-08)
Bredband (100 mbit), TV "Lagom" med Danmarks-tillägg och IP-telefon via Telia ingår i avgiften. Högre hastighet kan tecknas individuellt direkt med Telia liksom att komplettera med andra kanaler och streamingtjänster.
Föreningen har en fin trädgård med trevlig utsikt mot Höje å. Här finns även en boulebana för medlemmar att nyttja. En gång om året anordnas "Oscarshus mästerskap" i boule. Under säsongen är det dessutom organiserat boule-spel varje vecka.
Föreningen har två gästrum som medlemmar kan hyra. Gästrummen har en våningssäng vilket gör att om boende har gäster på besök med barn kan det få plats tre personer.
Medlemmar kan även hyra en gemensamhetslokal. Lokalen har ett fullutrustat kök och plats för 30-35 sittandes gäster, perfekt för tillställningar. I denna lokal har föreningen sina informationsmöten.
För den aktiva finns det ett gym och även en bastu att nyttja. För den som vill mangla sitt linne finns det ett mangelrum (ingen gemensam tvättstuga).
Källarförråd till samtliga lägenheter.
Information som berör föreningen är inhämtad via årsredovisning, stadgar och kontakt med föreningen. Avvikelser kan förekomma och som köpare uppmanas du att själv kontrollera samtliga uppgifter, framförallt om något är av extra stor betydelse för dig som köpare.
För mer information om föreningen besök gärna föreningens hemsida: www.brfoscarshus.se
Lomma är en tätort i Lomma kommun. Eftersom Lomma ligger vid mynningen till Höje å blev det redan under 1600-talet en naturlig plats för tull, omlastning och handel. Lomma är en blomstrande sommarort som speciellt under semestermånaderna drar mycket folk från de kringliggande kommunerna.
Varje sommar hålls en uppskattad folkfest i centrala Lomma med marknad, uppträdanden, tivoli, långlördag, utställningar, veteran- och sportbilsutställning, hantverksmässa, ponnyridning, konserter och mycket mer. För den som vill bada finns fina sandstränder och välskötta badplatser.
I Lomma centrum finns restauranger, fiskbod, bibliotek samt annan service som banker, apotek, vårdcentral, mataffärer och gym. Med en kort bil- eller bussresa kan du ta dig till större shoppingcenter som Burlövs Center och Nova Lund.
Landskapet i Lomma kommun är övervägande flackt och naturen präglas av det öppna landskapet och havet. Vacker natur finns framförallt i anslutning till stranden som till exempel området kring mynningen vid Lödde å och Alnarps ängar. Det kommunala naturreservatet Slättängsdammarna anses ha ett stort biologiskt och kulturhistoriskt värde. Tallplanteringarna Habo fure och Kyrkfuret bildar tillsammans ett större rekreationsområde med skogskänsla.
Alnarp är en mindre ort i Lomma kommun som också är säte för Sveriges lantbruksuniversitet, SLU. Här finns även den fantastiskt vackra botaniska trädgården i Alnarpsparken samt Alnarps slott som byggdes 1862. Området ligger som en grön oas mitt i det skånska landskapet. Strax intill ligger Alnarpsgården med lantbruksmuseum och undervisningslokaler. Nära byn ligger Alnarps restaurang, som förutom lunch och á la carte även erbjuder en mängd trevliga och uppskattade events som ostprovningar, temaveckor och studentfirande. Från Lomma går flera olika busslinjer och tåg, så att du lätt kan pendla till både Malmö och Lund.
Vill du köpa, sälja eller värdera bostad i Lomma - Strandstaden? Välkommen att kontakta Bjurfors mäklare i Lomma. Passa också på att anmäla dig till vår kostnadsfria söktjänst Boagenten som hjälper dig att hitta ditt drömboende.
Kontakta mäklaren om du behöver hjälp att ta fram en boendekalkyl.
När du köper din bostad genom Bjurfors kan du ansöka om bolån till en förmånlig ränta hos vår samarbetspartner SEB.
Ansvarig mäklare