-
Köpa
Köpa -
Sälja
Sälja - Hitta bostad
- Skapa bevakning
- Hitta mäklare
Enebyberg, Danderyd
*Areauppgifter enligt taxeringsinformationen
Bokad visning.
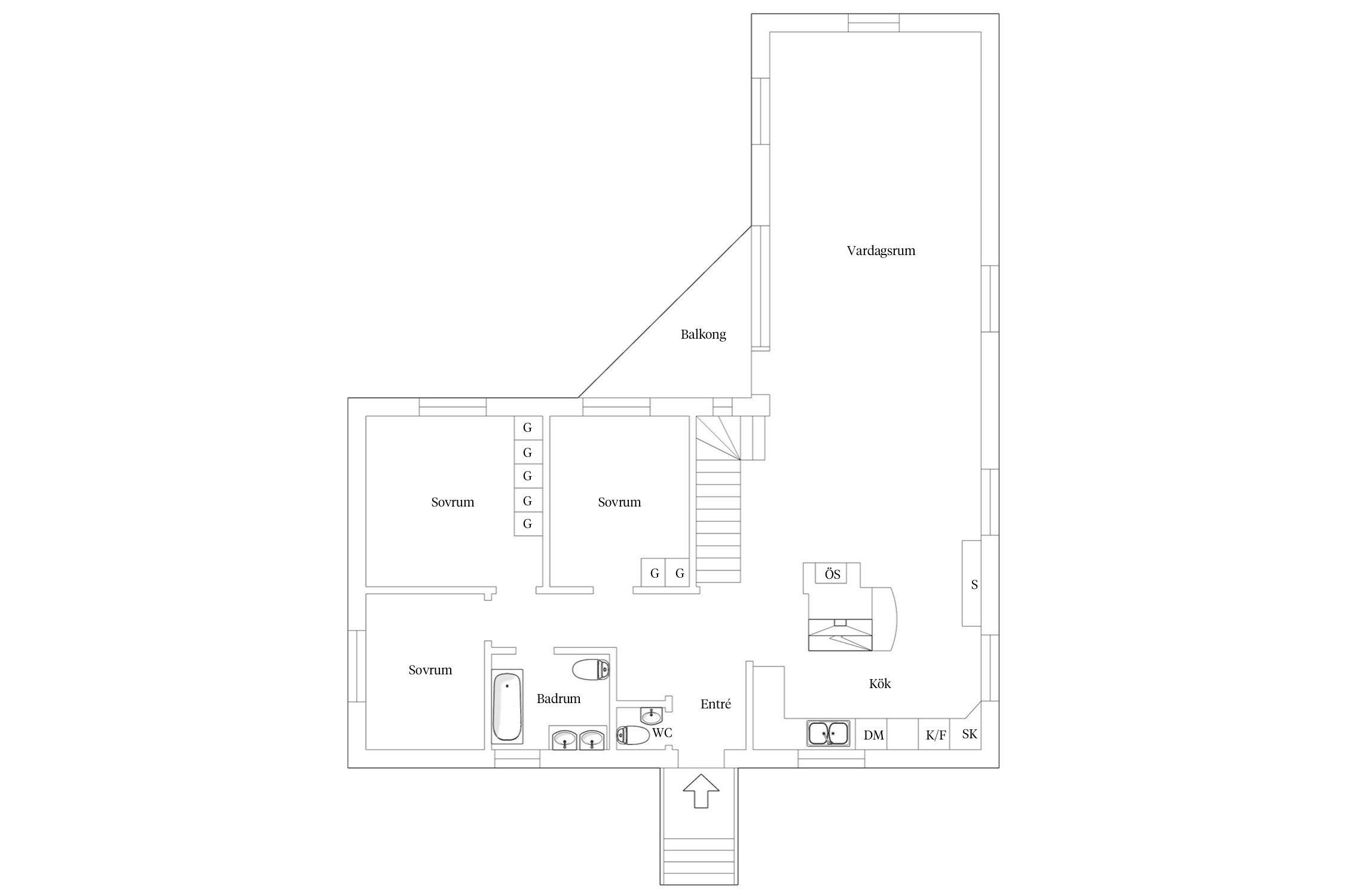
Välkommen till en fantastiskt fin 40-talsvilla, oerhört snyggt tillbyggd till en sömlös helhet med ett underbart vardagsrum uppe och extra allrum plus sovrum nere. TiIlbyggnaden har också utökat huset rejält till hela 7 rum varav 4–5 möjliga sovrum – allt i ett toppenläge på en stor kullig hörntomt med strategisk placering i Enebyberg.
Husets L-form ger en väldigt bra planlösning och generöst med ljusinsläpp, och skapar även en maffig uteplats i skyddat läge på baksidan, med perfekt solläge. Övervåningens trekantiga balkong har samma fina solläge. Interiören är genomgående ljus och fräsch med gedigna furugolv och smakfullt kök.
Vid tillbyggnaden gjordes även ett flertal andra renoveringar, bland annat nya fönster och altandörrar, balkong, tilläggsisolering, ny el och VA, bergvärme samt uppdatering av kök, wc och badrum. Det har även gjorts flera senare renoveringar av dusch/tvättstuga med mera.
Trädgården är stor och väldigt fin, med högt relativt fritt läge och gott om träd och buskar, bland annat äppelträd och björkar. Framför det fristående garaget ryms två bilar.
Läget är optimalt för en barnfamilj, nära förskolor och skolor, parker och lekplatser, samt stora friluftsområden. Det är även nära till Enebytorg och kommunikationer med buss och Roslagsbanan – det mesta av allt detta finns inom gång- eller cykelavstånd.
Övervåningen är även entréplan med ingång till en välkomnande hall med bra plats för klädavhängning. Gäst-wc intill hallen liksom badrummet som har badkar och dubbel tvättställskommod. Hallpassagen i husets originaldel omges av tre ljusa sovrum i olika storlekar, alla har dock gott om plats för både säng, skrivbord och klädförvaring.
På motsatt sida öppnar sig en mycket långsträckt och inbjudande sällskapsdel i öppen planlösning, med eldstad närmast köket och sagolikt vardagsrum med ryggåstak, synliga takbjälkar och stora härliga ytor att möblera med soffor och fåtöljer. Ljusinsläppet är frikostigt från tre håll och här finns även utgång till den övre balkongen med sydvästläge. Köket går i lantstil i både luckor och väggpanel.
Från vardagsrummet leder trappan ner till souterrängvåningens hall, och intill den ligger en rejäl tvättstuga med dusch och bastu. Utbyggnaden omfattar på nedre plan ytterligare ett stort allrum med stort fönsterparti mot trädgården och uteplatsen, samt ett sovrum längst in – avskilt och bra som tonårsdel. Från allrummet träder du ut på en vidsträckt stenläggning med sol under dagen till långt inpå kvällen. Här ryms både matbord, grill och sköna sittmöbler för sommarens alla njutbara stunder.
Originaldelen på nere plan omfattar ett stort allrum/gästrum med utrymme för dubbelsäng, skrivbord, läshörna med mera. Övriga rum nere är flera generösa förråd samt en wc som är kaklad i vitt och blått.



Renfanan 16
*Areauppgifter enligt taxeringsinformationen
*Tillbyggd 1997
1997 - Huset byggdes huset ut. I samband med detta gjordes även följande:
- fönster och altandörrar byttes
- delar av huset dränerandes om (oklar omfattning)
- balkongen byggdes
- fasaden tilläggsisolerades och fasadpanelen sattes upp
- köket renoverades
- badrum på över plan renoverades
- lilla toaletten på entréplan och souterrängplan renoverades
- uppvärmningsystemet byttes till bergvärme
- vatten och avloppsledningar byttes till största delen
- stora delar av elen omdragen och kontrollerad
2010 - Dusch/tvättstuga renoverades
2017 - Fasadpanelen på hus och garage målades
2022 - Bergvärmepumpen byttes
2025 - Yttertaket tvättades och målades
- vindens underlagstak behandlat mot mikrobiell påväxt
Fristående garage
Kommunalt vatten, Kommunalt avlopp.
Tomtindelning (1945-01-27) Stadsplan (1934-11-09)
Last: Avtalsservitut Villa och årlig avgäld, 01-IM4-12/389.1
Last: Avtalsservitut Villa, 01-IM4-45/4064.1
Last: Officialservitut Ledning expr fullbordad, 01-IM4-20/22.1
Fiber
Avtalsservitut Villa
Avtalsservitut Villa och årlig avgäld
Driftkostnader och elförbrukning är inhämtade från säljaren och bör endast ses som en uppskattning. Kostnaden kan variera och baseras på förbrukning och avtal.
Det finns 20 st pantbrev uttagna om sammanlagt 7 172 000 kr
Villasamhället Enebyberg är mycket omtyckt tack vare närheten till Stockholm city, skolor med gott rykte och fina naturområden. I de äldre östra delarna finns mycket kvar av det tidiga 1900-talets villakaraktär. Vid Eneby torg finns ett litet centrum med mataffär och service och vid E18 ligger handelsplatsen Enebyängen med ett flertal butiker.
Naturreservatet Rinkebyskogen erbjuder fina vandrings- och motionsspår samt populära Rösjön med stränder och bad. Skogen och ängarna vid Rösjön vårdas aktivt för att bevara en biologisk mångfald. För den golfintresserade finns Danderyds Golfcenter, Danderyds GK, Stockholms GK (Kevinge) samt Djursholms GK inom kommunen.
Kommunikationerna är goda med Roslagsbanan till Stockholm city samt buss till Mörby centrum/Danderyds sjukhus där tunnelbanan går.
Köpa, sälja eller värdera bostad i Enebyberg? Kontakta våra Bjurfors mäklare i Täby Danderyd! Passa också på att anmäla dig till vår kostnadsfria söktjänst Boagenten som hjälper dig att hitta ditt drömboende.
Kontakta mäklaren om du behöver hjälp att ta fram en boendekalkyl.
När du köper din bostad genom Bjurfors kan du ansöka om bolån till en förmånlig ränta hos våra banksamarbetspartners Söderberg & Partners och SEB.
Bokad visning.
Ansvarig mäklare