-
Köpa
Köpa -
Sälja
Sälja - Hitta bostad
- Skapa bevakning
- Hitta mäklare
Superelegant villa med 7 rum och soliga uteplatser
Enebyberg, Danderyd
*Areauppgifter enligt taxeringsinformationen
På Förhand ligger bostäder som av olika anledningar inte är ute till försäljning just nu men som kan komma att säljas om förutsättningarna är rätt.
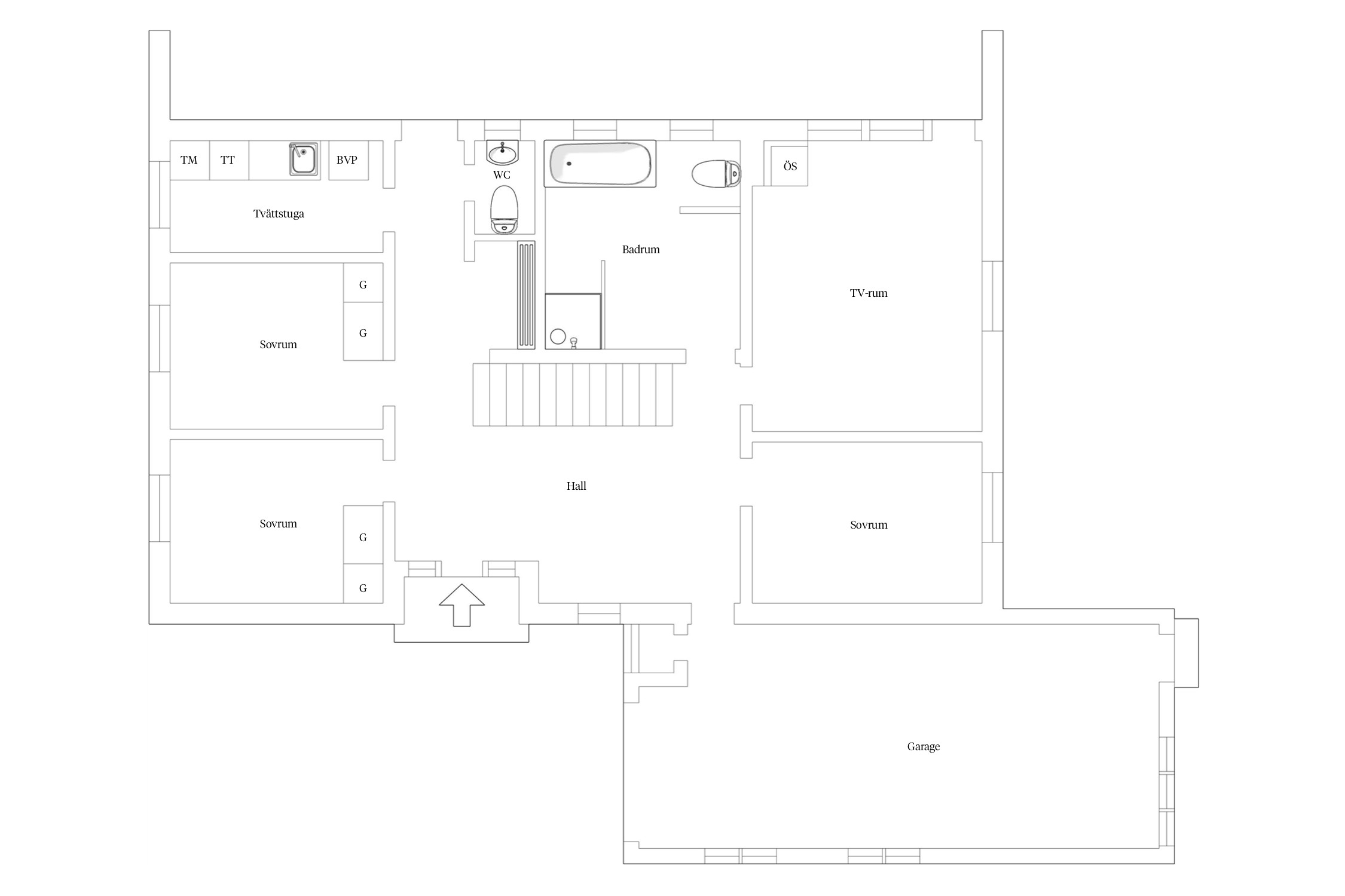
Välkommen till en extremt välrenoverad och stilfull villa i 2 plan utan källare, med soliga uteplatser mot söder och väster, balkong längs hela övervåningen och utmärkt rumsfördelning med luftiga sällskapsytor och 5–6 möjliga sovrum.
Huset är en gedigen och tidstypisk 60-talsvilla som moderniserats på ett fantastiskt fint sätt med exklusivt kök, eleganta badrum, flera platsbyggda förvaringslösningar och vackra materialval, från de ljusa parkettgolven till trapphuset med glasräcken. Uteplatsen på baksidan är väldigt solig tack vare söderläget, detsamma gäller balkongen. Det finns också en uteplats mot väster och kvällssolen.
Entréplanet har 3 sovrum samt allrum med öppen spis. På övervåningen finns ytterligare 2 sovrum och en underbar öppen sällskapsdel med kök, matsal och vardagsrum över stora ytor. Båda våningarna har badrum och nere finns även gäst-wc. Villan omges av en plan, lekvänlig och lättskött trädgård med stenläggning kring huset och stenlagd uppfart med plats för flera bilar.
Läget är väldigt fint i norra delen av populära Enebyberg, en lugn oas nära stan, med gångavstånd till förskolor och skolor och till Roslags Näsby station på Roslagsbanan. På Enebybergsvägen går också bussar till bland annat Danderyds sjukhus.
Den väl tilltagna entréhallen gör det enkelt att samla familjens alla ytterkläder och annan förvaring, och ger gott om plats för att välkomna många gäster. Rakt fram finns dessutom ett separat kapprum med gäst-wc samt utgång till baksidans stenlagda uteplats i söder. Bredvid hallpassagen ligger tvättstugan, också den mycket välrenoverad.
Till vänster om hallen ligger 2 rymliga barnrum med plats för flera möbler förutom säng, och till höger ligger ytterligare ett sovrum eller kontor, plus ett stort allrum/tv-rum med öppen spis, massivt ljusinsläpp och utgång till uteplatsen. Bakom trapphuset ligger ett lyxigt badrum med läckert kakel, designbadkar och separat duschdel.
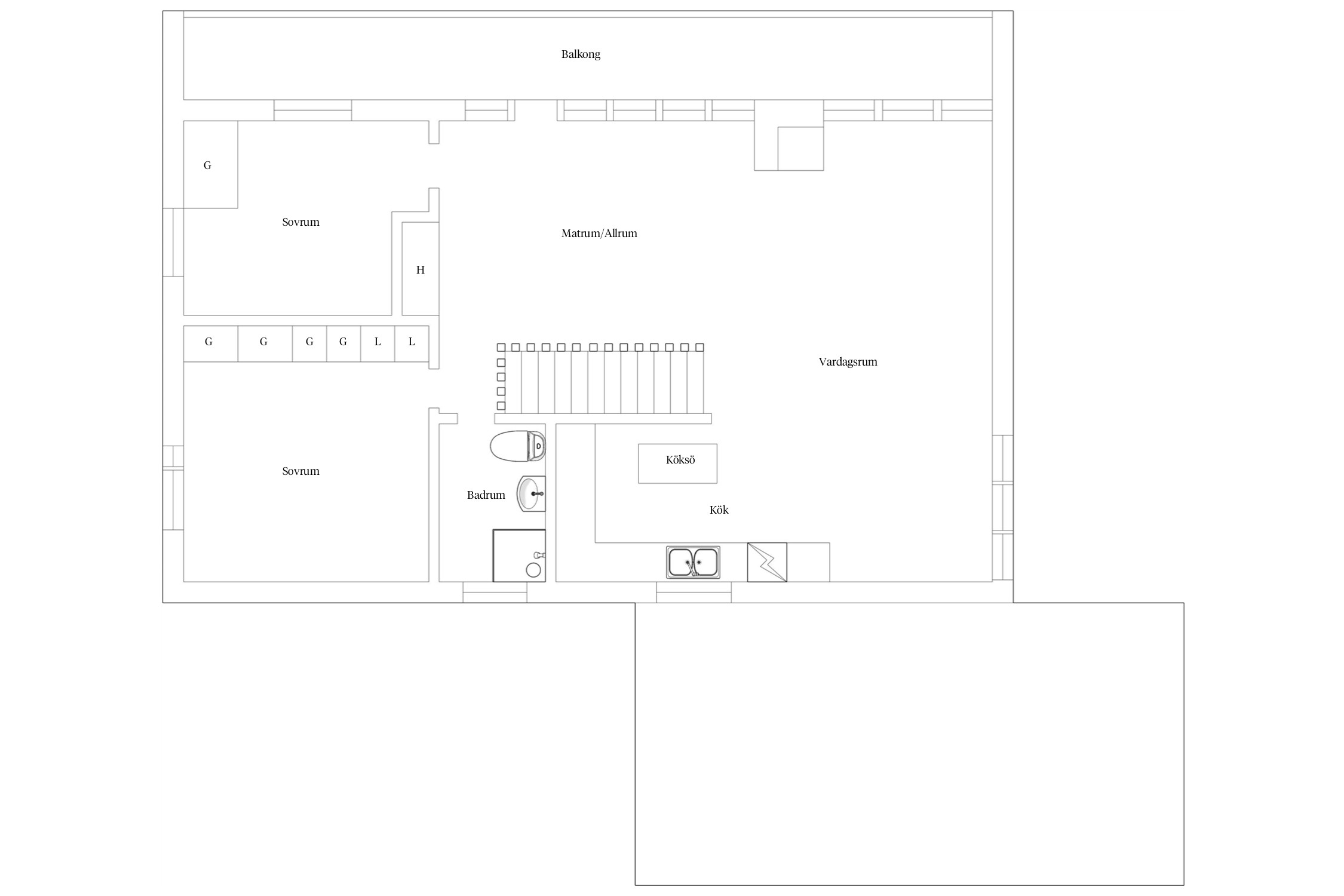
Trappan leder rakt upp i sällskapsdelen, som sträcker ut sig över stora ytor i en öppen planlösning med optimal fördelning mellan kök, vardagsrum och matsal. Köket är påkostat och högklassigt med sofistikerad skåpinredning, bänkskivor i marmor och maffig köksö, också inklädd i marmor. Hörnan mot väster har en platsbyggd mindre matplats vid ett stort fönsterparti.
Vardagsrum och matsal flödar av ljus från höga fönster längs hela baksidan, och vardagsrumsdelen har platsbyggd bokhylla och tv-bänk. Matsalsdelen har utgång till den långsträckta balkongen, med plats för många vilstolar på rad och optimalt solläge mot söder och utsikt över baksidans trädgård.
Utöver gemensamhetsytorna finns 2 sovrum varav ett spatiöst master bedroom med inbyggd garderobsvägg och fransk balkong , och ett barnrum med platsbyggd förvaring och sittbänk. Bakom trapphuset finns ett duschrum, lika snyggt inrett som det nedre badrummet.



Morkullan 19
*Areauppgifter enligt taxeringsinformationen
- 2021-2022 görs följande renoveringar av entreprenörer.
- På entréplan tas gamla golvkonstruktionen bort och ersätts med ny isolering och ingjuten vattenburen golvvärme.
- Bergvärme
- Två våtutrymmen, tvättstuga och toalett renoveras. Kvalitetsdokument finns men kunde inte uppvisas vid besiktningstillfället.
- Nytt kök monteras.
- Alla rum renoveras. Dock saknas enstaka lister, träomfattning runt dörr, trösklar och några skyddslock till strömbrytare.
- Ny stenläggning runt hus och uppfart.
- Ny altan.
- Nya fönster och dörrar monteras.
- Elen renoveras med nya ledningar och ny el-central.
- 2023 monteras ny träpanel och isolering på fasadens baksida. Utfört i egen regi med hjälp av entreprenörer.
- Eldstaden är sotad och godkänd.
- Korttidsmätning av radon är gjord, dokument finns hos fastighetsägaren.
Kommunalt vatten, Kommunalt avlopp.
Stadsplan (1974-05-22) Tomtindelning (1966-04-26)
Last: Avtalsservitut Villa Och Årlig Avgäld, 01-IM4-12/478.1
fiber
Avtalsservitut Villa Och Årlig Avgäld
Det finns 8 st pantbrev uttagna om sammanlagt 6 885 000 kr
Villasamhället Enebyberg är mycket omtyckt tack vare närheten till Stockholm city, skolor med gott rykte och fina naturområden. I de äldre östra delarna finns mycket kvar av det tidiga 1900-talets villakaraktär. Vid Eneby torg finns ett litet centrum med mataffär och service och vid E18 ligger handelsplatsen Enebyängen med ett flertal butiker.
Naturreservatet Rinkebyskogen erbjuder fina vandrings- och motionsspår samt populära Rösjön med stränder och bad. Skogen och ängarna vid Rösjön vårdas aktivt för att bevara en biologisk mångfald. För den golfintresserade finns Danderyds Golfcenter, Danderyds GK, Stockholms GK (Kevinge) samt Djursholms GK inom kommunen.
Kommunikationerna är goda med Roslagsbanan till Stockholm city samt buss till Mörby centrum/Danderyds sjukhus där tunnelbanan går.
Köpa, sälja eller värdera bostad i Enebyberg? Kontakta våra Bjurfors mäklare i Täby Danderyd! Passa också på att anmäla dig till vår kostnadsfria söktjänst Boagenten som hjälper dig att hitta ditt drömboende.
Kontakta mäklaren om du behöver hjälp att ta fram en boendekalkyl.
När du köper din bostad genom Bjurfors kan du ansöka om bolån till en förmånlig ränta hos vår samarbetspartner SEB.
Ansvarig mäklare