-
Köpa
Köpa -
Sälja
Sälja - Hitta bostad
- Skapa bevakning
- Hitta mäklare
Högst upp i huset med vidsträckt utsikt över Edsviken och Kevinge golfbana.
Kevingeringen, Danderyd
*I månadsavgiften ingår värme, vatten, TV (basutbud), internet (bredband) och telefoniabonnemang (ip-telefon). Avgiften höjdes med 3 % fr.o.m. 2025-04-01
På Förhand ligger bostäder som av olika anledningar inte är ute till försäljning just nu men som kan komma att säljas om förutsättningarna är rätt.
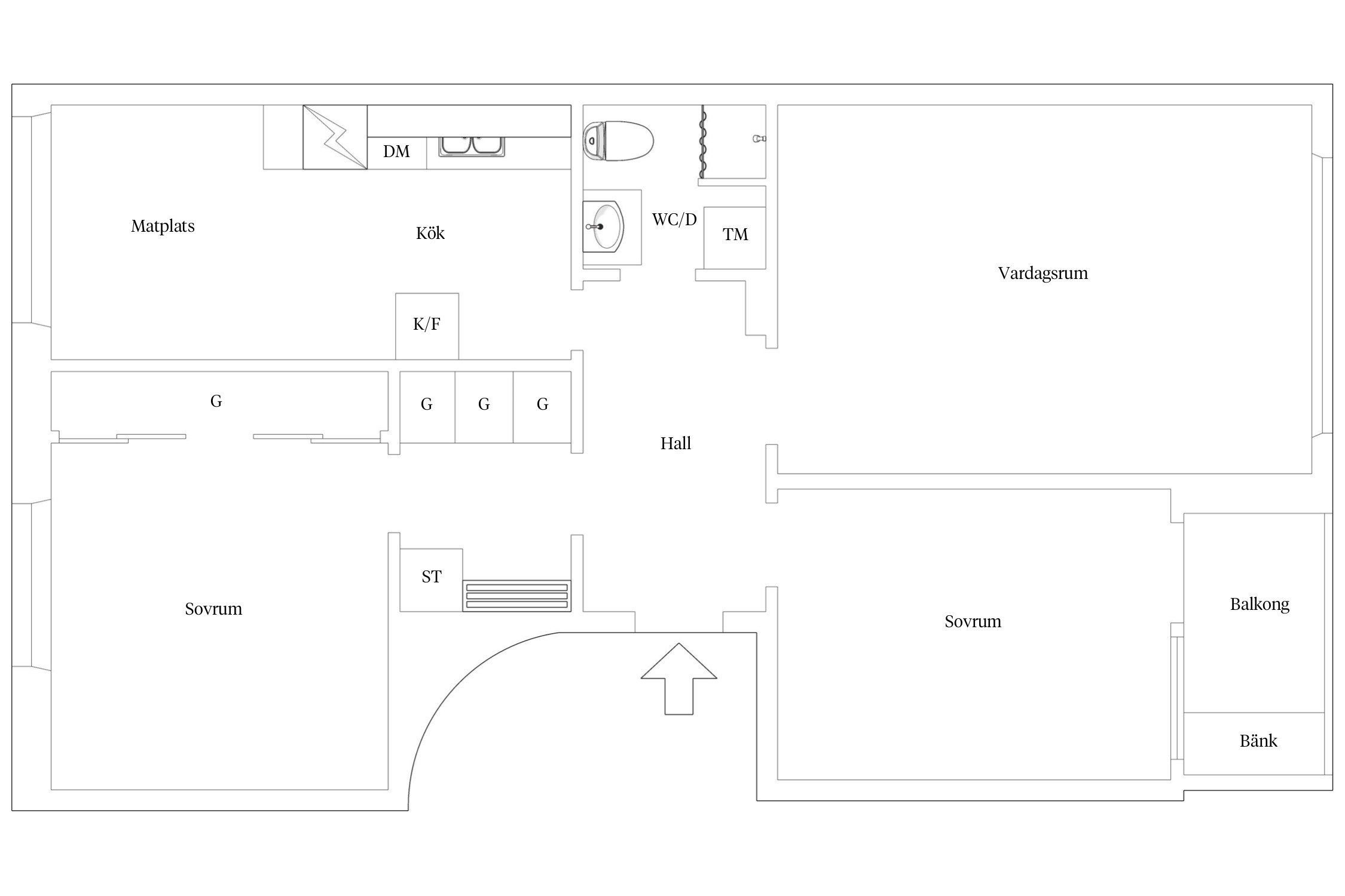
Välkommen till denna ljusa och välplanerade trea, högst upp i huset, med en fantastisk utsikt över Edsviken och Kevinge golfbana. Här bor du i ett av områdets mest attraktiva lägen – med naturen som närmaste granne och stadens bekvämligheter inom bekvämt räckhåll.
Bostaden erbjuder en genomtänkt planlösning med två rymliga sovrum. Från det ena sovrummet når du den trädäckade balkongen i soligt sydvästläge, där en platsbyggd bänk bjuder in till avkoppling medan du njuter av eftermiddags- och kvällssolen samt den vackra utsikten över både vatten och golfbana. Det andra sovrummet är generöst tilltaget och erbjuder en hel garderobsvägg med praktisk Elfa-inredning.
Det luftiga vardagsrummet ger gott om plats för både sociala tillställningar och lugna stunder. Köket rymmer en trivsam matplats och hallen är välkomnande med goda förvaringsmöjligheter. Det helkaklade duschrummet är utrustat med golvvärme för extra komfort. Genomgående parkettgolv och uppdaterade ytskikt skapar ett modernt och enhetligt intryck. Lägenheten erbjuder dessutom mycket god förvaring med både rymligt källarförråd och praktisk matkällare.
Föreningen är stabil och mycket uppskattad med god ekonomi och låg avgift. Här finns ett fullt utrustat gym, föreningslokal, vävstuga och snickeriverkstad, samt flera gemensamma ytor såsom lekplatser, pingisrum, grillplatser och fotbollsplan. Fiberanslutning om 1000 Mbit/s ger snabb och stabil internetuppkoppling.
Läget är optimalt med närhet till allt du behöver. På kort avstånd ligger Mörby Centrum (framtida Danderyds Centrum) med tunnelbanans röda linje, bussar, butiker, restauranger och service. Endast cirka fem minuter bort finns badplats vid Edsviken. I Kevinge finns även vackra strandpromenader, båthamn och tennisbanor samt fina utsiktsplatser och grillområden.
Här bor du i ett område som kombinerar det bästa av natur, rekreation och stadsliv – ett hem att trivas i året om. En eftertraktad bostadsrätt med låg avgift i en av Danderyds mest omtyckta föreningar.
Välkommen till ett hem att trivas i – i populära Kevinge!



I månadsavgiften ingår värme, vatten, TV (basutbud), internet (bredband) och telefoniabonnemang (ip-telefon).
Avgiften höjdes med 3 % fr.o.m. 2025-04-01
Garageplatser och parkeringsplatser (med eller utan motorvärmare) finns att hyra. Det är dock kö till dessa. Det finns även p-plats för MC i garaget samt 8 laddplatser för elbil. Fri parkering på gatan.
Garageplats (62 st)
Parkeringsplats (208 st)
Bostadsrättens indirekta nettoskuldsättning baseras på föreningens skulder/lån minus föreningens räntebärande tillgångar och likvida medel. Beräkningen är gjord via Bopedia. För mer information kontakta ansvarig fastighetsmäklare.
Försäkring tillkommer!
Brf Vändkretsen består av två 8-våningshus samt flera 3-våningshus. Området är vackert beläget på berget ovanför Edsviken och har Kevinge golfbana slingrande runt sig. Här finns flera lekplatser och grillplatser.
Här bor du lugnt och tryggt i ett attraktivt och barnvänligt område, samtidigt som du har närhet till både natur, service och utmärkta kommunikationer.
Inom föreningen finns flera hobby-/trivselgrupper med olika aktiviteter och inriktning.
Föreningen har god ekonomi
Fastigheten är försäkrad i Trygg-Hansa där kollektivt bostadsrättstillägg ingår. Det innebär att boende inte behöver teckna eget bostadsrättstillägg, men däremot måste alla ha en egen hemförsäkring.
2024 - Omfattande uppgradering av belysningen
2023-2024 - Renovering av åtta skyddsrum
2023 - Underhållsåtgärder av VVC-systemet (varmvattencirkulation)
2023 - Ny hiss i Kevingeringen 25
2022 - Digitalt låssystem till tvättstugorna
2021 - Installation av fyra laddstolpar för el- och hybridbilar
2019 - Ytrenovering av garagegolven
2019 - Byte och komplettering av tvättstugeutrustning.
2016 - 2019 - Relining av stammar
Garageplatser och parkeringsplatser (med eller utan motorvärmare) finns att hyra. I garaget finns även p-plats för MC. Laddplatser för elbil finns på parkeringsplatserna. Alla platser hanteras via kösystem.
TV (grundutbud) via Sappa och och bredband via Bredband 2
Cykelrum, barnvagnsrum, gym, tvättstugor, föreningslokal samt hobbylokaler (bl.a. vävstuga och snickeriverkstad).
Överlåtelseavgift uppgår till högst 2,5 % och pantsättningsavgift till högst 1 % av gällande prisbasbelopp. Båda betalas av köparen.
Danderyd är en grönskande storstadskommun omgiven av vatten, belägen cirka en mil norr om Stockholm. I Danderyd bor du lugnt och familjevänligt i flerfamiljshus, radhus eller villa. Kommunen har några av de bästa skolorna i landet med såväl kommunala och privata som kooperativa alternativ.
Danderyd består av fyra kommundelar - Danderyd, Djursholm, Enebyberg och Stocksund. Samtliga med ett eget centrum med shoppingmöjligheter och kommunal service. I kommunen finns även ett av de största akutsjukhusen i Sverige, Danderyds sjukhus, med specialistsjukvård inom ett flertal områden.
Här har du mycket bra allmänna kommunikationer med tunnelbana till Mörby centrum/Danderyds sjukhus varifrån bussar går till de olika kommundelarna. Roslagsbanan går genom Stocksund, Djursholm och Enebyberg.
Besök gärna kommunens informativa hemsida på www.danderyd.se
Köpa, sälja eller värdera bostad i Danderyd kommun? Kontakta våra Bjurfors mäklare i Täby Danderyd! Passa också på att anmäla dig till vår kostnadsfria söktjänst Boagenten som hjälper dig att hitta ditt drömboende.
Kontakta mäklaren om du behöver hjälp att ta fram en boendekalkyl.
När du köper din bostad genom Bjurfors kan du ansöka om bolån till en förmånlig ränta hos våra banksamarbetspartners Söderberg & Partners och SEB.
Ansvarig mäklare