-
Köpa
Köpa -
Sälja
Sälja - Hitta bostad
- Skapa bevakning
- Hitta mäklare
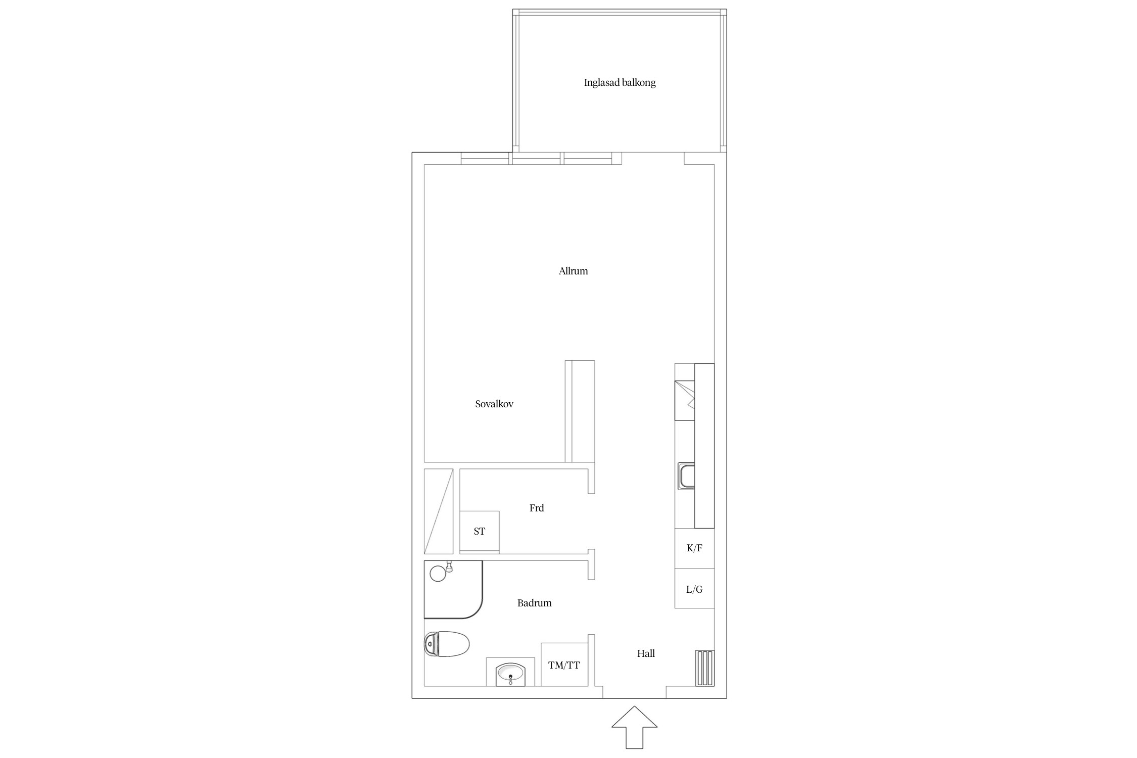
Stilren lägenhet med inglasad balkong
Centrala Haninge, Haninge
*Kabel-tv/bredbandsavgift 229 kr/mån
**Area enligt bostadsrättsföreningen.
På Förhand ligger bostäder som av olika anledningar inte är ute till försäljning just nu men som kan komma att säljas om förutsättningarna är rätt.
Här erbjuds en stilfull och välplanerad bostad på sjätte våningen med idag fin utsikt över natursköna sjön Rudan. Denna ljusa och moderna 1:a om 35 kvm har en inglasad balkong som fungerar som ett extra rum – perfekt för avkoppling året om.
Lägenheten präglas av en genomtänkt planlösning med en smidig hall och god förvaring.
Köket är stilrent och elegant med dovt grå luckor, mörka bänkskivor och integrerade vitvaror, vilket skapar en perfekt helhet.
Vardagsrummet samt kök och hall har vackra trägolv och vitmålade väggar som ger en ljus och luftig känsla.
Sovalkoven är smart avskärmad från köksdelen, vilket ger en avskild sovplats.
Badrummet är rymligt och helkaklat med vita väggar och ett stilfullt mörkt sexkantigt klinkergolv.
Klädkammaren erbjuder generöst med förvaringsmöjligheter tack vare ett genomtänkt hyllsystem.
Här bor du i hjärtat av Handen med allt du behöver inom bekvämt räckhåll. Pendeltågsstationen och bussterminalen ligger runt hörnan, vilket gör pendlingen smidig.
Ovan bussterminal kommer det byggas bostäder.
På bara några minuters promenad når du Haninge Centrum, där du finner matbutik, Systembolaget, shopping och ett brett utbud av restauranger.
För den som uppskattar natur och friluftsliv ligger sjön Rudan en kort promenad bort – en naturskön oas med belysta motionsspår, två utomhus gym, badsjöar samt möjligheter till skridsko- och skidåkning under vinterhalvåret.
En perfekt bostad för dig som söker ett trivsamt hem med närhet till både natur och kommunikationer.
Välkommen på visning!
Kontakta mäklaren för mer information: Carina Odelstad 070-916 58 46
Stilren 1;a på 6:e våningen med elegant kök och sovalkov. Stor inglasad balkong med utsikt mod Rudansjön.
Hall
Ljus hall där första delen är klinkergolv. Bra avhängningsmöjligheter direkt till höger. Vitmålade väggar. I direkt anslutning till hallen finns dessutom ett rymligt förråd, perfekt för extra förvaring.
Kök
Detta eleganta kök från Vedum kombinerar funktion och stil med sina varmgrå skåpluckor, som snyggt kompletteras av en mörk bänkskiva och svarta detaljer. Här finns all utrustning du behöver för en smidig vardag, inklusive diskmaskin, induktionshäll, kyl/frys och en praktisk kombinerad ugn och mikrovågsugn. En smart inbyggd matplats med plats för två stolar gör köket både yteffektivt och inbjudande.
Sovalkov
Den välplanerade sovalkoven erbjuder gott om plats för en säng upp till 1,80 meter och är smidigt avskild från köket för en mer privat och ombonad känsla.
Vardagsrum
Det luftiga vardagsrummet har en öppen och inbjudande planlösning mot köket, vilket skapar en social och trivsam atmosfär. Rummet präglas av ljusa väggar och genomgående parkettgolv. Här finns gott om utrymme för både en bekväm soffgrupp och en matplats.
Badrum
Från hallen kliver du in i det rymliga och stilrena badrummet, där funktion möter modern design. Här finns WC, en duschhörna med eleganta glasväggar, ett stilrent handfat med kommod samt en spegel med integrerad belysning. För extra bekvämlighet är badrummet utrustat med en kombinerad tvättmaskin och torktumlare, kompletterad med en praktisk arbetsbänk och förvaringsskåp ovanför. De vita kaklade väggarna tillsammans med det grå klinkergolvet skapar en tidlös och fräsch atmosfär.
Inglasad balkong
Den inglasade balkongen blir ett extra rum att njuta av året om, perfekt för både avkoppling och sociala stunder. Från sjätte våningen har du en fantastisk utsikt över sjön Rudan, där naturen skiftar vackert med årstiderna. För extra komfort och avskildhet är balkongen utrustad med persienner som smidigt skärmar av från grannarna. Här kan du starta dagen med en kopp kaffe och njuta av utsikten.



*Area enligt bostadsrättsföreningen.
Kabel-tv/bredbandsavgift 229 kr/mån
Det finns garageplatser för uthyrning - varmgarage kostar 1500 kronor och kallgarage 1000 kronor. Kontakta styrelsen för eventuellt kösystem.
Föreningen har ett kollektivt avtal för internet med Telia. Varje lägenhet debiteras 229kr/mån för bredband, tv och telefoni
Bostadsrättens indirekta nettoskuldsättning baseras på föreningens skulder/lån minus föreningens räntebärande tillgångar och likvida medel. Beräkningen är gjord via Bopedia. För mer information kontakta ansvarig fastighetsmäklare.
*Betalas av köpare
Brf Framsidan bildades 2016 och består av 122 bostadsrättslägenheter fördelade på två huskroppar. Två kommersiella lokaler finns i föreningen och är uthyrda.
Vissa av lägenheterna har ett tillhörande förråd och vissa har förrådet i lägenheten.
Som medlem i bostadsrättsföreningen har du tillgång till både bilpool och cykelpool.
Föreningen har även två gemensamhetslokaler och två övernattningslägenheter.
Det finns garageplatser för uthyrning - varmgarage kostar 1500 kronor och kallgarage 1000 kronor. Kontakta styrelsen för eventuellt kösystem.
Föreningen har ett kollektivt avtal för internet med Telia. Varje lägenhet debiteras 229kr/mån för bredband, tv och telefoni
Mitt i naturen, med en underbar skärgård runt hörnet ligger Haninge kommun. Perfekt för den som värdesätter ett aktivt friluftsliv. Inom kommunens gränser finns allt av service man behöver. Och storstadens puls finns bara 20 minuter bort i huvudstaden.
I den vackra skärgårdskommunen Haninge är det aldrig lång till havet och övärlden som består av 3 600 öar, kobbar och skär. Några av de mest kända öarna i Stockholms skärgård ligger här, till exempel Utö och Muskö samt halvön och naturreservatet Gålö. Det finns hela 17 olika naturreservat inom kommunens gränser, varav Tyresta nationalpark och naturreservat är en. Här kan du uppleva trolsk vildmark, vandra i urskog och bada i eller åka skridskor på klara skogssjöar.
Möjligheterna för en aktiv fritid med bland annat bad, golf, båtliv, klättring, paddling och fiske är mycket goda. Kommunen är indelad i sju större delar, alla med sin egen särprägel, miljö och historia. De allra flesta bostadsområdena ligger nära kusten och naturen. Bebyggelsen är blandad med villaområden, småhusbebyggelse och flerfamiljshus. Södra Haninge har lantlig karaktär med många hästgårdar.
I centrala Haninge finns all service samlad som till exempel dagligvaruhandel, bank, apotek, post och flera stora butikskedjor. Här finns också ett populärt kulturhus med bland annat bibliotek och kafé. För den som söker storstadens puls ligger Stockholms city bara 20 minuter bort med pendeltåg. Kollektivtrafiken är väl utbyggd med bussar och pendeltåg som går ofta både mot Stockholm och söderut mot Nynäshamn. Inom kommunen binder gång- och cykelvägar ihop många av bostadsområdena och gör det lätt att förflytta sig.
Även företagen trivs i Haninge och i Albyberg håller en helt ny företagspark på att växa fram. Det som lockar både stora och mindre företag är snabba kommunikationer, närheten till Stockholm, läget ut mot Östersjön och Europa samt samarbetet på högskoleområdet med KTH.
Köpa, sälja eller värdera bostad i Haninge kommun? Kontakta våra mäklare i Haninge! Passa också på att anmäla dig till vår kostnadsfria söktjänst Boagenten som hjälper dig att hitta ditt drömboende.
Kontakta mäklaren om du behöver hjälp att ta fram en boendekalkyl.
När du köper din bostad genom Bjurfors kan du ansöka om bolån till en förmånlig ränta hos vår samarbetspartner SEB.
Ansvarig mäklare