-
Köpa
Köpa -
Sälja
Sälja - Hitta bostad
- Skapa bevakning
- Hitta mäklare
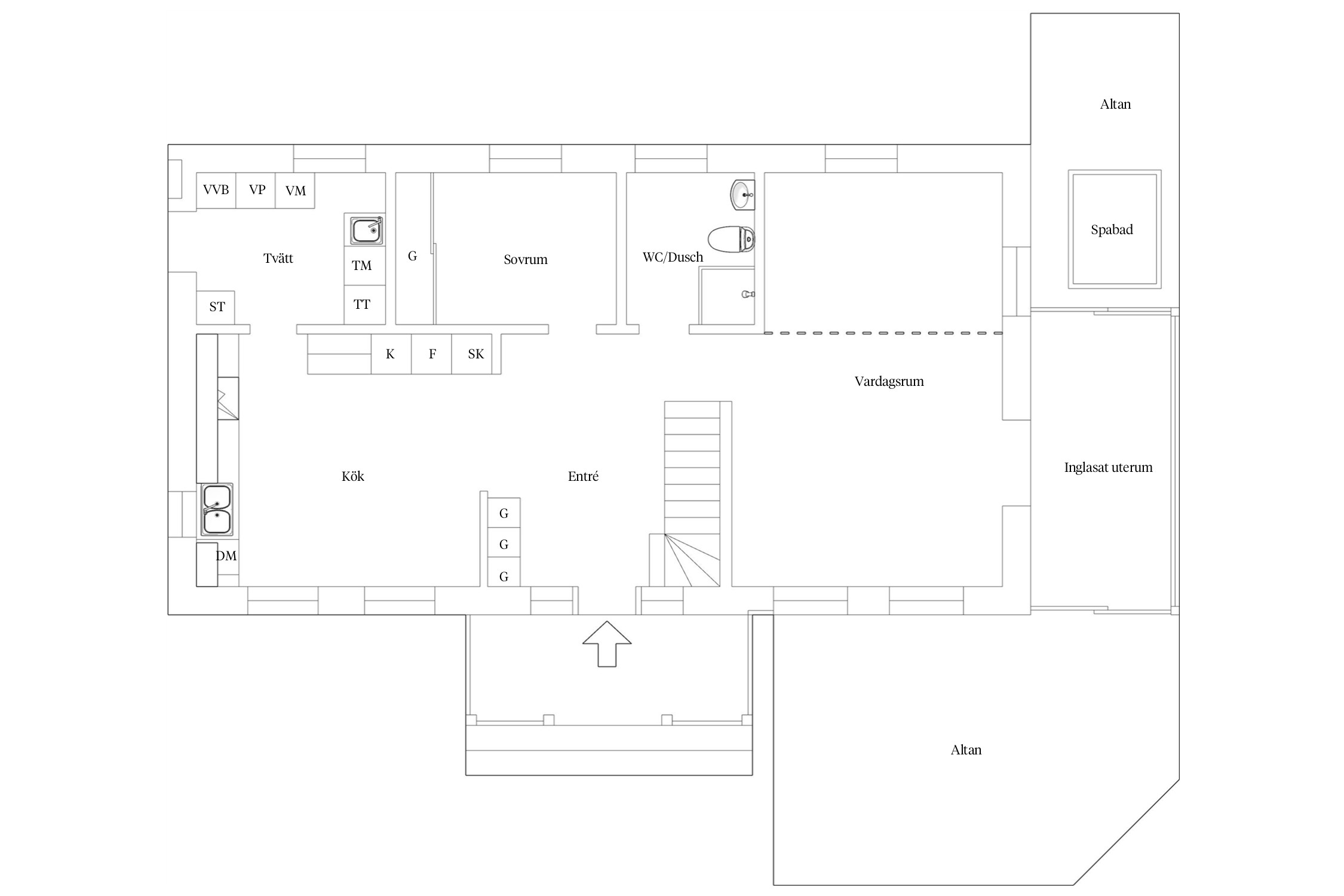
Drömvillan vid Dreviken – Fiskarhedenvilla på en av Vendelsö Gårds finaste tomter
Vendelsö Gård, Haninge
*Areauppgifter enligt uppmätning
Biarean utgör det inglasade uterummet
Fyll i formuläret nedan så hjälper vi dig!



Mitt i naturen, med en underbar skärgård runt hörnet ligger Haninge kommun. Perfekt för den som värdesätter ett aktivt friluftsliv. Inom kommunens gränser finns allt av service man behöver. Och storstadens puls finns bara 20 minuter bort i huvudstaden.
I den vackra skärgårdskommunen Haninge är det aldrig lång till havet och övärlden som består av 3 600 öar, kobbar och skär. Några av de mest kända öarna i Stockholms skärgård ligger här, till exempel Utö och Muskö samt halvön och naturreservatet Gålö. Det finns hela 17 olika naturreservat inom kommunens gränser, varav Tyresta nationalpark och naturreservat är en. Här kan du uppleva trolsk vildmark, vandra i urskog och bada i eller åka skridskor på klara skogssjöar.
Möjligheterna för en aktiv fritid med bland annat bad, golf, båtliv, klättring, paddling och fiske är mycket goda. Kommunen är indelad i sju större delar, alla med sin egen särprägel, miljö och historia. De allra flesta bostadsområdena ligger nära kusten och naturen. Bebyggelsen är blandad med villaområden, småhusbebyggelse och flerfamiljshus. Södra Haninge har lantlig karaktär med många hästgårdar.
I centrala Haninge finns all service samlad som till exempel dagligvaruhandel, bank, apotek, post och flera stora butikskedjor. Här finns också ett populärt kulturhus med bland annat bibliotek och kafé. För den som söker storstadens puls ligger Stockholms city bara 20 minuter bort med pendeltåg. Kollektivtrafiken är väl utbyggd med bussar och pendeltåg som går ofta både mot Stockholm och söderut mot Nynäshamn. Inom kommunen binder gång- och cykelvägar ihop många av bostadsområdena och gör det lätt att förflytta sig.
Även företagen trivs i Haninge och i Albyberg håller en helt ny företagspark på att växa fram. Det som lockar både stora och mindre företag är snabba kommunikationer, närheten till Stockholm, läget ut mot Östersjön och Europa samt samarbetet på högskoleområdet med KTH.
Köpa, sälja eller värdera bostad i Haninge kommun? Kontakta våra mäklare i Haninge! Passa också på att anmäla dig till vår kostnadsfria söktjänst Boagenten som hjälper dig att hitta ditt drömboende.