-
Köpa
Köpa -
Sälja
Sälja - Hitta bostad
- Skapa bevakning
- Hitta mäklare
Idylliskt boende med närhet till Drevviken
Vendelsö Gård, Haninge
*I årsavgiften ingår vatten, bredband och basutbud TV, tillgång till en parkering med motorvärmare
**Enligt föreningens information
Öppen visning, välkommen! Föranmäl gärna ditt intresse.
Väldisponerad, charmig och hemtrevlig bostad om 91 kvadratmeter i populära, omtyckta och idylliska Vendelsö Gård.
Välkommen till Läktvägen 49 - Ett optimalt planerat gavelradhus!
Med sina 91 noggrant planerade kvadratmeter fördelat på två våningar, bjuder detta hem in till en mycket trivsam boendemiljö. Idealiskt för paret eller familjen som vill bo nära naturen och havet, med utmärkta kommunikationer som tar dig smidigt in till stan.
När du kliver in möts du av en rymlig hall med praktiska skjutdörrsgarderober och goda förvaringsmöjligheter.
Köket är utformat med omsorg och är både stilrent och funktionellt, med generösa arbetsytor och bra förvaringsutrymme för att hålla köket organiserat och snyggt. Här finns gott om plats för en stor matgrupp, perfekt för att avnjuta måltider tillsammans med familj och vänner.
Det stora helkaklade badrummet har ett bekvämt badkar för avkoppling efter en lång dag, samt ett stilrent handfat med kommod och skåp som erbjuder förvaringsutrymme. Här finns även en tvättmaskin och torktumlare, vilket gör det idealiskt för vardagsrutinerna.
Vardagsrummet är ljust och trevligt med fin vy mot baksidan och gott om plats för soffa och tillhörande möblemang. Från vardagsrummet leder dörren ut till en insynsskyddad baksida med hög Thujahäck. På altanen finns plats för både en soffgrupp, en matgrupp och en grill, perfekt för trevliga stunder utomhus.
På övre våningen väntar tre mysiga sovrum och ett badrum med dusch. Här kan du njuta av en avkopplande och bekväm atmosfär för en god natts sömn.
Området präglas av lugn och ro och ligger på bekvämt avstånd till morgon- eller kvällsdoppet i sjön Drevviken. Närliggande finns även mataffär, restauranger, skola och förskola. Kommunikationer är också lättillgängliga med endast 5-10 minuters promenad till bussar som tar dig till Vega staden, Gullmarsplan och direktbussar till T-centralen.
Här bor du avskilt med skogen och sjön som grannar, men ändå med närhet till allt du kan behöva för en bekväm vardag. Välkommen hem!
Gå gärna in på förenings hemsida och läs:
www.norrakyrkviken.se
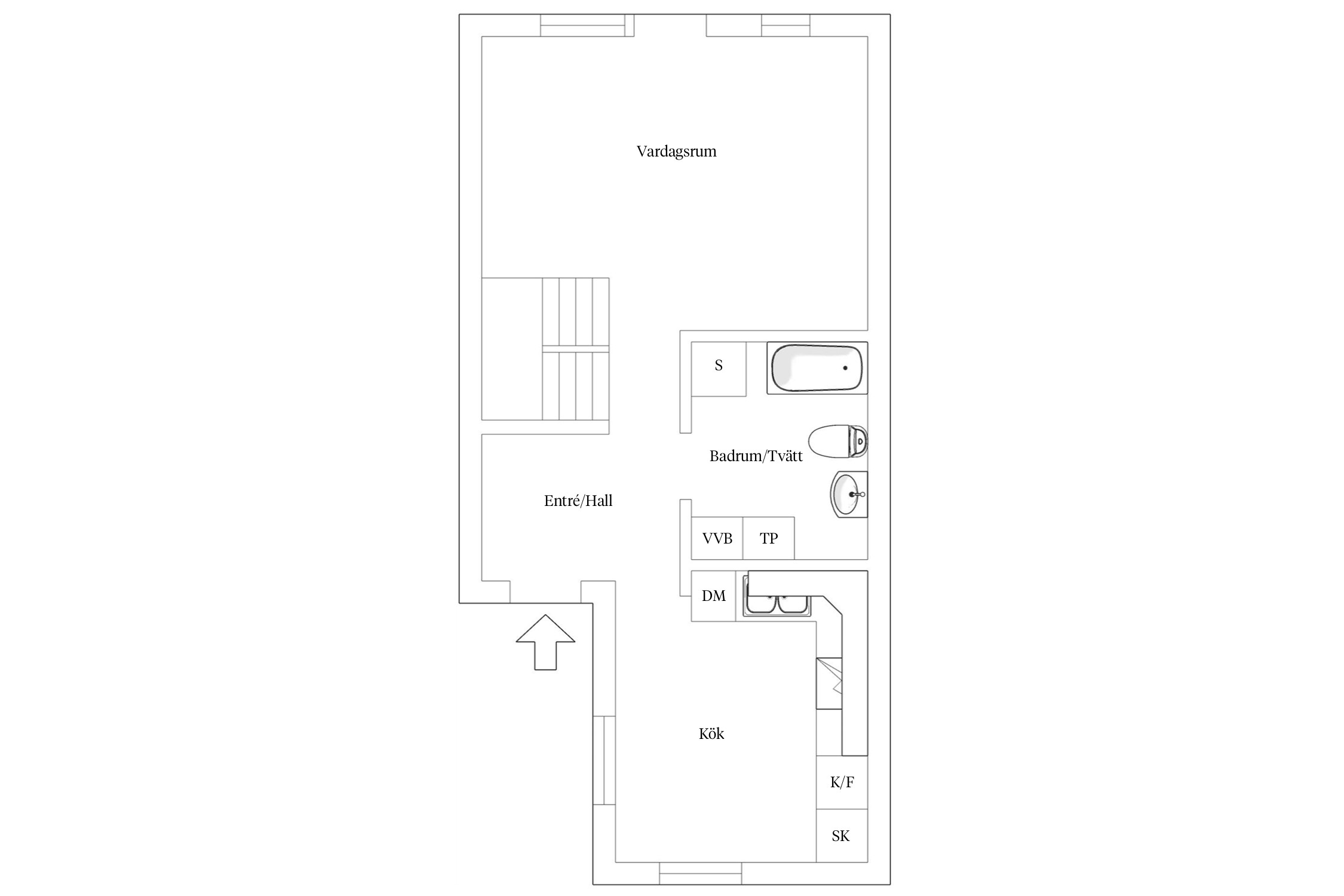
Entréplan:
Hall: Välkomnande hall med gott om plats för ytterkläder och skor. Praktisk förvaring i garderob och ett stilrent klinkergolv som gör hallen lättstädad.
Vardagsrum: Ett rymligt och välutrustat kök i hörnform. Generösa arbetsytor och trevligt ljusinsläpp. Ljusa skåpluckor och stilren kakelsättning skapar en modern och inbjudande atmosfär.
Kök: Ljust och luftigt vardagsrum med stora fönsterpartier som vetter ut mot baksidan. Härifrån når du det trädäckade altanet.
Badrum: Helkaklat badrum i modern design, utrustat med wc, handfat och badkar. Även tvättmaskin och torktumlare finns för praktisk vardagskomfort.
Övre plan:
Allrum: Mindre allrum direkt vid trappan på övre plan, här finns det plats för mindre möblemang.
Sovrum: Tre tilltaga och ljusa sovrum på övre plan. Det största sovrummet har ett härligt ljusinsläpp och utsikt mot den lugna gården.
Badrum: Badrum i stilrena material. Utrustat med wc, handfat och dusch. Perfekt för smidiga morgonrutiner.
Klädkammare: Tilltagen klädkammare med goda förvaringsmöjligheter.
Entréplan
Hall
Välkomnande hall med gott om plats för ytterkläder och skor. Praktisk förvaring i garderob och ett stilrent klinkergolv som gör hallen lättstädad.
Vardagsrum
Ett rymligt och välutrustat kök i hörnform. Generösa arbetsytor och trevligt ljusinsläpp. Ljusa skåpluckor och stilren kakelsättning skapar en modern och inbjudande atmosfär.
Kök
Ljust och luftigt vardagsrum med stora fönsterpartier som vetter ut mot baksidan. Härifrån når du det trädäckade altanet.
Badrum
Helkaklat badrum i modern design, utrustat med wc, handfat och badkar. Även tvättmaskin och torktumlare finns för praktisk vardagskomfort.
Övre plan
Allrum
Mindre allrum direkt vid trappan på övre plan, här finns det plats för mindre möblemang.
Sovrum
Tre tilltaga och ljusa sovrum på övre plan. Det största sovrummet har ett härligt ljusinsläpp och utsikt mot den lugna gården.
Badrum
Badrum i stilrena material. Utrustat med wc, handfat och dusch. Perfekt för smidiga morgonrutiner.
Klädkammare
Tilltagen klädkammare med goda förvaringsmöjligheter.



*Entréplan har hall, kök, badrum samt vardagsrum. Övre plan har allrum, tre sovrum samt toalett.
**Enligt föreningens information
I årsavgiften ingår vatten, bredband och basutbud TV, tillgång till en parkering med motorvärmare
Det ingår en bilplats till bostaden. Gästparkering finns.
Bostadsrättens indirekta nettoskuldsättning baseras på föreningens skulder/lån minus föreningens räntebärande tillgångar och likvida medel. Beräkningen är gjord via Bopedia. För mer information kontakta ansvarig fastighetsmäklare.
*Betalas av köpare
BRF Norra Kyrkviken är en förening med 55 lägenheter i 9 radhuslängor. Området stod klart för inflyttning januari 2000. Badet som ligger inom tre minuters gång avstånd och påminner om skärgården och på vintern åker man skridskor på viken.
Genom Vendelsö passerar ett flertal busslinjer. Några ansluter till pendel- tåget i Haninge centrum medan andra förbinder andra delar av Haninge med bland annat Tyresö och Stockholm samt direktbussar till Gullmarsplan.
Det finns gång- och cykelvägar till Haninge centrum, Brandbergen samt Tyresta by.
Föreningen debiterar köparen en överlåtelseavgift på 2,5% av ett prisbasbelopp samt 1% i pantsättningsavgift.
Det ingår en bilplats till bostaden. Gästparkering finns. Uttag för elbil finns för en tilläggskostnad på 700 kr/mån.
Tele2
Vackra innergårdar med fina lekplatser finns på föreningens mark.
Mitt i naturen, med en underbar skärgård runt hörnet ligger Haninge kommun. Perfekt för den som värdesätter ett aktivt friluftsliv. Inom kommunens gränser finns allt av service man behöver. Och storstadens puls finns bara 20 minuter bort i huvudstaden.
I den vackra skärgårdskommunen Haninge är det aldrig lång till havet och övärlden som består av 3 600 öar, kobbar och skär. Några av de mest kända öarna i Stockholms skärgård ligger här, till exempel Utö och Muskö samt halvön och naturreservatet Gålö. Det finns hela 17 olika naturreservat inom kommunens gränser, varav Tyresta nationalpark och naturreservat är en. Här kan du uppleva trolsk vildmark, vandra i urskog och bada i eller åka skridskor på klara skogssjöar.
Möjligheterna för en aktiv fritid med bland annat bad, golf, båtliv, klättring, paddling och fiske är mycket goda. Kommunen är indelad i sju större delar, alla med sin egen särprägel, miljö och historia. De allra flesta bostadsområdena ligger nära kusten och naturen. Bebyggelsen är blandad med villaområden, småhusbebyggelse och flerfamiljshus. Södra Haninge har lantlig karaktär med många hästgårdar.
I centrala Haninge finns all service samlad som till exempel dagligvaruhandel, bank, apotek, post och flera stora butikskedjor. Här finns också ett populärt kulturhus med bland annat bibliotek och kafé. För den som söker storstadens puls ligger Stockholms city bara 20 minuter bort med pendeltåg. Kollektivtrafiken är väl utbyggd med bussar och pendeltåg som går ofta både mot Stockholm och söderut mot Nynäshamn. Inom kommunen binder gång- och cykelvägar ihop många av bostadsområdena och gör det lätt att förflytta sig.
Även företagen trivs i Haninge och i Albyberg håller en helt ny företagspark på att växa fram. Det som lockar både stora och mindre företag är snabba kommunikationer, närheten till Stockholm, läget ut mot Östersjön och Europa samt samarbetet på högskoleområdet med KTH.
Köpa, sälja eller värdera bostad i Haninge kommun? Kontakta våra mäklare i Haninge! Passa också på att anmäla dig till vår kostnadsfria söktjänst Boagenten som hjälper dig att hitta ditt drömboende.
Kontakta mäklaren om du behöver hjälp att ta fram en boendekalkyl.
När du köper din bostad genom Bjurfors kan du ansöka om bolån till en förmånlig ränta hos våra banksamarbetspartners Söderberg & Partners och SEB.
Öppen visning, välkommen! Föranmäl gärna ditt intresse.
Ansvarig mäklare