-
Köpa
Köpa -
Sälja
Sälja - Hitta bostad
- Skapa bevakning
- Hitta mäklare
Modern tvåplansvilla med takterrass
Älta, Nacka
Välkommen till en modern husdröm i Älta. Stor plan tomt intill park. Nära till förskolor, skolor badsjö och vacker natur. Endast 20 min till City.
Välkommen till denna helt nybyggda tvåplansvilla om ca 200 kvm som erbjuder en genomtänkt arkitektur med rena linjer och en tidlös design. Arkitektens tanke har varit att skapa ett hem med funktionalitet, lekfullhet och samtidigt inte göra avkall på en väldisponerad planlösning. Stor härlig gräsmatta och uteplatser med sol från morgon till kväll.
Den generösa takhöjden på entréplanet förstärker känslan av rymd och tillsammans med stora fönsterpartier skapas det en ljus och luftig atmosfär. Här erbjuds härliga sociala ytor i öppen planlösning mellan vardagsrum, kök och matplats. Från vardagsrummet sträcker sig stora skjutdörrar i glas ut mot trädgården, vilket suddar ut gränsen mellan inne och ute och låter grönskan bli en del av interiören. Exklusiv och påkostad inredning med bland annat fönsterbänkar i marmor, kvartskompositskiva i kök med vitvaror ifrån Miele och italienskt påkostat kakel i badrummen. Praktiskt med fyra stora sovrum varav tre på övre plan. Fyra inbyggda klädkammare. På övre plan har du ifrån allrummet och Master bedroom access till en takterrass om 26 kvm med som från morgon till kväll. Perfekt plats att njuta en varm sommarkväll.
Trädgården om totalt 1838 kvm löper runt om huset och består mestadels av en stor gräsmatta. Här finns alltid en plats i solen och möjlighet att skapa din egen oas med altan däck, pool eller pergola. Här finns många möjligheter. Närmsta granne med en park gör känslan än mer privat.
Villan är byggd med fokus på energieffektivitet, vilket inte bara minskar driftskostnaderna utan också gör det till ett mer hållbart val. Isolering av högsta kvalitet, energisnåla fönster och effektivt uppvärmningssystem ser till att inomhusklimatet är behagligt året om. Ingen fastighetsavgift behöver betalas de närmsta 15 åren. Här kan familjen bo bekymmerlöst i många år.
Som boende på Ältavägen bor du naturnära men ändå centralt i Älta med idrottsplatser, skolor och service runt hörnet. Busshållplats med bekväm och snabb anslutning till Gullmarsplan och Slussen ligger bara en kort promenad bort.
Varmt välkommen att anmäla ditt intresse redan nu för detta stilrena hem!
Villan har en funktionell planlösning där entréplan präglas av sociala ytor och övre plan är en mer privat sfär med tre-fyra sovrum och en härlig takterrass.
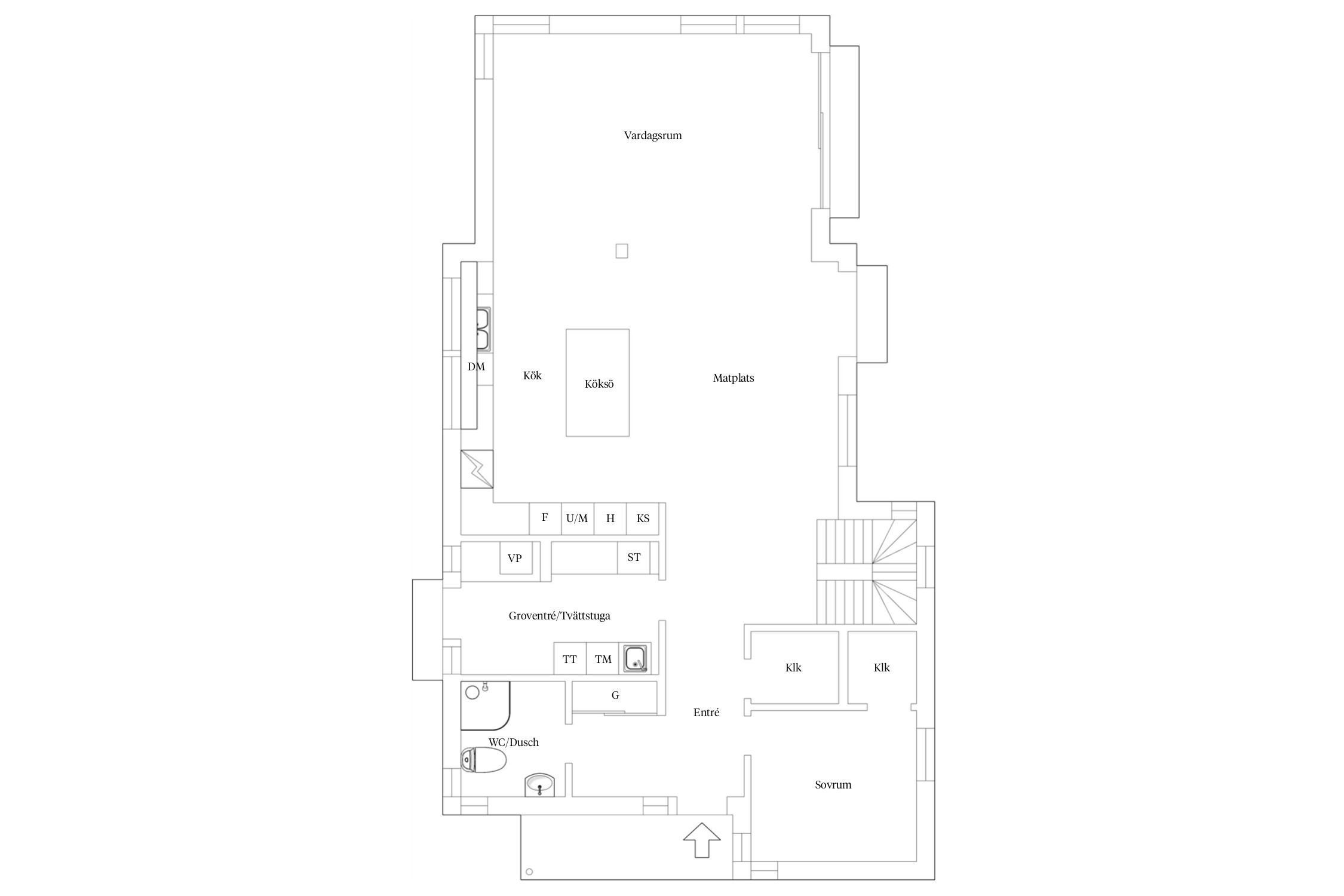
Entréplan
Golvet i entréplanet är vacker ekparkett, vilket ger en varm och naturlig känsla som kompletterar husets moderna design. Kompletteras av snyggt klinker som harmoniserar fint med övriga materialval.
Redan vid entrén möts du av en rymlig hall med bra förvaring via skjutdörrsgarderob, perfekt för att hålla ordning på vardagens alla plagg och prylar. Här ligger ett snyggt praktiskt klinker i grått.
Till höger direkt i hallen nås entréplans sovrum med ekparkett, ljust målade och klädkammare. Smart fönstersättning skapar ljusinsläpp ifrån tre väderstreck.
På motsatt sida hallen nås även ett av villans två badrum som är utrustat med exklusivt italienskt klinker och kakelplattor (60 x60cm). Här finns en dusch i ena hörnan med väggar i glas, tvättställ med kommod undertill och wc. Fint ljusinsläpp El golvvärme installerat.
Rakt fram öppnar sig bostaden och leder vidare in till husets hjärta – vardagsrummet, köket och matplatsen. Entréplan erbjuder ett fint ljusinsläpp via stora fönsterpartier ner till golv. Det generösa köket är designat för både vardag och fest. En fin granitbänkskiva ger en exklusiv touch och hållbar arbetsyta medan vitvarorna från Miele säkerställer högsta kvalitet och prestanda. Köksön fungerar som en naturlig samlingspunkt och knyter ihop kök, matplats och vardagsrum på ett harmoniskt sätt.
Entréplan har även en groventré/tvättstuga med med samma stilrena klinker som i badrum och tvättmaskin/torktumlare ifrån Miele och frånluftsvärmepump ifrån Nibe.
En gedigen trappa leder upp till övre plan med ett fint ljusinsläpp.
Övre plan
På övervåningen möts du av ett praktiskt och välplanerat allrum – en perfekt yta för umgänge eller avkoppling.
De rymliga sovrummen på övervåningen är designade med komfort i åtanke. Master bedroom erbjuder plats för en stor dubbelsäng, och de övriga sovrummen har generösa ytor som gör det enkelt att anpassa efter behov – oavsett om det är barnrum, gästrum eller hemmakontor. Det stilrena badrummet är inrett med både dusch och badkar med samma stil som entréplan. El golvvärme installerat.
Ifrån allrummet nås den härliga takterrassen om 26 kvm. En plats där du kan njuta av soliga dagar, avkopplande kvällar och sociala tillställningar under bar himmel. Takterrassen erbjuder en naturlig förlängning av boendet, perfekt för allt från morgonkaffet till sena sommarkvällar med vänner och familj.
Det här huset är en perfekt kombination av modern estetik, smart funktionalitet, rymliga ytor och hållbarhet.



Entréplan
Övre plan
Älta 9:150
*Eksjöhus
Kommunalt vatten
Byggnadsplan (1938-05-04)
Last: Avtalsservitut Avloppsanläggning, 01-IM8-85/38169.1
Avtalsservitut Avloppsanläggning
I posten uppvärmning ingår även hushållselen och i posten VA även sophämtning gemensam faktura ifrån NVOA . 14 494 kWh/år är en schabloniserad uppskattad energianvändning utifrån den energiverifiering som gjort av Eksjöhus och finns bifogad under dokument. Ingen fastighetsavgift behöver betalas de närmsta 15 åren.
Driftskostnaden är beroende på antal personer i hushållet samt vanor och avtal. Driftskostnaden är en uppskattning av ungefärliga kostnader för den/de som bor i bostaden. Kontakta gärna kommun och leverantörer för att beräkna driftskostnaden utifrån egna förutsättningar.
Det finns 3 st pantbrev uttagna om sammanlagt 4 700 000 kr
I Älta bor du mitt emellan storstaden och skärgården. Här finns vacker natur i Erstavik, Nackareservatet samt Hellasgårdens friluftsanläggning som erbjuder bland annat bastu, restaurang och kafé. Här finns också flera sjöar som Flaten, Ältasjön, Strålsjön, Sandasjön, Ulvsjön, Källtorpssjön och Dammtorpsjön. Intill går den vackra Sörmlandsleden, en vandringsled som är hela 100 mil lång, samt flera cykelleder. I Älta finns all tänkbar service som livsmedelsaffär och andra butiker, apotek, restaurang, kafé, frisör, gym och bibliotek. För den som vill shoppa finns två stora köpcentrum i Nacka, och fler butiker i närliggande Tyresö. I Älta finns flera olika förskolor samt grundskola, tennishall, två fotbollsplaner samt ishall. Här finns också bra kommunikationer, bland annat bussförbindelser mot Slussen, Gullmarsplan och Tyresö centrum.
Köpa, sälja eller värdera bostad på i Älta? Kontakta våra Bjurfors mäklarei Nacka! Passa också på att anmäla dig till vår kostnadsfria söktjänst Boagenten som hjälper dig att hitta ditt drömboende.
Kontakta mäklaren om du behöver hjälp att ta fram en boendekalkyl.
När du köper din bostad genom Bjurfors kan du ansöka om bolån till en förmånlig ränta hos vår samarbetspartner SEB.
Ansvarig mäklare
Extra kontaktperson