-
Köpa
Köpa -
Sälja
Sälja - Hitta bostad
- Skapa bevakning
- Hitta mäklare
Välplanerat & fint radhus med altaner i flera nivåer, sjöglimt över Skurusundet
Björknäs, Nacka
*Areauppgifter enligt taxeringsinformationen
Öppen visning, välkommen! Föranmäl gärna ditt intresse.
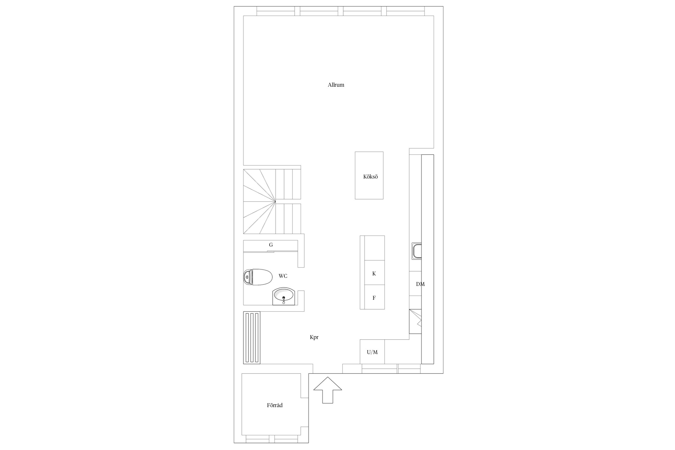
Välkomna till detta välplanerade & fina radhus med högt läge och sjöglimt över Skurusundet
Välkomna till detta välplanerade och trevliga radhus i tre plan med högt och ljust läge i Björknäs. Här bor man med fantastiskt solläge i sydväst vilket ger sol hela dagen och man njuta av den fria utsikten, från övre plans balkong finns sjöglimt mot Skurusundet. Huset andas ljus och rymd och är trevligt planerat med kök och vardagsrum i öppen planlösning. Fyra sovrum som kan bli fem eller sex, tre smakfulla badrum, stor tvättstuga, bastu och mycket bra förvaringsutrymmen. På baksidan finns fina terrasser i olika nivåer. Här bor man med lugnt läge i ett bilfritt område där barnen kan springa och cykla på gatan utanför eller leka vid den gemensamma lekplatsen. Mycket centralt läge nära bussar och service i Björknäs centrum med dess utbud med mataffär, apotek, restaurang mm.



Björknäs 32:33
*Areauppgifter enligt taxeringsinformationen
2006 - Måleri och golv övervåningen
2008 - Souterrängvåning och övervåning, ändring av väggar.
2009 - Altan på framsidan
2010 - Bastu i anslutning till tvättstuga/badrum
2012 - Entreplan, ändring av planlösning, nytt kök, nytt golv, klinker med golvvärme i hallen, byte av säkringsskåp, ny
ventilation roterande värmeväxlare på vinden.
2015 - Badrum och sovrum övervåning
2019 - Installation Luftvärmepump
2021 - Gästtoalett entreplan, golvvärme, satt igen men bavarat avloppsbrunn för dusch. Stepkit ek i trappan
Förråd i anslutning till entrén.
Stor, solig altan i flera nivåer.
På entrésidan finns en liten gräsmatta samt en liten uteplats under tak.
Härlig balkong från två av sovrummen på övre plan. Härifrån är det sjöglimt över Skurusundet,
Kommunalt
Tomtarea 164 m² (friköpt).
Stadsplan (1981-04-08)
Gemensamhetsanläggning: Nacka björknäs ga:7 ändamål: Vägar, Avloppsanläggning, Radio- TV och/eller tele, Elledning och/eller belysning, Grönområden, Garage och/eller parkering, Kvartersanläggning, Övrigt
Samfällighet: Nacka björknäs s:17
Fiber
Avtalsservitut Ledning
I avgiften till samfälligheten ingår carport, renhållning och vinterunderhåll väg och vatten för 2400 kr per år. Förbrukar man mer vatten än så betalar man det själv.
Säljarna förbrukade 21782 kwh
Björknäs är ett mycket populärt bostadsområde med gångavstånd till Skurusundet och Glasbrukssjön med härliga badklippor bryggor och sandstrand. Det kuperade villaområdet ligger ca 10 minuter från Slussen med skogar, båtliv och skärgården inpå knuten.
Matvarubutik, restauranger, bageri/café mm finns i Björknäs centrum. Fem minuter från Björknäs ligger Orminge Centrum med ett brett utbud av butiker, bank, mataffärer och närservice. Påväg in mot stan erbjuder dessutom både Nacka Forum samt Sickla köpkvarter ett hundratal butiker, service och nöjen.
Flera förskolor finns i Björknäs, som exempelvis populära Bågens förskola. På cykel/promenadavstånd når man Björknässkolan som erbjuder undervisning från årskurs F till 9 samt även Nobla Saltsjö-Boo och Myrsjöskolan
Det är nära till busshållplats där motorvägsbussar tar dig till Slussen på 10 minuter.
Det finns 11 st pantbrev uttagna om sammanlagt 4 008 000 kr
I Nacka bor du nära vatten och underbart vacker natur. Här har flera gamla industridistrikt som Kvarnholmen, Järla Sjö, Saltsjökvarn och Nacka Strand gjorts om till attraktiva bostadsområden. I Forum Nacka och Sickla köpcentrum finns allt du behöver vad gäller butiker och annan service.
I Nacka hittar du flera badplatser, och här kan du också åka ut med skärgårdsbåtarna på härliga utflykter runt om i övärlden. I Nacka finns flera stora naturreservat som till exempel Velamsund, Nyckelviken, Långsjön, Nackareservatet och Tattby. Här finns också badplats och möjlighet att grilla. På vintern är Nacka ett paradis för vintersportare. Nacka kommun plogar slingor på flera av isarna vilket lockar många långfärdsskridskoentusiaster.
Köpa, sälja eller värdera bostad i Nacka? Kontakta våra mäklare i Nacka! Passa också på att anmäla dig till vår kostnadsfria söktjänst Boagenten som hjälper dig att hitta ditt drömboende.
Kontakta mäklaren om du behöver hjälp att ta fram en boendekalkyl.
När du köper din bostad genom Bjurfors kan du ansöka om bolån till en förmånlig ränta hos vår samarbetspartner SEB.
Öppen visning, välkommen! Föranmäl gärna ditt intresse.
Extra kontaktperson