-
Köpa
Köpa -
Sälja
Sälja - Hitta bostad
- Skapa bevakning
- Hitta mäklare
Renoverat med luftiga ljusa sällskapsytor i barnvänligt område
Norra Lännersta, Nacka
*Enligt uppmätning
Renoverat med generösa sociala ytor, eldstad och luftiga sovrum. Garage i huset. Solig uteplats, stor plan gräsmatta. Nära matbutik, förskola o buss
Putsat hus om totalt 227 kvm med vacker arkitektur belägen i ett populärt centralt och barnvänligt villaområde. Det renoverade huset med sina luftiga ljusa sociala ytor och härliga rymd har ett fint ljusinsläpp från de många fönsterpartierna. Altandörrar bjuder ut till en härlig uteplats i bästa solläge intill den plana och lekvänliga gräsmattan.
Huset har gott om förvaring och förrådsutrymmen. Bostadens luftiga rum har genomgående ljusa målade väggar och vackra golv av Kolmårdsmarmor eller golv av vacker ek. Matsalen och vardagsrummet har ett gediget mönsterlagt ekgolv. Köket är stilrent med snygga tåliga materialval och är beläget delvis öppet intill den rymliga matsalen. Köket är fullt utrustat med integrerade kvalitativa vitvaror. Här finns även mycket bra förvaring i flertal köksskåp och även generöst med arbetsytor på köksbänkar samt även en mingelvänlig köksö för snabbare måltider. Köket har en delvis kontakt med matsalen och vardagsrummet i vinkel där en vacker eldstad även ger de sociala ytorna en extra hög mysfaktor. Huset har två smakfulla badrum, ett på entréplan samt ett på husets övre plan. Totalt finns idag tre till fyra luftiga sovrum i bostaden, ett på entréplan och två på husets övre plan. På källarplan en trappa ner från entréhallen nås ett ytterligare sovrum/arbetsrum.
Källarplanet har i övrigt gott om förvaringsutrymmen, här finner du husets tvättstuga, en mat/vinkällare och ett allrum som i dagsläget används som hemmagym samt ett äldre badrum. Här ifrån nås även husets garage.
Trädgården intill huset har en stor plan gräsmatta som välkomnar med olika fruktträd och rabatter. På infarten finns det plats för flertal bilar intill husets entré. Tomten är inhägnad med ett staket längs med gatan.
Från husets sociala ytor på entréplan plan nås en generös altan i söderläge med ett högt och privat läge med sol från morgon ända till kväll. Från altanen har man trevlig vy ut över villaområdets grönska.
Här bor du nära barnvänliga fina naturområden samt nära till havet och flera badsjöar. Det är kort gångavstånd till områdets lekplats och omtyckta förskola, samt även nära till bra skolor samt många olika fritidsaktiviteter. Inom sju minuters promenad nås snabba motorvägsbussar med täta turer in till City på ca 20 minuter. Här bor familjen bekvämt och med omedelbar närhet till det mesta!.
Välkommen hem!



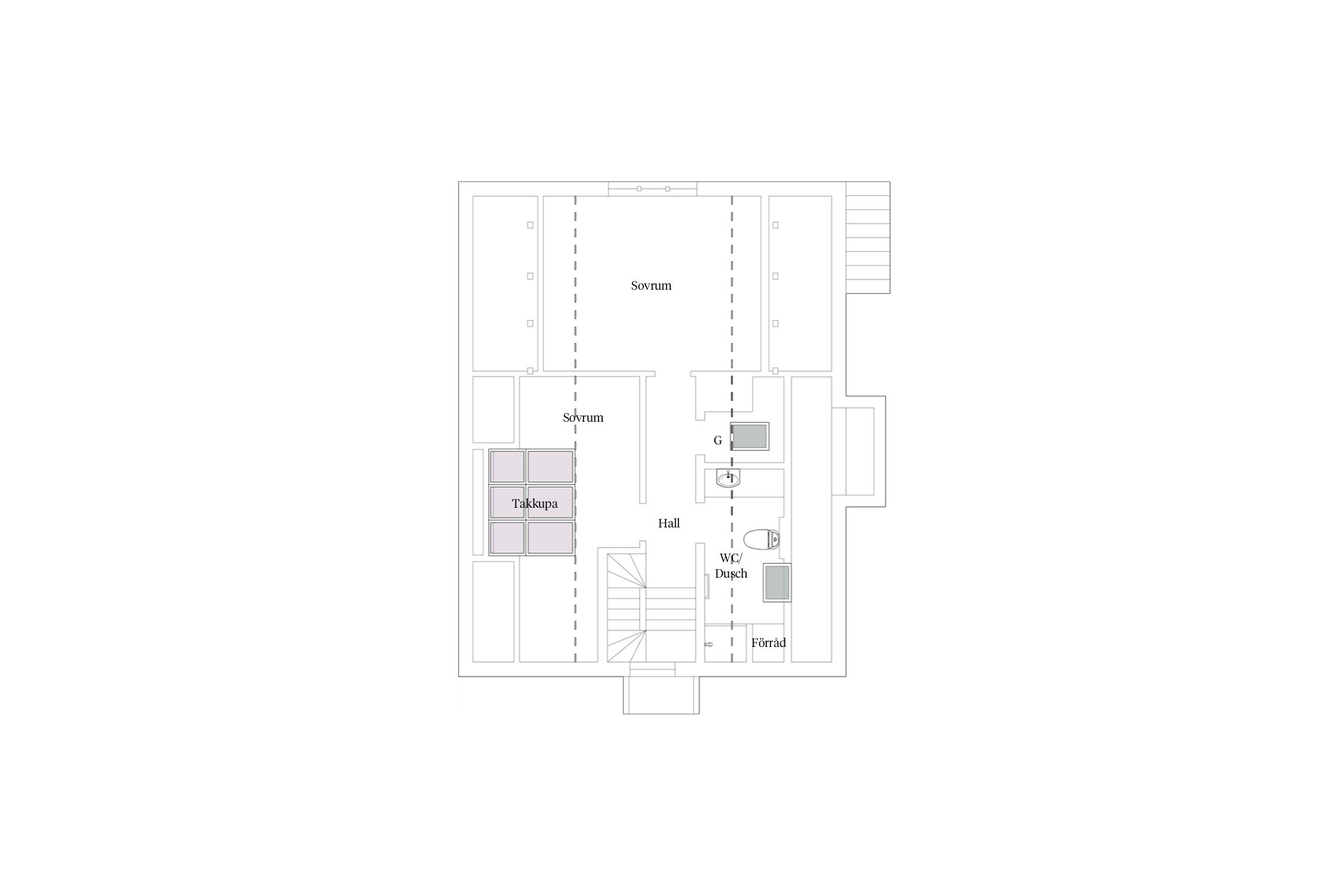
Entréplan
Övre plan
Källarplan
Lännersta 13:14
*Enligt uppmätning
Garage finns i huset.
Huset förvärvades 2020
En större renovering av hela huset är utfört år 2021/2022 bland annat:
-Taket lades om och takkupa byggdes till.
-Nya badrum på husets entreplan och övre plan.
-Ny Tvättstuga/pannrum.
-Hela huset dräneras förutom delar med berg, baksida och del av gavel.
-Ny bergvärmepump.
-Nytt Kök.
-Nya 3-glas isolerfönster.
-Fasaden kontrollerad, smärre skador lagade och fasaden är sprutmålad.
-Huset fick en ny planlösning.
OBS! Se även bilagt dokument över ytterligare fler renoveringar mm.
-Kaminen är godkänd för användning.
-Radonmätning utförd mars 2026. En korttidsmätning vilken påvisar ett normalt radonvärde (dvs under gällande gräns för årsmedelvärde om 200 Bq).
Friggebod om ca 12 kvm.
Solig altan i söderläge med sol från morgon till kväll, denna nås från de sociala ytorna.
Kommunalt vatten, Kommunalt avlopp.
Mestadels plan trädgårdstomt med fruktträd, rabatter och gräsmatta.
Garage finns i huset samt plats för flertal bilar på uppfarten.
Tomtindelning (1977-08-08) Stadsplan (1977-03-10)
Last: Avtalsservitut Vattenledning mm, 01-IM8-32/2.2
Last: Officialservitut Vatten-och avloppsledning, 01-BOO-332.1
Förmån: Officialservitut Väg, 01-BOO-332.2
Via fiber
Avtalsservitut Vattenledning mm
I posten för uppvärmning ingår även posten för El.
Antal förbrukade kWh/år är 15.491 kWh då inkluderas laddning av elbil. (Utan laddning av elbil är antal förbrukade kWh/år 11.833 kWh.)
Försäkring tillkommer.
Bostadsområdet består mestadels av villor och är mycket barnvänligt med bekvämt gångavstånd till det mesta. Här bor familjen nära till mysiga badsjöar, skog, bra förskola och skola, matbutik och köpcentrum. Kommunikationerna från bostaden är mycket goda. Det finns flera busshållplatser inom nära räckhåll bland annat Telegramvägen och Västertäppsvägen. Nära bostaden finns en populär förskola. Bussarna tar dig in till City (Slussen) inom ca 20 min. Bussarna avgår vart femte minut under rusningstrafik. Det finns även direktbussar som trafikerar Cityterminalen vilket är perfekt för den som reser ofta. Här trivs familjen!
Saltsjö-Boo öster om Stockholm är fint beläget med närhet till skärgården. Ett centralt men vackert och naturskönt område. I närhet till bostaden finns flertal fina badsjöar bland annat Kocktorpssjön och Glasbrukssjön båda med fina skogsspår samt Bagarsjön som alla nås inom 10 minuters promenad. Vid sjöarna finns bland annat barnvänliga badstränder, bryggor och hopptorn. Vintertid plogas Bagarsjöns is med spår för skridskoåkning. Eriksvik och Boo Gård erbjuder bad i saltare vatten. Det finns ett välbesökt café vid vackra Boo Gård där även midsommarfirande hålls. För den som vill ta en promenad, cykeltur eller joggingtur finns flera fina vägar och skogsspår i närområdet. Velamsunds naturreservat, som är närbeläget, är ett av Nackas största friluftsområden ca 700 hektar stort. Området omsluter Velamsundsviken och Insjön. Här hittar man bl.a. Friluftsgård, rastlokal, omklädningsrum och duschar, samt aktiviteter som Nacka Naturskola och Nacka ridklubb. Långa raden, huslänga från 1800-talet med restaurang, glashytta och butik, ett ca 2,5 km långt elbelyst motionsspår för löpning och skidåkning, Nacka golfklubb med 18-håls golfbana och drivingrange finns på bekvämt avstånd. Flertal båtklubbar finns runt omkring i Saltsjö-Boo för den båtintresserade.
Kommunikationer
Flertal bussar med mycket täta turer tar dig till och från Slussen och Cityterminalen. Från bostaden är det en kort promenad till busshållplatser vid Telegramvägen samt Västertäppsvägen. Vid Telegramvägen finns även en långtidsparkering belägen.
Service
Orminge centrum med allehanda service finns inom kort avstånd. köpcentrumet och dess omgivningar genomgår positiva förändringar och moderniseringar framöver. Här finns bl.a. mataffärer, bibliotek, restaurang, café, gym, vårdcentral, tandläkare mm. I Nacka finns även Sickla köpkvarter och Nacka Forum med sitt stora utbud av affärer, service och bio och restauranger.
Barnomsorg
Flera förskolor och daghem finns i området, närmast är det till Källans förskola på Bragevägen. I närområdet finns flera bra skolor som Björknässkolan F-9, Myrsjöskolan åk 1-9, Sågtorpsskolan åk 1-6, Orminge skola, Boo Gårds skola, Lännersta Skola och Johannes Petri skola. För den sportintresserade finns många idrottsaktiviteter inom nära håll, Bovallen, Myrsjö sporthall, Björknäs IP med flera.
Läs mer på Nacka kommuns informativa hemsida. www.nacka.se
Bostadens ytor är uppmätta.
Besiktning är utförd och protokoll finns att tillgå under dokument.
Det finns 14 st pantbrev uttagna om sammanlagt 10 436 000 kr
I Nacka bor du nära vatten och underbart vacker natur. Här har flera gamla industridistrikt som Kvarnholmen, Järla Sjö, Saltsjökvarn och Nacka Strand gjorts om till attraktiva bostadsområden. I Forum Nacka och Sickla köpcentrum finns allt du behöver vad gäller butiker och annan service.
I Nacka hittar du flera badplatser, och här kan du också åka ut med skärgårdsbåtarna på härliga utflykter runt om i övärlden. I Nacka finns flera stora naturreservat som till exempel Velamsund, Nyckelviken, Långsjön, Nackareservatet och Tattby. Här finns också badplats och möjlighet att grilla. På vintern är Nacka ett paradis för vintersportare. Nacka kommun plogar slingor på flera av isarna vilket lockar många långfärdsskridskoentusiaster.
Köpa, sälja eller värdera bostad i Nacka? Kontakta våra mäklare i Nacka! Passa också på att anmäla dig till vår kostnadsfria söktjänst Boagenten som hjälper dig att hitta ditt drömboende.
Kontakta mäklaren om du behöver hjälp att ta fram en boendekalkyl.
När du köper din bostad genom Bjurfors kan du ansöka om bolån till en förmånlig ränta hos vår samarbetspartner SEB.
Ansvarig mäklare