-
Köpa
Köpa -
Sälja
Sälja - Hitta bostad
- Skapa bevakning
- Hitta mäklare
Exklusivt townhouse i fyra våningsplan med uthyrningsdel i populära Tollare
Tollare, Nacka
*Inkl vatten, tv och fiber
Bokad visning. Välkommen med din anmälan!
Bokad visning. Välkommen med din anmälan!
Rakt söderläge med soldränkta uteplatser beläget mot rogivande natur och sjöglimt över Lännerstasundet
Välkommen till ett arkitektoniskt genomtänkt townhouse om hela 197 kvm fördelat på fyra våningsplan, ett hem där design, funktion och natur samspelar i perfekt harmoni. Här erbjuds ett exklusivt boende med en flexibel uthyrningsdel, idealiskt för den moderna livsstilen. Formspråket är elegant och avskalat med en tydlig inspiration från omgivande natur. Materialval, färgsättning och fönstersättning är omsorgsfullt utvalda för att maximera ljusinsläpp och skapa en rogivande atmosfär. Fastigheten gränsar mot naturmark och tack vare strategiskt placerade fönster erbjuds en privat och insynsskyddad tillvaro där de generösa glaspartierna suddar ut gränsen mellan inne och ute. För extra komfort är hela bostaden utrustad med golvvärme.
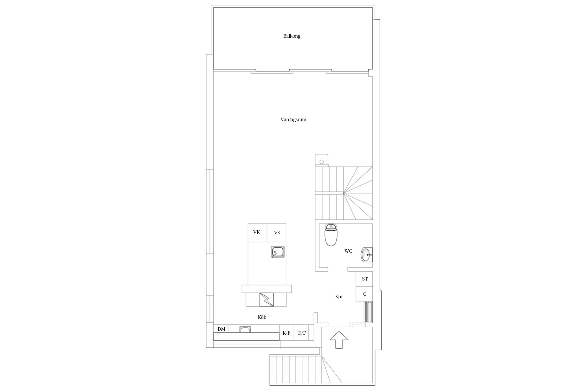
De sociala ytorna är luftiga och inbjudande med kök och vardagsrum i en öppen planlösning med utgång till en rymlig balkong. Här flödar ljuset in och skapar en ljus och trivsam miljö, perfekt för både vardagsliv och sociala tillställningar. Entréplan rymmer även en välkomnande hall med gott om plats för avhängning samt en gäst-wc. En trappa upp finner man idag ett väl tilltaget sovrum med fönster i två väderstreck, walk-in closet, eget badrum med dusch och ett stort luftigt allrum med fransk balkong. Här kan man enkelt skapa sig ytterligare två sovrum vid behov. På övre plan välkomnas man av ett ljust allrum med utgång till en stor härlig takterrass, en privat oas med utsikt över naturen och med sjöglimt över Lännerstasundet. Här finns ett väl tilltaget master bedroom med skjutdörrar, walk-in closet och ett badrum med dusch.
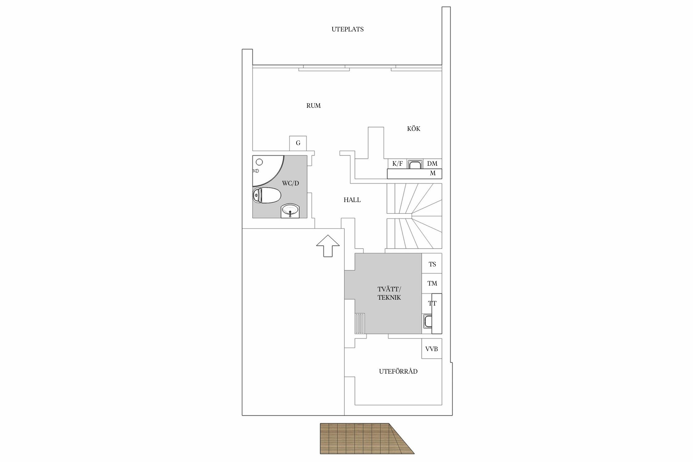
På nedre plan finns en uthyrningsdel med allrum, pentry med barbord samt badrum med dusch. Denna del nås från entréplan men har även en seperat ingång från parkeringen vilket gör att den lämpar sig för såväl tonårsrum, uthyrningsdel, generationsboende, verksamhet m.m. Man parkerar bekvämt två till tre bilar på den egna uppfarten och till lägenheten hör ett externt förråd om cirka 5 kvm som ger gott om extra förvaring.
Detta hem erbjuder verkligen något utöver det vanliga och förenar den bästa av två världar. Här får man ett modernt boende som erbjuder en flexibel och elegant livsstil i en havsnära urban miljö med enkel och kort resväg in till city. Varmt välkommen till Tollare och Barkerivägen 3A - ett hem att trivas i länge!



Nedreplan/uthyrningsdel
Entréplan
Våning 1
Alternativ planlösning våning 1
Våning 2 / takterrass
Inkl vatten, tv och fiber
Utomhusförråd ca 5 kvm.
Uteplats i markplan, stor balkong på entréplan, fransk balkong på plan två och takterrass på plan fyra.
Plats för två bilar varav en under tak
TV: Tv-paket via Tele2 Internet: Fiber 1000/1000
Bostadsrättens indirekta nettoskuldsättning baseras på föreningens skulder/lån minus föreningens räntebärande tillgångar och likvida medel. Beräkningen är gjord och baseras på senaste tillgängliga årsredovisningen. För mer information kontakta ansvarig fastighetsmäklare.
Brf Södra Hällmarken är en s.k. äkta bostadsrättsförening som äger marken. I föreningen finns 8 townhouses med bostadsrätt.
Föreningens adresser är Barkerivägen 3 samt Tollareslingan 2, 4 och 6.
Byggnaderna har en total boarea om 1 668 kvm och en markyta om 1 120 kvm.
Föreningens skuldsättning per kvm är cirka 7 200 kr.
I Nacka bor du nära vatten och underbart vacker natur. Här har flera gamla industridistrikt som Kvarnholmen, Järla Sjö, Saltsjökvarn och Nacka Strand gjorts om till attraktiva bostadsområden. I Forum Nacka och Sickla köpcentrum finns allt du behöver vad gäller butiker och annan service.
I Nacka hittar du flera badplatser, och här kan du också åka ut med skärgårdsbåtarna på härliga utflykter runt om i övärlden. I Nacka finns flera stora naturreservat som till exempel Velamsund, Nyckelviken, Långsjön, Nackareservatet och Tattby. Här finns också badplats och möjlighet att grilla. På vintern är Nacka ett paradis för vintersportare. Nacka kommun plogar slingor på flera av isarna vilket lockar många långfärdsskridskoentusiaster.
Köpa, sälja eller värdera bostad i Nacka? Kontakta våra mäklare i Nacka! Passa också på att anmäla dig till vår kostnadsfria söktjänst Boagenten som hjälper dig att hitta ditt drömboende.
Kontakta mäklaren om du behöver hjälp att ta fram en boendekalkyl.
När du köper din bostad genom Bjurfors kan du ansöka om bolån till en förmånlig ränta hos våra banksamarbetspartners Söderberg & Partners och SEB.
Bokad visning. Välkommen med din anmälan!
Bokad visning. Välkommen med din anmälan!
Ansvarig mäklare
Extra kontaktperson