-
Köpa
Köpa -
Sälja
Sälja - Hitta bostad
- Skapa bevakning
- Hitta mäklare
Rosersberg, Sigtuna
*Till avgiften tillkommer 500 kr för inglasad balkong. I avgiften ingår värme, vatten och kabel-TV.
Öppen visning, välkommen! Föranmäl gärna ditt intresse.
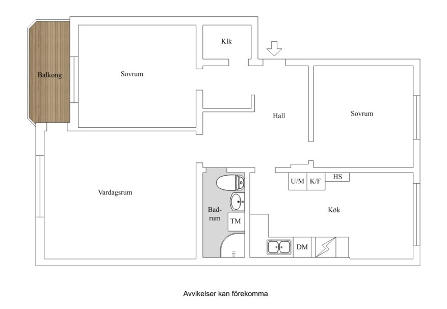
Rymlig trea en halvtrappa upp i huset i centrala Rosersberg!
Vi välkomnar er till en bostad med en genomtänkt planlösning där ni har möjligheten att sätta er egen prägel. Här bor ni i en trygg förening med god ekonomi och en bra månadsavgift mitt i centrala Rosersberg med närhet till allt ni kan önska. Fördelen med denna bostad är att den ligger bekvämt beläget en halvtrappa upp i huset.
Lägenheten har under senare år fått ett lyft med nya fina ytskikt. Samtliga väggar och tak (förutom i köket) har målats om i ljusa, harmoniska toner som skapar en modern och inbjudande känsla. Golven i hall, sovrum, arbetsrum och vardagsrum har bytts ut mot vacker ekparkett som ger en varm och tidlös atmosfär. Dessutom har väggen mellan kök och hall öppnats upp, vilket ger ett härligt flöde av ljus och rymd mellan rummen. De stora fönsterpartierna släpper in ett generöst ljusinsläpp och bidrar till den luftiga känslan som präglar hela bostaden. Från vardagsrummet nås den inglasade balkongen, en självklar plats för avkoppling under sommarhalvåret, med gott om plats för möblemang.
Planlösningen erbjuder två sovrum, ett generöst vardagsrum samt ett kök med plats för matbord. Det stora, helkaklade duschrummet ger även utrymme för tvättmöjligheter. Förvaringsmöjligheterna är mycket goda tack vare garderober, klädkammare och ett stort vindsförråd.
Läget är utmärkt här bor ni med närhet till skolor, service, natur och mycket goda kommunikationer. Pendelstationen nås på bara några minuters promenad och tar er smidigt vidare till Stockholm.
En trivsam bostad med härlig känsla, modern uppfräschning och centralt läge, välkommen att uppleva den på plats!



Planlösning
*Bostaden är bekvämt belägen en halvtrappa upp i huset.
Till avgiften tillkommer 500 kr för inglasad balkong. I avgiften ingår värme, vatten och kabel-TV.
Till bostaden finns ett stort vindsförråd.
Det finns p-plats med el och utan el. Separat kösystem till samtliga platser. Kostnad med el 225kr/mån eller utan el 150 kr/mån.
Bostadsrättens indirekta nettoskuldsättning baseras på föreningens skulder/lån minus föreningens räntebärande tillgångar och likvida medel. Beräkningen är gjord via Bopedia. För mer information kontakta ansvarig fastighetsmäklare.
*Betalas av köpare
Föreningen består av 66 lägenheter med bostadsrätt och 1 lägenhet med hyresrätt på adresserna Nyborgsvägen och Rosersbergsvägen.
Gjorda renoveringar: 2015: Taket på Rosersbergsvägen 30-34 bytt
2014: Byte av takpapp på huskropp 1
2012-2013: Bullerisolering av fönster
2007-2009: Rörstambyte, elstambyte
2006: Installation av bergvärmepump
Det finns p-plats med el och utan el. Separat kösystem till samtliga platser. Kostnad med el 225kr/mån eller utan el 150 kr/mån.
Fastigheten är ansluten till Comhems kabel-TV och bredbandsnät. Kontakt: 0771-5500000 eller deras hemsida www.comhem.se
Det finns tvättstuga, cykelförråd, förråd, gemensamhetslokal/övernattningslokal med dusch och bastu samt en gemensam grill på gården.
Vill du köpa, sälja eller värdera bostad i Stockholm? Kontakta våra mäklare i Stockholm! Passa också på att anmäla dig till vår kostnadsfria söktjänst Boagenten som hjälper dig att hitta ditt drömboende i Stockholm.
Här hittar du alla våra lediga bostäder till salu i Stockholms län just nu!
Kontakta mäklaren om du behöver hjälp att ta fram en boendekalkyl.
När du köper din bostad genom Bjurfors kan du ansöka om bolån till en förmånlig ränta hos vår samarbetspartner SEB.
Öppen visning, välkommen! Föranmäl gärna ditt intresse.
Ansvarig mäklare