-
Köpa
Köpa -
Sälja
Sälja - Hitta bostad
- Skapa bevakning
- Hitta mäklare
Stilfull, social och redo att flytta in i!
Fågelsången, Sollentuna
Välkommen på förhandsvisning! Anmäl gärna ditt intresse.
Öppen visning, välkommen! Föranmäl gärna ditt intresse.
* Familjevilla
* Stort garage
* Byggfelsgaranti
* Läget
Välkommen till denna moderna och välplanerade familjevilla byggd 2018!
Här är hemmet där du kan njuta av både stil, komfort och smarta lösningar för hela familjen. Huset är byggt i 1 1/2 plan och ligger på en plan och fin tomt som bjuder in till lek, odling och avkoppling. Här bor du bekvämt med generösa ytor både inne och ute, samt med ett rymligt garage, isolerat och utrustat med el, perfekt för motorentusiasten eller för hobbyprojekt och förvaring.
Entréplan – socialt och funktionellt!
På entréplanet möts du av en luftig och modern öppen planlösning mellan kök och vardagsrum samt stora fönsterpartier som ger härligt ljusinsläpp. De två balkongdörrarna, som leder ut till altan och trädgård, suddar ut gränsen mellan inne och ute och gör det enkelt att njuta av allt tomten har att erbjuda. Altanen har gott om plats för både utemöbler, grill och loungemöbel.
Här finns även:
• Rogivande kamin, för både värme och ombonad
• Ett rogivande sovrum
• Stilfullt badrum med badkar
• Praktisk tvättstuga med groventré, idealisk för vardagens alla behov
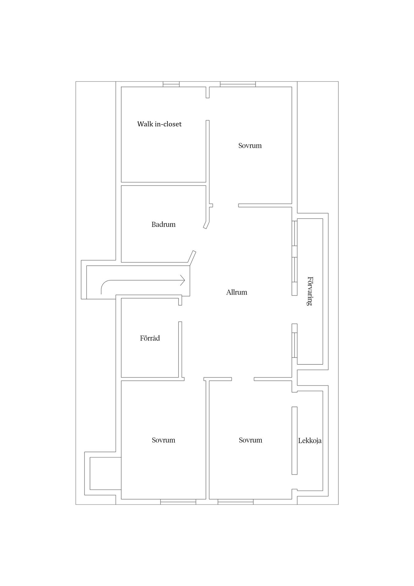
Övre plan – privat och rymligt!
En trappa upp finns tre väl tilltagna sovrum, ett master bedroom som stoltserar med egen walk-in-closet, en dröm för den som behöver gott om plats för kläder och prylar samt två sovrum som idag används som barnrum. Ett av barnrummen har en alldeles egen lekkoja, inbyggd i kattvinden.
Dessutom erbjuds:
• Ett generöst allrum som passar perfekt som tv-hörna, lekrum eller arbetsplats
• Ett stilrent badrum med dusch
• Gott om förvaringsutrymme, i både förråd/klädkammare och kattvind
Detta är ett hem som verkligen kombinerar modern design med praktiska lösningar och fina materialval. En villa som passar både den växande familjen och dig som söker ett bekvämt och inflyttningsklart boende i ett attraktivt område.
Området Fågelsången har ett mycket attraktivt läge med smidig närhet till det mesta som underlättar vardagen, såsom förskolor, skolor, fritidsaktiviteter, service och goda kommunikationer. Helenelundsskolan (F–9) nås enkelt till fots, liksom flertalet andra skolor och förskolor. I närheten breder Edsviken ut sig med vackra naturområden, strandpromenad och uppskattade badplatser. Generösa grönområden och välskötta motionsspår som passar både löpning, utflykter och lek finns det gott om, dessutom finns flera sport- och idrottsanläggningar, bland annat Sollentunavallen och Sollentuna Simhall.
Som boende i Fågelsången har du tillgång till mycket goda kommunikationer. Pendeltågsstationen i Sollentuna centrum ligger bara några minuters promenad bort, och längs Sollentunavägen trafikerar flera busslinjer med förbindelser till bland annat Kista, Jakobsbergs centrum och Mörby station. Buss 607 tar dig till Karolinska sjukhuset eller till Mörby centrum och Danderyds sjukhus, via Sollentuna centrum. Under rusningstid går även 516 och 526 till och från Norra Bantorget via Odenplan. Med närheten till både E4 och E18 når du dessutom snabbt Stockholm city eller Arlanda med bil.



Entréplan
Övre plan
Entréplan (alternativ planlösning)
Haken 56
Garage på 29 kvm, isolerat och el indragen. Wifi-styrd garageport och ett loft för extra förvaringsmöjlighet.
Kommunalt vatten, Kommunalt avlopp.
Garage samt parkering på uppfart
Last: Officialservitut Avlopp, 0163-16/46.3
Last: Officialservitut Vattenledning, 0163-16/46.2
Last: Officialservitut Väg, 0163-16/46.1
Fiber
Det finns 4 st pantbrev uttagna om sammanlagt 7 287 275 kr
Fågelsången är en pärla i centrala Sollentuna. Härifrån har du snabb och enkel tillgång till allt man behöver i vardagen - närhet till barnomsorg, fritidsaktiviteter, service och kommunikationer. Helenelundsskolan (F-9) ligger på gångavstånd och det gör även flera förskolor.
Det är inte långt till Sollentuna centrum där det erbjuds ett fantastiskt utbud av butiker och shopping samt pendeltåg. Edsviken erbjuder natur- och strövområden med både badbrygga och strandpromenad. Det är gångavstånd till fina badplatser, stora strövområden och välskötta motionsspår för både löpning och skidåkning. På vintern plogas en lång skridskobana på Edsvikens is när vädret tillåter. På cykelavstånd ligger sporthallar och idrottsanläggningar som exempelvis Sollentuna simhall, Sollentunavallen och nya fotbollsplanen i Silverdal.
Köpa, sälja eller värdera bostad i Fågelsången? Kontakta våra mäklare i Sollentuna! Passa också på att anmäla dig till vår kostnadsfria söktjänst Boagenten som hjälper dig att hitta ditt drömboende.
Kontakta mäklaren om du behöver hjälp att ta fram en boendekalkyl.
När du köper din bostad genom Bjurfors kan du ansöka om bolån till en förmånlig ränta hos vår samarbetspartner SEB.
Välkommen på förhandsvisning! Anmäl gärna ditt intresse.
Öppen visning, välkommen! Föranmäl gärna ditt intresse.
Ansvarig mäklare
Extra kontaktperson