-
Köpa
Köpa -
Sälja
Sälja - Hitta bostad
- Skapa bevakning
- Hitta mäklare
Bredsand, Enköping
*Areauppgifter enligt ritning
Välkommen till Bredsand och "Sjöglimten"
Nu har du chansen att förverkliga ditt drömboende i vackra Bredsand, Enköping!
Vi, tillsammans med A-hus erbjuder två vackra tomter á ca 1000 m2 där du kan bygga ditt eget paradis i ett fantastiskt läge.
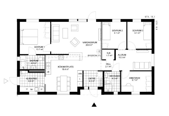
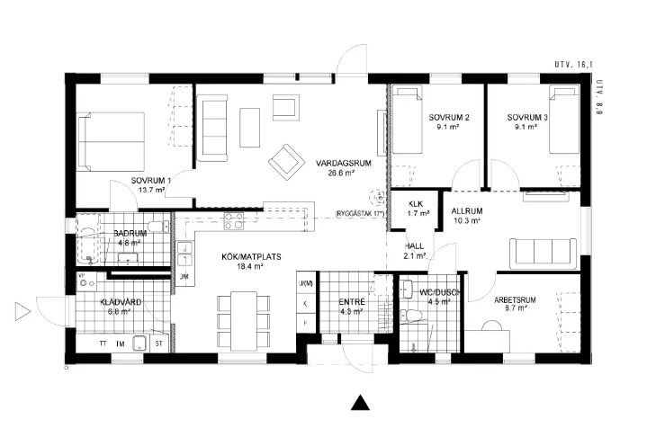
Förslag på husmodell är Villa Vallda i modern stil. Ett 1-planshus på 126 välplanerade kvadrat där alla får utrymme att trivas.
Kliv in genom den väderskyddade entrén och du kommer in i ett ombonat kök med egen matplats som vetter mot framsidan. Här öppnar den avslappnade bardisken upp mot det ljusa vardagsrummet med sina stora fönster mot uteplatsen. En smart planlösning med välplanerade rum gör det lätt att trivas. Ert sovrum är stort och har ett lyxigt privat badrum. Barnen har två egna sovrum och ett rejält tilltaget sällskapsrum att umgås med kompisar i. Och med ett eget kontor blir det lätt att stänga dörren om sig och jobba ostört.
Från ditt kommande hus når du Mälaren och fina badstränder efter ca 10 minuters promenad. Tomterna omringas av en fantastisk natur, där stora ekar och björkar skapar en naturskön inramning. Skapa en livsstil där naturen blir din granne och lugnet är en del av vardagen.
Totalpris: 5 145 500 kr inkl. tomtköp, lagfartskostnad, husbyggnation i totalentreprenad, bygglovskostnader, kontrollansvarig och vatten och avlopp.
Självklart kan man välja ett annat hus ur A-hus breda utbud av husmodeller så länge det följer detaljplanen. Kontakta oss för att ta reda på vilket hus som passar er bäst.
Observera att det endast är exempelbilder som kan innehålla tillval som kan påverka priset.
Bjurfors förmedlar endast tomten. Entreprenadkontrakt skrivs med A-hus.
https://www.a-hus.se/tomter/tomter/sjoglimten-enkoping-tomt-1
För mer info kontakta:
Anton Törne
0733060196
Anton.torne@a-hus.se
Pernilla Blomfelt
0737083122
Pernilla.blomfelt@a-hus.se



Hult 1:23
*Areauppgifter enligt ritning
Ändring Av Detaljplan (2014-08-26) Detaljplan (2009-10-29) Vattenskyddsområde (1996-12-11) Vattenskyddsområde (1960-07-06)
Gemensamhetsanläggning: Enköping Hult GA:1 ändamål: Vägar, Gemensamhetsanläggning: Enköping Hult GA:2
Enköping kallas ofta ”Sveriges närmaste stad” eftersom den ligger strategiskt placerad nära flera större orter, bara en timmes bilresa från Stockholm, Västerås och Uppsala. Här möts småstadens lugn med närheten till storstadens möjligheter.
Staden är särskilt känd för sina vackra parker och grönområden, vilket har gett Enköping smeknamnet ”Parkerna stad”. Genom centrum slingrar sig promenadstråk kantade av blomsterplanteringar, träd och skulpturer som skapar en trivsam och inspirerande miljö.
Utöver naturen erbjuder Enköping ett rikt föreningsliv, kulturutbud och lokala evenemang. Här finns charmiga kaféer, små butiker och historiska miljöer som berättar om stadens långa tradition som handelsplats. Mälarens närhet ger också möjligheter till båtliv, fiske och friluftsliv.
Enköping är en plats som kombinerar småstadens gemenskap med naturens skönhet – en stad där det är lätt att trivas, oavsett om man kommer på besök eller vill slå sig ner för gott.
Vill du köpa, sälja eller värdera bostad i Enköping? Kontakta våra mäklare i Uppsala! Passa också på att anmäla dig till vår kostnadsfria söktjänst Boagenten som hjälper dig att hitta ditt drömboende.
Kontakta mäklaren om du behöver hjälp att ta fram en boendekalkyl.
När du köper din bostad genom Bjurfors kan du ansöka om bolån till en förmånlig ränta hos våra banksamarbetspartners Söderberg & Partners och SEB.
Ansvarig mäklare