-
Köpa
Köpa -
Sälja
Sälja - Hitta bostad
- Skapa bevakning
- Hitta mäklare
Grönviken, Uppsala
*Areauppgifter enligt ritning
Välkommen till Grönviken
Villa Furuvik, 5 450 000 kr. Totalpriset innefattar tomt, lagfartskostnad, nyckelfärdigt hus, VA, el, fiber och bygglovskostnader.
Bygg nytt i Grönviken tillsammans med A-hus!
Som boende i Grönviken kommer du bo i en lantlig miljö men ändå endast ett fåtal minuter ifrån Gränby Centrum med bil. Vidare så finns här en gång och cykelbana som tar dig till populära Lindbacken och närheten till många förskolor, skola samt ICA-butik.
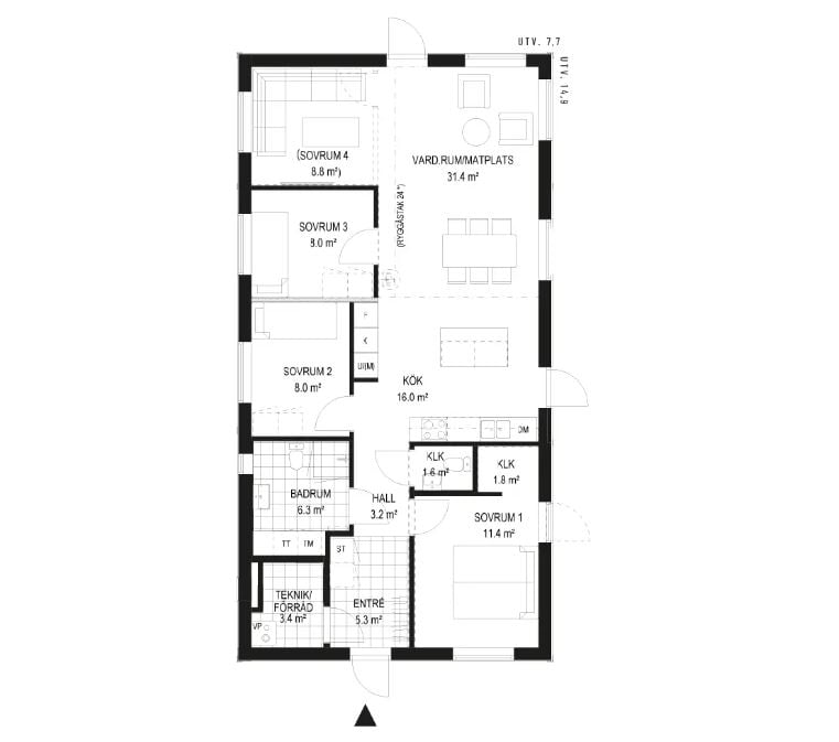
Villa Furuvik i modern stil är ett 1-planshus på 100 välplanerade kvadrat där alla får utrymme att trivas.
I Villa Furuvik har vi maximerat varje kvadratmeter och kan samtidigt erbjuda en stor flexibilitet i planlösningen. Allt för att bygga ett framtidssäkrat och energieffektivt hem. På 100 m2 har du möjligheten att välja upp till fyra sovrum, tre klädkammare samt en härlig inramning av gemensamhetsytorna genom ryggåstaket.



Planlösning Furuvik
Grönviken 1:22
*Areauppgifter enligt ritning
Eget vatten och avlopp
Gemensamhetsanläggning: Uppsala Grönviken GA:1 ändamål: Vägar
Last: Avtalsservitut: Avloppsbrunn, Filterbädd, Väg, 0380IM-13/22632.1
Förmån: Avtalsservitut: Väg, D202200440223:1.1
Avtalsservitut Avloppsbrunn,Filterbädd,Väg
Uppsala är Sveriges fjärde största stad. Det är en växande tätort med en stark arbetsmarknad. I de centrala delarna hittar man sevärdheter som Uppsala slott, Linnéträdgården och norra Europas största domkyrka. Staden är mycket känd för sitt universitet som är Nordens äldsta, grundat år 1477. Varje år läser drygt 40 000 studenter i Uppsala. Universitetet är en stor arbetsplats som tillsammans med Akademiska sjukhuset erbjuder flera tusen arbetstillfällen.
Från Uppsala finns goda kommunikationer till såväl Stockholm som andra närliggande orter. I Uppsala finns en bra variation när det gäller boendet och du kan välja att bo lantligt eller centralt, i villa eller bostadsrätt. I området hittar du ett stort urval av skolor, både kommunala och fristående med olika profiler och inriktningar. Här finns också elitlag inom innebandy, bandy, basket och badminton.
Köpa, sälja eller värdera bostad i Uppsala? Kontakta våra mäklare i Uppsala! Passa också på att anmäla dig till vår kostnadsfria söktjänst Boagenten som hjälper dig att hitta ditt drömboende.
Kontakta mäklaren om du behöver hjälp att ta fram en boendekalkyl.
När du köper din bostad genom Bjurfors kan du ansöka om bolån till en förmånlig ränta hos våra banksamarbetspartners Söderberg & Partners och SEB.
Ansvarig mäklare
Extra kontaktperson