-
Köpa
Köpa -
Sälja
Sälja - Hitta bostad
- Skapa bevakning
- Hitta mäklare
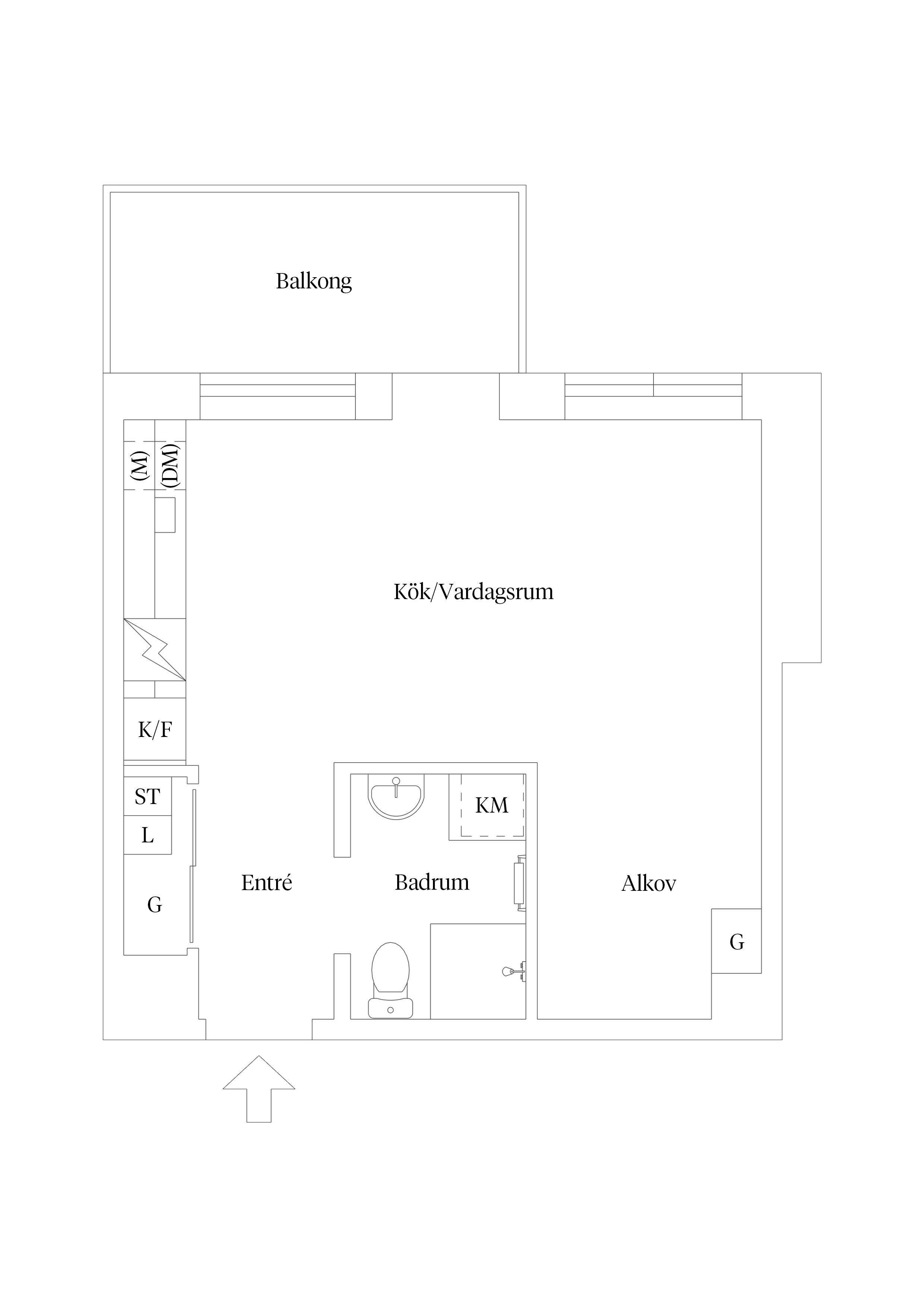
Exklusiv & modern etta högst upp i huset. Solig balkong & eftertraktat läge i Luthagen–Rickomberga
Rickomberga - Luthagen, Uppsala
*Obligatoriskt tillägg om 220 kr/månaden för Telia Triple Play. Föreningen har individuell mätning och debitering av el och varmvatten.
**enligt uppgift från den ekonomiska förvaltaren
Fyll i formuläret nedan så hjälper vi dig!



Uppsala är Sveriges fjärde största stad. Det är en växande tätort med en stark arbetsmarknad. I de centrala delarna hittar man sevärdheter som Uppsala slott, Linnéträdgården och norra Europas största domkyrka. Staden är mycket känd för sitt universitet som är Nordens äldsta, grundat år 1477. Varje år läser drygt 40 000 studenter i Uppsala. Universitetet är en stor arbetsplats som tillsammans med Akademiska sjukhuset erbjuder flera tusen arbetstillfällen.
Från Uppsala finns goda kommunikationer till såväl Stockholm som andra närliggande orter. I Uppsala finns en bra variation när det gäller boendet och du kan välja att bo lantligt eller centralt, i villa eller bostadsrätt. I området hittar du ett stort urval av skolor, både kommunala och fristående med olika profiler och inriktningar. Här finns också elitlag inom innebandy, bandy, basket och badminton.
Köpa, sälja eller värdera bostad i Uppsala? Kontakta våra mäklare i Uppsala! Passa också på att anmäla dig till vår kostnadsfria söktjänst Boagenten som hjälper dig att hitta ditt drömboende.
Ansvarig mäklare