-
Köpa
Köpa -
Sälja
Sälja - Hitta bostad
- Skapa bevakning
- Hitta mäklare
Trevligt läge med stort garage
Enåsen, Forshaga
*Areauppgifter enligt taxeringsinformationen
Varmt välkomna till Lillåsgatan 10 och detta trevliga hus uppe på Enåsen. Här bor ni med möjlighet till fyra sovrum, gott om sociala utrymmen på nedre plan med kök och vardagsrum i anslutning till varandra. På baksidan av huset finns en stor och härlig pool med omkringliggande trädäck. Stort dubbelgarage med gott om förvaringsmöjligheter och plats för flera bilar.
I området finns bra bussförbindelser till centrala Karlstad. Forshaga erbjuder allt som man kan tänka sig behöva, så som mataffärer, apotek, förskolor och skolor.
Varmt välkomna!
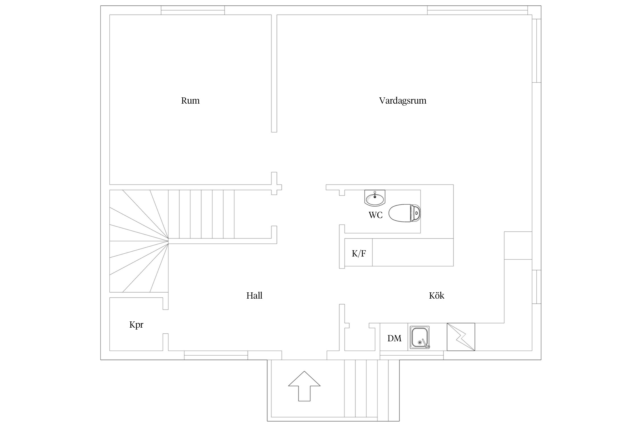
PLANLÖSNING
HALL
Välkomnande hall med plats för klädavhängning. Fint golv och ljusa väggar. I anslutning till hallen finns även en WC.
KÖK
Trevligt kök utrustat med kyl/frys, ugn, diskmaskin, spishäll och köksfläkt. Gott om förvaringsmöjligheter och arbetsutrymmen.
VARDAGSRUM
Stort och trevligt vardagsrum med utgång till det inglasade uterummet. Här finns plats för stor matsalsmöbel och soffgrupp om så önskas. Fint golv och ljusa väggar. Sedan kan man använda en del av vardagsrummet till sovrum om så önskas.
ÖVRE PLAN
DUSCHRUM
Fint duschrum med kakel och klinker i moderna färger, här finns WC, tvättställ och dusch.
SOVRUM 1-3
På övre plan finns även tre separata sovrum, alla har bra storlek och är i gott skick.



Lillberget 1
*Areauppgifter enligt taxeringsinformationen
2014 installation av bergvärme
2015 Dränering/isolering källare
2017 Stenläggning
2022 Pool installerad
Fiber anslutet.
Stort separat dubbelgarage.
Stor altan på baksidan av huset.
Kommunalt vatten, Kommunalt avlopp.
Plats för flera bilar på uppfarten och vid garage.
Detaljplan (1993-05-25) Tomtindelning (1960-04-30)
Fiber
Fiber
Kostnad för el avser även uppvärmning.
Det finns 8 st pantbrev uttagna om sammanlagt 1 665 000 kr
Vill du köpa, sälja eller värdera bostad i Värmlands län? Kontakta våra mäklare i Karlstad! Passa också på att anmäla dig till vår kostnadsfria söktjänst Boagenten som hjälper dig att hitta ditt drömboende.
Kontakta mäklaren om du behöver hjälp att ta fram en boendekalkyl.
När du köper din bostad genom Bjurfors kan du ansöka om bolån till en förmånlig ränta hos vår samarbetspartner SEB.
Ansvarig mäklare