-
Köpa
Köpa -
Sälja
Sälja - Hitta bostad
- Skapa bevakning
- Hitta mäklare
Kom och skapa din egen drömbostad
Bellevue, Karlstad
*I månadsavgiften ingår värme, VA, kabel-TV & bredband samt bostadsrättstillägg.
**Areauppgift inhämtad från bostadsrättsföreningen
Föranmälan till visningen krävs. Varmt välkommen!
Renoveringsmöjligheter - ljus gavellägenhet på tredje våningen
Vi hälsar dig varmt välkommen till denna ljusa gavellägenhet belägen på våning 3/3 där ett genomgående fint ljusinsläpp ges från fönster i tre väderstreck. Stort plus för det lugna läget mot skogen och inglasad balkong som förlänger säsongen från tidig vår till sen höst.
Här erbjuds en väldisponerad bostad om 2 rum och kök med renoveringsbehov där du har alla möjligheter att skapa ett fantastiskt boende.
På Bellevue bor du cirka 1,5 km från Göteborgsudden där det är underbart på sommaren med dess bad- och grillmöjligheter. I närheten erbjuds även gott om grönområden och fina promenadstråk. Lägenheten ligger med närhet till både centrum samt Bergviks köpcentrum och goda bussförbindelser samt fina cykelvägar gör att du smidigt tar dig till andra stadsdelar. I närområdet ligger 4H-gården som är en bondgård i ett naturskönt läge mitt i centrala Karlstad.
Varmt välkommen att kontakta ansvarig mäklare för mer information och visning!
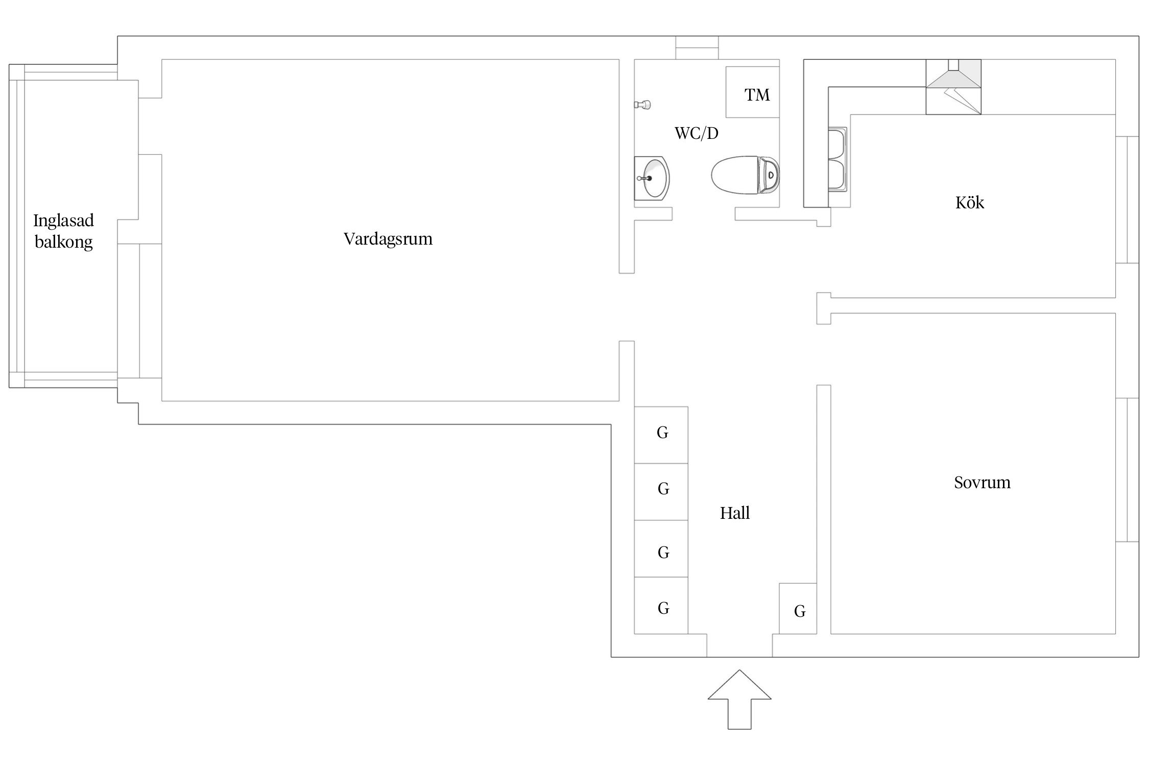
Hall
Rymlig hall med plats för avhängning och förvaring ges i garderober.
Vardagsrum
Stort vardagsrum med fint ljusinsläpp från fönster i två väderstreck. Härifrån når du den inglasade balkongen som ligger i ett trevligt läge mot skogen. Plats finns för större soffgrupp samt matbord eller annat möblemang om så önskas.
Kök
Kök i bra storlek med snickerier i en ljus kulör där plats finns för matbord intill fönster. Funktionen på befintliga vitvaror är oklar.
Sovrum
Sovrum som men enkelhet inrymmer dubbelsäng med tillhörande sängbord samt övrigt möblemang om så önskas. Förvaring ges i garderober. Naturligt ljusinsläpp från fönster.
Duschrum
Duschrummet är inrett med toalett, handfat, dusch samt tvättmaskin. Kaklade väggar och ljusinsläpp från fönster.



Planskiss
Mörsaren 15
*Areauppgift inhämtad från bostadsrättsföreningen
I månadsavgiften ingår värme, VA, kabel-TV & bredband samt bostadsrättstillägg.
Till lägenheten följer ett vindsförråd samt ett matkällarförråd.
Föreningen tillhandahåller 24 garageplatser. Till dessa är det separat kö.
Flera parkeringsplatser finns i området.
Kabel-TV ingår i månadsavgiften.
Bostadsrättens indirekta nettoskuldsättning baseras på föreningens skulder/lån minus föreningens räntebärande tillgångar och likvida medel. Beräkningen är gjord och baseras enbart på den senaste tillgängliga årsredovisningen. För mer information kontakta ansvarig fastighetsmäklare.
Driftkostnaderna är enligt schablon och kan variera beroende på avtal och förbrukning.
*Betalas av säljare
Föreningens fastighet Mörsaren 15 i Karlstads kommun består av fem flerbostadshus med totalt 80 st bostadsrätter, 1 st hyresrätt, 2 st lokaler samt 24 st garage.
Marken är upplåten med tomträtt.
Lägenhetsfördelning:
18 st 1 rum och kök
55 st 2 rum och kök
6 st 3 rum och kök
2 st 4 rum och kök
Den totala boytan är 4 233,5 kvm.
Från och med 2025-01-01 höjdes avgifterna med 6 %. Månadsavgiften kommer även höjas per 2026-01-01.
Fastigheten är fullvärdesförsäkrad hos Bostadsrätterna Fastighetsförsäkring. Bostadsrättsförsäkring ingår.
Utförda renoveringar:
1991/-92 Stambyte, fönsterbyte, renovering fasad, nya dörrar i byggnaden
2009 Inglasning av balkongerna
2015 Spolning av stammar
2016 Tvättstugorna fick en upprustning av maskinparken
2018 Byte av hissar i de tre trapphus som har det samt radonmätning utan anmärkning
2018 Renovering torkrum
2019 Målning av trapphus samt OVK
2020 Låsbyte till alla lägenheter, kodlås installerat till soprum, service av ventilation
2021/22 Spolning av stammar
2022 Takrenovering samt lagat en avloppsstam genom relining
2023 Nya lås på samtliga dörrar
Föreningen tillhandahåller 24 st garageplatser, kostnad mellan 300-350 kr/mån samt 13 st parkeringsplatser till en kostnad om 314 kr/mån. Till dessa är det separat kö.
Kabel-tv basutbud via Telia ingår i månadsavgiften.
Föreningen tillhandahåller tre gemensamma tvättstugor och cykelförråd finns i alla lägenhetshus.
Föreningen har avtal med Städtjänst om lokalvård och Råums Maskin AB om utvändig fastighetsskötsel.
Information från årsredovisningen 2024.
Vill du köpa, sälja eller värdera bostad i Värmlands län? Kontakta våra mäklare i Karlstad! Passa också på att anmäla dig till vår kostnadsfria söktjänst Boagenten som hjälper dig att hitta ditt drömboende.
Kontakta mäklaren om du behöver hjälp att ta fram en boendekalkyl.
När du köper din bostad genom Bjurfors kan du ansöka om bolån till en förmånlig ränta hos våra banksamarbetspartners Söderberg & Partners och SEB.
Föranmälan till visningen krävs. Varmt välkommen!
Extra kontaktperson