-
Köpa
Köpa -
Sälja
Sälja - Hitta bostad
- Skapa bevakning
- Hitta mäklare
Toppvåning om 87 välplanerad kvm med utsikt – terrass med öppen och inglasade del samt balkong
Kanikenäsholmen, Karlstad
*Inkl. värme, vatten, kabel-TV, IP-telefoni samt bredband.
**Areauppgift inhämtad från bostadsrättsföreningen
Varmt välkommen till Kanikenäsbanken 10A och denna inbjudande bostad högst upp i huset. Ljuvlig terrass med fantastiskt utsikt varav den ena delen är inglasad samt en balkong från kök! Med sina 87 kvm fördelat på tre rum och kök får du ett boende som känns rymligt och genomtänkt i varje detalj. Uteplatserna erbjuder en inglasad del samt två öppna vilket gör att du kan njuta av solen hela dagen.
Du välkomnas av en praktisk hall med plats för avhängning samt klädkammare i anslutning. Lägenheten har ett öppet och luftigt vardagsrum med stor fönsterparti som skapar ett magiskt ljusinsläpp och en fantastisk utsikt över Karlstad och kanalen. Den öppna planlösningen mot köket ger en härlig känsla av rymd, bjuder in socialt och den mindre köksön fungerar både som en praktisk arbetsyta och ett snyggt sätt att dela av rummet. Från vardagsrummet finns utgång till en inglasad terrass som erbjuder en avkopplande plats året runt. Den inglasade terrassen fortsätter vidare ut till en öppen terrass, vilket ger möjligheten att njuta av både skyddade och öppna utomhusytor. För extra bekvämlighet finns även en terrass med utgång från köket där du kan njuta av utsikten över innergården. Det stilrena köket är välplanerat med moderna vitvaror och bra förvaringsmöjligheter i över- och underskåp. Vidare erbjuder bostaden två sovrum med gott om plats för både säng och förvaring. För extra förvaring finns både en praktisk klädkammare och flertalet garderober i kök samt inre hall. Det stilrena och tidlösa duschrummet är utrustat med WC, handfat med tillhörande kommod, dusch med duschväggar i klarglas samt tvätthörna för praktisk användning.
Kanikenäsbanken är ett attraktivt och lugnt område som erbjuder både närhet till centrala Karlstad och vacker utsikt över kanalen. Här finns även goda kommunikationsmöjligheter och nära till alla bekvämligheter som butiker, restauranger och fritidsaktiviteter
Hjärtligt välkommen att kontakta ansvarig mäklare för mer information och visning!
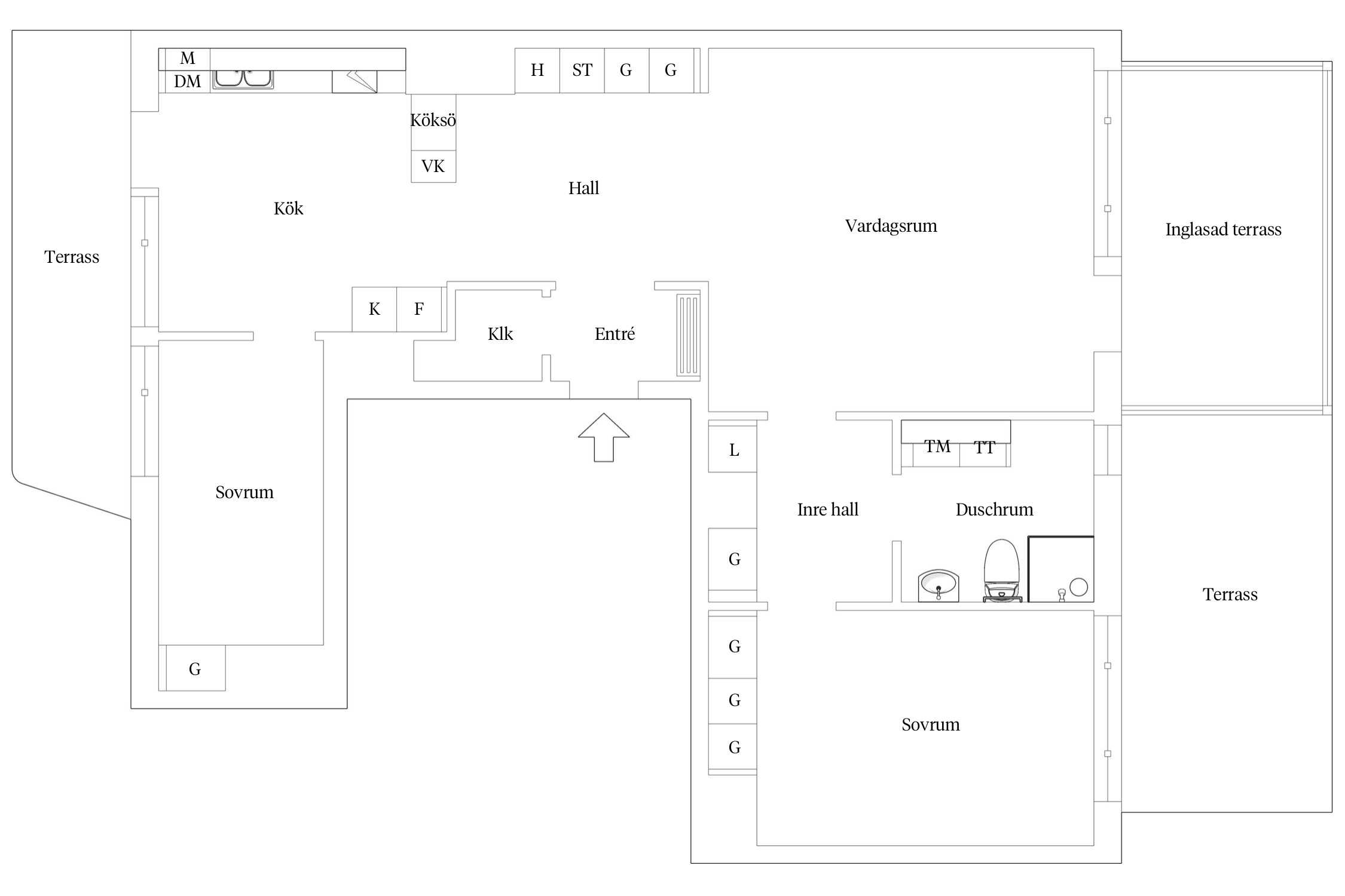
Entré
Välkommen in! Entré med plats för avhängning samt klädkammare i anslutning. Praktiskt klinker på golv.
Hall
Från entrén fortsätter hallen som är belägen mellan kök och vardagsrum. Praktiskt förvaring i fyra garderober. Parkettgolv och mönstrad tapet på vägg.
Kök
Ljust och öppet kök med snickerier i vitt, grå laminat bänkskiva och vitt kakel ovan arbetsbänk. Bra förvaring i över- och underksåp samt i köksön. Denna är även inredd med vinkyl. Maskinellt utrustat med induktionshäll, fläkt, ugn, mikro samt hel kyl och frys. Naturlig del för matgrupp vid fönster och här når du även bostadens balkong med utsikt över innergården. Vita väggar, parkettgolv och spotlights i tak.
Sovrum
Det mindre sovrummet av de två når du från köket. Plats finns för enkelsäng, skrivbord samt fotölj. Förvaringsmöjligheter i garderob. Vita väggar och parkettgolv.
Vardagsrum
I öppen planlösning med kök där hallen naturligt delar av mellan dessa. Plats för soff- och sittgrupp samt bokhyllor. Vitmålade väggar och parkettgolv. Från vardagsrummet når du bostadens härliga och inglasade del av terrassen. Vidare från denna har du en stor öppen del och de båda har plats för mat- eller loungegrupp.
Inre hall
Från vardagsrummet ligger inre hall och från denna når du bostadens duschrum samt sovrum. Bra förvaring i garderober.
Duschrum
Tidlöst duschrum med grått klinkers på golv och vitt kakel på vägg. Rymligt och praktiskt med tvättdel. Arbetsbänk med tvättmaskin och torktumlare samt förvaring i överskåp. Inrett med WC, handfat med tillhörande kommod, spegelskåp och dusch med duschväggar i klarglas. Vitt kakel på vägg, grått klinkers på golv och spotlights i tak.



KD Kajaken 1 & 4
*Areauppgift inhämtad från bostadsrättsföreningen
Inkl. värme, vatten, kabel-TV, IP-telefoni samt bredband.
Terrass som är avdelad med en inglasad del som fortsätter till en öppen. Balkong från kök. Föreningen har även en gemensam takterrass.
Garage 850 kr/månad. Totalt 46 garageplatser i föreningen. Betalparkering finns längs med kanalen och även ett flervånings parkeringshus vid Kanikenäsbanken.
Digital-TV kanalpaket Lagom
Fiber
Bostadsrättens indirekta nettoskuldsättning baseras på föreningens skulder/lån minus föreningens räntebärande tillgångar och likvida medel. Beräkningen är gjord och baseras på senaste tillgängliga årsredovisningen. För mer information kontakta ansvarig fastighetsmäklare.
IMD el och vatten vilket debiteras av föreningen. Detta är enbart riktvärden och kan variera beroende på avtal.
*Betalas av köpare
Brf Kajaken är en äkta bostadsrättsförening.
Adresser: Kanikenäsbanken 10 A-C
Fastighetsbeteckning: Kajaken 4
Bostadshus: 1 st
Antal lägenheter: 95 st:
26 st 1 rok 38-47 kvm
16 st 2 rok 55-75 kvm
49 st 3 rok 70-94 kvm
3 st 4 rok 89-101 kvm
1 st övernattningslägenhet 1 rok 23 kvm
Antal rum och m2: 1-4 rok, 38-98 kvm
Hiss: Hiss finns i fastigheten, går ner till källaren.
P-platser: Garageplats 28 st bilplatser och 6st MC platser, hyra ca 850 kr/månad bil och 300kr/månad MC. till garageplatserna är det separat kö (lång kötid på över ett år). P-platser finns att hyra i mån av plats i grannliggande p-hus. P-hus 900 kr/mån ingen kötid. Abonnemang tecknas direkt med APCOA, meddela att du bor i Brf Kajaken.
Lägenhetsförråd: 1 per lägenhet, förrådet är placerat i källaren.
Uppvärmning: Fjärrvärme
Ventilation: FTX, lägenhetsaggregat
Hushållsel: Föreningen har ett abonnemang. Individuell mätning sker i varje lägenhet och kostnaden kommer på månadsavin.
Tvättstuga: Det finns en tvättstuga i föreningen.
Övernattningslägenhet: Det finns en övernattningslägenhet för bokning i föreningen. 300 kr/dygn.
Soprum: Föreningen har ett soprum belägen på Kanikenäsbanken 10 A.
Detta ingår i månadsavgiften: Vatten, Värme. Abonnemang på Telias fibernätspaket, Paket lagom.
- bredband fiber 100/100 Mbit/s
- digital-TV kanalpaket Lagom (ca 24 kanaler)
- abonnemang för bredbandstelefoni
Föreningens tekniska förvaltning såsom t, ex sophämtning, snöskottning Avsättning för fastighetens underhåll på kort och lång sikt Avskrivningar/amortering och räntor
Höjning av avgift med 2,5% från 2023 samt 10% år 2024.
Ekonomisk förvaltare: Vänerförvaltning AB
Brf Kajaken höjde avgiften med 2 % från 2026-01-01. Inga fler planerade höjningar.
Vill du köpa, sälja eller värdera bostad i Värmlands län? Kontakta våra mäklare i Karlstad! Passa också på att anmäla dig till vår kostnadsfria söktjänst Boagenten som hjälper dig att hitta ditt drömboende.
Kontakta mäklaren om du behöver hjälp att ta fram en boendekalkyl.
När du köper din bostad genom Bjurfors kan du ansöka om bolån till en förmånlig ränta hos våra banksamarbetspartners Söderberg & Partners och SEB.