-
Köpa
Köpa -
Sälja
Sälja - Hitta bostad
- Skapa bevakning
- Hitta mäklare
Villa med potential och en tomt utöver det vanliga
Norrstrand, Karlstad
*Areauppgifter enligt taxeringsinformationen
Anmälan inför visning krävs
Välkommen till denna rymliga villa från 1938 med stor potential och ett attraktivt läge på Norrstrand. Här erbjuds en fastighet för dig som vill skapa ditt eget drömboende och sätta din egen prägel på ett hus med fina grundförutsättningar.
Bostaden omfattar cirka 140 kvm fördelat över två plan samt en källarvåning om cirka 70 kvm. Huset präglas av en bra planlösning och generösa rum med härlig takhöjd, vilket ger en luftig och trivsam känsla genom hela bostaden.
Invändigt är standarden av äldre karaktär, vilket ger goda möjligheter för den som vill renovera och utveckla huset efter egna önskemål. Här finns potential att skapa ett modernt och personligt hem samtidigt som husets charm bevaras.
Tomten erbjuder fina möjligheter att utveckla till en riktigt trivsam utemiljö med plats för både trädgård, uteplats och sociala ytor.
Fastigheten är ansluten till fjärrvärme och fiber, vilket ger både bekväm uppvärmning och goda tekniska förutsättningar.
Ett hem med potential i ett omtyckt och centrumnära område i Karlstad.
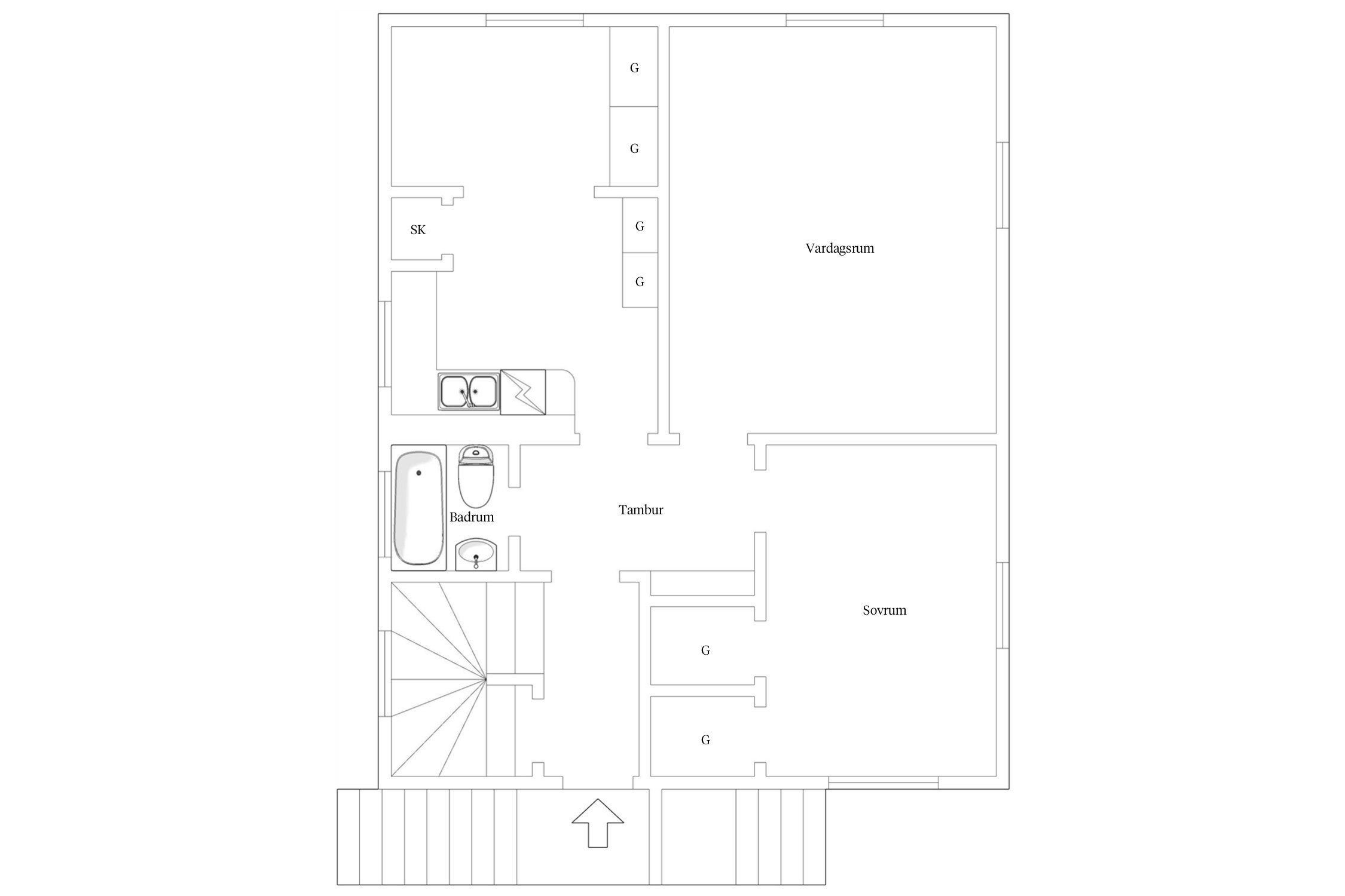
Entrévåning
Kapprum/hall
Det första vi möts av är bostadens trapphus som sedan för oss vidare in i en hall med kapprum i anslutning. Smart planering med bra förvaring.
Kök
Kök med äldre snickerier och ett separat matrum. Kyl och frys är nya från något år tillbaka.
Vardagsrum
Rymligt vardagsrum med vacker fiskbensparkett och tapetserade väggar. Trevligt ljusinsläpp från fönster i två håll.
Sovrum 1
Sovrum med laminatgolv och två fönster. Tapetserade väggar med struktur
Badrum
Badrum med badkar, WC och tvättställ. Ljusinsläpp från fönster. Plastmatta och våtrumstapet
Trapphus
Det trevliga trapphuset leder oss upp till det övre planet. Härifrån finns också en trapp ner till källaren. Trappan är rejäl och ljusinsläppet bra från fönster.
Plan 2
Det övre boendeplanet har motsvarig planlösning som entrévåningen. Här är dock köket som fanns från start borttaget och istället finns där ett sovrum.
Hall
Den övre hallen är även den rymlig och har ett kapprum i anslutning. Strukturtapet och heltäckningsmatta.
Sovrum 2
Rymligt sovrum med heltäckningsmatta.
Sovrum 3/allrum
Mycket stort sovrum alternativt allrum. Heltäckningsmatta och taper. Rummet motsvarar storleken av vardagsrummet på entrévåningen.
Sovrum 4
Stort sovrum med heltäckande matta och tapet.
Badrum
Badrum med badkar. Våtrumstapet och heltäckningsmatta. Wc och tvättställ. Ljusinsläpp från fönster.



Entrévåning
Övervåning
Källarplan
Stinsen 6
*Areauppgifter enligt taxeringsinformationen
Kommunalt vatten, Kommunalt avlopp.
Tomtindelning (1939-11-18) Stadsplan (1939-06-09)
Driftkostnader och elförbrukning är inhämtade från säljaren och bör endast ses som en uppskattning. Kostnaden kan variera och baseras på förbrukning och avtal.
Det finns 1 st pantbrev uttaget om sammanlagt 145 000 kr
Vill du köpa, sälja eller värdera bostad i Värmlands län? Kontakta våra mäklare i Karlstad! Passa också på att anmäla dig till vår kostnadsfria söktjänst Boagenten som hjälper dig att hitta ditt drömboende.
Kontakta mäklaren om du behöver hjälp att ta fram en boendekalkyl.
När du köper din bostad genom Bjurfors kan du ansöka om bolån till en förmånlig ränta hos våra banksamarbetspartners Söderberg & Partners och SEB.
Anmälan inför visning krävs
Ansvarig mäklare