-
Köpa
Köpa -
Sälja
Sälja - Hitta bostad
- Skapa bevakning
- Hitta mäklare
Fantastisk fastighet
Åmål
*Areauppgifter enligt taxeringsinformationen
Varmt välkomna till Kungsgatan 25 i Åmål och denna fantastiska fastighet som inrymmer totalt tre lägenheter, en om ca. 160 kvm, en på ca. 60 kvm och den sista är ca 120 kvm. Med sin totala brist på symmetri verkar "Waldenströmska villan" vara byggd i spontanitetens och glädjens tecken. Bostadshuset är i två plan och har en stomme av trä med liggande fasspontpanel som fasad. Fastigheten har en välbevarad yttre karaktär med stort kulturhistoriskt värde. Bostadshuset består av tre lägenheter, två på nedre plan och en större på övre plan. Den större lägenheten på nedre plan har möjlighet till två stora sovrum, sociala ytor i matsalen och även ett praktiskt kök. Denna lägenhet har även ett smakfullt renoverat duschrum. Den mindre av lägenheterna på nedre plan har ett rejält vardagsrum, sovrum och ett praktiskt kök. Den största bostaden på övre plan som tidigare var representationsvåning har två stora sovrum, varav ett är i det åttkantiga tornrummet. Två stora allrum, badrum och ett rejält kök med matsalsdel.
Uthuset byggdes som vagnskjul men har under åren används som kiosk. Kiosken är i ett och ett halvt plan och ligger med skyltfönster mot Kungsgatan, här kan man ha sin egen verksamhet om så önskas alternativt inreda som gästhus eller liknande.
Fastigheten är taxerad som 321, hyreshusenhet, bostäder och lokaler.
Fastigheten bör upplevas på plats, varmt välkomna!
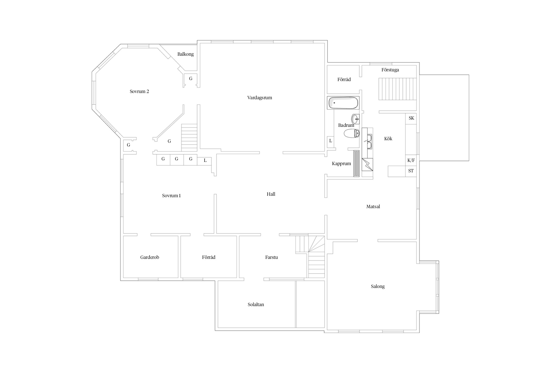
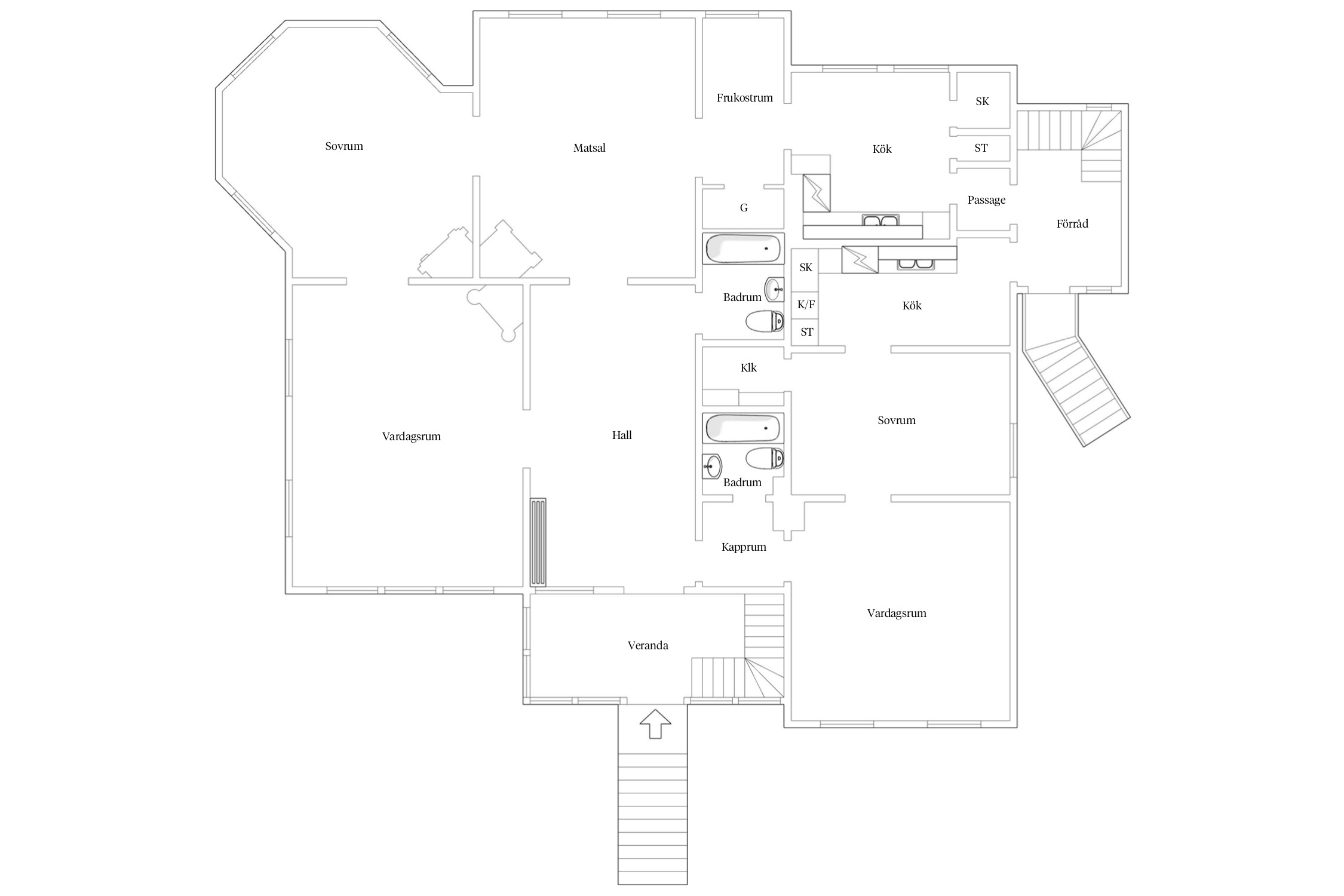
PLANLÖSNING
HUVUDBYGGNAD
LGH 1 Övre plan
Övre plan inrymmer en stor lägenhet om ca 160 kvm. Bostaden har en stor farstu och hall, från hallen nås stora delar av den resterande bostaden. Två stora sovrum varav ett är i det åttkantiga tornrummet. Stort vardagsrum med gott ljusinsläpp och en öppen spis med spiskassett . Praktiskt kök med intilliggande matsal och allrum. Badrum där badkar, WC och tvättställ finns.
LGH 2 Entréplan
Stor lägenhet om ca 120 kvm, lägenheten har två rejäla sovrum, ett fantastiskt allrum och praktiskt kök. Lägenheten har att renoverat duschrum i smakfull stil utrustat med dusch, WC och tvättställ med underliggande kommod. En av de fantastiska sakerna med denna lägenhet är att den är utrustad med två kakelugnar. Till lägenheten finns en härlig uteplats.
LGH 3
Den tredje lägenheten är ca 60 kvm, har stort sovrum och vardagsrum, utrustat med kök, duschrum med kakel och klinker och även en egen uteplats.
UTHUS/KIOSK
Fortsätter vi ned mot Kungsgatan finns den gamla kiosken som byggdes för att ha ett vagnskjul på den tiden man begagnade sig åt häst och vagn. Har under åren figurerat som kiosk, loppis och gästbostad. Här sätter endast fantasin gränser.



Entréplan
Källarplan
Stegen 1
*Areauppgifter enligt taxeringsinformationen
Bergvärmepump 2023
Flertalet uteplatser runt omkring på fastigheten. Till de två lägenheterna på nedre plan finns en vardera uteplats. Sedan finns det även ett separat inglasat uterum på framsidan.
Kommunalt vatten och avlopp
Lättskött tomt med stora grönytor och diverse planteringar.
Plats för flertalet bilar på gårdsplan. Det finns även plats för bil i garaget.
Detaljplan (1992-10-01)
Fiber
El avser även uppvärmning, övrigt avser fast kostnad för Fiber
Det finns 9 st pantbrev uttagna om sammanlagt 1 598 000 kr
Vill du köpa, sälja eller värdera bostad i Västra Götaland? Kontakta våra mäklare i Göteborg! Passa också på att anmäla dig till vår kostnadsfria söktjänst Boagenten som hjälper dig att hitta ditt drömboende.
Kontakta mäklaren om du behöver hjälp att ta fram en boendekalkyl.
När du köper din bostad genom Bjurfors kan du ansöka om bolån till en förmånlig ränta hos vår samarbetspartner SEB.
| Bud | Budgivare | Datum | Tid |
|---|---|---|---|
| 3 850 000 kr | Budgivare 1 | 2026-01-30 | 15:17 |
Ansvarig mäklare