-
Köpa
Köpa -
Sälja
Sälja - Hitta bostad
- Skapa bevakning
- Hitta mäklare
Unikt boende ovan takåsarna
Centrum, Borås
*Inkluderat Bredband/TV. Exklusive vatten, värme, el till självkostnadspris.
**Areauppgifter enligt bostadsrättsföreningen
Bokad visning.
På Förhand ligger bostäder som av olika anledningar inte är ute till försäljning just nu men som kan komma att säljas om förutsättningarna är rätt.
Nu presenteras denna fantastiska bostad med cityview i omtalade designprojektet Pallas Roof.
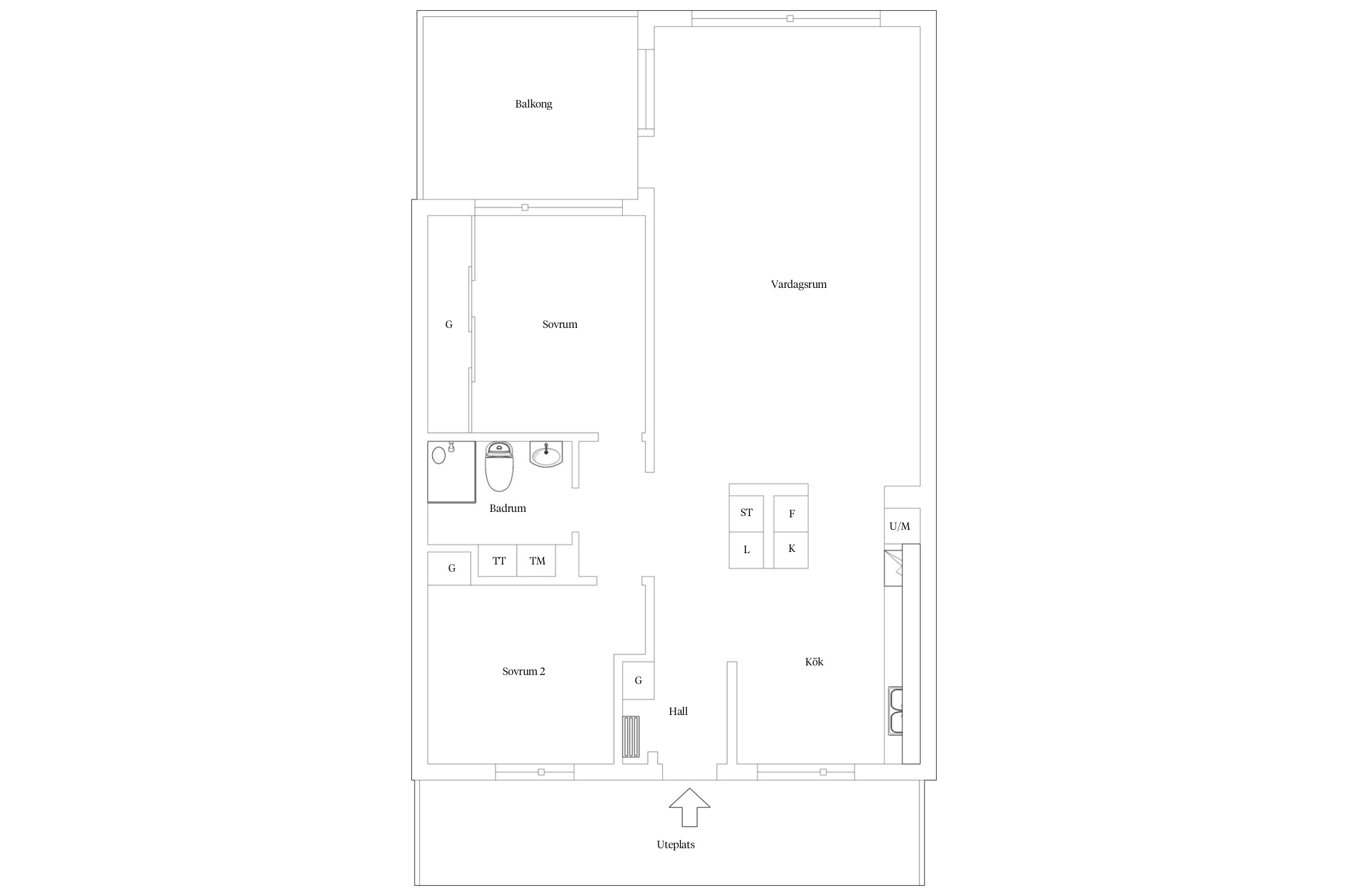
Nu presenteras denna fantastiska bostad med cityview i omtalade designprojektet Pallas Roof. Här erbjuds två terrasser med sol från förmiddag till kvällen vilket inger en huskänsla mitt i stan. Utsikten över takåsarna är slående med Rya Åsar och Carolikyrkan som fond. Invändigt bjuder bostaden på en välplanerad planlösning med påkostade materialval i bästa nordiska elegans. Drömköket från Kvänum är fullutrustat med inbyggda vitvaror från Miele. Den lyxiga känslan gör sig påmind med svart bänkskiva i granit och vinkyl. De öppna och sociala ytorna inspirerar tillsammans med de dubbla terrasserna till festliga sammankomster. I övrigt finns två bra sovrum. Master bedroom har cityview och stora panorama fönster mot balkongen. Det andra rummet nyttjas idag som en walk.in-closet med flera platsbyggda garderober. Beroende på familjesammansättning kan detta rum användas som sovrum. Badrummet är helkaklat med golvvärme och bekvämligheter som tvättmaskin och torktumlare. Utöver detta finns vattenburen golvvärme i hela bostaden. Dessutom har du som boende tillgång till atriuminnergård, relax och bastu.
Här bor du mitt i hjärtat av centrala Borås. Direkt utanför porten upplever du stadspulsen med omedelbar närhet till prisbelönta restauranger, caféer och shopping. På bekvämt promenadavstånd finns flera daghem, skolor och gymnasier samt goda kommunikationer som snabbt och enkelt tar dig runt i staden. För den som önskar avkopplande grönska finns både den vackra atrium-innergården och Stadsparken runt hörnet.
Redan i entrén känner ni av den höga standard som fastigheten har. Ta den privata hissen upp till våning sju där detta hem är beläget. Väggarna i bostaden är vita och lägenheten har genomgående ekparkett med underliggande golvvärme.
Rakt fram öppnar vardagsrummet upp sig med sin otroliga rymd och generösa ljusinsläpp via stora panoramafönster. Här finns plats för soffgrupp och stor matsalsgrupp. I och med att kök och vardagsrum är integrerade skapas en social och lättmöblerad planlösning. Ett riktigt härligt rum att umgås i. Från vardagsrummet nås den härliga terrassen. Här kan man njuta av kvällssolen och utsikt mot Rya Åsar och Carolikyrkan. Terrassen är rymlig och har gott om plats för utemöbler och planteringar. Trallen på balkongen är av norrländsk tätvuxen kärnfuru, ett material som grånar naturligt med tiden och skapar en känsla av värme.
Köket från Kvänum är ett resultat av en lyckad projektering där smakfulla val möter generösa arbetsytor och bra med förvaring. Skåpsluckor i vitt möter svart bänkskiva i granitsten och stänkskydd i samma ton. Tillsammans med vinkylen och de integrerade vitvarorna så blir intrycket oerhört genomtänkt i sin helhet. Utrustningen består av induktionshäll, spisfläkt, ugn, micro, kyl och frys samt integrerad diskmaskin. Invid fönstret har matplatsen för fyra-sex personer sin givna plats.
Master bedroom ligger med ett insynsskyddat läge mot terrassen. Plats finns för en dubbelsäng med kompletterande nattduksbord. En rejäl skjutdörrsgarderob löser förvaringen. I rummet finns även en aircondition installerad. På golvet ligger heltäckningsmatta.
Det andra rummet används idag som walk-in-closet och är i sig är avskärmat mot hallen genom ett industriellt glasparti som släpper genom ljuset. Flera platsbyggda garderober bidrar till god klädvård. Beroende på familjesammansättning kan detta göras om till ett sovrum eller arbetsrum. På golvet ligger heltäckningsmatta.
Från hallen nås badrummet som är stilrent helkaklat med golvvärme och inrett med exklusiva och moderna materialval. Tvättmaskin och torktumlare under en praktiskt arbetsbänk med tillhörande överskåp för hygienartiklar. Vidare finns wc, dusch bakom duschvägg i glas, handduksvärmare och tvättställ med spegelskåp. Badrumsinredning är av Duravit, Svedbergs och Hans Grohe. Belysning i form av inbyggda spotlights.



*Areauppgifter enligt bostadsrättsföreningen
Inkluderat Bredband/TV. Exklusive vatten, värme, el till självkostnadspris.
Två uteplatser i varierande lägen.
Parkering hanteras av AImo Park, kontakta kundtjänst och beställ parkeringstillstånd för boende på Pallas 5 och 6.
Tel: 0771-969006
Ett basutbud Telia Triple Play med TV-paket Lagom ingår i det grundabonnemang som är inkluderat i din månadsavgift.
Fastigheten är ansluten till Telias fibernät. I grundabonnemanget ingår även 100/100 Mbits internetanslutning samt den fasta avgiften för ett telefonabonnemang (IP-telefoni). För att beställa snabbare internet eller om du har frågor runt telefonin, kontakta Telia.
Bostadsrättens indirekta nettoskuldsättning baseras på föreningens skulder/lån minus föreningens räntebärande tillgångar och likvida medel. Beräkningen är gjord och baseras på senaste tillgängliga årsredovisningen. För mer information kontakta ansvarig fastighetsmäklare.
Föreningen har till ändamål att främja medlemmarnas ekonomiska intressen genom att i föreningens hus upplåta lägenheter med bostadsrätt åt medlemmarna för nyttjande utan begränsning i tiden. Föreningen har sitt säte i Borås kommun, Västra Götalands län.
Föreningen äger fastigheten Borås Pallas 4, ett flerbostadshus i två plan med totalt 40 lägenheter, vilka samtliga upplåts med bostadsrätt och med adress Lilla Brogatan 8, Borås. P-plats finns att hyra hos extern hyresvärd.
Föreningens byggnad är fullvärdeförsäkrad hos Länsförsäkringar Älvsborg. I försäkringen ingår också styrelseansvarsförsäkring.
Föreningen har kollektiv bostadsrättsförsäkring hos LF. Hemförsäkring tecknas av respektive lägenhetsinnehavare.
Parkering hanteras av AImo Park, kontakta kundtjänst och beställ parkeringstillstånd för boende på Pallas 5 och 6. Tel: 0771-969006
Kollektivt bredband/TV. Bredbandsmodem samt TV-box ska överlämnas av tidigare lägenhetsinnehavare.
Bredband/TV aktiveras av lägenhetsinnehavaren hos Telias på 90 200 alternativt i Teliabutiken på Allégatan 41 i Borås.
Grillplats med plats för socialt umgänge samt en relaxavdelning med bastu och dusch.
El och vatten avtal tecknat av föreningen.
Hushållsel, uppvärmning och vatten läses av automatiskt och debiteras via månadsavi.
MODERNA OCH VÄXANDE BORÅS
I Borås bor du i en vackert belägen stad som följer Viskans dalgång med ett vakande öga från Rya Åsars beskyddande kullar.Det är modern stad och del av en dynamisk tillväxtregion i en miljö där proportionerna är lagom och takten lite lugnare.
VÄVD AV HISTORIEN, FORMAD AV FRAMTIDEN
Borås är sen sekler tillbaka en starkt präglad textil- och handelsstad. Staden är vävd av historien och formad för framtiden. Borås Konstmuseum, Textilmuseet och Borås Museum erbjuder ett rikt utbud av konstnärliga höjdpunkter av olika slag och former om du vill uppleva historiens vingslag. Staden utvecklar sin framtid på arvet från textil och handel. Den är en del av en tillväxtregion och utmärker sig nationellt inom affärsområden som textil, e-handel och logistik. Här finns också Viared utmed riksväg 40, en företagspark under stark utveckling. En strategisk skandinavisk placering med ungefär samma avstånd till Stockholm, Köpenhamn och Oslo och närhet till Göteborg med Landvetter Airport. Floden Viskan var förr den livsnerv som industrin byggde sin framtid på. Nu ger Viskans flöde inspiration till rekreation och upplevelser.
PULS OCH PAUS
Det är kontrasterna som genomsyrar Borås. Å ena sidan puls, shopping och nöjesliv, å andra sidan mysiga parker, kullerstenar och svalkande bad. Här finns ett variationsrikt kulturutbud och upplevelser om du är aktiv. Djurparken är en av landets största. Borås är rikt på sjöar och vattendrag. Det finns flera badplatser med stor variation och kalla vintrar lockar stadsparksbadet. Sportintresset är stort i Borås kommun med lokala elitlag som IF Elfsborg, Norrby IF och Borås Basket.
Sträckan Göteborg-Borås är det tredje största pendlingsstråket i landet där pendling sker i båda riktningarna. Infrastrukturen inom regionen är en prioriterad fråga med Götalandsbanan i spetsen. Staden är navet i Sjuhärad med väl utbyggd kollektivtrafik inom Borås och till de fyra serviceorterna Dalsjöfors, Fristad, Sandared och Viskafors.
Köpa, sälja eller värdera bostad i Borås? Kontakta Bjurfors mäklare i Borås! Passa också på att anmäla dig till vår kostnadsfria söktjänst Boagenten som hjälper dig att hitta ditt drömboende.
Kontakta mäklaren om du behöver hjälp att ta fram en boendekalkyl.
När du köper din bostad genom Bjurfors kan du ansöka om bolån till en förmånlig ränta hos vår samarbetspartner SEB.
Bokad visning.