-
Köpa
Köpa -
Sälja
Sälja - Hitta bostad
- Skapa bevakning
- Hitta mäklare
Stor 2:a i populärt 50+ boende på Hestra!
Hestra, Borås
*I månadsavgiften ingår uppvärmning och vatten. Utöver det tillkommer ett obligatoriskt tillägg på 200 kr/mån som avser ett kollektivt tv- och bredbandsavtal som föreningen har tecknat. Den totala månadsavgiften är 5414 kr.
**Ekonomisk plan/förvaltaren.
Välkommen till Brf Parkstaden i Borås som är ett populärt 50+ boende på omtyckta Hestra. Här erbjuds nu en rymlig 2:a på hela 76 kvm med en väl tilltagen balkong som omges av fantastisk natur.
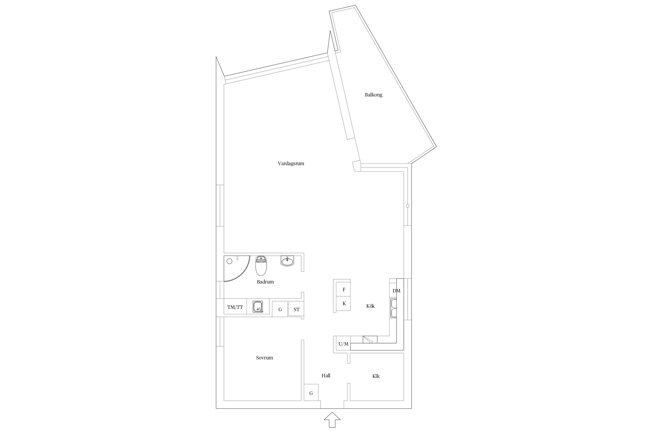
Med hiss i huset tar du dig smidigt upp till våning 3 där denna bostad finns. Innanför entrédörren möts du av en rymlig hall som leder dig vidare in i bostaden där du möts av en öppen och luftig planlösning med stora fönsterpartier som vetter åt tre väderstreck och en fantastisk utsikt över de vackra grönskande vyerna. Den rymliga balkongen ligger skyddad under tak och vetter mot husets lugna baksida. Här kan du sitta ostört, utan någon trafik eller insyn och njuta av lugnet och solen som gör dig sällskap från eftermiddagen till sena kvällen. Bostaden är välplanerad med alla bekvämligheter för att underlätta vardagen. I köket finns gott om förvaring och bänkyta med full maskinell utrustning. Rymligt helkaklat badrum med både tvättmaskin och torktumlare. Den öppna planlösningen mellan kök och vardagsrum gör bostaden lättmöblerad. I vardagsrummet finns det även utrymme att bygga ett extra rum vid behov. I bostaden finns det gott om förvaringsmöjligheter både i ett flertal garderober och en praktisk klädkammare samt ett tillhörande förråd som finns i husets entréplan.
Här bor du i en stabil förening som är ett populärt 50+ boende. Som boende har man möjlighet att hyra p-plats eller garage, beroende på vad som finns ledigt. I grannhuset finns övernattningslägenhet som man kan få låna. Föreningen har välskötta innergårdar med härliga grönområden och flertal sittplatser.
Med sitt fina läge i området har du natursköna miljöer precis inpå knuten. På promenadavstånd finns sjön Kolbränningen med motionsspår och bad- och fiskemöjligheter. Dessutom nära till busshållplatsen där buss nr 8 har täta bussförbindelser till centrala Borås. För dig som gillar att cykla eller promenera finns det fina cykel- och gångvägar till Borås.
Välkommen att boka in er på visning!
HALL
Välkommen in! Du möts av en rymlig hall med god plats för avhängning av ytterkläder och skor. I anslutning till hallen finns en praktisk klädkammare. I hallen pryds golvet med praktiskt grått klinkergolv som sedan övergår i fin parkett. Samma parkett är genomgående i hela bostaden vilket skapar en fin helhetskänsla. Väggarna är målade i en vit nyans.
SOVRUM
Sovrummet finns direkt till vänster om hallen med plats för dubbelsäng. Förvaring finns i en inbyggd garderob samt även plats för extra förvaringsmöbel vid behov. Väggarna är tapetserade i en beige nyans.
BADRUM
Helkaklat badrum med vita kaklade väggar och grått klinkergolv med skön golvvärme. Inredningen består av wc, handfat, dusch och handdukstork. Det finns dessutom en mindre tvättavdelning med tvättho, förvaringsskåp samt tvättmaskin och torktumlare. I taket sitter spotlight och fönstret bidrar med både fint ljusinsläpp och behaglig inomhusmiljö.
KÖK/VARDAGSRUM
Kök i vinkel med gott om förvaring och bänkyta. Inredning med träluckor, grå bänkskiva och mellan överskåp och bänkskiva pryds väggen med vita kakelplattor. Köket har full maskinell utrustning så som spishäll, fläkt, mikro, ugn, diskmaskin och kyl och frys i fullhöjd. I taket sitter i spotlights som ger ett behagligt ljus.
Köket ligger delvis i öppen planlösning mot vardagsrummet och skapar en ljus och och luftig atmosfär. Rikligt med ljusinsläpp från de stora fönsterpartierna i tre väderstreck och fantastisk utsikt över de grönskande omgivningarna. Här ryms både matbord, soffgrupp och annan möblemang utan att det upplevs trångt. Tack vare bostadens storlek finns möjlighet att i vardagsrummet bygga ett extra rum vid behov.
Från vardagsrummet når man den väl tilltagna balkongen som ligger skyddad under tak och vetter mot husets grönskade baksida och föreningens gemensamma trädgård. Här kan du sitta ostört utan någon störande trafik och njuta av lugnet och solen som gör dig sällskap från eftermiddagen till sena kvällen.



*Ekonomisk plan/förvaltaren.
I månadsavgiften ingår uppvärmning och vatten. Utöver det tillkommer ett obligatoriskt tillägg på 200 kr/mån som avser ett kollektivt tv- och bredbandsavtal som föreningen har tecknat. Den totala månadsavgiften är 5414 kr.
50+ boende vilket innebär att minst en av köparna måste ha fyllt 50 år.
Till lägenheten hör ett förråd som finns på entréplan.
Alla medlemmar har rätt att hyra en p-plats (200kr/mån) eller ett garage i länga (625kr/mån) beroende på vad som finns ledigt. Man har installerat ladd stolpar för 10 p-platser.
Föreningen har tecknat ett kollektivt avtal för tv och bredband via Sappa och debiteras med 200kr/mån utöver månadsavgiften.
Bostadsrättens indirekta nettoskuldsättning baseras på föreningens skulder/lån minus föreningens räntebärande tillgångar och likvida medel. Beräkningen är gjord och baseras enbart på den senaste tillgängliga årsredovisningen. För mer information kontakta ansvarig fastighetsmäklare.
Uppgifter enligt schablon.
Driftkostnaderna varier beroende på antal person i hushållet, avtal, förbrukning och årstid.
*Betalas av köpare
Brf Parkstaden Borås är ett 50+ boende i hjärtat av Hestra.
Föreningen planerar att höja avgiften med några procent för 2026.
Fastigheten är försäkrad i Länsförsäkringar Älvsborg.
I försäkringen ingår kollektivt bostadsrättstillägg för medlemmarna samt ansvarsförsäkring för styrelsen.
2024-2025:
- Energioptimering
2024:
- Ledarmaturer i trapphus och gårdsytor
- Ny miljöanpassad avfallshantering
- OVK Besiktning
- Uppdaterat avtal med Riksbyggen
- 2 st städdagar
- Filterbyten friskluftsintag
2022-2024:
- Ny trappbelysning (ledlampor)
Planerat underhåll:
2025:
- IMD gemensam el
Alla medlemmar har rätt att hyra en p-plats (200kr/mån) eller ett garage i länga (625kr/mån) beroende på vad som finns ledigt. Man har installerat laddstolpar för 6 st p-platser, Debiteras för el-förbrukningen.
Föreningen har tecknat ett kollektivt avtal för tv och bredband via Sappa och debiteras med 200kr/mån utöver månadsavgiften.
- Varje lägenhet har ett förråd som finns på entréplan.'
- Cykelförråd finns i båda husen.
- Torkrum med mangel finns på entréplan.
- Föreningen har även en övernattningslägenhet för gäster som finns i hus nr 1.
Fastighetsskötsel och teknisk förvaltning: Riksbyggen
Ekonomisk förvaltning: SBC (Sveriges Bostadsrättscentrum AB)
MODERNA OCH VÄXANDE BORÅS
I Borås bor du i en vackert belägen stad som följer Viskans dalgång med ett vakande öga från Rya Åsars beskyddande kullar.Det är modern stad och del av en dynamisk tillväxtregion i en miljö där proportionerna är lagom och takten lite lugnare.
VÄVD AV HISTORIEN, FORMAD AV FRAMTIDEN
Borås är sen sekler tillbaka en starkt präglad textil- och handelsstad. Staden är vävd av historien och formad för framtiden. Borås Konstmuseum, Textilmuseet och Borås Museum erbjuder ett rikt utbud av konstnärliga höjdpunkter av olika slag och former om du vill uppleva historiens vingslag. Staden utvecklar sin framtid på arvet från textil och handel. Den är en del av en tillväxtregion och utmärker sig nationellt inom affärsområden som textil, e-handel och logistik. Här finns också Viared utmed riksväg 40, en företagspark under stark utveckling. En strategisk skandinavisk placering med ungefär samma avstånd till Stockholm, Köpenhamn och Oslo och närhet till Göteborg med Landvetter Airport. Floden Viskan var förr den livsnerv som industrin byggde sin framtid på. Nu ger Viskans flöde inspiration till rekreation och upplevelser.
PULS OCH PAUS
Det är kontrasterna som genomsyrar Borås. Å ena sidan puls, shopping och nöjesliv, å andra sidan mysiga parker, kullerstenar och svalkande bad. Här finns ett variationsrikt kulturutbud och upplevelser om du är aktiv. Djurparken är en av landets största. Borås är rikt på sjöar och vattendrag. Det finns flera badplatser med stor variation och kalla vintrar lockar stadsparksbadet. Sportintresset är stort i Borås kommun med lokala elitlag som IF Elfsborg, Norrby IF och Borås Basket.
Sträckan Göteborg-Borås är det tredje största pendlingsstråket i landet där pendling sker i båda riktningarna. Infrastrukturen inom regionen är en prioriterad fråga med Götalandsbanan i spetsen. Staden är navet i Sjuhärad med väl utbyggd kollektivtrafik inom Borås och till de fyra serviceorterna Dalsjöfors, Fristad, Sandared och Viskafors.
Köpa, sälja eller värdera bostad i Borås? Kontakta Bjurfors mäklare i Borås! Passa också på att anmäla dig till vår kostnadsfria söktjänst Boagenten som hjälper dig att hitta ditt drömboende.
Kontakta mäklaren om du behöver hjälp att ta fram en boendekalkyl.
När du köper din bostad genom Bjurfors kan du ansöka om bolån till en förmånlig ränta hos vår samarbetspartner SEB.
Ansvarig mäklare