-
Köpa
Köpa -
Sälja
Sälja - Hitta bostad
- Skapa bevakning
- Hitta mäklare
Arkitektritat 60-talshus med originaldetaljer och stor potential.
Hulta, Borås
*Areauppgifter enligt taxeringsinformationen
Här erbjuds ett arkitektritat 60-talshus från 1962 med tydlig tidsprägel och stor potential för den som vill skapa något eget. Villan är uppförd i klassisk stil med tegel fasad och gedigen stomme, och erbjuder idag cirka 120 kvm boyta samt 81 kvm biyta i form av källarplan . Huset är i behov av renovering och modernisering, men bär samtidigt på en stark karaktär där många originaldetaljer finns bevarade.
Redan vid första intrycket märks den genomtänkta arkitekturen, där stora fönsterpartier ger ett fint ljusinsläpp och skapar kontakt med trädgården. Vardagsrummet är generöst tilltaget med vacker fiskbensparkett, öppen spis och utgång mot uteplats – en typisk 60-talslösning där sällskapsytorna får ta plats. Här finns alla förutsättningar att skapa ett modernt och inbjudande rum samtidigt som den tidstypiska känslan kan bevaras.
Planlösningen på övre plan är smart uppdelad i en social och en privat del. Den ena halvan rymmer kök, vardagsrum, entré och gäst-WC, medan den andra delen samlar sovrum, badrum och ett allrum. Det skapar ett naturligt flöde i bostaden där familjelivet kan delas upp på ett funktionellt sätt. Köket är i originalutförande med tidstypiska snickerier och materialval – här finns en tydlig möjlighet att sätta sin egen prägel utan att behöva kompromissa med planlösningen.
Sovrummen är rogivande placerade med garderobslösningar och fint ljusinsläpp, och även här finns originaldetaljer bevarade såsom spegeldörrar och äldre förvaring. Badrummet är delvis uppdaterat men erbjuder fortsatt utvecklingsmöjligheter, medan gäst-WC finns praktiskt placerat i anslutning till entrén.
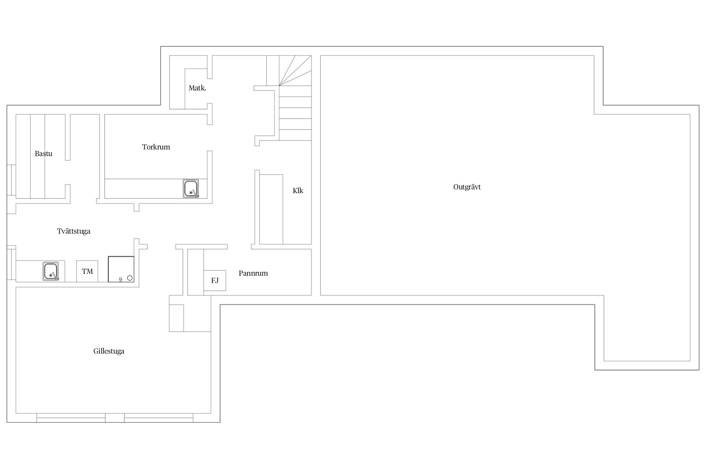
Källarplanet erbjuder gott om kompletterande ytor med bland annat gillestuga med öppen spis, tvättstuga, pannrum, förråd samt hobbyutrymmen. Här finns stor potential att utveckla ytterligare boytor eller skapa exempelvis tonårsdel, hemmakontor eller verkstad.
Tomten om 561 kvm är friköpt och huset ligger fint placerat, vilket ger en trivsam inramning och möjligheter att utveckla trädgården efter egna önskemål .
Sammanfattningsvis är detta ett renoveringsobjekt med tydlig 60-talscharm, där arkitekturen, planlösningen och de bevarade originaldetaljerna skapar en stark grund. För rätt köpare finns här en unik möjlighet att varsamt renovera och förädla ett hus med karaktär i ett etablerat och uppskattat område.



Tvåöringen 8
*Areauppgifter enligt taxeringsinformationen
-Byte av tak (bandad plåt) - okänt årtal
-3-glas fönster - olika årtal
Fiber finns installerat
Fjärrvärme paket 4 inkopplat
Inglasat uterum med en öppen spis.
Kommunalt vatten, Kommunalt avlopp.
Hörntomt med mycket växtlighet.
Uppfart på två sidor om huset med plats för flertalet bilar. Finns även garage med plats för en bil.
Tomtindelning (1962-02-16) Stadsplan (1961-07-14)
Fiber
Driftkostnader och elförbrukning är inhämtade från säljaren och bör endast ses som en uppskattning. Kostnaden kan variera och baseras på förbrukning och avtal.
Det finns 1 st pantbrev uttaget om sammanlagt 620 000 kr
MODERNA OCH VÄXANDE BORÅS
I Borås bor du i en vackert belägen stad som följer Viskans dalgång med ett vakande öga från Rya Åsars beskyddande kullar.Det är modern stad och del av en dynamisk tillväxtregion i en miljö där proportionerna är lagom och takten lite lugnare.
VÄVD AV HISTORIEN, FORMAD AV FRAMTIDEN
Borås är sen sekler tillbaka en starkt präglad textil- och handelsstad. Staden är vävd av historien och formad för framtiden. Borås Konstmuseum, Textilmuseet och Borås Museum erbjuder ett rikt utbud av konstnärliga höjdpunkter av olika slag och former om du vill uppleva historiens vingslag. Staden utvecklar sin framtid på arvet från textil och handel. Den är en del av en tillväxtregion och utmärker sig nationellt inom affärsområden som textil, e-handel och logistik. Här finns också Viared utmed riksväg 40, en företagspark under stark utveckling. En strategisk skandinavisk placering med ungefär samma avstånd till Stockholm, Köpenhamn och Oslo och närhet till Göteborg med Landvetter Airport. Floden Viskan var förr den livsnerv som industrin byggde sin framtid på. Nu ger Viskans flöde inspiration till rekreation och upplevelser.
PULS OCH PAUS
Det är kontrasterna som genomsyrar Borås. Å ena sidan puls, shopping och nöjesliv, å andra sidan mysiga parker, kullerstenar och svalkande bad. Här finns ett variationsrikt kulturutbud och upplevelser om du är aktiv. Djurparken är en av landets största. Borås är rikt på sjöar och vattendrag. Det finns flera badplatser med stor variation och kalla vintrar lockar stadsparksbadet. Sportintresset är stort i Borås kommun med lokala elitlag som IF Elfsborg, Norrby IF och Borås Basket.
Sträckan Göteborg-Borås är det tredje största pendlingsstråket i landet där pendling sker i båda riktningarna. Infrastrukturen inom regionen är en prioriterad fråga med Götalandsbanan i spetsen. Staden är navet i Sjuhärad med väl utbyggd kollektivtrafik inom Borås och till de fyra serviceorterna Dalsjöfors, Fristad, Sandared och Viskafors.
Köpa, sälja eller värdera bostad i Borås? Kontakta Bjurfors mäklare i Borås! Passa också på att anmäla dig till vår kostnadsfria söktjänst Boagenten som hjälper dig att hitta ditt drömboende.
Kontakta mäklaren om du behöver hjälp att ta fram en boendekalkyl.
När du köper din bostad genom Bjurfors kan du ansöka om bolån till en förmånlig ränta hos våra banksamarbetspartners Söderberg & Partners och SEB.
Ansvarig mäklare