-
Köpa
Köpa -
Sälja
Sälja - Hitta bostad
- Skapa bevakning
- Hitta mäklare
Funkispärla med eldstad, dubbla balkonger och perfekt läge i hjärtat av Borås
Norrmalm, Borås
*Säljarens information
Uppmätning i samband med att energideklarationen gjordes.
På Förhand ligger bostäder som av olika anledningar inte är ute till försäljning just nu men som kan komma att säljas om förutsättningarna är rätt.
Äntligen kan vi presentera ett eftertraktat radhus på Norrmalm. Modernt, rymligt och lättskött med fantastiska uteplatser.
Välkomna till detta fantastiska radhus där tidlös funkisstil möter modern komfort. Här bor du i ett av Borås mest eftertraktade områden med naturen runt hörnet, stadens puls på bekvämt avstånd och skolor samt lekplatser alldeles intill.
Redan i entrén möts du av en rymlig hall med vackert originalgolv i sten och generöst ljusinsläpp. Här finns gott om plats för både förvaring och vardagslogistik. Under trappan döljer sig ett praktiskt förråd, och intill ligger ett trivsamt allrum som passar perfekt som arbetsrum, gästrum eller tonårsdel. På detta plan finns även en fräsch tvättstuga med dusch, kaklade väggar och klinkergolv, utrustad med tvättmaskin, torktumlare, wc och handfat. Här hittar du även ett extra träningsrum samt ett förrådsutrymme som gör vardagen ännu smidigare.
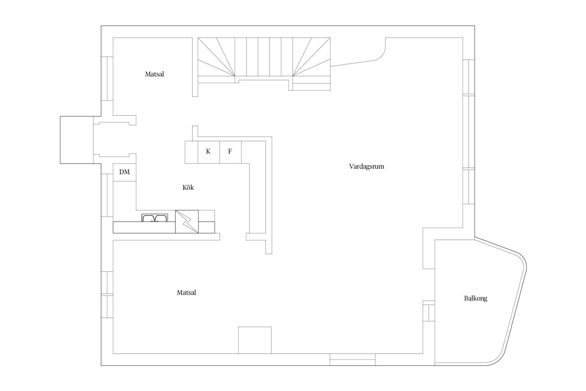
En trappa upp öppnar huset upp sig i all sin prakt. Det luftiga vardagsrummet flödar av ljus från flera fönster och ramas in av en vacker murad öppen spis. Detta blir hemmets givna samlingspunkt under årets kallare kvällar. Från vardagsrummet nås en solig balkong i sydvästläge med markis. I direkt anslutning ligger matsalen som bjuder in till umgänge, middagar och samtal långt in på kvällen. De stora ytorna och den vackra ekparketten skapar en härlig känsla. Köket, som renoverades 2018, är stilrent och funktionellt med inredning i ek från Länghemskök och moderna vitvaror såsom induktionshäll, mikro med varmluftsugn, ugn, fläkt, diskmaskin och kyl/frys. Härifrån nås även en härlig uteplats med morgonsol, en perfekt plats för frukosten utomhus.
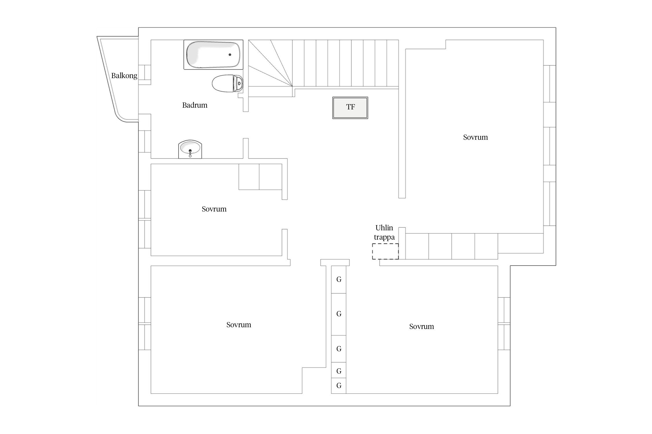
På övervåningen möts du av en möblerbar hall med skylight som ger extra rymd och ljus. Här finns fyra generösa sovrum, samtliga med vackra bokstavparkettgolv och gott om garderober och skjutdörrar. Det helkaklade badrummet bjuder på både golvvärme och badkar. Härifrån når du dessutom bostadens andra balkong, en stillsam plats för morgonsol och utsikt.
Utemiljön är lika trivsam som insidan. Den lättskötta trädgården ramas in av två uteplatser, vilket ger sol under större delen av dagen. Här finns plats för grillkvällar, odlingar och lugna stunder i grönskan. Till huset hör även ett garage med elstyrd port – en bekvämlighet som gör vardagen ännu enklare.
Norrmalm är en levande stadsdel, nära flera av de trivselvärden Borås har att erbjuda. Bara några minuter bort finns Knalleland med sitt utbud av kaféer, restauranger och småbutiker. Djurparken och Borås Simarena ligger nära till hands och likaså flera idrottsanläggningar med Borås Arena i spetsen. Närhet till både natursköna Kypesjön och Rya Åsar. Centrumkärnan och Högskolan nås via goda kommunikationer eller med bil inom 5 min. Dessutom promenadvänligt till Södra Älvsborgs Sjukhus som man når på några minuter. Området är barnvänligt med direkt närhet till förskolor, skolor och lekplatser.
Varmt välkommen att anmäla ert intresse för denna pärla!



Entréplan
Övre plan
Soutterängplan
Lekbrodern 9
*Säljarens information
Uppmätning i samband med att energideklarationen gjordes.
2024 - Reparation av skorsten samt norr och söderfasad
2021 - Elmotor till garageport, slipning av parkett i vardagsrum
2018 - Totalrenovering av kök inkl golvvärme, nya markiser, takstege samt takbrygga
2017-2023 - Nya elledningar som är jordade på samtliga plan
2016-2022 - Ny inredning i badrum
2015 - Nytt tak (papp, läkt, pannor), skjutdörrar till garderober.
2013-2018 - Nya fönster
2012 -Balkonginredning, delrenovering av tvättstuga/badrum
Kommunalt vatten, Kommunalt avlopp.
Stadsplan (1950-12-23)
Gemensamhetsanläggning: Borås lekbrodern ga:1 ändamål: Vattenförsörjning, Avloppsanläggning, Radio- TV och/eller tele, Elledning och/eller belysning, Värmeanläggning, Grönområden, Kvartersanläggning
Last: Officialservitut Byggnad, 1583K-F42/1976.6
Last: Officialservitut Ljusbrunn, 1583K-F42/1976.5
Förmån: Officialservitut Byggnad, 1583K-F42/1976.7
Fiber finns i huset.
I samfällighetsavgiften ingår vatten/avlopp, värme, sophämtning, garage, vinterväghållning, viss skötsel av gemensamma ytor.
Det finns 5 st pantbrev uttagna om sammanlagt 2 600 000 kr
MODERNA OCH VÄXANDE BORÅS
I Borås bor du i en vackert belägen stad som följer Viskans dalgång med ett vakande öga från Rya Åsars beskyddande kullar.Det är modern stad och del av en dynamisk tillväxtregion i en miljö där proportionerna är lagom och takten lite lugnare.
VÄVD AV HISTORIEN, FORMAD AV FRAMTIDEN
Borås är sen sekler tillbaka en starkt präglad textil- och handelsstad. Staden är vävd av historien och formad för framtiden. Borås Konstmuseum, Textilmuseet och Borås Museum erbjuder ett rikt utbud av konstnärliga höjdpunkter av olika slag och former om du vill uppleva historiens vingslag. Staden utvecklar sin framtid på arvet från textil och handel. Den är en del av en tillväxtregion och utmärker sig nationellt inom affärsområden som textil, e-handel och logistik. Här finns också Viared utmed riksväg 40, en företagspark under stark utveckling. En strategisk skandinavisk placering med ungefär samma avstånd till Stockholm, Köpenhamn och Oslo och närhet till Göteborg med Landvetter Airport. Floden Viskan var förr den livsnerv som industrin byggde sin framtid på. Nu ger Viskans flöde inspiration till rekreation och upplevelser.
PULS OCH PAUS
Det är kontrasterna som genomsyrar Borås. Å ena sidan puls, shopping och nöjesliv, å andra sidan mysiga parker, kullerstenar och svalkande bad. Här finns ett variationsrikt kulturutbud och upplevelser om du är aktiv. Djurparken är en av landets största. Borås är rikt på sjöar och vattendrag. Det finns flera badplatser med stor variation och kalla vintrar lockar stadsparksbadet. Sportintresset är stort i Borås kommun med lokala elitlag som IF Elfsborg, Norrby IF och Borås Basket.
Sträckan Göteborg-Borås är det tredje största pendlingsstråket i landet där pendling sker i båda riktningarna. Infrastrukturen inom regionen är en prioriterad fråga med Götalandsbanan i spetsen. Staden är navet i Sjuhärad med väl utbyggd kollektivtrafik inom Borås och till de fyra serviceorterna Dalsjöfors, Fristad, Sandared och Viskafors.
Köpa, sälja eller värdera bostad i Borås? Kontakta Bjurfors mäklare på Borås! Passa också på att anmäla dig till vår kostnadsfria söktjänst Boagenten som hjälper dig att hitta ditt drömboende.
Kontakta mäklaren om du behöver hjälp att ta fram en boendekalkyl.
När du köper din bostad genom Bjurfors kan du ansöka om bolån till en förmånlig ränta hos vår samarbetspartner SEB.
Ansvarig mäklare