-
Köpa
Köpa -
Sälja
Sälja - Hitta bostad
- Skapa bevakning
- Hitta mäklare
Trivsam gaveltrea med lugnt läge!
Sandhult, Borås
*I månadsavgiften ingår vatten, tv, p-plats och bostadsrättstillägg.
**Info enligt förvaltaren
På Förhand ligger bostäder som av olika anledningar inte är ute till försäljning just nu men som kan komma att säljas om förutsättningarna är rätt.
Nu finns chansen att förvärva en trevlig bostadsrätt i familjevänliga och lugna Sandhult. Huset är belägen på en lugn återvändsgata med natursköna omgivningar och mycket nära till en fin lekplats.
Bostaden är belägen 1 trappa upp i uppskattat gavelläge med mycket ljusinsläpp från tre håll. På entrésidan finns plats för mindre bord med stolar där du kan avnjuta frukosten i morgonsolen. Bostadens rymliga balkong vetter mot husets grönskande baksida. Balkongen ligger skyddad under tak. Här kan du sitta ostört och njuta av lugnet, fri utsikt utan insyn och kvällssolen. Lägenheten mäter 77 kvm och erbjuder kök och vardagsrum i öppen, social planlösning. Köket har full maskinell utrustning och god plats för matbord för 4-6 sittande gäster. Fräscht badrum som renoverades 2019 av föreningen i samband med stambytet. I badrummet finns även tvättmaskin och torktumlare från 2024. Vid större tvättlass kan man använda den gemensamma tvättstugan som ligger i en sidobyggnad precis intill. De båda sovrummen har bra storlek med plats för dubbelsäng. Till föreningens hus finns en plan gräsmatta och flera uteplatser med bord, stolar och grillmöjligheter. Till varje bostad hör ett förråd samt en p-plats.
Bra läge i området med närhet till naturområden, förskola och skola f-6. Sandhult har en lantlig känsla med cirka 20 minuters bilfärd till Borås centrum. Från den närliggande busshållplatsen (800 meter) tar du dig till Borås och Alingsås. Även goda pendlingsmöjligheter till Sandared där högstadieskola finns, stor matbutik , simhall, tennishall, tågstation m.m.
Välkommen att kontakta ansvarig mäklare för visningsförfrågan!
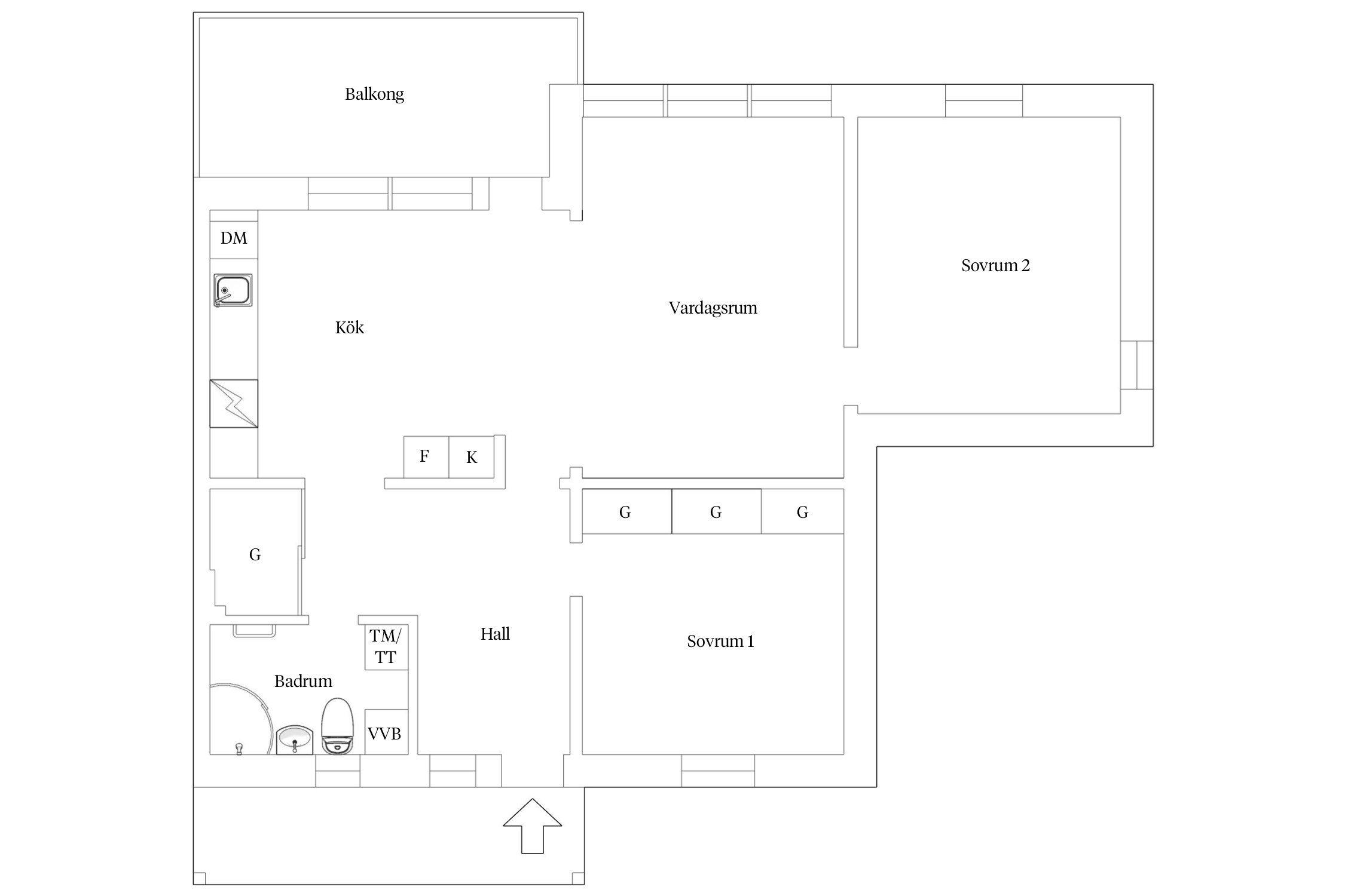
Hall:
Välkomnande, ljus hall med god plats för avhängning av ytterkläder och skor. På golvet ligger ett praktiskt klinkergolv och väggarna är tapetserade. Vidare in i hallen pryds golvet med ljust laminat som löper tröskelfritt vidare in i vardagsrummet. Väggarna är tapetserade.
Vardagsrum:
Fint ljusinsläpp från flertal fönsterpartier med utsikt mot husets grönskande baksida. God plats för soffgrupp med tillhörande tv-möbel. Vardagsrummet ligger i öppen planlösning mot köket.
Kök:
Ljust kök med vita släta luckor och bänkskiva i ek. Mellan överskåp och bänkskiva sitter ett mönstrat stänkskydd. Köket har full maskinell utrustning så som spishäll, ugn, fläkt, diskmaskin samt kyl och frys. I taket sitter spotlights som ger ett behagligt ljus. Vid köket ryms en matplats för 4-6 sittande gäster.
Balkong:
Den rymliga balkongen nås från köket/vardagsrummet och vetter mot husets grönskande baksida med kvällssol. Balkongen ligger skyddad under tak och möjlighet finns att koppla in infravärme vilket innebär att man kan sitta ute på balkongen även när vädret inte är helt på topp.
Badrum:
Fräscht badrum som renoverades 2019 av föreningen i samband med stambytet. Golv och väggar pryds med våtrumsmatta i beige nyans. Inredningen består wc, handfat, dusch, handdukstork samt tvättmaskin och torktumlare från 2024. Fönstret bidrar både med naturligt ljus och möjlighet till vädring.
Sovrum 1:
Bostadens första sovrum nås direkt via hallen. Här ryms dubbelsäng och det finns bra med förvaring längs ena väggen. På golvet ligger ett ljus laminatgolv och väggarna är tapetserade.
Sovrum 2:
Sovrum 2 finns längre in i bostaden även här plats för dubbelsäng med tillhörande sängbord. Finns även plats för ytterligare förvaringsmöbel vid behov. Fint ljusinsläpp från två håll. På golvet ligger en ljus plastmatta och väggarna är tapetserade.



*1 trappa upp.
**Info enligt förvaltaren
I månadsavgiften ingår vatten, tv, p-plats och bostadsrättstillägg.
Till bostaden finns ett förråd i byggnaden mitt emot.
Till varje lägenhet ingår en parkeringsplats i månadsavgiften. Det finns fler lediga platser som går att hyra för 60 kr/mån. Föreningen har 2 st gratis gästparkeringar.
Tv via boxer.
Bredband bekostas individuellt.
Bostadsrättens indirekta nettoskuldsättning baseras på föreningens skulder/lån minus föreningens räntebärande tillgångar och likvida medel. Beräkningen är gjord och baseras enbart på den senaste tillgängliga årsredovisningen. För mer information kontakta ansvarig fastighetsmäklare.
El-kostnaden på 960 kr/mån avser både uppvärmning och hushållselen.
Bostadsrättsföreningens hus byggdes året 1982 på fastigheten Sandhult 6:28 som föreningen innehar med äganderätt. Fastighetens adress är Lejongapsvägen 15-19 och det är totalt 12 bostadsrätter.
Besök gärna föreningens hemsida för mer information: https://brfsandhult.se/
Föreningen har nyligen bytt ut samtliga element vilket kommer minska på uppvärmningskostnaden då dom nya elementen är energisnåla och värmer mer effektivt.
Under 2023 har föreningen installerat ny ytterbelysning, gjort en ny plats för sopor, OVK (ventilationskontroll samt åtgärder), elementbyte samt service, installation av snörasskydd.
Sopstationen är ny för i år och den har en ordnad sortering för förpackningsavfall som alla brf måste införa till 2027. Vilket innebär att vi 2027 inte behöver betala för soporna, endast hämtningen.
Byte av fönster är planerat till 2026.
Till varje lägenhet ingår en parkeringsplats i månadsavgiften. Det finns fler lediga platser som går att hyra för 60 kr/mån.
Föreningen har 2 st gratis gästparkeringar.
TV via Boxer. Bredband bekostas individuellt.
Föreningen har en fin trädgårdstomt samt ett flertal stensatta uteplatser som man som boende får nyttja.
Det finns en gemensam tvättstuga och ett förråd för gemensamma trädgårdsredskap.
Föreningen tillåter våra boende att sätta in luftvärmepump om man vill. Auktoriserad VVS-installatör och behörig elektriker måste utföra arbetet.
Man står själv för kostnader och ägande.
MODERNA OCH VÄXANDE BORÅS
I Borås bor du i en vackert belägen stad som följer Viskans dalgång med ett vakande öga från Rya Åsars beskyddande kullar.Det är modern stad och del av en dynamisk tillväxtregion i en miljö där proportionerna är lagom och takten lite lugnare.
VÄVD AV HISTORIEN, FORMAD AV FRAMTIDEN
Borås är sen sekler tillbaka en starkt präglad textil- och handelsstad. Staden är vävd av historien och formad för framtiden. Borås Konstmuseum, Textilmuseet och Borås Museum erbjuder ett rikt utbud av konstnärliga höjdpunkter av olika slag och former om du vill uppleva historiens vingslag. Staden utvecklar sin framtid på arvet från textil och handel. Den är en del av en tillväxtregion och utmärker sig nationellt inom affärsområden som textil, e-handel och logistik. Här finns också Viared utmed riksväg 40, en företagspark under stark utveckling. En strategisk skandinavisk placering med ungefär samma avstånd till Stockholm, Köpenhamn och Oslo och närhet till Göteborg med Landvetter Airport. Floden Viskan var förr den livsnerv som industrin byggde sin framtid på. Nu ger Viskans flöde inspiration till rekreation och upplevelser.
PULS OCH PAUS
Det är kontrasterna som genomsyrar Borås. Å ena sidan puls, shopping och nöjesliv, å andra sidan mysiga parker, kullerstenar och svalkande bad. Här finns ett variationsrikt kulturutbud och upplevelser om du är aktiv. Djurparken är en av landets största. Borås är rikt på sjöar och vattendrag. Det finns flera badplatser med stor variation och kalla vintrar lockar stadsparksbadet. Sportintresset är stort i Borås kommun med lokala elitlag som IF Elfsborg, Norrby IF och Borås Basket.
Sträckan Göteborg-Borås är det tredje största pendlingsstråket i landet där pendling sker i båda riktningarna. Infrastrukturen inom regionen är en prioriterad fråga med Götalandsbanan i spetsen. Staden är navet i Sjuhärad med väl utbyggd kollektivtrafik inom Borås och till de fyra serviceorterna Dalsjöfors, Fristad, Sandared och Viskafors.
Köpa, sälja eller värdera bostad i Borås? Kontakta Bjurfors mäklare i Borås! Passa också på att anmäla dig till vår kostnadsfria söktjänst Boagenten som hjälper dig att hitta ditt drömboende.
Kontakta mäklaren om du behöver hjälp att ta fram en boendekalkyl.
När du köper din bostad genom Bjurfors kan du ansöka om bolån till en förmånlig ränta hos vår samarbetspartner SEB.
Ansvarig mäklare