-
Köpa
Köpa -
Sälja
Sälja - Hitta bostad
- Skapa bevakning
- Hitta mäklare
Tomt med vackert läge och beviljat bygglov
Sätila, Mark
Välkomna till en magisk plats att förverkliga era husdrömmar på. Här bor ni med vackra vyer över Storåns dalgång och närhet till service.
Varmt välkomna till fastigheten Sätila-Hede 3:31 och en vacker tomt som står redo för byggnation. Tomten erbjuder ett snudd på unikt läge med sin höga placering och utsikt över Storåns dalgång som låter blicken vandra långt. Här har ni möjlighet att förverkliga er husdröm och bo med ett läge som erbjuder det bästa av två världar - närhet till kommunikationer och service men som samtidigt är privat och ger en lantlig idyllisk känsla. Tomten har redan ett beviljat bygglov som är redo att tas över men tomten är inte bunden till någon leverantör eller husmodell. Här finns utrymme att låta idéerna flöda fritt och undersöka möjligheterna att bygga just er husdröm! Husmodellerna i annonsen är endast förslag på husmodeller. Offerter för dessa finns att tillgå på förfrågan.
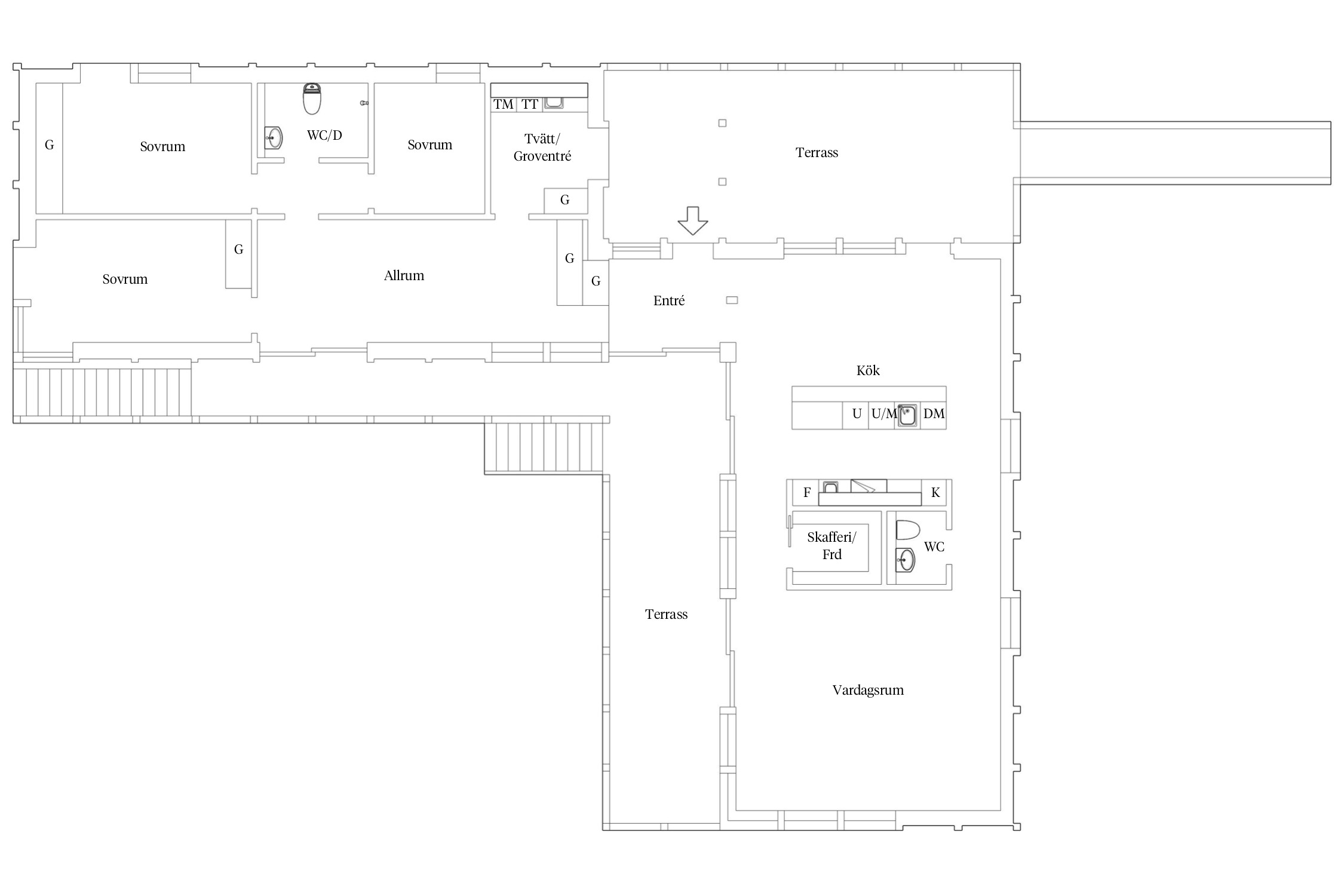
Det beviljade bygglovet som finns att ta över gäller husmodellen Villa F (se bilder) som är ritat av Malmström & Edström i Göteborg. En spännande design som är framtagen för att följa tomtens naturliga sluttning och omgivning för att skapa ett hem med moderna och raka snitt i ett plan om 190 kvm. Priset i annonsen gäller endast tomten och övertagandet av ritningar/bygglov.
Varmt välkomna att boka en visningstid eller ett möte - Sätila-Hede 3:31 kan låta er husdröm bli verklighet!



Planritning Villa F
Sätila-hede 3:31
Last: Avtalsservitut Kraftledning, D201700208230:1.1
Last: Avtalsservitut Vattenledning mm, 15-IM4-81/6842.1
Last: Avtalsservitut Vattenledning, D202200234503:1.1
Förmån: Officialservitut Väg, 1463-2021/114.3
Avtalsservitut D-2017-00208230:1
Avtalsservitut D-2022-00234503:1
Avtalsservitut Vattenledning mm
Vill du köpa, sälja eller värdera bostad i Västra Götaland? Kontakta våra mäklare i Göteborg! Passa också på att anmäla dig till vår kostnadsfria söktjänst Boagenten som hjälper dig att hitta ditt drömboende.
Kontakta mäklaren om du behöver hjälp att ta fram en boendekalkyl.
När du köper din bostad genom Bjurfors kan du ansöka om bolån till en förmånlig ränta hos våra banksamarbetspartners Söderberg & Partners och SEB.
Ansvarig mäklare