-
Köpa
Köpa -
Sälja
Sälja - Hitta bostad
- Skapa bevakning
- Hitta mäklare
Smart lägenhet i 1,5 plan med bastu, braskamin och toppläge nära Söderåsliften i Lindvallen
Lindvallen, Malung-Sälen
*I avgiften ingår försäkring, parkering, snöröjning, yttre underhåll, fastighetsskatt (ev samfällighets & vägavgifter) ekonomisk förvaltning och försäkring för föreningen.
**Bostadsrättsföreningen
Bostaden är ej uppmätt inför försäljning.
På Förhand ligger bostäder som av olika anledningar inte är ute till försäljning just nu men som kan komma att säljas om förutsättningarna är rätt.
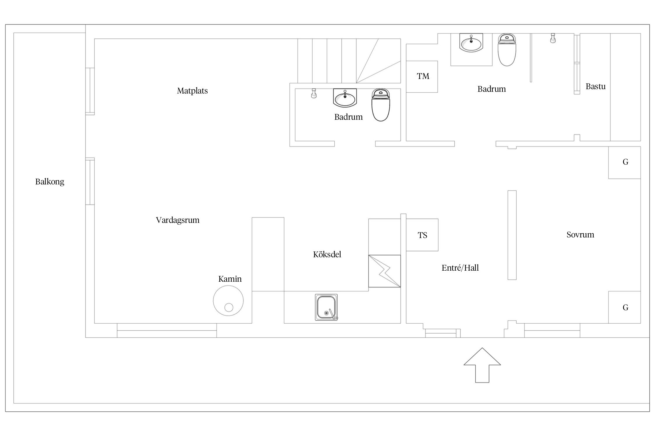
Yteffektivt och ovanligt komplett boende i Fjällbäcken med tre sovrum, två allrum och närhet till skidåkning, service och året-runt-aktiviteter
På Fjällbäcken 8G väntar en lägenhet som verkligen visar hur mycket liv och komfort som kan rymmas i ett smart format. Här erbjuds ett genomtänkt boende där Compact Living möter äkta fjällkänsla vilket är perfekt för er som vill maximera upplevelsen snarare än ytan. Här samsas två allrum för både umgänge och vila, tre sovrum med ett master bedroom på entréplan, två badrum med tvättmaskin, dusch samt både bastu och braskamin som sätter tonen efter långa dagar ute.
Det här är en lägenhet som är ovanligt komplett för sin storlek. Morgonen börjar gärna med kaffe i lugn takt innan ni klickar i skidorna, och kvällen avslutas framför elden medan bastun värms upp och dagens äventyr summeras. Planlösningen gör det enkelt att vara många utan att det känns trångt, det finns plats för både gemenskap och avskildhet. Till lägenheten hör en stor balkong i syd/sydvästläge.
Läget är svårslaget, mitt i Fjällbäcken i Lindvallen, på övre plan och med 250 meter till pisterna på Söderåsen samt den nya uppvärmda liften som knyter samman området. Här bor ni med restauranger, skiduthyrning och service inom bekvämt räckhåll, samtidigt som Söderåstorget fortsätter att utvecklas med nya satsningar som bidrar till ett allt mer levande fjällcentrum. Till Ski Lodge och Experium är det 800 meter.
Skidåkningen är lika enkel som vardagen här. Liftarna nås snabbt och smidigt, och precis bakom området passerar skoterleden vilket gör Fjällbäcken till ett av få områden som även tilltalar er som vill kombinera skidåkning med skoterliv. När snön smälter tar sommaren vid med föreningens pool och padelbanor, och boendet får en helt ny karaktär med aktiviteter året runt.
Detta är en fjällbas för er som vill ha det lilla extra i vardagen, smart planerat, lättskött och med närhet till allt som gör fjälllivet enkelt, socialt och njutbart.
Bostaden är uthyrd via Paulin Properties säsongen 2025/2026 men uppsagd efter säsongen så att en ny ägare kan göra som denne önskar.
Ägarblockat är/var nyår, v6, v8, v9 + påsk 2026.
2024/2025 var intäkterna 154 000kr varav 120 000kr till ägarna. Då var ägarna själva uppe v48, nyåret, v8 sportlovs och v15
https://paulinproperties.se/
Varmt välkommen att kontakta Bjurfors Sälen för mer information!
Hall
Klinkers på golv, panel på väggar och målat tak med spotlights. Städskåp, torkskåp från Elvita, skohylla med hjälmförvaring och lådfack samt pjäxtork för fem par pjäxor.
Storstuga
Parkettgolv, träpanel på väggar och målat tak med spotlights. Öppen planlösning mellan köksdel, umgängesytor och matplats. Matbord med 6 + 2 sittplatser och sittplatser runt braskaminen. Utgång till uteplats i sydvästläge med plats för stolar och mindre cafébord. Kamin från Contura. Utgång till balkong i syd/sydvästläge.
Kök
Släta, grå luckor, laminatbänkskiva och kakel ovan bänk. Kyl, frys, spis och ugn från Cylinda, utdragbar köksfläkt från Electrolux, mikrovågsugn från Samsung och integrerad diskmaskin från Cylinda. Extra förvaring och bänkyta mot allrummet.
Sovrum 1 (entréplan)
Parkettgolv, panel på väggar och målat tak. Två garderober och plats för dubbelsäng.
Badrum 1 (entréplan)
Kakel och klinkers, wc, handfat med kommod och förvaring, dusch, bastu med Tylö-aggregat. Frånluftsvärmepump från Nibe, tvättmaskin från Cylinda, bänk ovan maskin, förvaringsskåp och handdukstork.
Badrum 2 (entréplan)
Kakel och klinkers, wc, handfat och dusch.
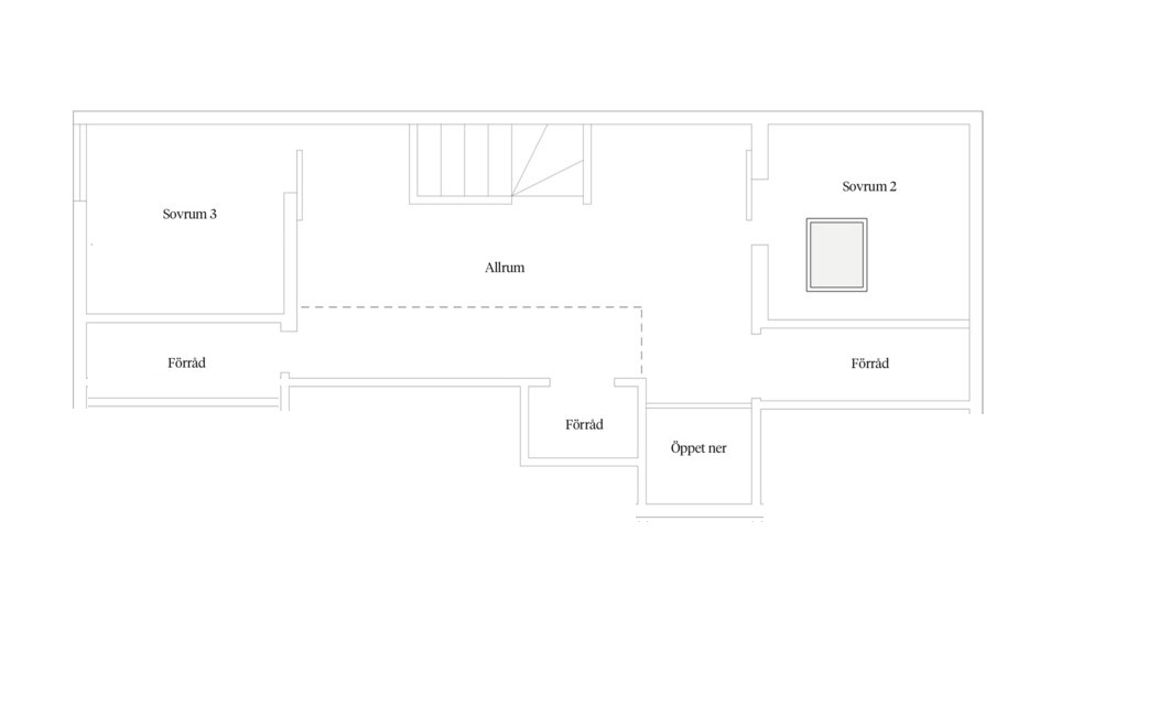
Övre plan – allrum
Parkettgolv, träpanel på väggar och målat tak. Snedtak med ståhöjd i större delen. Soffa, två fåtöljer och förvaringsdelar. Tre stängda förvaringsrum i kattvindarna.
Sovrum 2 (övre plan)
Parkettgolv, träpanel på väggar och målat tak. Familjesäng 2+1 och takfönster. God takhöjd.
Sovrum 3 (övre plan)
Parkettgolv, träpanel på väggar och målat tak. Snedtak med god höjd, fönster och familjesäng 2+1.
På övervåningen finns tre stycken inbyggda och praktiska förråd i kattvindarna, perfekt för att förvara tillhörigheter i.



*Bostadsrättsföreningen
Bostaden är ej uppmätt inför försäljning.
I avgiften ingår försäkring, parkering, snöröjning, yttre underhåll, fastighetsskatt (ev samfällighets & vägavgifter) ekonomisk förvaltning och försäkring för föreningen.
Två låsbara skidförråd vid entrén.
Balkong med syd/sydvästläge som går längs med huset.
Numrerad parkering intill bostaden. Elbilsladdare finns. En laddare per lägenhet (av de som beställde i föreningen). Går på respektives lägenhets hushållsel men hanteras av Parkster vid exempelvis uthyrning för att få betaltjänst. Säljaren har bekostat installation och laddbox.
Fiber
Bostadsrättens indirekta nettoskuldsättning baseras på föreningens skulder/lån minus föreningens räntebärande tillgångar och likvida medel. Beräkningen är gjord och baseras enbart på den senaste tillgängliga årsredovisningen. För mer information kontakta ansvarig fastighetsmäklare.
Övrigt avser bredband via Telia
Brf Fjällbäcken 1 är en äkta förening belägen intill Söderåstorget på Lindvallen med färdigställande 2023. Föreningen innehåller 56st lägenheter fördelade på nio byggnader i två plan + loft.
Ordförande i föreningen: Anders Gustavsson
Belåning per kvm: 9 500kr/kvm
Föreningens lån är idag fördelade på 4 lika stora delar, föreningen amorterar 1 % och räntan ligger på samtliga lån idag på tre månaders ränta till 3,17 (Q3 2025). Föreningen har som avsikt att binda ett lån på tre år och ett på två år inom kort till i princip samma ränta som dagens tre månaders ränta.
Ingår i avgiften.
1-2 parkeringsplatser per lägenhet
Fiber
Som boende i Fjällbäcken har man tillgång till föreningens exklusiva pool och paddelbana – en lyx som förlänger fjällsäsongen även in på sommaren. Med sitt oslagbara läge intill Söderåstorget har du allt inom räckhåll – från skidåkning och skoterleder till restauranger, butiker, äventyrsbad, saunavärld och allt som Experiumtorget erbjuder.
Byggda med platta på mark där varje lägenhet har parkeringsplats, fiber och en Frånluftsvärmepump till den vattenburna uppvärmningen.
Vill du köpa, sälja eller värdera bostad i Dalarna? Kontakta våra mäklare! Passa också på att anmäla dig till vår kostnadsfria söktjänst Boagenten som hjälper dig att hitta ditt drömboende.
Här hittar du samtliga kommuner i Dalarna där Bjurfors har bostäder till salu just nu!
Kontakta mäklaren om du behöver hjälp att ta fram en boendekalkyl.
När du köper din bostad genom Bjurfors kan du ansöka om bolån till en förmånlig ränta hos vår samarbetspartner SEB.
Extra kontaktperson