-
Köpa
Köpa -
Sälja
Sälja - Hitta bostad
- Skapa bevakning
- Hitta mäklare
Familjevänlig fjällstuga i bostadsrättsform med liften precis utanför - Stöten
Stöten, Malung-Sälen
*I månadsavgiften ingår VA, sophämtning, kabel-TV, Wifi, snöröjning, väghållning, skötsel av utvändiga ytor, parkeringsplats samt försäkring och ekonomisk förvaltning för föreningen.
På Förhand ligger bostäder som av olika anledningar inte är ute till försäljning just nu men som kan komma att säljas om förutsättningarna är rätt.
Smidigt och praktiskt boende med ski in–ski out, kamin och praktisk planlösning
Här på Ranchen 12 i Stöten erbjuds en egen fristående fjällstuga om 60 kvadratmeter i bostadsrättsform, med liften precis utanför knuten och längdspåren inom bekvämt räckhåll. Ett lättillgängligt och okomplicerat fjällboende för er som vill kunna sätta på skidorna direkt vid dörren och njuta av vistelsen utan att vara beroende av bil.
Stugan har en praktisk och genomtänkt planlösning som passar väl för både familj och vänner. Flera sovrum och två badrum gör vistelsen smidig även när ni är många och allrummet blir den naturliga samlingsplatsen efter dagens äventyr. Här finns plats för både matbord och soffhörna, och kaminen sprider skön värme och en ombonad stämning när mörkret faller över fjället.
Standarden är funktionell och anpassad för ett aktivt fjälliv, med lättskötta material som tål både pjäxor och vinterkläder. Precis vid entrén finns ett skidförråd med gott om plats för utrustning, hjälmar och pulkor, praktiskt och uppskattat under hela säsongen. Ett trivsamt och familjevänligt fjällhem för er som värdesätter närhet till skidåkningen och gemenskap med fjället som självklar del av vardagen!
Bostaden ligger på uthyrning via Stöten säsongen 2025/2026. Uppsagd nästa vinter så att en ny ägare kan göra som denna önskar efter denna säsong.
2025/2026 har per 7/1-2026 bokningar för totalt 129 00 kr varav 81 000 kr utbetalas till ägaren och då är det tre måndag-torsdag som ej är bokade ännu.
Inga ägarveckor 25/26 är bokade. En ny ägare tar över eventuella lediga veckor utifrån tillträdesdagen.
Bostaden var inte uthyrd 2024/2025.
Denna bostadstyp på området får in cirka 80 000 – 100 000kr per vinter till en ägare efter avdraget arvode från uthyrare. Då med cirka 1-2 högsäsongsveckor som ägarbokade.
Varmt välkommen att kontakta Bjurfors Sälen för mer information!
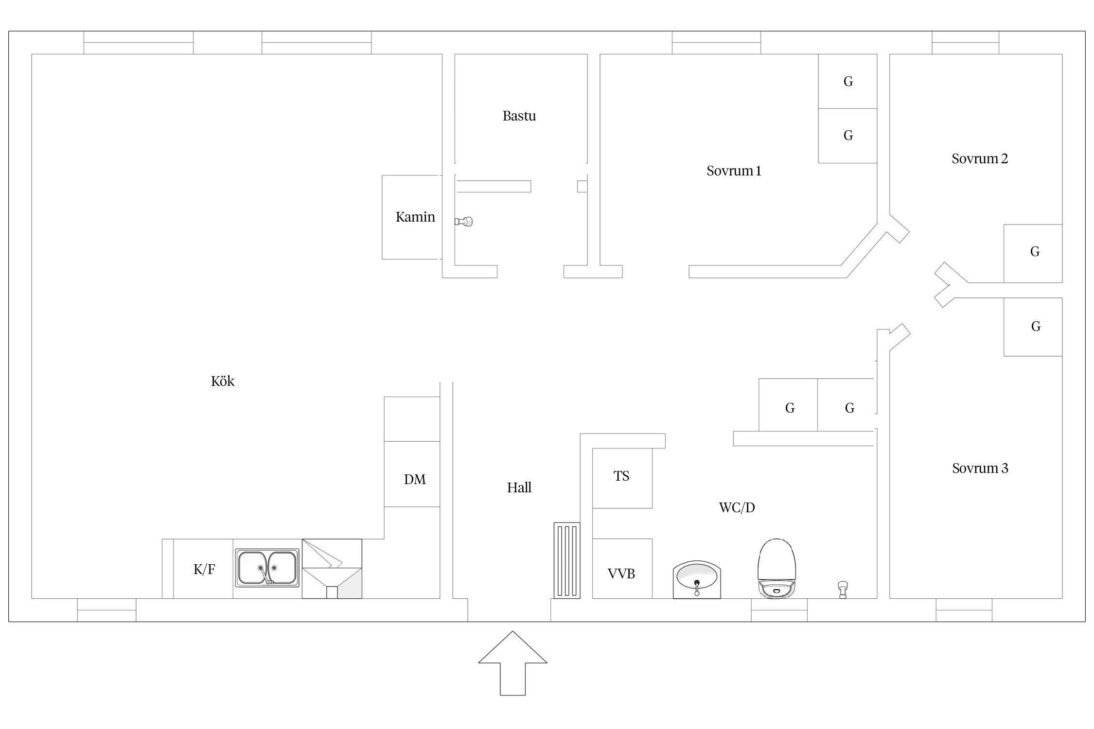
Hall
Hall med plats för avhängning, förvaring och hatthylla. Väggarna har målad väv, taket är klätt i målad panel och golvet har en plastmatta.
Storstuga
Trevlig storstuga med laminatgolv och en braskamin (Jötul) som ger extra trivsel. Här finns plats för både hörnsoffa och ett matbord för 6–8 personer. Väggarna har målad väv + bröstpanel, och i taket återfinns samma målade träpanel som i hallen.
Köksdelen är utrustad med kombinerad kyl/frys från Bosch, spis från Siemens, fläkt från Cylinda, mindre diskmaskin från Bosch, mikro samt bänkskiva i laminat.
Master Bedroom
Sovrum med plats för dubbelsäng och två garderober. Rummet har målad väv på väggarna, målad träpanel i tak och laminatgolv. Garderober.
Sovrum 2
Sovrum med familjesäng (bredare nederslaf) och en garderob. Målad väv på väggarna, målad panel i tak och laminatgolv.
Sovrum 3
Familjesäng (bredare nederslaf) och en garderob. Målad väv på väggarna, målad panel i tak och laminatgolv.
Badrum 1
Plastmatta på golv, kaklade väggar, dusch, WC och handfat. Här finns även värmepanna Nibe Compact samt torkskåp från Nimo.
Dusch/bastu
Det andra badrummet har plastmatta på golv, kaklade väggar, dusch samt en bastu med plats för fyra personer.
Förråd
Vid entrén finns ett rymligt skidförråd, perfekt för skidor, pjäxor, pulkor etc.



*Fristående, 1-planshus
I månadsavgiften ingår VA, sophämtning, kabel-TV, Wifi, snöröjning, väghållning, skötsel av utvändiga ytor, parkeringsplats samt försäkring och ekonomisk förvaltning för föreningen.
2026
Nytt tak.
Taket kommer att bytas under våren 2026 på samtliga hus i föreningen.
Bostadsrättsinnehavarna har kunnat välja om de vill ta lån för att finansiera detta eller finansiera det själva och därmed slippa förhöjd avgift pga. ränta/amortering framåt. Säljaren av Ranchen 12 betalar in 154 762kr till föreningens angivna konto för att finansiera takbytet och står därmed för det. Om kostnaden skulle bli lägre för projektet har säljaren rätt att få tillbaka detta av föreningen. Se mer information under ''dokument''
2014
Altan byggdes
Altan
Parkering utanför huset
Kabel-TV
Föreningen är obelånad
Uppvärmning = Uppvärmning och hushållsel ink nätavgift.
Bostaden har varit på uthyrning utöver ägarens eget användande.
Observera att driftkostnaderna kan ändras utefter användande, avtal och elpriser.
Brf Ranchen 2 är en oäkta förening, dvs inte en privatbostadsförening . Bostadsrättsföreningen består av 42 bostadsrätter, fördelat på 26 hus, varav 16 parhus och 10 enfamiljshus. Personalstiftelsen PostNord Plus äger
23 stycken bostadsrätter i föreningen.
På grund av att föreningen är oäkta sker uttagsbeskattning av mellanskillnaden till av Skatteverket fastställd hyresnivå minskat med till föreningen inbetalda årsavgifter.
Kontaktuppgifter till föreningen:
Norlandia förvaltning info@norlandia.se
Ordförande Cathrine Leijonheim
2026
Taket kommer att bytas under våren 2026 på samtliga hus i föreningen.
2024-2025
Fönster och fasader byttes.
Bostaden ligger för uthyrning hos Stöten AB under kommande säsong
Vill du köpa, sälja eller värdera bostad i Dalarna? Kontakta våra mäklare! Passa också på att anmäla dig till vår kostnadsfria söktjänst Boagenten som hjälper dig att hitta ditt drömboende.
Här hittar du samtliga kommuner i Dalarna där Bjurfors har bostäder till salu just nu!
Kontakta mäklaren om du behöver hjälp att ta fram en boendekalkyl.
När du köper din bostad genom Bjurfors kan du ansöka om bolån till en förmånlig ränta hos vår samarbetspartner SEB.