-
Köpa
Köpa -
Sälja
Sälja - Hitta bostad
- Skapa bevakning
- Hitta mäklare
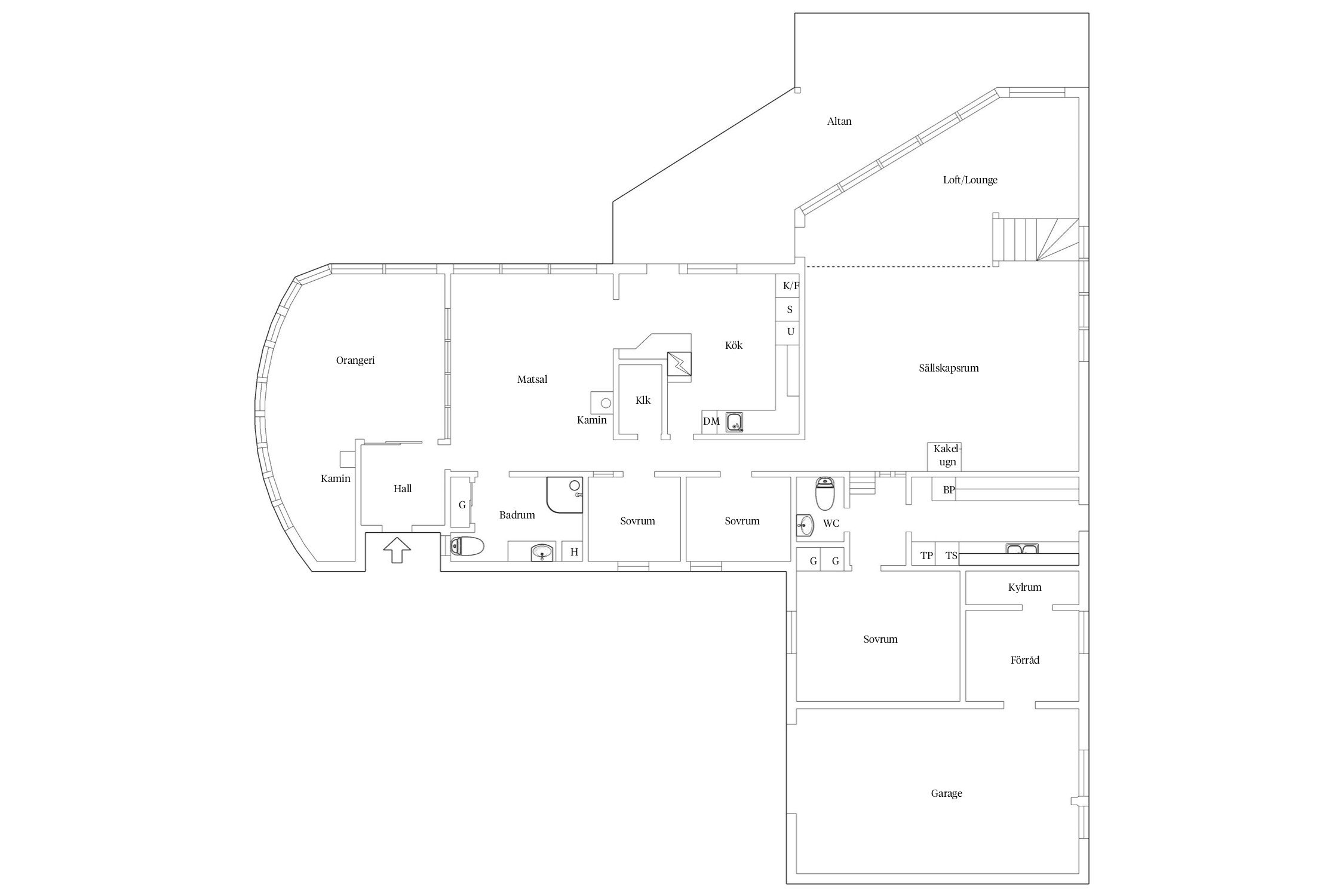
Oslagbart kustläge med panoramavy över hav och klippor
Åsa, Kungsbacka
*Areauppgifter enligt taxeringsinformationen
Bokad visning. Du kan även ringa Bjurfors Bokningscenter 031-761 79 50. Välkommen!
Bokad visning. Du kan även ringa Bjurfors Bokningscenter 031-761 79 50. Välkommen!
Unik villa med oslagbart läge och hänförande havsutsikt. Här bor ni vackert, privat och rofyllt i en ljuvlig villa fylld av karaktär, rymd och ljus.
Välkomna till ett av kustens mest sällsynta och åtråvärda lägen! Här vilar det vackra huset med klipporna som sin närmaste följeslagare och havet som ett oändligt panorama utanför. En plats där naturens skiftningar blir en del av vardagen. Där morgonljuset dansar över vattenytan och kvällshimlen bjuder på färgsprakande skådespel, som bäst upplevs från sällskapsrummet, altanen eller den rofyllda loungedelen en trappa upp.
SÄLLSKAPSRUM
Den ljuvliga villan om ca 170 kvm boarea + ca 33 kvm biarea rymmer ett storslaget sällskapsrum med imponerande takhöjd och majestätiska fönsterpartier som skapar en känsla av exklusiv rymd. Här står en vacker, fungerande kakelugn – ett elegant smycke som både värmer och förhöjer atmosfären.
LOUNGE/ATELJÉ
En trappa leder upp till etageplanet som fungerar som en avkopplande loungedel/ateljé. Härifrån är havsutsikten fullständigt hänförande; ett levande konstverk som förändras med årstiderna och bjuder på ständigt nya vyer.
MASTER BEDROOM
Några få trappsteg upp från sällskapsrummet når ni master bedroom. Avskilt men ändå i direkt anslutning till hemmets hjärta.
WC
Intill finns ett praktiskt placerat wc med handfat.
KÖK
Det stilrena köket renoverades 2022 och är en självklar samlingsplats för såväl vardag som fest. Här trivs hemmakocken med generösa arbetsytor i Dekton, genomtänkt förvaring från Marbodal och en maskinpark bestående av kyl/frys, ugn, spishäll, diskmaskin och vinkyl.
MATSAL
Bredvid ligger den rymliga matsalen där en vacker timmervägg adderar värme och karaktär. Under kyliga höst- och vinterdagar sprakar brasan i den öppna spisen vilket höjer mysfaktorn ytterligare. Här finns plats för stora middagssällskap och även här strålar havsutsikten in som en del av interiören.
ALTAN
Från köket och sällskapsrummet når ni den generösa altanen där ni njuter av total avskildhet. Klipporna bildar en privat kuliss och havet sträcker ut sig framför er. En magisk plats för morgonkaffe, långa luncher och ljumma sommarkvällar. Här står även ett spabad som bjuder in till varma bad året om.
TVÅ SOVRUM
Utöver master bedroom finns två ytterligare sovrum med flexibla ytor som fungerar lika bra som barn-, gäst- eller arbetsrum.
UTERUM
Ett av husets verkliga smycken är det ljuvliga uterummet där ljuset flödar in genom stora fönsterpartier och skapar ett rum badande i mjukt dagsljus. Givetvis bjuds ni även här på en strålande havsutsikt. Här finner ni också en tredje braskamin som sprider behaglig värme. En oas för avkoppling från tidig vår till sen höst.
BADRUM
Det stora och helkaklade badrummet erbjuder kommod med handfat, högskåp, dusch och wc samt förvaring bakom skjutdörrar.
TVÄTTSTUGA/GROVENTRÉ
Tvättstugan med groventré är praktiskt utformad och utrustad med bergvärmepump, tvättmaskin, torktumlare, tvättho och gott om förvaring. Ytterligare förvaring finns i en separat klädkammare.
TOMT
Den generösa tomten om drygt 2 400 kvm bjuder på både lugna platser för avkoppling och ytor för lek och aktivitet. Flera fina sittplatser gör det möjligt att följa solen från morgon till solnedgång.
GARAGE
Därtill finns ett stort garage som kompletterar helheten.
Varmt välkomna på visning till detta kustnära paradis!



By 1:21
*Areauppgifter enligt taxeringsinformationen
Garage finns i huset
1986/1987
- 1986 Byggs fastigheten till i vinkel.
- 2002 Byggs det inglasade uterummet på befintlig uteplats.
- 2006 Installation av bergvärme.
- ca 2011 Renoveras dusch/wc. Arbetet utfördes av fastighetsägare.
- 2016 Läggs taket om med ny papp, läkt och betongpannor av fackman.
- 2019 Monteras solceller på taket.
Nedanstående renoveringar är gjorda under säljarens innehavstid.
- 2022 Renovering kök.
- 2022 Nya parkettgolv i entréhall och uterummet.
- 2022 Installerat spabad.
- 2022 Delrenoverat badrum med ny inredning.
- 2022 Nya golv i sovrum.
- 2022 Renovering av friggebod.
- 2022 Byte av större delen av strömbrytarna i huset
- 2023 Nytt räcke invändigt i vardagsrummet upp mot loftet.
- 2024 Ny panel invändigt i hall och uterum.
- 2024 Byte av tre fönster i sovrum mot syd-öst.
- 2024-2025 Målning av fasadpanel.
Kommunalt vatten, Kommunalt avlopp.
Förmån: Avtalsservitut Avloppsledning mm, 13-IM2-75/10991.1
Förmån: Avtalsservitut Avloppsledning mm, 13-IM2-75/10992.1
Förmån: Avtalsservitut Brunn mm, 13-IM2-75/11016.1
Förmån: Avtalsservitut Vattenledning mm, 13-IM2-75/11015.1
Förmån: Avtalsservitut Vattenledning, 1384IM-10/19797.1
Förmån: Avtalsservitut Vändplan, 1384IM-10/19796.1
Fiber
I kostnaden för el ingår kostnad för uppvärmning. Observera att driftkostnader är inhämtade från säljaren och att dessa varierar beroende på avtal och förbrukning.
Det finns 2 st pantbrev uttagna om sammanlagt 350 000 kr
I ÅSA ÄR STRANDEN DIN GRANNE
När du bor i Åsa är havet ständigt närvarande och du har nära till en storslagen natur. Samtidigt ligger Kungsbacka med all tänkbar service bara 20 minuter bort. I Åsa är det lätt att trivas!
NATURSKÖNA OMGIVNINGAR
Åsa ligger 17 km söder om Kungsbacka och blev i början av 1900-talet en populär badort tack vare järnvägens tillkomst. Åsa och flera andra orter utmed kusten blev åtkomligt för göteborgarna och fick ett uppsving som turistorter i och med detta. Och det är fortfarande på stranden många av Åsaborna möts under sommarhalvåret. Området består av en blandad bebyggelse och här finner du många fina villor med underbar utsikt över havet. Tack vare den utbyggda infrastrukturen har inflyttning till Åsa ökat och numera räknas området till Storgöteborg.
Väster om Åsa, längst ut på Ölmanäshalvön, hittar du Näsbokrok naturreservat. Området är en utpräglad kusthed med storslagen utsikt över hav, ljungmarker och hällar. Här vittnar sju mäktiga bronsåldersrösen om att halvön spelat en stor roll långt bak i historien. Karaktäristiskt för Näsbokrok är klapperstensfälten. Området är intressant även ur botanisk synvinkel. Om du söker riktigt noga, kan du kanske finna några sällsynta växter som strandmalört eller den fridlysta fjällnejlikan.
FÖR ETT AKTIVT LIVE
I Åsa har du vårdcentral, bibliotek och livsmedelsbutik. Under de senaste åren har kommunen haft en hög utbyggnadstakt av förskoleplatser då behoven har varit växande. Så i Åsa med omnejd har du både kommunala och enskilda förskolor. Här finns två grundskolor F-9 och gymnasium finner du inne i Kungsbacka. i Kungsbacka kommun har olika inriktningar och kommunens målsättning är att de ska vara bland de bästa i landet vad gäller studieresultat, funktionalitet, modernitet och miljö. Är du den sportiga typen kan du engagera dig i områdets idrottsförening Åsa IF som är aktiv inom innebandy, fotboll och pingis.
Köpa, sälja eller värdera bostad i Åsa? Kontakta våra mäklare i Kungsbacka! Passa också på att anmäla dig till vår kostnadsfria söktjänst Boagenten som hjälper dig att hitta ditt drömboende.
Kontakta mäklaren om du behöver hjälp att ta fram en boendekalkyl.
När du köper din bostad genom Bjurfors kan du ansöka om bolån till en förmånlig ränta hos vår samarbetspartner SEB.
Bokad visning. Du kan även ringa Bjurfors Bokningscenter 031-761 79 50. Välkommen!
Bokad visning. Du kan även ringa Bjurfors Bokningscenter 031-761 79 50. Välkommen!
Ansvarig mäklare