-
Köpa
Köpa -
Sälja
Sälja - Hitta bostad
- Skapa bevakning
- Hitta mäklare
Välplanerad enplansvilla med havsnära läge
Onsala - Sönnerbergen, Kungsbacka
*Areauppgifter enligt taxeringsinformationen
På Förhand ligger bostäder som av olika anledningar inte är ute till försäljning just nu men som kan komma att säljas om förutsättningarna är rätt.
Välkomna till en enplansvilla med modern planlösning och härlig utomhusmiljö. Gångavstånd till hav och båthamn skapar en lyx i vardagen.
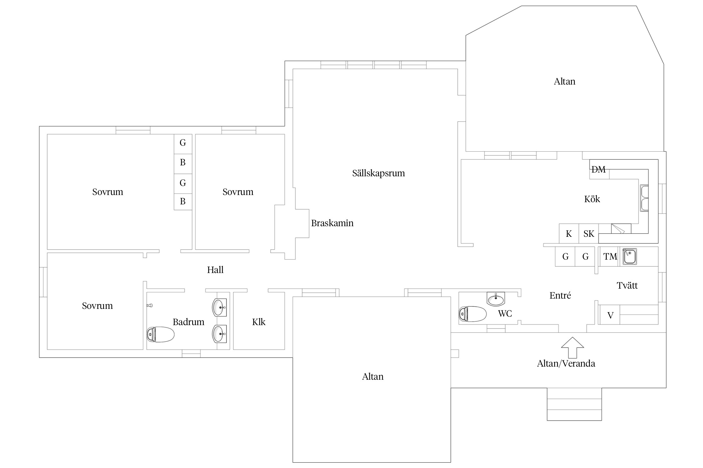
Varmt välkomna till Fjolagapet 35 och en mycket fint planerad villa som sträcker sig över ett plan. Här bor ni i ett lugnt och trivsamt område där naturen och havet präglar livsstilen. Njut av salta bad som nås på bara en kort promenad eller spendera er lediga tid på havet. Tomten är väl tilltagen och ger gott om plats för odling eller lek och bus. På tomten finns två förvaringsbodar och en trevlig gäststuga som kan husera flera övernattande gäster. Den grusade parkeringen skapar parkeringsmöjligheter för flera bilar. Med fastigheten följer en garanterad båtplats i hamnen.
Via den välkomnande entrén nås hallen som erbjuder utrymme för förvaring. Mjukt gula väggar skapar en varm känsla till utrymmet. Direkt till höger om hallen är tvättstugan placerad. Blå våtrumsmatta kombineras med vita väggar. Här finns såväl tvättmaskin som torktumlare och tvättho att tillgå. Till vänster om hallen finns ett wc med ljusa tapetserade väggar, gul våtrumsmatta på golvet, wc-stol och handfat.
Golvet i entrén, som är klätt med linoleummatta i beige ton, följer er vidare in till köket. Flera fönster och altandörr, som leder er ut till baksidans uteplats, skapar ett fint ljus till rummet. Köket rymmer ett större köksbord där ni kan samlas med familj och vänner. Den U-formade vita köksbänken, med över- och underskåp i vitt, skapar en fin arbetsyta och skåpen ger plats för all köksutrustning. Här finns diskmaskin, spis med ugn och integrerad mikro. Beige kakel ger en fin kontrats till det i övrigt ljusa skåpen och bänkskivan.
I nästa rum finner ni det rymliga sällskapsrummet. Här tar ett parkettgolv i varm ton över. Sällskapsrummet har stora fönster i fyra väderstreck. Rummet kan med fördel inredas med såväl en större soffgrupp som mediabänk och middagsbord. En värmande braskamin ger en trivsam känsla till rummet under kalla vinterdagar. Från sällskapsrummet tar ni er ut på båda altanerna. Framsidans uteplats integreras sömlöst med sällskapsrummet genom det stora skjutdörrspartiet i glas.
Bostadens första sovrum har ljusgrå väggar och plats för säng, skrivbord och förvaring. Vägg i vägg finner ni master bedroom med väggar klädda i en ljus tapet med charm som ger en varm och trivsam känsla till rummet. Underbart ljusinsläpp fås från det stora fönstret som vetter mot baksidans trädgård. Här finns plats för en större dubbelsäng och förvaringsmöblemang.
Bostadens tredje sovrum här även det en välplanerad yta som gör det möjligt att inreda med en större säng, skrivbord och förvaringsmöbel. Ljusa väggar med ljusgrön ton präglar rummet.
Badrummet är tidlöst inrett med ljust klinkergolv och vita kaklade väggar. En stor dubbelkommod ger mycket förvaringsutrymme tillsammans med överskåp. Här finns wc-stol och dusch.
Vägg i vägg med badrummet är en praktisk klädkammare placerad.
Här bor ni i en välplanerad bostad där varje kvadrat nyttjas på ett smart vis. Bostaden erbjuder en modern planlösning med stora sociala ytor både utomhus och inomhus. Stora uteplatser och rymlig trädgård låter er njuta av en fantastisk utomhusmiljö. Området har blandad bebyggelse med permanentboende och sommargäster. En perfekt plats för er som vill bo permanent eller för er som söker en sommaridyll. Med havet bara några hundra meter bort och ca 19 km till Kungsbacka centrum bor ni i en underbar miljö med närhet till kommunikationer och service. Onsala erbjuder bageri, pizzeria, vårdcentral, barnomsorg och matbutiker med mera.
Fastigheten säljs med friskrivningsklausul. Besiktning är utförd 2026-03-30 och protokollet finns att tillgå under "dokument".



Iserås 5:45
*Areauppgifter enligt taxeringsinformationen
1998
Kommunalt
Byggnadsplan (1966-11-01)
Gemensamhetsanläggning: Kungsbacka råö ga:6 ändamål: Vägar
Det finns 12 st pantbrev uttagna om sammanlagt 1 856 500 kr
Det sägs att den som mäter livskvalitet i materiella ting aldrig blir nöjd. Verklig livskvalitet handlar ju om någonting helt annat; att varje dag vakna upp med havet som närmsta granne, uppleva vädrets växlingar året om och den harmoniska känslan i att se solen sjunka ner bakom horisonten i väster.
OMRÅDET
I Onsala är havet alltid närvarande och som onsalabo finns alla möjligheter att ta vara på de möjligheter som havet ger. Att segla, surfa, dyka, paddla kajak eller bara hänga på stranden i timtal är självklarheter när man bor på Sveriges guldkust – halvön Onsala.
HISTORIA
Från början var Onsala en lantbruks- och sjöfararbygd och bär spår ända till järnåldern. När den västsvenska sjöfartsnäringen nådde sin höjdpunkt, blev Onsala hem åt framstående kaptener och kapare. Genom sjöfarten lyckades många av traktens bönder utöka sin inkomst vid sidan av jordbruket. Tack vare dubbelarbetet blev många av dem välbärgade och kunde bygga ut sina gårdar. Kring 1800-talets slut förvandlades många av dessa gårdar till sommarvillor och Onsala blev så småningom ett populärt turistmål. Sedan dess har sommarområdena fyllts på av alltfler åretrunthus längs kusten, vilket skapat fina variationer i bebyggelsen. Här finns gamla villor i nationalromantisk stil, pittoreska stugor och många nyproducerade hus med slående havsutsikt. Här kan man bo längst ut i kustbandet där Västerhavet lockar till äventyr, eller i vindskyddat läge in mot Onsalafjorden. Ett sådant idylliskt område är Gottskär, med vackra villor som dominerar bergssluttningarna ner mot havet samt restauranger, bryggor och butiker.
Onsalas popularitet har gjort halvön förhållandevis tätbebyggd men du behöver inte ta dig många kilometer på småvägarna inåt Onsalalandet för att befinna dig mitt på landsbygden, bland hästgårdar och kantarellskogar.
KULTUR OCH FRITID
Stillheten och lugnet till trots finns det massor att se och göra i Onsala. Utöver de rekreationsmöjligheter som havet och naturen ger, kan man som onsalabo också välja att bl.a. spela tennis eller rida. För golfspelare finns Gräppås Golfbana i natursköna omgivningar, med val på 9- eller 18-hålsbana. Området kring Onsala lockar även med många spännande utflyktsmål. Varför inte ta båten ut till Nidingen – ett 4 km långt stenrev med världens äldsta dubbelfyr. En fascinerande och unik miljö med föränderlig form och kristallklart vatten.
Köpa, sälja eller värdera bostad i Onsala? Kontakta våra mäklare i Kungsbacka! Passa också på att anmäla dig till vår kostnadsfria söktjänst Boagenten som hjälper dig att hitta ditt drömboende.
Kontakta mäklaren om du behöver hjälp att ta fram en boendekalkyl.
När du köper din bostad genom Bjurfors kan du ansöka om bolån till en förmånlig ränta hos våra banksamarbetspartners Söderberg & Partners och SEB.
Ansvarig mäklare