-
Köpa
Köpa -
Sälja
Sälja - Hitta bostad
- Skapa bevakning
- Hitta mäklare
Drömvilla med havsutsikt och hög livskvalité inne som ute
Vallda - Sandö, Kungsbacka
*Areauppgifter enligt mätning. Enligt taxering 115 kvm boarea, 70 kvm biarea
Unikt tillfälle att förvärva en vacker och fint renoverad 30-talsvilla med havsutsikt, magiska utemiljöer, växthus, gårdshus och tillhörande ängar
Tidstypiskt formspråk och fina detaljer är ett signum för denna vackra och omsorgsfullt renoverade bostad från 1932. Här är livskvalitén hög inne som ute. Magiska utemiljöer såsom flera fina sittplatser bland vinrankor och persikoträd, utekök med framdraget vatten och murad pizzaugn, växthus från 2020, fina stenläggningar i gotländsk kalksten, utedusch med inkopplat varmvatten, gårdshus innehållande bland annat gästrum med fina utvecklingsmöjligheter. Villan inrymmer sex renoverade rum och kök och erbjuder ytor för hela familjen. På entréplanet finner ni ett vackert sällskapsrum med spröjsade fönster i två väderstreck och på golvet ligger ett fint bevarat brädgolv. Den öppna spisen smyckar rummet och kalla höst- och vinterdagar sprider den en behaglig värme. Här finns gott om plats för stor soffgrupp. Hemmets hjärta – det högkvalitativa platsbyggda köket kommer från Ballingslöv och här erbjuder bänkskivor i komposit goda arbetsytor. Likaså den maskinella utrustningen, bestående av kyl och frys i fullhöjd, spishäll, inbyggd ugn och integrerad diskmaskin, är från 2024/2025. Spisfläkten köptes in 2012. Framför det vackert spröjsade fönstret passar familjens köksgrupp perfekt. Här avnjuts måltiderna ihop med en svårslagen vy över ängar och hav. Härifrån nås också bostadens soldränkta altan i sibirisk lärk. Njut av havsutsikten med en kaffe i handen medan fjärilarna samlas i fjärilsbusken bredvid. Trappan leder er upp till familjens mer privata del. Här finner ni tre stycken trevliga sovrum samt ett helkaklat badrum i vitt och naturnära toner. Master bedroom har inbyggda garderober och även här har ni havet i blickfånget. Fina bevarade detaljer såsom spegeldörrar, skänkskåp och spröjsade fönster. Det fräscha källarplanet är noggrant renoverat och består av gästrum, som också passar utmärkt som tonårsrum, med plats för dubbelsäng, stort allrum, tvättstuga samt badrum med hörnbadkar, duschhörna, wc och kommod. Här nere ligger klinkergolv med vattenburen golvvärme som värms upp via bergvärme. Villans pampiga och välkomnande entré, ett smycke i sig med högt till tak och vackra pardörrar, byggdes till 2012. På husets skyddade baksida har nuvarande ägare skapat en fantastisk oas. Flertalet mysiga sittplatser, exempelvis under pergolan där vinrankan sommartid skänker naturlig skugga. Uteköket med murad pizzaugn, gjutna bänkar och framdraget vatten tar matlagningen till nya höjder. Växthuset från Classicum är alla trädgårdsälskares dröm och i köksträdgårdens pallkragar finner ni både kryddor och jordgubbar. Gotländsk kalksten pryder marken och skapar en fin harmoni med fruktträd som aprikos, persika samt buskar och blommor. En insynsskyddad plats där känslan av att vara i Toscana är påtaglig. Gårdshuset innehåller gästrum med fina utvecklingsmöjligheter, förrådsutrymmen, garage och redskapsbod. Fastigheten består av två markområden. Den del av fastigheten där bostadshuset är beläget omfattar ca 1 651 kvm. Blickar ni ut över ängarna, ett stenkast bort, finner ni resterande del av fastigheten bestående av ca 14 800 kvm. Detta markområde har tidigare utarrenderats som betesmark för får och tennisbanan arrenderas av Vallda Sandö Tennisklubb. På vackra Sandövägen 519 bor ni rofyllt med havet och skogen som närmsta granne. Strosa ned till Låddholmsviken för ett morgondopp eller vandra i det angränsande naturreservatet. Vid Vallda Sandö finns både småbåtshamn och badplatser. Skola och förskola finner ni en kort bil- eller bussfärd bort. Ett extraordinärt boende som inger livskvalitet.
Varmt välkomna på visning!



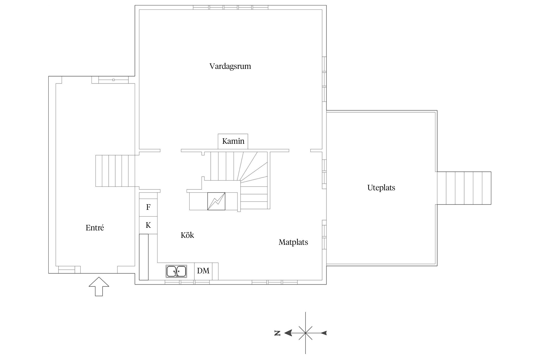
Planskiss entréplan
Planskiss övre plan
Planskiss källare
Planskiss garage och gästrum
Vallda 13:2
*Areauppgifter enligt mätning. Enligt taxering 115 kvm boarea, 70 kvm biarea
*Utbyggnad skedde 2012
- 2025 Ansluts fastigheten till kommunalt avlopp.
- 2025 Grävt upp dagvatten och anlagt bättre fall på ledningar samt installerat ny pumpbrunn.
- 2024/2025 Nytt kök
- 2023 Ny ångspärr samt avfuktare installeras- i vindsutrymmet.
- 2023 Byte av vissa styrdon samt ventiler till golvvärmeslingor.
- 2023 Ny kyl och frys.
- 2022 Viltstängsel.
- 2021 Anslutning av fiber - Kungsbacka bredbandsnät.
- 2021 Utekök och bak/pizzaugn.
- 2021 Fönsterrenovering.
- 2021 Ommålning av fasad, delvis utbytta fasadplankor.
- 2020 Ny innergård med gotländsk kalksten, pergola.
Plantering av vindruvor, persika, aprikos, päron, samt 5 st. äppleträd
- 2020 Växthusbygge - Classic Serralux Classic mur.
- 2020 Byte av kylmodul till värmepump.
- 2020 Ny braskamin.
- 2019 Anläggning av odlingsträdgård omgärdad av kastanjestaket.
- 2018 Inventering av avloppsanläggning - godkänd av Kungsbacka kommun.
- 2015 Ny värmepump Nibe 1145-10 + VVB Nibe VPB 300 CU.
- 2012 Nybyggnad av hall.
- 2010 Nytt badrum övre plan.
- 2010 Ombyggnad sovrum övre plan.
- 2009 Ny vindstrappa.
- 2009 Altanbygge, sibirisk lärk.
- 2008 Takbyte.
- 2007-08 Ombyggnad av kök.
- 2006-2009 Byte av hela vatten och avloppssystemet.
- 2006-2009 Byte av hela elsystemet
- 2006-2007 Dränering
- 2006-2007 Ombyggnad av källarplan
- 2006 Bergvärmepump installeras. Värmesystemet konverteras från direktverkande till vattenburet
- 2006 Ny anslutning av inkommande vatten, ny vattenmätare
- 2001 Infiltrationsbädd - pumpbrunnar
- 1999 Markbädd
- 1981 Anslutning till kommunalt vatten
Gårdshus med garage, gästrum, redskapsbod
Kommunalt vatten, Kommunalt avlopp.
Last: Avtalsservitut Busshållplats,gångväg, 1384IM-06/41681.1
Last: Ledningsrätt Avlopp, 1384-13/40.2
Last: Ledningsrätt Vatten och avlopp, 1384-09/181.1
Last: Ledningsrätt Vatten, 1384-13/40.1
Last: Officialservitut Avlopp, 1384-89/204.2
Last: Officialservitut Jordvärme, 1384-10/29.1
Förmån: Officialservitut Avlopp, 1384-2024/142.3
Fiber
Avtalsservitut Busshållplats,gångväg
I kostnad för el ingår kostnad för uppvärmning. Observera att driftkostnader är inhämtade från säljaren och att dessa varierar beroende på avtal och förbrukning.
Det finns 13 st pantbrev uttagna om sammanlagt 4 442 380 kr
Vallda är beläget i nordvästra delen av Kungsbackas kommun och karaktäriseras av sin varierande natur med skärgård i väst och skog i öst. Vid havet finns flertalet småbåtshamnar och populära badplatser som Lerkil, Vallda, Sandö och Smarholmen.
OMRÅDET
Mitt i området hittar du Vallda kyrka med en grund från medeltiden. Genom åren har den genomgått en mängd förändringar men den har fått bevara sin plats i centrum. Du kan därför hitta allt i dess närhet; t.ex. matvarubutiker, skola och sporthall. De senaste åren har befolkningen ökat, detta tack vare närheten till både Kungsbacka och Göteborg samt till hav och natur.
UTBILDNING
I Kungsbacka kommun finns det möjlighet att välja mellan flera olika alternativ; kommunala förskolor, familje-daghem samt enskilda förskolor. Det finns även en öppen förskola. Under de senaste åren har kommunen haft en hög utbyggnadstakt av förskoleplatser då behoven har varit växande. Grundskolorna i kommunen har flera olika inriktningar och målsättningen är att de ska vara bland de bästa i landet vad gäller studieresultat, funktionalitet, modernitet och miljö.
NATUR OCH FRITID
Vallda Sandö är ett naturreservat med typiskt halländsk natur och fina strövområden. Här finner man allt från kala klippor till ljunghedar och småsjöar – en säregen vacker natur och ett rikt fågelliv. Vallda erbjuder ett brett urval av organiserade fritidsaktiviteter för alla åldrar; ridning, tennis, fotboll, innebandy och segling för att nämna några. Här finns även motionsspår i natursköna omgivningar och nu även Kattegattleden, Sveriges första nationella turistcykelled. För den golfintresserade finns inte mindre än fyra banor i närheten; Kungsbacka GK, Vallda G & CC, Gräppås GK samt Forsgårdens GK.
KOMMUNIKATIONER
Från Vallda kan man enkelt ta bussen in till Kungsbacka. Bussen Blå Express trafikerar utkanten av Vallda för resa både mot Kungsbacka och Göteborg.
Köpa, sälja eller värdera bostad i Vallda? Kontakta våra mäklare i Kungsbacka! Passa också på att anmäla dig till vår kostnadsfria söktjänst Boagenten som hjälper dig att hitta ditt drömboende.
Kontakta mäklaren om du behöver hjälp att ta fram en boendekalkyl.
När du köper din bostad genom Bjurfors kan du ansöka om bolån till en förmånlig ränta hos vår samarbetspartner SEB.
Ansvarig mäklare