-
Köpa
Köpa -
Sälja
Sälja - Hitta bostad
- Skapa bevakning
- Hitta mäklare
Lugnt belägen enplansvilla i barnvänligt område
Vallda, Kungsbacka
*Areauppgifter enligt taxeringsinformationen
Trevlig och välvårdad enplansvilla med tre sovrum, uterum och flera härliga uteplatser. Belägen i ett lugnt och barnvänligt område i populära Vallda.
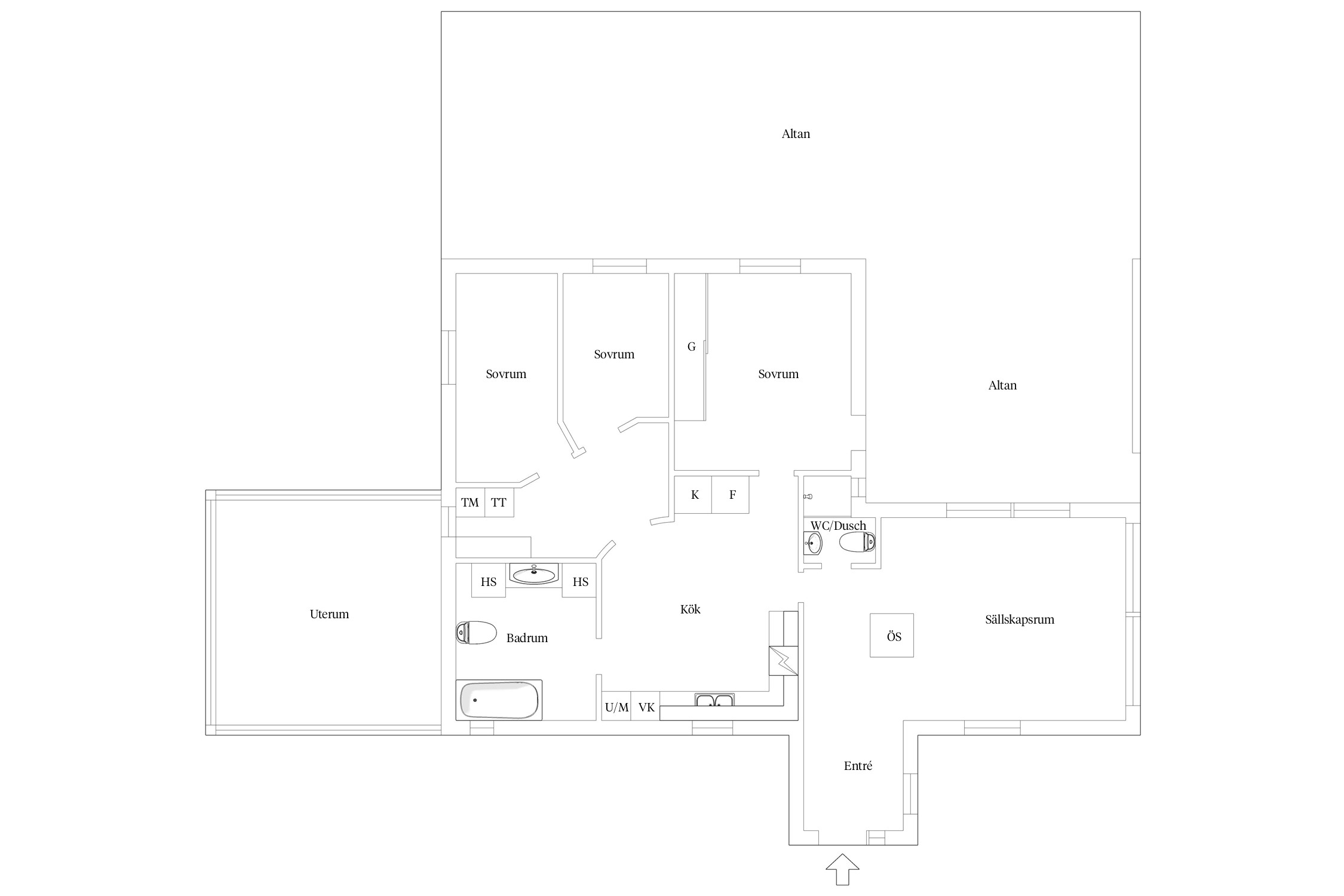
Välkommen till Kvarnslättsvägen 9 och denna härliga enplansvilla. På den grusade infarten parkeras smidigt familjens fordon. Ett trevligt trädäck vid entrén ger en välkomnande känsla. Ljusmålad hall med klinker och effektiv förvaring i flera garderober. Vidare in i det härliga sällskapsrummet med imponerande takhöjd och flertalet stora glaspartier. Rummet smyckas av en pampig öppen spis, centralt placerad som värmer gott under den kallare delen av året. Öppna upp skjutdörrarna i glas mot den mycket väl tilltagna och insynsskyddade altanen i vinkel. Här finns utrymme för avslappnande loungedel, solstolar och matplats. Insup lugnet och njut av många soltimmar. När kvällen kommer samlas vänner och familj under skärmtaket med infravärme. Anslutande del med pool ovan mark som snabbt blir barnens favorit.
Vidare i bostaden erbjuds ett modernt och stilfullt badrum från 2023. Helkaklat i vitt och beige toner utrustat med dusch med vikbar glasvägg, kommod i vitt samt wc. Trivsamt kök med bistrokänsla och gott om förvaring samt arbetsytor. Hemtrevligt och rymligt med plats för större matbord. Köksluckor i klassiskt vitt och vitt kakel som bryter av fint mot den mörka bänkskivan. Kyl och frys i fullhöjd, vinkyl, ugn och mikro i högskåp samt fläkt och diskmaskin i vitt. Bostaden erbjuder även tre rofyllda sovrum. Master bedroom med större skjutdörrsgarderob och plats för dubbelsängen. Härifrån nås även altanen. Anslutande sovrum som passar utmärkt som rum till barnen.
Renoverad tvättstuga med tvättmaskin, torktumlare, praktisk bänk med diskho samt ytterligare förvaring i skåp och lådor. Härifrån nås även bostadens trevliga uterum med infravärme. Sudda ut gränsen mellan ute och inne och förläng sommaren i det här härliga rummet. Bostadens andra badrum är vältilltaget och inrymmer badkar, kommod och högskåp i vitt samt wc. Helkaklat i klassiskt grå toner.
Ljuvlig, solig trädgårdstomt med buskar, träd och härliga gräsytor. För den odlingsintresserade erbjuds både ett mysigt växthus samt pallkragar. Njut av skörden från vinrankorna, bärbuskarna eller något av fruktträden. Ett rymligt förråd ger plats för ytterligare förvaring och cyklarna parkeras under skärmtaket vid parkeringen. Praktisk kodlåd från Yale Doorman. Med närheten till salta bad och båtliv finns det fina möjligheter för hela familjens intressen. Sandö hamn är en kort bil eller cykeltur bort och området erbjuder förskolor, pizzeria, café m.m. För den golfintresserade finns Vallda Golf & Country club och Kungsbacka Golfklubb ca 10 minuter bort med bil. Kungsbacka centrum med allt som finns att erbjuda i vård, barnomsorg, restauranger, skönhet, klädbutiker, matbutiker m.m. på bekvämt avstånd.
Varmt välkomna att kontakta ansvarig mäklare för mer information!



Planskiss
Vallda 18:34
*Areauppgifter enligt taxeringsinformationen
*Huset byggdes ut 2003
2023 Renovering mindre badrummet
2003 Utbyggnad
2003 Nytt badrum i samband med utbyggnad
Löpande underhåll
Fristående förråd och cykelförråd
Kommunalt vatten, Kommunalt avlopp.
Byggnadsplan (1982-04-08) Byggnadsplan (1958-08-30)
Gemensamhetsanläggning: Kungsbacka vallda ga:21 ändamål: Vägar
Fiber
Driftkostnader och elförbrukning är inhämtade från säljaren och bör endast ses som en uppskattning. Kostnaden kan variera och baseras på förbrukning och avtal.
Det finns 16 st pantbrev uttagna om sammanlagt 3 208 000 kr
BO I TRIVSAMMA VALLDA
När du bor i Vallda bor du ljuvligt med rogivande naturområden, karga klippor och salta bad. Helt enkelt en västkustpärla som bjuder på liv och rörelse, men också ett lugn.
VID SKOG OCH KUST
Vallda är beläget i nordvästra delen av Kungsbacka kommun och här bor du med närheten till både skog och hav. Vid havet finns flera småbåtshamnar och du kan välja mellan många populära badplatser som Lerkil, Vallda, Sandö och Smarholmen. I naturreservatet Vallda med typisk halländsk natur finns sköna strövområden och här hittar du med alla säkerhet en favoritstig. Reservatet bjuder på både kala klippor, ljunghedar och småsjöar – en säregen vacker natur och ett rikt fågelliv.
Mitt i området finns ett stycke fin historia i form av Vallda kyrka som har en grund från medeltiden. Genom åren har den genomgått en mängd förändringar men den har fått bevara sin plats i hjärtat av Vallda. Du kan därför hitta allt i dess närhet som livsmedelsbutik, grundskola och sporthall. De senaste åren har inflyttningen till Vallda ökat, mycket tack vare närheten till både Kungsbacka och Göteborg samt till hav och natur, vilket har lett till ökad tillgänglighet och serviceutbud.
Vallda har ett brett urval av organiserade fritidsaktiviteter för alla åldrar och populära sporter är ridning, tennis, fotboll, innebandy och segling. I de natursköna omgivningarna finns flera motionsslingor och här löper också Kattegattleden, Sveriges första nationella turistcykelled. För den golfintresserade finns hela fyra banor att välja mellan – Kungsbacka GK, Vallda G & CC, Gräppås GK och Forsgårdens GK. Vilken blir din favorit?
NÄRA TILL BÅDE KUNGSBACKA OCH GÖTEBORG
Under de senaste åren har kommunen haft en hög utbyggnadstakt av förskoleplatser då behoven har varit växande. Så i Vallda med omnejd har du både kommunala och enskilda förskolor. Grundskolorna i kommunen har olika inriktningar och kommunens målsättning är att de ska vara bland de bästa i landet vad gäller studieresultat, funktionalitet, modernitet och miljö. Gymnasium finner du inne i Kungsbacka.
Med grönskande skogar i ryggen och blicken mot havet finns alla förutsättningar för en harmonisk tillvaro. Att det därtill är smidigt att ta sig in till Göteborg som till charmiga Kungsbacka för att handla eller göra ärenden gör Vallda till en plats där det är lätt att trivas. Från Vallda tar du enkelt bussen in till Kungsbacka och sen vidare med pendeltåget in till Göteborg.
Köpa, sälja eller värdera bostad i Vallda? Kontakta våra mäklare i Kungsbacka! Passa också på att anmäla dig till vår kostnadsfria söktjänst Boagenten som hjälper dig att hitta ditt drömboende.
Kontakta mäklaren om du behöver hjälp att ta fram en boendekalkyl.
När du köper din bostad genom Bjurfors kan du ansöka om bolån till en förmånlig ränta hos vår samarbetspartner SEB.
Ansvarig mäklare