-
Köpa
Köpa -
Sälja
Sälja - Hitta bostad
- Skapa bevakning
- Hitta mäklare
Etagelägenhet med ett oslagbart läge- mitt i Åre by
Åre By, Åre
*I avgiften ingår värme, vatten, sophämtning, tv-kanaler samt fiber.
**Areauppgifter enligt säljaren och bostadsrättsföreningen
Välkomna till denna fantastiska etagelägenhet med ett oslagbart läge, bara ett stenkast från Åre Torg! Här erbjuds ett insynsskyddat boende med en balkong i sydvästläge, där du kan njuta av utsikt mot Mullfjället och delvis mot Renfjället och Åresjön.
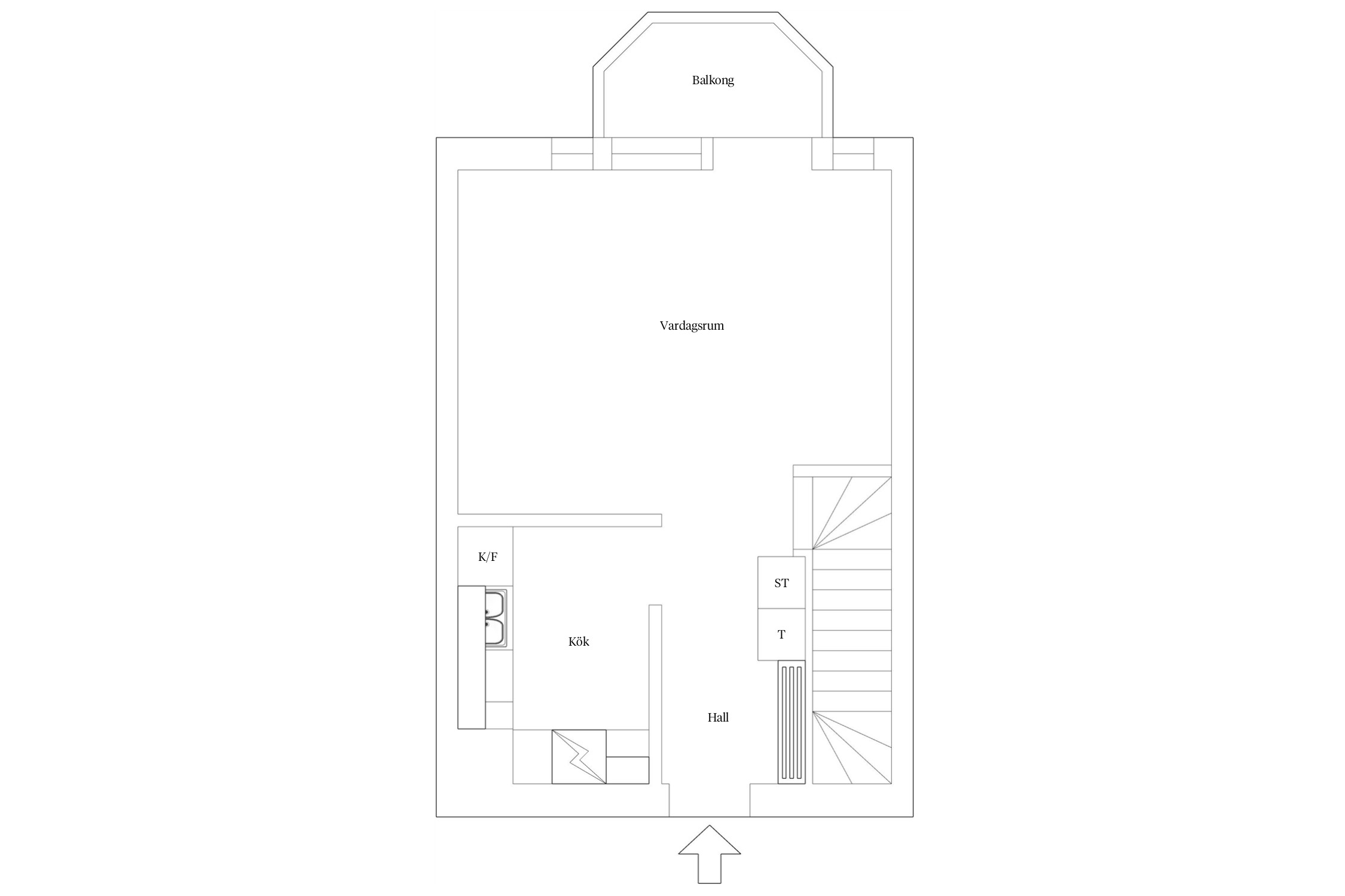
På entréplan möts du av en öppen och social planlösning med kök, matplats och allrum. Här finns gott om utrymme för både umgänge och avkoppling, och från vardagsrummet når du bostadens balkong.
En trappa ner ligger den mer privata delen av lägenheten, som består av två bra sovrum samt ett stilrent badrum med bastu.
Populära Brf Sporthotellet 2 har ett perfekt läge med närhet till allt- här bor du med promenadavstånd till flera av Åres främsta liftar som VM6:an, Stjärnliften och Kabinbanan eller om du föredrar att åka Bergbanan. Med skidåkarentré och gångbro som leder dig snabbt till liftarna är detta ett av Åre bys bästa lägen för skidåkare. Och när du är klar med dagens äventyr kan du åka hela vägen hem på skidor.
Åres utbud av restauranger, butiker och nöjen ligger precis utanför dörren, och det är bara en kort promenad till Åre station där både tåg och flygtransfer avgår. Med Skistars smidiga skidbussar tar du dig enkelt till hela Åredalens olika områden, helt utan behov av bil.
Denna bostad är inte ansluten till något uthyrningsavtal, men önskar du som köpare att hyra ut finns möjlighet till fina intäkter.
Ett unikt tillfälle för dig som söker ett privat fjällboende med ett oslagbart läge.
Välkommen på visning!
Den här välplanerade lägenheten har ekparkett i alla rum, förutom i hall och badrum där det är klinkergolv med golvvärme. Hallen erbjuder bra förvaring med plats för ytterkläder, en garderob och ett torkskåp.
Köket är öppet mot allrummet och har en modern design med vita, släta luckor och en bänkskiva i matt granit. Vitt kakel ger en fräsch känsla, och köket är fullt utrustat med integrerad diskmaskin, induktionshäll, kyl/frys och en varmluftsugn i rostfritt stål. Social och öppen planlösning på entréplanet där du även finner bostadens härliga balkong med markis i sydväst läge. I allrummet finns plats för både soffa och matbord för 6-8 personer.
En ektrappa leder ner till undervåningen, där två sovrum finns. Det ena rummet har plats för en dubbelsäng, medan det andra är inrett med en enkelsäng som går att dra ut till en dubbelsäng. Båda sovrummen har en mysig plats i fönstret som passar perfekt som en liten arbetsplats eller läshörna. Här finns även ett badrum, stiligt inrett med mattsvart och vitt kakel samt klinker. Badrummet är utrustat med dusch med glasdörrar, ett handfat med förvaring, toalett, tvättmaskin och bastu.
Bostaden säljes fullt möblerad och utrustad med reservation för personliga tillhörigheter.



*Våningsplan 1-2 av 5.
**Areauppgifter enligt säljaren och bostadsrättsföreningen
I avgiften ingår värme, vatten, sophämtning, tv-kanaler samt fiber.
Ny tvättmaskin april 2025
Ny Kyl/frys april 2025
Spishäll bytt 2023
Markis 2019
Kaklat sidoväggarna kök 2012
Ett förråd ingår i månadsavgift och möjlighet finns att hyra ytterligare ett förråd för 317kr/mån.
Garage under huset med 17st platser, garaget innehas av garagebolag.
Föreningen innehar 3 st parkeringsplatser utomhus som är uthyrda, kö finns via föreningens ekonomiska förvaltare.
TV och Telia lilla paketet fiber ingår i månadsavgift
Bostadsrättens indirekta nettoskuldsättning baseras på föreningens skulder/lån minus föreningens räntebärande tillgångar och likvida medel. Beräkningen är gjord och baseras på senaste tillgängliga årsredovisningen. För mer information kontakta ansvarig fastighetsmäklare.
Du som bostadsrättsinnehavare skall teckna en giltig hemförsäkring med bostadsrättstillägg vilket är en tillkommande driftskostnad.
TV och Telia lilla paketet fiber ingår i månadsavgift
Brf Sporthotellet 2 är beläget mitt på Åre torg med gångavstånd till Åredalens knytpunkt Åre Station som erbjuder flygtransfer till Åre/Östersund flygplats samt fjärrtåg. Skistars skidbussar gör att man kan semestra friktionsfritt utan bil. I station Åre finns ICA Supermarket och flera butiker samt en gångbro över till Holiday Club med bowling, SATS gym och äventyrsbad. Närmsta lift är Åre Bergbana som tar er upp till skidbacken direkt från Åre torg, det är även gångavstånd till VM6, Stjärnliften och kabinbanan. Från skidbacken åker ni transporten hela vägen till huset.
Åre By är en modern skidort med puls, skidåkning i världsklass och med ett stort utbud av restauranger, barer, butiker och all annan service som du kan önska dig. Tåget stannar mitt i byn och inom en dryg timmes resa finns två internationella flygplatser. En året runt-destination för både fritids- och permanentboende. I Åre by finns ett stort utbud av bostadsrätter och fastigheter med närhet till allt. En levande by året runt som är en populär inflyttningsort för familjer som vill leva närmare naturen och med ett stort utbud av fritidsaktiviteter. I byn finns förskolor samt skola åk 1–3.
Köpa, sälja eller värdera bostad i Åre By? Kontakta våra mäklare i Åre! Passa också på att anmäla dig till vår kostnadsfria söktjänst Boagenten som hjälper dig att hitta ditt drömboende.
Kontakta mäklaren om du behöver hjälp att ta fram en boendekalkyl.
När du köper din bostad genom Bjurfors kan du ansöka om bolån till en förmånlig ränta hos vår samarbetspartner SEB.
Ansvarig mäklare
Extra kontaktperson