-
Köpa
Köpa -
Sälja
Sälja - Hitta bostad
- Skapa bevakning
- Hitta mäklare
Lägenhet i två plan med möjlig uthyrningsdel och fin utsikt i Björnen
Åre Björnen, Åre
*I månadsavgiften ingår värme, vatten, snöröjning, bredband samt samfällighetsavgift
**Areauppgifter enligt säljaren & bostadsrättsföreningen
Välkommen till denna etagelägenhet i Björnen med vidsträckta vyer över Åresjön och Renfjället. Här bor du med ett fantastiskt fjällpanorama och närhet till både skidbackar och service. Bostaden är fördelad på två plan, där den nedre våningen är utformad så att den kan fungera som en separat del med eget pentry och badrum. Det ger dig flexibilitet – använd hela lägenheten själv med tre sovrum i olika plan, eller hyr ut den ena delen för att skapa ett ekonomiskt tillskott i kalkylen.
På det övre planet möts du av de sociala ytorna där kök, matplats och vardagsrum samspelar i en öppen planlösning. Från vardagsrummet når du balkongen i söderläge med en hänförande utsikt över fjällvärlden. Den vackra täljstenskaminen sprider värme och trivsel under kalla vinterkvällar. Här finns även ett rymligt master bedroom med plats för dubbelsäng samt ytterligare ett sovrum med utrymme för våningssäng. Det nedre planet rymmer pentry, badrum och gott om plats för både dubbelsäng och soffa. Härifrån når du dessutom en egen uteplats i söderläge där du kan njuta av solen efter dagens äventyr. På nedre plan finns även föreningens gemensamma utrymmen – wc, tvättavdelning och bastu, vilket ger en extra känsla av komfort och bekvämlighet utöver bostadens egna kvadratmeter.
Skidåkningen väntar bara ett snöbollskast bort, och på bekvämt gångavstånd nås dessutom Björnen Centrum med restauranger, skiduthyrning, flygtransfer, skidbuss till Åre/Tegefjäll/Duved och annan service – allt du behöver för ett smidigt fjälliv.
Lägenheten har ett uthyrningsavtal med Skistar som genererar fina uthyrningsintäkter. Avtalet är uppsagt och löper ut i april/maj 2026. För den köpare som vill fortsätta hyra ut därefter får kontakt tas med Skistar för att aktivera avtalet igen, alternativt undersöka möjligheterna med en annan aktör.
Lägenheten säljs fullt möblerad med undantag för personliga tillhörigheter och stylingprodukter.
Varmt välkommen att boka din visning!
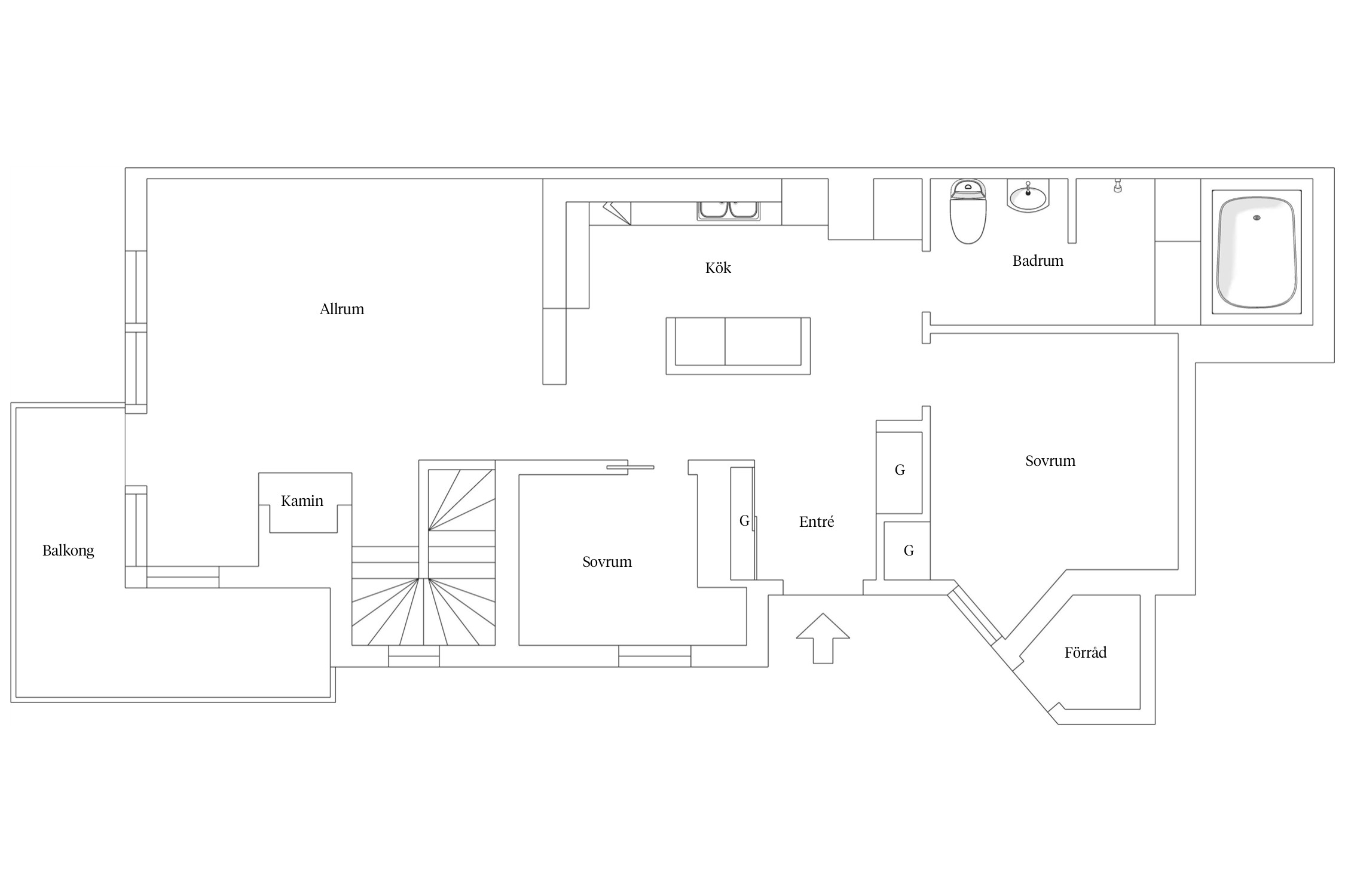
ENTRÉPLAN:
Entré med utvändigt, intilliggande skidförråd. I den rymliga hallen finns både klädavhängning och sittbänk. Lite längre in i hallen finns även torkskåp. Till höger om hallen ligger Master bedroom med dubbelsäng och garderob och till vänster från hallen finns ytterligare ett sovrum med platsbyggd våningssäng med bred underslaf.
Köket är i anslutning till matplats och vardagsrum och här finns spishäll, inbyggd ugn och mikro från Gaggenau, kyl/frys och diskmaskin. I allrummet finns även en braskamin i täljsten som skapar mysfaktor i de sociala ytorna. Från allrummet når du balkongen i söder med vacker utsikt över Åresjön och Renfjället. Via allrummet nås trappa ner till uthyrningsdelen.
På entréplanet finns även ett rymligt badrum med wc, handfat, två st handdukstorkar, dusch och jacuzzi.
NEDRE PLAN:
Antingen väljer du som köpare att se denna våning som ett extra sovrum med eget badrum och pentry så att familjen kan dela upp sig på ett lyxigt sätt under semestern. Alternativt väljer du att se denna våning som en möjlig uthyrningslägenhet. Det här våningsplanet har en egen ingång utifrån samt att den invändiga dörren vid trappan till övervåningen är låsbar. På denna våning finns ett rum med dubbelsäng, fåtöljer och bra förvaring. Lägenheten har ett pentrykök samt helkaklat badrum med wc, handfat och dusch. Det finns även ett mindre invändigt förråd med ett torkskåp. Utanför ingången finns en uteplats mot söder med fin utsikt.
Föreningen har ett gemensamt utrymme med wc, tvättstuga samt bastu, detta utrymme disponerar ägarna av bostadsrätterna i föreningen och ej hyresgäster.



Planskiss entréplan
Planskiss nedre plan
*Etagelägenhet i två våningsplan (plan 1 och plan 2)
**Areauppgifter enligt säljaren & bostadsrättsföreningen
I månadsavgiften ingår värme, vatten, snöröjning, bredband samt samfällighetsavgift
Föreningen har ett gemensamt utrymme med wc, tvättavdelning samt bastu.
På övre planet finns balkong i söder och utanför uthyrningsdelen en uteplats i marknivå.
Parkering för en bil med motorvärmaruttag samt laddstolpe
TV & bredband finns och är idag inkluderat i månadsavgiften via Björnens samfällighet. Det pågår dock ett stort arbete i hela Björnen med att installera fiber. Planen är att det ska utföras under 2025 därefter får föreningen välja abonnemang vilket kan komma att förändra kostnaden från hur det ser ut idag.
Bostadsrättens indirekta nettoskuldsättning baseras på föreningens skulder/lån minus föreningens räntebärande tillgångar och likvida medel. Beräkningen är gjord och baseras på senaste tillgängliga årsredovisningen. För mer information kontakta ansvarig fastighetsmäklare.
I kostnad för uppvärmning ingår hushållsström, förbrukningen är baserad på säljarens nyttjande av bostaden.
Som bostadsrättsinnehavare skall du teckna en hemförsäkring vilket är en tillkommande driftskostnad.
*Betalas av köpare
De senaste åren har föreningen installerat ny bergvärmepump, lagt om tak, nya plåtdetaljer med hängrännor och stuprör. Nyligen har man sett över golvvärmen med nya ventiler samt att man är på gång att renovera ventilationssystemet.
Dränering är planerad och kommer att utföras under 2026-2028.
Populärt familjeområde ca 6 km nordost om Åre. Här finns allt för en lyckad vintersemester oavsett om man är barn eller vuxen. Både backar, liftar och restauranger ligger på bekvämt avstånd från dörren. Från ÅreBjörnen tar man sig lätt till Åre via liftsystemet eller skidbussar som går dagligen.
Köpa, sälja eller värdera bostad i ÅreBjörnen? Kontakta våra mäklare i Åre! Passa också på att anmäla dig till vår kostnadsfria söktjänst Boagenten som hjälper dig att hitta ditt drömboende.
Kontakta mäklaren om du behöver hjälp att ta fram en boendekalkyl.
När du köper din bostad genom Bjurfors kan du ansöka om bolån till en förmånlig ränta hos våra banksamarbetspartners Söderberg & Partners och SEB.
Ansvarig mäklare