-
Köpa
Köpa -
Sälja
Sälja - Hitta bostad
- Skapa bevakning
- Hitta mäklare
Timmerhus med lugnt läge i Björnen Höken
ÅreBjörnen, Åre
*Areauppgifter enligt taxeringsinformationen
Välkommen till denna fjälldröm i timmer med fint läge i familjevänliga Åre Björnen. Stugan är rymlig med plats för både vänner och familj med sina fem sovrum, två badrum samt generösa sällskapsytor att njuta av tillsammans. Stugan har också ett praktiskt garage med gott om förvaring, vindskyddad uteplats samt en badtunna, perfekt efter heldag på fjället. Från huset har du bekväm access till skidtransport som tar dig ner till Björnen centrum och vidare ut i hela Åres liftsystem. Här nere finns också restaurang, livsmedelsbutik och längdspår. En liten bit upp från huset ligger Copperhill Mountain lodge där ni bland annat kan njuta av en fin relaxavdelning och en god matbit i hotellets restaurang.
På Höken 13 finns alla bekvämligheter du kan tänkas behöva för att njuta av ett fritidsboende i generationer.
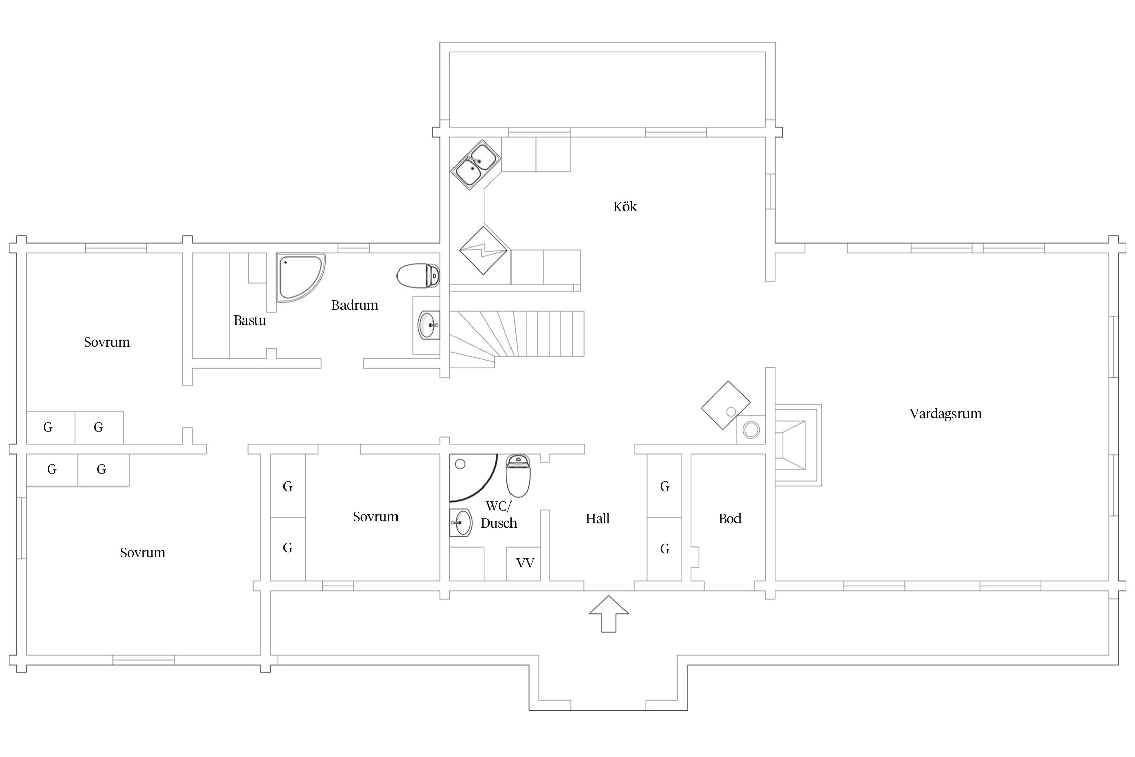
Hall med plats för avhängning i praktisk skjutgarderob. Direkt till vänster ligger ett badrum utrustat med handfat, duschkabin , wc och tvättmaskin. Vidare in kommer ett rymligt kök utrustat med spis, spisfläkt, diskmaskin samt kyl och frys. I köket finns plats för ett mindre matbord. Till höger från köket ligger ett rymligt allrum med öppet till nock vilket ger en härlig känsla av rymd. Rummet rymmer soffhörna, matplats samt fåtöljer vid en värmande braskamin. Härifrån finns också utgång till altanen med badtunna.
Till vänster från köket ligger entréplanets tre sovrum, varav två lite större möblerade med dubbelsängar och det tredje lite mindre med enkelsäng. Samtliga med förvaringsmöjligheter. Här ligger också det andra badrummet med bastu. Förutom bastun är badrummet utrustat med handfat, duschkabin och wc. Härifrån finns även utgång till uteplats för att ta en nypa luft efter att man bastat. Båda badrummen har klinker på golven.
En trappa leder upp till loftet som rymmer en soffhörna och ett biljardbord samt utgång till balkongen. Här finns också stugans resterande två sovrum, båda möblerade med våningssängar.
Rymligt garage finns också på fastigheten med plats för både bil och förvaringsmöjligheter. På tomten finns en praktiskt vindskyddad uteplats.



Planskiss entréplan
Loftvåning
Åre-svedje 1:332
*Areauppgifter enligt taxeringsinformationen
Uteplats i sydväst
Kommunalt vatten, Kommunalt avlopp.
Naturtomt
Plats för ett flertal bilar samt rejält garage.
Ändring av detaljplan (2006-01-26) Detaljplan (2003-11-12)
Gemensamhetsanläggning: Åre åre-svedje ga:26
Gemensamhetsanläggning: Åre åre-svedje ga:6 ändamål: Vägar
Gemensamhetsanläggning: Åre åre-svedje ga:9 ändamål: Vägar, Vattenförsörjning, Avloppsanläggning, Radio- TV och/eller tele, Elledning och/eller belysning, Grönområden, Garage och/eller parkering, Kvartersanläggning
TV: Ansluten till kabelnät, ingår ca 20 st kanaler via samfällighetsföreningen.
Internet: Bredband finns. Abonnemanget ingår sedan via samfälligheten, således ingen månadskostnad.
Fiber planeras grävas in under 2026-27 och framöver och byta ut befintlig tjänst, kostnad ca 7.500:- per fastighet.
Kostnaden för uppvärmning omfattar även hushållsel, kostnaden är beräknad utefter förbrukningen 23.000kWh/år x 1,50:-/kWh
Fastigheten ingår i ÅBS Årebjörnens samt Fröåvägens samfällighetsförening. I ÅBS samfällighet ingår vatten & avlopp, TV, bredband, snöröjning, sandning och sophantering. Fröåvägens samfällighet avser nyttjande av vägen från E14 upp till Björnen.
Du som fastighetsägare bör även teckna en giltig hemförsäkring vilket är en tillkommande driftskostnad.
Populärt familjeområde ca 6 km nordost om Åre. Här finns allt för en lyckad vintersemester oavsett om man är barn eller vuxen. Både backar, liftar och restauranger ligger på bekvämt avstånd från dörren. Från ÅreBjörnen tar man sig lätt till Åre via liftsystemet eller skidbussar som går dagligen.
Köpa, sälja eller värdera bostad i ÅreBjörnen? Kontakta våra mäklare i Åre! Passa också på att anmäla dig till vår kostnadsfria söktjänst Boagenten som hjälper dig att hitta ditt drömboende.
Kontakta mäklaren om du behöver hjälp att ta fram en boendekalkyl.
När du köper din bostad genom Bjurfors kan du ansöka om bolån till en förmånlig ränta hos vår samarbetspartner SEB.
Ansvarig mäklare