-
Köpa
Köpa -
Sälja
Sälja - Hitta bostad
- Skapa bevakning
- Hitta mäklare
Fastighet med högt och fritt läge i Björnen
Åre Björnen, Åre
*Areauppgifter enligt säljaren och taxeringsinformationen
Välkommen på visning! Föranmälan till mäklaren krävs.
Högt upp i Björnen, där fjällvärlden breder ut sig i all sin prakt och Åreskutan reser sig majestätiskt i blickfånget, ligger denna välplanerade och mysiga fjällstuga om 62 kvadratmeter på en tomt som är 851kvm – en perfekt plats för både aktiva dagar och avkopplande stunder. Fastigheten har en hänförande utsikt över både Åreskutan och Åresjön – en vy som ständigt skiftar med årstiderna. Från köksfönstret kan du dessutom njuta av vackra vyer över Renfjället. Fastigheten har en generös byggrätt för den som vill undersöka möjligheten att förädla och utveckla denna plats. På tomten växer rikligt med blåbär, vilket ger en extra guldkant under sensommar och höst.
Redan i hallen möts du av en välkomnande känsla, och här finns plats för både avhängning och sittplats. Badrummet är praktiskt placerat direkt till höger och här finns även en bastu att värma sig i efter en dag på fjället. Vidare öppnar bostaden upp sig i ett socialt kök och allrum där de stora fönsterpartierna ramar in den storslagna utsikten och släpper in ett generöst ljusflöde. Här finns gott om plats för både middagar och umgänge. Planlösningen är genomtänkt med de sociala ytorna i husets främre del för att maximera utsikt och solläge, medan sovrummen är placerade i husets bakkant. Här finns ett rogivande Master bedroom samt två ytterligare sovrum med praktiska våningssängar – perfekt för familjen och gäster. Utöver detta erbjuder loftet ytterligare två sängplatser, vilket gör att huset rymmer många utan att kompromissa med komforten.
Detta är ett boende där varje kvadratmeter är utnyttjad på bästa sätt – ett fjällhem som kombinerar funktion och ett svårslaget läge. Och apropå det svårslagna läget så erbjuder fastigheten dessutom en generös byggrätt vilket kan ge en möjlighet att skapa något annat här för den som är sugen att utveckla och förädla. Tomten ligger högt och fint med härliga vidder över Åredalen och skidåkningen når du lätt via transportleden som passerar nära fastigheten.
Välkommen till Björnen Räven 10!
HALL & BADRUM
Välkomnande entré med plats för ytterkläder, fjällutrustning samt sittplats – här kliver du in från fjälluften och landar direkt i en varm och ombonad känsla. Hallen är praktiskt utformad med goda avhängningsmöjligheter. Direkt till höger från hallen ligger det helkaklade badrummet. Här finns kommod, wc, dusch, handdukstork samt bastu. Det finns golvvärme i både hall och badrum.
KÖK & ALLRUM
Från hallen öppnar bostaden upp sig i ett ljust och socialt kök och allrum där utsikten blir en naturlig del av rummet. Här blickar du ut över Åreskutan och Åresjön – en vy som ger både ett lugn men som alltid är under ständig förändring i takt med årstider och väder. Köket är välplanerat med goda arbetsytor och här har du en naturlig kontakt med matplats och vardagsrum, vilket skapar en härlig social yta där alla kan samlas. Här finns gott om plats för både middagar, spelkvällar och långa frukostar innan dagens äventyr. Allrummet är husets självklara hjärta – en plats för umgänge, återhämtning och fjällmys, där de stora fönsterpartierna låter ljuset och landskapet ta plats.
SOVRUM & LOFT
Sovrummen är smart placerade i husets bakkant. Master bedroom erbjuder en rogivande plats för vila samt mycket bra förvaring i form av garderobsvägg. Två ytterligare sovrum med en våningssäng i vardera ger plats för barn, gäster eller den stora familjen. Via stege/trappa nås loftet som erbjuder ytterligare två sängplatser. Ett mysigt och uppskattat utrymme som passar utmärkt för barn eller övernattande gäster – en extra dimension som gör att huset rymmer många vid behov.
UTEMILJÖ
Här bor du med ett högt och fritt läge i Björnen, där naturen alltid är nära och utsikten ständigt närvarande. Längs huset löper en härlig terrass där du gärna avnjuter eftermiddagskaffet i solen eller bjuder in till en after ski efter dagens skidåkning. Här finns ett varmförråd bredvid huvudentrén. På tomten finns även ett förråd (el finns där) vilket ger bra utrymme att förvara skidor, cyklar och annan utrustning.



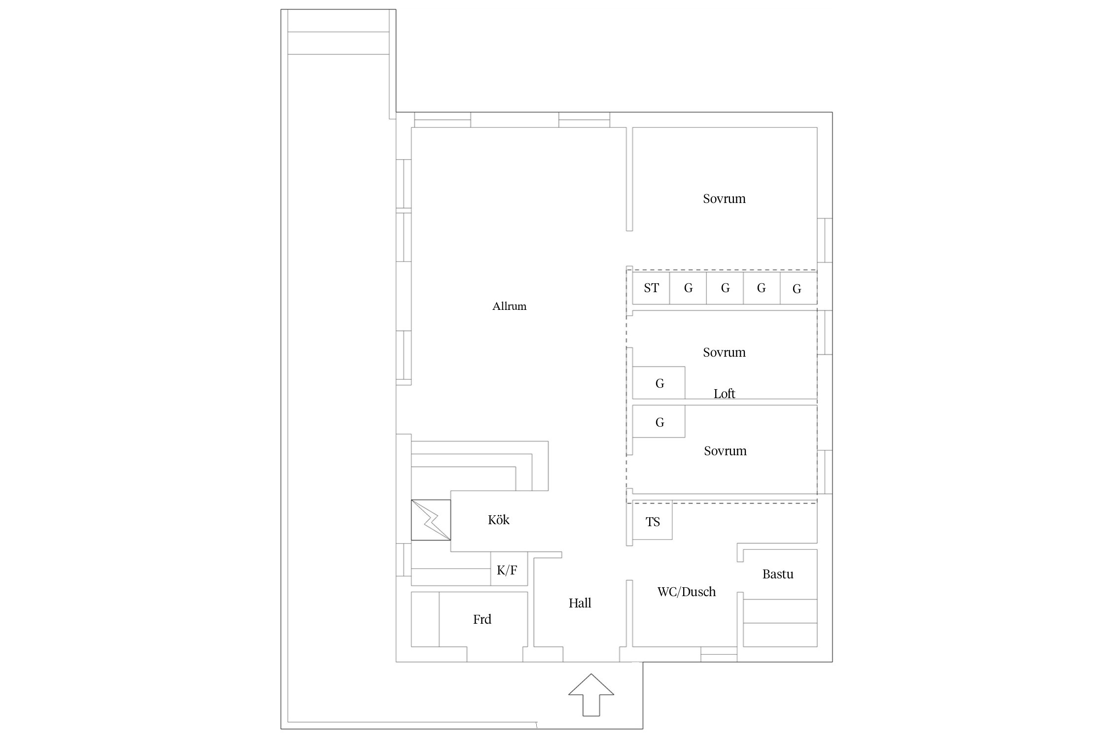
Planskiss
Åre-svedje 1:159
*Areauppgifter enligt säljaren och taxeringsinformationen
2021 Ny diskmaskin, nytt kylskåp
2022 Målning fasad, fönster, byte vindskivor, plåtarbeten
2022 Byte altan och räcken
2022 Element Nobo
2023 Utebelysning
Förrådsbyggnad på tomten med el. Varmförråd bredvid huvudentrén.
En naggande god tomt omsluter huset, längs husets södra fasadsida finns en uteplats.
Kommunalt vatten, Kommunalt avlopp.
Det finns en uppfart där möjlighet finns att ställa bilar och släp.
Detaljplan (1988-06-15)
Gemensamhetsanläggning: Åre åre-svedje ga:6 ändamål: Vägar
Gemensamhetsanläggning: Åre åre-svedje ga:9 ändamål: Vägar, Vattenförsörjning, Avloppsanläggning, Radio- TV och/eller tele, Elledning och/eller belysning, Grönområden, Garage och/eller parkering, Kvartersanläggning
Ansluten via Årebjörnens Samfällighet (ÅBS)
Ja, ingår via Samfälligheten. Fiber grävs in under 2026/2027, (en tid efter att fiber installerats avvecklas nuvarande system med bredband och TV)
Hushållsel och uppvärmning/varmvatten (under fliken uppvärmning).
I Årebjörnens Samfällighetsavgift omfattas i nuläget vatten, avlopp, väg, snöröjning, sopor samt TV och bredband.
Det finns 1 st pantbrev uttaget om sammanlagt 420 000 kr
Populärt familjeområde ca 6 km nordost om Åre. Här finns allt för en lyckad vintersemester oavsett om man är barn eller vuxen. Både backar, liftar och restauranger ligger på bekvämt avstånd från dörren. Från ÅreBjörnen tar man sig lätt till Åre via liftsystemet eller skidbussar som går dagligen.
Köpa, sälja eller värdera bostad i ÅreBjörnen? Kontakta våra mäklare i Åre! Passa också på att anmäla dig till vår kostnadsfria söktjänst Boagenten som hjälper dig att hitta ditt drömboende.
Kontakta mäklaren om du behöver hjälp att ta fram en boendekalkyl.
När du köper din bostad genom Bjurfors kan du ansöka om bolån till en förmånlig ränta hos våra banksamarbetspartners Söderberg & Partners och SEB.
Välkommen på visning! Föranmälan till mäklaren krävs.
Ansvarig mäklare